Mẫu nhà phố 2 tầng 8x10m được bố trí công năng khoa học, tiện nghi và đáp ứng không gian sử dụng thoải mái cùng một công trình sang trọng, vì vậy xu hướng xây nhà phố 2 tầng diện tích 8x10m ngày càng phổ biến và được các chủ đầu tư ưa chuộng. Dưới đây, LG TECH sẽ giới thiệu đến các bạn top 15+ mẫu thiết kế nhà phố 2 tầng 8x10m được yêu thích nhất đã và đang được rất nhiều khách hàng yêu thích cũng như lựa chọn xây dựng trong thời gian qua. Cùng tham khảo nhé!
Mẫu nhà phố 2 tầng 8x10m mái bằng
Mẫu thiết kế nhà phố 2 tầng 8x10m mái bằng là một trong những nhà ở đang được rất nhiều chủ đầu tư quan tâm và lựa chọn xây dựng mái ấm cho gia đình bởi sự tối giản nhẹ nhàng, hình khối kiên cố và màu sắc phối tươi sáng đem đến công trình hoàn hảo.
Phối cảnh mặt tiền nhà phố 2 tầng 8x10m
Khi xem xét bề ngoài, công trình nhà phố này có một cấu trúc đơn giản nhưng vẫn tinh tế và phù hợp với sở thích thẩm mỹ của nhiều gia đình hiện nay. Bằng cách sử dụng cây xanh và các vật liệu mới như gạch inax, gỗ nhựa, lam sắt cùng kính cường lực, công trình tận dụng tối đa ánh sáng tự nhiên và hơi mát từ bên ngoài. Đồng thời, các yếu tố này cũng đóng góp vào sự hiện đại, thoải mái và sang trọng cho ngôi nhà phố hai tầng này với kích thước 8x10m
Tổng thể công trình nhà đẹp mái bằng từ cửa cổng cho đến mặt tiền kiến trúc được thiết kế đồng bộ và thống nhất, từ màu sắc cho đến cách trang trí. Hệ cửa chính được làm bằng sắt phun sơn tĩnh điện màu đen, tường bê tông sử dụng gạch bông gió và được trang trí bằng bồn tiểu cảnh phía trước. Điều này không chỉ giúp gia chủ có góc view nhìn ra bên ngoài, mà còn giúp cải thiện không khí trong nhà, tránh sự ngột ngạt phát sinh từ căn nhà phố một cách hiệu quả. Bên cạnh đó, phương án thiết kế này cũng rất phù hợp với những ngôi nhà phố có diện tích nhỏ, mang lại sự thoáng đãng và dễ chịu cho cả gia đình.
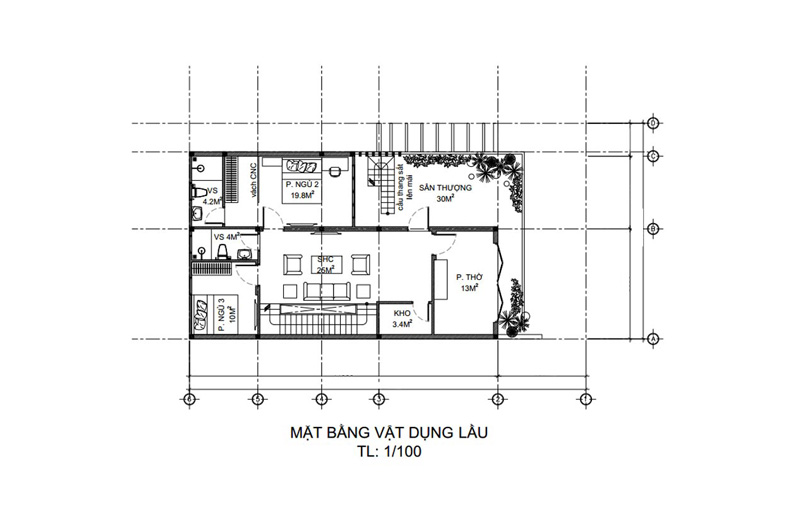
Bản vẽ mặt bằng công năng

Mặt bằng tầng trệt: Từ cửa cổng chính bước vào là khu vực sân trước thiết kế tiểu cảnh xanh kết hợp để xe gara ô tô cũng như khu vực giải trí cho gia đình. Tiến vào bên trong là phòng khách thoáng rộng với hệ cửa chính bằng kính cường lực trong suốt có kích thước lớn nên căn phòng luôn tươi sáng và mát mẻ.
Tiếp đó là cầu thang thông tầng ngăn cách với không gian bếp và khu vực ăn, tại đây bố trí bàn ăn lớn hình chữ nhật dành cho 10 người, bếp hình chữ I thiết kế tủ kệ cao sát trần giúp gia tăng không gian lưu trữ. Cuối cùng là 1 phòng ngủ master dành cho vợ chồng chủ đầu tư, có nhà vệ sinh khép kín cùng lối ra sân sau nhà. Phòng vệ sinh chung và khu vực giặt được đặt kế bên, thuận tiện cho quá trình di chuyển.

Mặt bằng lầu 1: Bố trí 2 phòng ngủ, 1 phòng ngủ lớn có nhà vệ sinh khép kín cùng nội thất đầy đủ và không gian rộng rãi. Phòng ngủ còn lại dành cho khách đến chơi nhà ở lại nên diện tích có phần hạn hẹp nhưng vẫn đáp ứng một nơi nghỉ ngơi thoải mái nhất. Sát bên phòng ngủ là phòng vệ sinh chung. Trung tâm nhà là không gian thư giãn cho cả gia đình, phòng sinh hoạt chung thiết kế bộ ghế sofa mềm mại.
Không gian phòng thờ bố trí hướng ra trước nhà, ngoài việc đảm bảo yếu tố phong thủy, sự trang nghiêm, kiến trúc sư còn chú trọng đến việc lấy sáng và thông thoáng cho căn phòng nên việc sử dụng cửa kính lớn được áp dụng. Khu vực sân thượng kế bên dùng làm nơi thư giãn, trồng cây xanh.
Thiết kế nội thất nhà phố 2 tầng 8x10m mái bằng
Phòng khách nổi bật với tone màu đồng bộ từ vật liệu đến gam màu chủ đạo
Không gian phòng khách tập trung vào việc tối ưu hóa không gian mở, sắp xếp và tổ chức các chức năng trong căn phòng một cách thông thoáng, loại bỏ những tường cứng làm căn nhà trở nên chật chội. Phòng khách được thiết kế để tạo ra vẻ đẹp sang trọng và tinh tế, với bộ ghế sofa và các vật trang trí tường phù hợp, kết hợp với hệ thống đèn trần độc đáo và hấp dẫn, thể hiện rõ gu thẩm mỹ và cá nhân của chủ nhà.
Bếp trong mẫu nhà phố 2 tầng 8x10m thiết kế hình chữ L đã được tối ưu để mang lại không gian hấp dẫn và tiện nghi cho gia đình. Với sử dụng chất liệu gỗ công nghiệp và tủ kệ cao sát trần, không gian bếp trở nên sang trọng và hiện đại. Các tấm kính ốp tường bếp và mặt bếp ốp đá tự nhiên không chỉ mang lại vẻ đẹp độc đáo cho không gian mà còn giúp bếp luôn tươi sáng và dễ dàng vệ sinh. Thiết kế này cũng giúp tăng không gian sử dụng cho các chị em nội trợ, đảm bảo mọi công việc nấu nướng và chuẩn bị thực phẩm diễn ra thuận tiện và thoải mái.
Bộ bàn ăn kiểu dáng tối giản kết hợp gương gắn tường giúp tạo cảm giác rộng rãi
Bộ bàn ăn đặt kế bên khu vực bếp, kiểu dáng hình chữ nhật, thiết kế ghế gỗ đơn giản bọc nệm màu kem. Mảng tường ốp kính vừa giúp tạo cảm giác rộng rãi, vừa giúp tăng tính thẩm mỹ sang trọng cho không gian một cách hiệu quả, đây được xem là giải pháp tối ưu mà hầu hết các nhà phố đẹp hiện nay áp dụng.
Phòng ngủ trang nhã và ấm ấp với những gam màu trầm
Tiếp theo là không gian phòng ngủ các phòng chức năng của các thành viên trong gia đình. Ngoài việc chú trọng đến tính thẩm mỹ và sự thoải mái của chủ nhân căn phòng, kiến trúc sư còn đề cao đến sự hài hòa, tạo cảm giác dễ chịu, thư giãn cũng như các yếu tố ánh sáng và phong thủy nhằm đảm bảo một nơi nghỉ ngơi hoàn hảo nhất.
Không trang trí quá cầu kỳ nhưng phòng ngủ này vẫn sang trọng nhờ vào cách trang trí hài hòa
Trẻ trung và năng động chính là từ ngữ để miêu tả chính xác cho căn phòng ngủ
Phòng ngủ với cách bố trí khoa học, sắp xếp đồ nội thất thông minh, không gian sang trọng và trang nhã
Không gian phòng thờ thoáng và rộng rãi khi sử dụng hệ thống cửa kính trong suốt
Mẫu nhà phố 2 tầng 8x10m mái thái
Trong thời điểm hiện tại, một trong những kiểu nhà 2 tầng 8x10m thu hút sự quan tâm của nhiều người là nhà phố 2 tầng kết hợp mái thái. Đây là một dạng mái nhà có nhiều ưu điểm vượt trội. Hãy cùng khám phá thêm thông tin chi tiết bên dưới để biết thêm
Phối cảnh mặt tiền nhà 2 tầng 8x10m
Ngoại thất nhà phố 2 tầng 8x10m sở hữu nét đẹp tinh tế và nhã nhặn, kết hợp giữa nét đẹp truyền thống và hiện đại được thể hiện ở các vật liệu xây dựng. Kiến trúc mái thái ấn tượng và bề thế mang đến tổng thể công trình kiên cố và bền vững. Hệ mái giật cấp có thiết kế đơn giản nhưng vô cùng chắc chắn tạo nên vẻ đẹp sang trọng và gần gũi cho ngôi nhà.
Lan can của căn nhà phố 2 tầng 8x10m được thiết kế bằng vật liệu kính cường lực kết hợp mảng cây xanh phía trước đem đến vẻ đẹp sang trọng và hiện đại. Hệ thống cửa kính khung nhôm xingfa màu đen nổi bật trên nền sơn trắng chủ đạo vừa tô đậm tính thẩm mỹ vừa giúp ngôi nhà tăng cường việc hấp thu thêm nhiều ánh sáng tự nhiên từ bên ngoài hơn.
Bản vẽ mặt bằng công năng nhà 2 tầng 8m

Mặt bằng công năng tầng trệt: Không gian tầng trệt của ngôi nhà đẹp này được bố trí bao gồm sân trước, gara ô tô, phòng bếp kết hợp bàn ăn, 1 phòng ngủ có nhà vệ sinh riêng, phòng vệ sinh chung và khu vực giặt phơi.

Mặt bằng công năng lầu 1: Khu vực lầu 2 được kiến trúc sư bố trí bao gồm 4 phòng ngủ, tất cả các phòng đều được bố trí 1 phòng vệ sinh khép kín nhằm đảm bảo không gian riêng tư. Trong đó, 1 phòng ngủ master dành cho vợ chồng gia chủ có diện tích khá rộng rãi, thông thoáng cùng lối ra ban công trước nhà. Trung tâm là không gian sinh hoạt chung cho cả gia đình.
Thiết kế nội thất nhà 2 tầng 8x10m sang trọng
đồ nội thất đến màu sắc tổng thể
Phòng khách trong nhà phố này được thiết kế gam màu sáng làm chủ đạo. Cùng với đó là tone màu trầm của gỗ, màu xám của bộ ghế sofa cùng ánh sáng vàng của đèn thả trần giúp căn phòng khách trở nên lung linh hơn rất nhiều. Sự phối hợp tinh tế của các gam màu kết hợp cùng đồ nội thất trang trí mang đến một không gian phòng khách ấn tượng và cuốn hút cho ngôi nhà phố 2 tầng 8x10m.
Nội thất bếp và bàn ăn được kiến trúc sư tận dụng tối đa công năng đảm bảo không gian thoáng và tiện nghi nhất
Thiết kế bếp và bàn ăn là một phần quan trọng trong việc tạo ra không gian sống đẹp và hấp dẫn trong ngôi nhà. Việc tối ưu hóa thiết kế bếp và bàn ăn có thể giúp tạo ra một không gian gọn gàng và ngăn nắp, tạo cảm giác thoải mái và dễ chịu cho mọi người trong gia đình. Một phong cách thiết kế bếp và bàn ăn được tối ưu hóa là sử dụng đồ nội thất làm từ chất liệu gỗ. Gỗ là một chất liệu tự nhiên, có tính năng đẹp và ấm áp, tạo cảm giác gần gũi và thân thiện cho không gian. Sử dụng gỗ trong thiết kế bếp và bàn ăn cũng giúp tạo nên sự liền mạch và hài hòa với thiên nhiên, tạo ra một không gian sống gần gũi với môi trường xanh. Một trong những yếu tố quan trọng khác trong thiết kế bếp và bàn ăn là hệ thống chiếu sáng. Một hệ thống chiếu sáng thông minh và đáng yêu tại bàn ăn và khu vực nấu nướng có thể tạo ra một không gian ấm áp và thu hút. Ví dụ, một đèn treo trên bàn ăn có thể tạo ra một không gian rực rỡ và lãng mạn cho những bữa ăn gia đình. Còn một hệ thống chiếu sáng dưới phạm vi nấu nướng sẽ tạo ra một không gian sáng hơn, hỗ trợ việc chế biến và nấu ăn. Thiết kế bếp và bàn ăn tối ưu hóa không chỉ tạo nên không gian gọn gàng và ngăn nắp, mà còn mang lại cảm giác thoải mái và dễ chịu. Mỗi bữa ăn trong gia đình sẽ trở thành những khoảnh khắc đáng nhớ và thú vị trong không gian ấm áp này. Ví dụ, bàn ăn được thiết kế với đúng kích thước và kiểu dáng phù hợp, cung cấp đủ không gian cho mọi người ngồi và thưởng thức bữa ăn cùng nhau. Ngoài ra, bếp có đầy đủ không gian để tiếp nhận công việc nấu nướng và lưu trữ đồ dùng như nồi chảo, dụng cụ nấu ăn. Ngoài ra, một thiết kế bếp và bàn ăn tối ưu hóa cũng có thể tạo ra một không gian đa năng và linh hoạt. Ví dụ, bàn ăn có thể được thiết kế để có thể mở rộng và thu gọn tùy thuộc vào số lượng người sử dụng. Bếp cũng có thể được thiết kế với các kệ hoặc tủ để lưu trữ và sắp xếp đồ dùng nấu ăn một cách dễ dàng. Trên đây là một ví dụ về nội dung văn bản được viết dài hơn và mở rộng các ý quan trọng liên quan đến thiết kế bếp và bàn ăn tối ưu hóa. Việc tận dụng chất liệu gỗ, hệ thống chiếu sáng thông minh, mang lại cảm giác thoải mái và dễ chịu, cùng với không gian đa năng và linh hoạt, đó là những yếu tố quan trọng trong việc tạo ra một không gian sống đẹp và thú vị trong ngôi nhà.
Nội thất phòng ngủ master thiết kế hiện đại, tone màu sáng kết hợp cửa kính thông gió
Thiết kế phòng ngủ của ngôi nhà phố này, gia chủ ưu tiên sử dụng các gam màu sáng nhằm mang đến không gian mới mẻ, sang trọng và gần gũi. Đồng thời, gam màu không hề bị lỗi mốt, cũng không gây cảm giác nhàm chán, đồng thời rất dễ phối cùng các món đồ nội thất.
Mẫu nhà phố 2 tầng 8x10m mái lệch
Bên cạnh những ngôi nhà mái thái, mái bằng thì nhà phố 2 tầng 8x10m mái lệch cũng được nhiều gia đình săn đón. Dưới đây là một mẫu nhà 2 tầng mái lệch mà LG TECH gửi đến các bạn cùng tham khảo!
Phối cảnh nhà phố 2 tầng 8x10m mái lệch
Sở hữu phong cách kiến trúc hiện đại, mới mẻ và khác biệt so với những mẫu thiết kế nhà đẹp trước đây, mẫu nhà phố 2 tầng 8x10m mái lệch được kiến trúc sư giải quyết và xử lý một cách tinh tế. Mái nhà này là sự kết hợp hoàn hảo của 2 mái phẳng tách biệt, tạo sự chuyển động thị giác mới lạ. Đặc biệt, với hệ mái có độ dốc cao giúp tốc độ thoát nước mưa nhanh, không lo bị thấm nước nên chống thấm, chống mốc rất hiệu quả. Cùng với rìa mái rộng vươn xa giúp độ bao phủ được tốt hơn, tránh được thời tiết mưa gió hắt vào bên trong nhà.
Ngôi nhà được xây dựng theo kiểu hình khối vuông vức, tạo nên một sự cân đối và gọn gàng. Các góc cạnh sắc sảo và mạnh mẽ tạo nên một cái nhìn mạnh mẽ và cá tính cho ngôi nhà này. Đặc biệt, mái lệch độc đáo của ngôi nhà còn là một điểm nhấn độc đáo tạo nên một phong cách riêng và thu hút sự chú ý cho ngôi nhà. Với màu sắc trắng được sử dụng cho ngoại thất, ngôi nhà này trở nên trẻ trung và hiện đại. Màu trắng không chỉ làm nổi bật các yếu tố trang trí và ánh sáng mà còn tạo ra một môi trường sạch sẽ và thông thoáng. Đồng thời, màu trắng còn có khả năng phản chiếu ánh sáng tốt hơn so với các màu sáng khác, giúp ngôi nhà luôn được sáng sủa và tươi mới. Để minh họa cho những điểm mạnh của ngôi nhà, hãy xem xét ví dụ sau đây. Bạn đến thăm một ngôi nhà trong một khu dân cư mới. Ngay từ cái nhìn đầu tiên, ngôi nhà này chắc chắn sẽ gây ấn tượng mạnh mẽ cho bạn. Kiến trúc hình khối vuông vức và mái lệch tạo ra một cảm giác mạnh mẽ và cá tính cho ngôi nhà. Bạn có thể nhìn thấy sự cân đối và chắc chắn trong cấu trúc của ngôi nhà này. Khi bước vào ngôi nhà, sự trẻ trung và hiện đại của màu sắc trắng tràn ngập không gian. Ánh sáng từ bên ngoài được phản chiếu trên các bề mặt trắng, làm cho không gian trở nên rạng rỡ và tươi mới. Các vật liệu xây dựng chất lượng cao cũng đóng vai trò quan trọng trong việc làm nổi bật sự bền bỉ và độ ổn định của ngôi nhà. Bên cạnh đó, việc sử dụng màu trắng cho ngôi nhà còn đảm bảo rằng bạn có thể dễ dàng trang trí và thay đổi không gian theo phong cách và sở thích riêng của mình. Màu trắng tạo nền tảng hoàn hảo để bạn thể hiện sự sáng tạo và cá nhân hóa không gian sống của mình. Tổng kết lại, việc sử dụng kiến trúc hình khối vuông vức và mái lệch độc đáo cùng với màu trắng là một lựa chọn thông minh cho ngôi nhà này. Sự cá tính và độ bền của ngôi nhà được tạo ra từ kiến trúc và vật liệu xây dựng chất lượng cao, trong khi màu trắng mang lại sự trẻ trung, hiện đại và dễ dàng tùy chỉnh cho không gian sống.
Bản vẽ mặt bằng công năng nhà 2 tầng mái lệch
Mặt bằng tầng trệt: được bố trí 1 phòng ngủ, phòng khách rộng liên thông với phòng bếp và bàn ăn cùng nhà vệ sinh chung. Trước nhà được tận dụng làm khu vực sân vườn và khu vực để xe ô tô cũng như nơi giải trí và vui chơi của gia đình.
Mặt bằng công năng lầu 1: bố trí công năng gồm 2 phòng ngủ, khu vực đọc sách, phòng thờ và nhà vệ sinh chung. Tất cả không gian chức năng không chỉ đáp ứng nhu cầu sử dụng thoải mái mà còn đáp ứng yếu tố phong thủy nhằm mang đến tài lộc, may mắn cho gia đình.
Thiết kế nội thất nhà 2 tầng 8x10m mái lệch
Vẻ đẹp sang trọng, ấn tượng không chỉ dừng lại ở kiến trúc mặt tiền mà còn được kiến trúc sư ứng dụng vào trong không gian nội thất của mẫu nhà phố 2 tầng mái lệch. Màu trắng được sử dụng chủ đạo cho không gian bên trong ngôi nhà nhằm mang đến một không gian rộng rãi, thoáng đãng hơn.
Đầu tiên là phòng khách được bố trí gần với cửa chính đem lại không gian thư giãn, sum họp tiện nghi cho gia đình. Nội thất thiết kế bộ ghế sofa êm ái, phía dưới sàn được ốp gạch trang trí có gam màu đối lập nhằm tạo điểm nhấn thu hút. Thiết kế trần thạch cao kết hợp đèn thả trần, tăng thêm sự sang trọng, tinh tế cho không gian nội thất của ngôi nhà.
Bếp và bàn ăn của mẫu nhà phố 2 tầng 8x10m hiện đại sử dụng chất liệu gỗ công nghiệp chủ đạo, lối thiết kế đơn giản nhưng vô cùng ấm cúng. Đồ nội thất được sắp xếp và thiết kế kiểu dáng tối giản, màu sắc nhã nhặn cung cấp không gian sinh hoạt thoải mái và gần gũi.
Mẫu thiết kế nội thất phòng ngủ được sử dụng đồ nội thất gỗ cao cấp cùng với những đường nét trang trí tối giản, phù hợp với sở thích và gu thẩm mỹ của chủ nhân căn phòng. Ngôi nhà phố sở hữu diện tích không quá rộng rãi, song nội thất các phòng ngủ đều được kiến trúc sư sắp xếp, tính toán kỹ lưỡng và gọn gàng. Đặc biệt, kiến trúc sư còn chú trọng đến việc lấy sáng tự nhiên tràn ngập vào phòng để tạo cảm giác thư giãn và thoải mái khi sử dụng.
Tham khảo một số mẫu nhà phố 2 tầng 8x10m được ưa chuộng nhất
Để mang đến cho quý khách hàng nhiều lựa chọn hơn cho mẫu nhà phố 2 tầng 8x10m của mình, LG TECH xin giới thiệu thêm một số công trình khác cũng đang được rất nhiều gia chủ ưa chuộng. Hy vọng rằng đây sẽ là niềm cảm hứng cho khách hàng tìm thấy một mẫu nhà phố đẹp mắt mà mình yêu thích.
Mẫu nhà phố 2 tầng 8x10m phong cách hiện đại
Mẫu nhà phố 2 tầng 8x10m được thiết kế theo phong cách kiến trúc hiện đại hướng đến một không gian sống mở, gần gũi với thiên nhiên. Công trình này thường nổi bật với các mảng khối hình học nhô ra thụt vào độc đáo kết hợp cùng mảng cây xanh và vật liệu hiện đại trang trí như kính, gỗ, đá tự nhiên, gạch,… hòa quyện cùng màu sắc tươi sáng tạo nên một ngôi nhà tràn đầy sức sống và lôi cuốn.

Công trình có hình khối độc đáo, cân đối phù hợp với thị hiếu thẩm mỹ của nhiều chủ đầu tư hiện nay

Kiến trúc nhà hiện đại với mảng khối vuông vức vẫn trãi kết hợp cùng cây xanh đem đến vẻ đẹp sang trọng và gần gũi

Ngôi nhà được thiết kế hướng đến không gian mở, với những ô cửa kính trong suốt giúp căn nhà sáng sủa, thoáng mát hơn

Căn nhà tạo dấu ấn bởi thiết kế kiểu chữ L kết hợp mái bằng mang kiến trúc sang trọng và độc đáo

Công trình nhà phố 2 tầng 8x10m thiết kế đồng bộ từ cửa cổng cho đến kiến trúc mặt tiền hiện đại

Ngôi nhà gây ấn tượng mạnh mẽ với lối kiến trúc mới mẻ cùng màu sắc trang nhã
Mẫu nhà phố 2 tầng 8x10m phong cách tân cổ điển
Việc lựa chọn một mẫu nhà phố tân cổ điển không chỉ đơn thuần là vì vẻ đẹp đặc trưng và sang trọng mà nó mang lại mà còn vì nó còn mang trong mình một sự đổi mới và cách tân mới mẻ. Điều này có thể thấy rõ trong thiết kế của mẫu nhà phố tân cổ điển 2 tầng với kích thước đường nét và hoa văn trang trí. Vẻ đẹp của mẫu nhà phố tân cổ điển nằm ở sự hòa quyện giữa các chi tiết về hoa văn trang trí và bố cục hình khối. Những hoa văn trang trí được tính toán tỉ mỉ và chi tiết từ màu sắc, vật liệu, họa tiết cho đến vị trí xuất hiện. Điều này giúp tạo nên một không gian sống vô cùng lịch lãm và sang trọng. Ví dụ, các hoa văn trang trí trên cửa sổ và cửa chính được chế tác một cách tỉ mỉ, tạo nên một điểm nhấn đặc biệt. Các mảng màu sắc được sử dụng trong hoa văn cũng mang đến sự tươi mới và hài hòa cho căn nhà phố. Bố cục hình khối trong mẫu nhà phố tân cổ điển cũng vô cùng độc đáo. Kiến trúc sử dụng những hình khối đơn giản nhưng vẫn mang tính chất ấn tượng. Ví dụ, trụ cột kiên cố được sử dụng để tạo nên sự vững chắc và cũng là một điểm nhấn cho kiến trúc tân cổ điển. Những trụ cột này có thể được trang trí bằng các hoa văn tiết giảm, tạo nên một sự điệu đà và tinh tế.
Ngoài ra, các hình khối cũng được sắp xếp một cách tỉ mỉ và hợp lý để tạo nên sự cân đối và nhấn nhá cho căn nhà phố. Kích thước đường nét và hoa văn trang trí trong mẫu nhà phố tân cổ điển cũng đóng vai trò quan trọng. Đường nét của kiến trúc thường được thiết kế chắc chắn và sắc sảo, tạo nên một sự ổn định và mạnh mẽ cho căn nhà. Hoa văn trang trí cũng được sử dụng ở các vị trí chi tiết để tăng sự hài hòa và đẹp mắt cho tổng thể. Ví dụ, hoa văn trang trí trên khung cửa sổ và cửa chính thường được sắp xếp tương đối đều đặn và tạo nên điểm nhấn cho căn nhà. Mẫu nhà phố tân cổ điển thường có kích thước vừa phải và phù hợp với những khu đô thị hiện đại. Vì vậy, nó không chỉ mang đến vẻ đẹp đặc trưng của kiến trúc tân cổ điển mà còn thích hợp với nhu cầu sống hiện đại của mọi người.

Công trình nhà mái thái nổi bật so với những ngôi nhà xung quanh nhờ vào tone màu trắng tinh khôi và hình khối cân đối

Những chi tiết trang trí như phào chỉ, hoa văn đắp nổi trên mảng tường kết hợp với kiến trúc mái thái đem đến một ngôi nhà bề thế và sang trọng

Thiết kế kiến trúc mái thái cao ráo, hình chữ A có độ dốc lớn đem lại nhiều ưu điểm vượt trội về khả năng thoát nước và chống ẩm

Nhà phố 2 tầng 8x10m tân cổ điển tuy được tiết giảm tối đa về cách trang trí nhưng vẫn toát lên vẻ đẹp sang trọng, đẳng cấp
Mẫu nhà phố 2 tầng 8x10m 2 mặt tiền
Những mẫu nhà phố 2 tầng 2 mặt tiền mang phong cách hiện đại, sang trọng đang là xu thế nổi bật trên thị trường hiện nay. Đây là những công trình vừa đảm bảo không gian bên ngoài hài hòa mà còn mang lại sự tiện nghi và sang trọng bên trong. Ngoài ra, lợi thế của những ngôi nhà này là có 2 mặt tiền và sử dụng mảng cây xanh cùng hệ thống cửa kính lớn, giúp cho không gian luôn được tỏa sáng và thông thoáng với ánh sáng và gió trời từ bên ngoài.
Ngôi nhà phố hiện đại có diện mạo cá tính và bền vững nhờ những khối hình học và vật liệu trang trí

Thiết kế nhà phố 2 tầng 8x10m 2 mặt tiền hiện đại, trẻ trung và năng động

Căn nhà sinh động và bắt mắt với hình khối cùng gỗ nhựa màu nâu ốp trần và mảng cây xanh phủ mặt tiền

Kiểu nhà phố hiện đại luôn nhận được sự ưu ái bởi sự cách tân mới mẻ và tinh tế

Công trình nhà phố 2 tầng 8x10m được trang trí bởi các mảng khối vuông cùng đường nét đơn giản nhưng tinh tế

Với kiểu kiến trúc mái bằng hiện đại, tạo vẻ đẹp tương thích và đồng nhất với tổng thể ngôi nhà
Mẫu nhà phố 2 tầng 8x10m 3 phòng ngủ
Nhà phố 2 tầng có diện tích 8x10m và 3 phòng ngủ là một lựa chọn lý tưởng cho các gia đình có từ 3-5 thành viên. Để đáp ứng đầy đủ nhu cầu sinh hoạt, ngôi nhà thường được thiết kế theo phong cách hiện đại và đơn giản, mang đến sự thẩm mỹ và tiện nghi cho mọi thành viên trong gia đình. Việc lựa chọn phong cách này không chỉ đảm bảo tính thẩm mỹ mà còn mang lại sự tiện nghi và thoải mái cho gia đình.

Ngoại thất của ngôi nhà phố được thiết kế với phong cách hiện đại, tối giản

Mẫu nhà 2 tầng nhỏ nhưng vô cùng thông thoáng và gần gũi với thiên nhiên khi kết hợp cửa kính cùng mảng xanh

Căn nhà phố hiện đại kiểu dáng hình chữ L tận dụng bố trí sân vườn trước và gara ô tô

Thiết kế nhà phố 2 tầng năng động, trẻ trung và thoáng mát

Phối cảnh bản vẽ 3D thiết kế mẫu nhà phố 2 tầng 8x10m sang trọng và đẳng cấp
Chi phí thiết kế và thi công nhà phố 2 tầng 8x10m
Ngoài việc quan tâm đến những mẫu thiết kế nhà phố 2 tầng 8x10m ấn tượng và độc đáo thì chi phí xây nhà cũng được nhiều chủ đầu tư quan tâm hàng đầu. Để tính toán tổng chi phí xây nhà này, bạn có thể tham khảo cách tính như sau:
Chi phí xây nhà = đơn giá thi công x tổng diện tích sàn
Công ty LG TECH đã và đang không ngừng nâng cao chất lượng dịch vụ cũng như các sản phẩm độc đáo, mới mẻ nhằm đáp ứng nhu cầu của khách hàng. Mỗi một công trình đều là sự sáng tạo, tâm huyết và nhiệt huyết của đội ngũ nhân sự, không chỉ đáp ứng cho chủ nhà một công trình hoàn hảo mà còn tối ưu ngân sách hợp lý nhất.
Hy vọng thông qua bài viết chia sẻ những mẫu nhà phố 2 tầng 8x10m đẹp và sang trọng trên đã góp phần mang đến những ý tưởng thiết kế mới, sáng tạo cho quý khách hàng. Nếu bạn đang tìm kiếm một nhà thầu uy tín thì đừng quên liên hệ LG TECH để được tư vấn chi tiết nhé!







