10+ Mẫu nhà 1 tầng mái Nhật đẹp hiện đại, chi phí rẻ 2024
Hiện nay, kiến trúc Nhật Bản đang dần được ưa chuộng trong việc xây dựng nhà ở tại Việt Nam. Trong đó, nhà 1 tầng mái Nhật được xem là một mẫu nhà phổ biến và được nhiều chủ đầu tư yêu thích. Theo thời gian, mẫu nhà mái Nhật này đang dần thay thế cho các kiểu nhà được xây theo kiến trúc Pháp hay mái thái trước đó.
Nhà 1 tầng mái Nhật được thiết kế theo phong cách hiện đại, đơn giản và tiện nghi. Kiến trúc này thường có diện tích không quá lớn và hướng đến không gian mở, giúp tạo cảm giác rộng rãi và thoáng mát cho gia đình. Chính vì thế, trong bài viết này, LG Tech giới thiệu đến các bạn top 10+ mẫu nhà 1 tầng mái Nhật đẹp hiện đại, chi phí rẻ để bạn cùng tham khảo.
Nhà 1 tầng mái Nhật là gì?
Nhà 1 tầng mái Nhật được xem là một biểu tượng của kiến trúc Nhật Bản với vẻ ngoài độc đáo và đặc biệt. Điểm nổi bật của mẫu nhà này là mái lùn đặc trưng, mang lại một cảm giác thanh thuần và giản dị. Mái lùn này không chỉ là một phần quan trọng trong thiết kế nhà, mà còn thể hiện sự chú trọng đến sự thống nhất với thiên nhiên. Mái Nhật có độ dốc nhẹ hơn so với các kiểu nhà thông thường, điều này giúp cho nước mưa dễ dàng đổ xuống mà không gây tắc nghẽn hoặc sự mục nát của mái. Đặc biệt, với khí hậu lạnh và ít mưa của Nhật Bản, mẫu nhà này đã được xây dựng dựa trên nền tảng thiên nhiên của quốc gia này để đảm bảo hiệu suất tốt nhất trong thu hút, lưu thông và thoát nước. Một yếu tố quan trọng khác của nhà mái Nhật là thiết kế đặc biệt với các lớp chồng lên nhau và không gian mở rộng ra các hướng. Các lớp này không chỉ tạo ra một vẻ đẹp hài hòa và độc đáo cho ngôi nhà, mà còn tăng cường tính tương tác với thiên nhiên xung quanh. Chẳng hạn, ban công và cửa sổ lớn giúp tận hưởng không gian ngoại vi, nhìn ra vườn hoặc khu vực xanh xung quanh. Để có một cái nhìn rõ ràng hơn về nhà 1 tầng mái Nhật, hãy xem xét một ví dụ cụ thể. Giả sử chúng ta xây dựng một ngôi nhà mái Nhật nhỏ gọn trên một khu đất rộng. Nhà có một mái lùn với độ dốc nhẹ, giúp nước mưa dễ dàng thoát ra ngoài và không gây tắc nghẽn. Bên ngoài của ngôi nhà có những lớp chồng lên nhau, tạo ra một diện mạo hài hòa và mở rộng không gian sống. Phía trước nhà có một ban công lớn và các cửa sổ lớn, cho phép tận hưởng không gian xanh xung quanh và ánh sáng tự nhiên. Bên trong ngôi nhà, không gian được thiết kế theo phong cách truyền thống Nhật Bản với sàn nhà gỗ và cửa sổ kính lớn. Những không gian này không chỉ mang lại cảm giác dễ chịu và gợi nhớ với thiên nhiên, mà còn giúp tạo ra một không gian sống thoáng đãng và mở rộng hơn. Ngôi nhà có các phòng riêng biệt và phòng khách lớn để tiếp khách hoặc tụ tập gia đình. Ngoài ra, còn có một phòng ngủ với cửa sổ nhìn ra vườn hoặc khu vực xanh xung quanh, mang lại không gian yên tĩnh và thư giãn. Ví dụ trên chỉ ra rằng nhà 1 tầng mái Nhật không chỉ mang lại sự độc đáo và mới mẻ về mặt kiến trúc, mà còn tạo ra một không gian sống thoáng đãng, gần gũi với thiên nhiên. Thông qua việc sử dụng các lớp chồng lên nhau và không gian mở rộng ra các hướng, ngôi nhà này không chỉ đáng để sống mà còn mang lại sự gắn kết mạnh mẽ với môi trường xung quanh.

Tuy nhiên, để phù hợp với điều kiện khí hậu và thẩm mỹ kiến trúc tại Việt Nam, kiến trúc sư đã có một số điều chỉnh nhất định để phù hợp. Mẫu nhà 1 tầng mái Nhật là một ví dụ điển hình cho kiểu nhà mái Nhật tại Việt nam.
Thường mẫu nhà đẹp này có lối thiết kế đơn giản và tinh tế với các vật liệu tự nhiên như gỗ, đá và bê tông, nhấn cùng hệ thống cửa sổ, cửa ra vào có kích thước lớn để giúp lấy sáng và không khí tự nhiên vào bên trong nhà. Hơn nữa, mẫu nhà 1 tầng mái Nhật phù hợp cả thành thị lẫn nông thôn với chi phí vừa phải, không quá cao, phù hợp với nhiều gia đình Việt.
Tại sao nhà 1 tầng mái Nhật lại được ưa chuộng như thế?
Nhà 1 tầng mái Nhật là một loại hình nhà ở có nguồn gốc từ đất nước Nhật Bản. Kiểu nhà đẹp này được ưa chuộng và trở nên phổ biến trong các công trình kiến trúc tại Việt Nam bởi:
Nhà 1 tầng mái Nhật thiết kế đơn giản, tinh tế và gần gũi với thiên nhiên. Ngôi nhà sở hữu vẻ đẹp tối giản, sử dụng vật liệu trang trí hiện đại để kiến tạo nên một không gian sống thoáng và rộng rãi.
Nhà mái Nhật có độ đốc nhẹ, giúp việc thoát nước trở nên dễ dàng và đồng thời tăng khả năng chống chịu với các tác động của môi trường như nắng, mưa, gió,… điều này giúp ngôi nhà 1 tầng mái Nhật có thể trường tồn theo thời gian.

Kiến trúc mái Nhật có khả năng tương thích với nhiều loại hình kiến trúc và môi trường khác nhau, từ khu đô thị đông đúc cho đến khu vực nông thôn. Kiểu nhà này có thể được thiết kế theo nhiều phong cách khác nhau để phù hợp với mong muốn và nhu cầu của từng gia chủ.
Nhà 1 tầng mái Nhật tiết kiệm chi phí một cách tối đa. Cả chi phí thiết kế và xây dựng nhà hoàn thiện thì đều rẻ hơn so với nhiều loại hình nhà cao tầng khác. Chính vì thế mẫu nhà này thuộc nhiều phân khúc gia đình Việt. Thật tuyệt vời khi gia chủ vừa sở hữu một công trình thẩm mỹ, kiên cố và bề thế, vừa có một không gian sống thoáng đãng và mát mẻ, đặc biệt là tiết kiệm được một khoản chi phí đầu tư cho ngôi nhà.
Chi phí xây nhà mái Nhật 1 tầng trọn gói là bao nhiêu?
Chi phí xây nhà 1 tầng mái Nhật sẽ phụ thuộc vào nhiều yếu tố như diện tích xây dựng, vị trí, vật liệu, độ cao của ngôi nhà. Vì thế, không thể xác định chính xác chi phí xây trọn gói biệt thự 1 tầng mái Nhật mà phải xem xét các yếu tố trên.

Tuy nhiên, để các bạn có thể dự trù được chi phí xây nhà 1 tầng mái Nhật của mình, chúng tôi gửi đến bảng báo giá sơ bộ để bạn có thể tham khảo.
Bảng báo giá thiết kế biệt thự được tính theo m2 dựa theo phong cách mà bạn lựa chọn, theo đó:
– Phong cách hiện đại: 90.000đ – 110.000đ/m2
– Phong cách tân cổ điển: 130.000đ – 145.000đ/m2
– Phong cách cổ điển: 155.000đ – 170.0000đ/m2
Đơn giá thi công biệt thự sẽ được tính dựa trên m2, trong đó:
– Đơn giá thi công phần thô từ 3.400.000đ – 3.700.000đ/m2
– Đơn giá thi công hoàn thiện từ 5.000.000đ – 8.000.000đ/m2
*Lưu ý đây chỉ là bảng báo giá mang tính chất tham khảo, nếu bạn muốn báo giá một cách chính xác và chi tiết nhất, vui lòng liên hệ: 0937.100.202 để được hỗ trợ nhé, hoàn toàn miễn phí.
Top 10+ mẫu nhà 1 tầng mái Nhật hiện đại đẹp chi phí thấp
Tổng hợp 10+ mẫu nhà 1 tầng mái Nhật đẹp chi phí xây dựng thấp được LG Tech tuyển chọn, gửi đến các bạn cùng tham khảo và chiêm ngưỡng để có thêm phương án xây dựng nhà đẹp trong tương lai của gia đình mình nhé.
Mẫu nhà vườn mái Nhật 1 tầng
Ngoài việc quan tâm đến phần mái vườn và các phần chỉ ngang, ngôi nhà vườn mái Nhật 1 tầng còn có nhiều yếu tố khác đáng chú ý. Với kiến trúc Nhật Bản, sự tinh tế và sự cân đối là hai yếu tố quan trọng. Do đó, nhà vườn mái Nhật 1 tầng được xây dựng với sự chú trọng đến mỗi chi tiết. Nhìn chung, ngôi nhà vườn mái Nhật 1 tầng có kiến trúc đơn giản và thanh lịch. Ngôi nhà thường có hình thức chữ nhật, với các cửa sổ dọc trải dọc theo tường. Một số ngôi nhà có thể có thêm những chi tiết trang trí như dàn trải rộng trước cửa hay những cánh cửa trượt để kết nối lối vào nhà với sân vườn. Các cửa sổ cũng được thiết kế mở rộng để tận dụng ánh sáng tự nhiên và tầm nhìn. Bên trong ngôi nhà, không gian được sắp xếp sao cho thoáng đãng và tạo cảm giác gần gũi với thiên nhiên. Điều này thể hiện qua cách bố trí các cửa sổ và cửa ra vào, cho phép không khí và ánh sáng tự nhiên thẩm thấu vào căn nhà từ nhiều hướng khác nhau. Ngoài ra, ngôi nhà vườn mái Nhật 1 tầng thường có các yếu tố truyền thống như sàn gỗ, cửa trượt, và tường trên cao. Một điểm đặc biệt của ngôi nhà vườn mái Nhật 1 tầng là sân vườn. Sân vườn là một phần không thể thiếu trong kiến trúc Nhật Bản, và nó có vai trò quan trọng trong việc tạo ra cảm giác thoải mái và thư giãn. Sân vườn thường được trang trí với cây cỏ, cây hoa, cây bonsai và các phần trang trí như đèn trang trí và đá cảnh. Quan trọng nhất là sự xanh mát và sự yên bình của sân vườn, tạo nên một không gian tự nhiên tựa như thiên đường giữa chốn đô thị ồn ào. Ví dụ cụ thể về ngôi nhà vườn mái Nhật 1 tầng là ngôi nhà của gia đình A. Gia đình A đã xây dựng một ngôi nhà mái Nhật 1 tầng ở ngoại ô thành phố. Ngôi nhà được xây dựng trên một khu đất rộng, với một sân vườn xanh mát và cùng với đó là một hồ nước nhỏ làm nổi bật thêm vẻ đẹp tự nhiên của ngôi nhà. Ngôi nhà của gia đình A được thiết kế với phòng khách rộng lớn, có cửa sổ lớn nhìn ra sân vườn và hồ nước. Phòng khách được trang trí với các bức tranh Nhật Bản và các vật trang trí truyền thống. Phòng ngủ của gia đình A cũng có cửa sổ lớn và được trang bị nội thất hiện đại nhưng vẫn giữ nguyên phong cách Nhật Bản. Bên cạnh đó, gia đình A còn có một phòng làm việc và một phòng tắm với kiểu thiết kế kiến trúc Nhật Bản đặc trưng. Ngoài kiến trúc đẹp mắt, ngôi nhà vườn mái Nhật 1 tầng của gia đình A còn rất tiện nghi. Nhà được trang bị các tiện ích như máy điều hòa nhiệt độ, tivi, và internet để đáp ứng nhu cầu hàng ngày của gia đình. Gia đình A cũng đã sắp xếp sân vườn với bàn ghế và khu vực barbecue để có thể tổ chức các buổi tiệc ngoài trời và thưởng thức không gian xanh mát.

Phần chân tường ốp đá vân mây sạch sẽ với gam màu nâu kết hợp hệ trụ cột vuông chắc chắn tạo sự kiên cố và chắc chắn cho ngôi nhà. Cùng với hệ thống cửa kính khung nhôm xingfa bố trí khoa học, vừa đáp ứng sự hài hòa, tăng hiệu ứng thẩm mỹ, vừa giúp công trình đón sáng và gió từ bên ngoài vào. Mẫu nhà biệt thự hiện đại 1 tầng mái Nhật hứa hẹn mang đến một không gian sống thoáng mát và gần gũi với thiên nhiên.
Nhà vườn 1 tầng với ưu điểm là tất cả các không gian sinh hoạt đều được bố trí ở tầng trệt. Vì thế mà việc phân chia công năng các phòng sao cho đảm bảo kích thước, vị trí, thẩm mỹ cũng như phù hợp với yếu tố phong thủy giúp gia chủ sở hữu không gian nghỉ ngơi thoải mái nhất.
Từ phần sảnh chính bước vào là không gian phòng khách rộng rãi với đồ nội thất được bố trí gọn gàng, tiện nghi. Căn phòng nối liền với phòng thờ tạo sự thông thoáng cũng như tối ưu diện tích, chuẩn phong thủy mang đến tài lộc và may mắn cho gia đình. Bố trí 3 phòng ngủ sát bên cùng khu vực bếp và phòng ăn, nhà vệ sinh, khu vực giặt đặt cuối nhà, tất cả đáp ứng tính tiện nghi nhất cho gia đình.
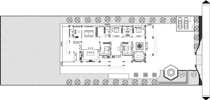
Mẫu nhà 1 tầng mái Nhật có gara ô tô
Gara ô tô trong ngôi nhà này không chỉ đơn thuần là một nơi để đậu xe mà còn mang đến cho căn nhà một cảm giác sang trọng và đẳng cấp. Ngay từ cái nhìn đầu tiên, mọi người có thể dễ dàng nhận thấy điểm nhấn đặc biệt của gara này là hệ thống sân vườn được thiết kế theo phong cách Nhật Bản hòa quyện với kiến trúc hiện đại, tạo nên một không gian mở rộng và lý tưởng. Được bao phủ bởi một sự kết hợp hài hòa giữa cây xanh và các chòi nghỉ, sân vườn rộng lớn trở thành một nơi lý tưởng để gia đình thư giãn và tận hưởng những khoảnh khắc yên tĩnh. Các cây xanh mát mẻ và cây cỏ xanh tươi tạo thành một bức tranh thiên nhiên sống động, mang lại sự tươi mới và sự thoáng đãng cho không gian xung quanh căn nhà. Cùng với đó, các chòi nghỉ được thiết kế độc đáo và tinh tế, mang đến sự thoải mái và tiện nghi cho các hoạt động ngoài trời như thư giãn, đọc sách hay tận hưởng những buổi trò chuyện cùng gia đình và bạn bè. Không chỉ sở hữu một sân vườn đẹp, ngôi nhà còn được trang bị hệ cửa kính trong suốt và khung nhôm màu nâu. Điều này mang lại cho không gian bên trong căn nhà một cảm giác thoáng đãng, mát mẻ và như được mở rộng ra. Nhờ vào việc sử dụng cửa kính trong suốt, ánh sáng tự nhiên dễ dàng tìm đường vào căn nhà, tạo cho không gian bên trong trở nên sáng sủa và rạng rỡ. Ngoài ra, khung nhôm màu nâu tạo điểm nhấn và tạo nên sự cân đối với màu sắc tổng thể của ngôi nhà, tạo nên một ấn tượng mạnh mẽ và hài hòa về mặt thiết kế. Kết hợp giữa sân vườn rộng lớn và hệ cửa kính trong suốt, ngôi nhà này không chỉ mang đến cho gia đình một không gian sống tiện nghi và thoải mái, mà còn tạo nên một môi trường sống gần gũi với thiên nhiên. Việc thả mình vào không gian yên tĩnh và trong lành của sân vườn, người ta có thể tận hưởng sự thanh bình và hòa mình vào vẻ đẹp tự nhiên xung quanh. Đồng thời, ánh sáng tự nhiên và không gian mở rộng của ngôi nhà khiến không gian bên trong trở nên thoáng đãng và tràn đầy năng lượng, giúp gia đình cảm thấy thật hài lòng và thoải mái mỗi khi trở về ngôi nhà này.

Bên cạnh đó, chúng ta không thể không nhắc đến phần mái Nhật độc đáo. Màu sắc xanh ghi hình chữ A bắt mắt có độ dốc vừa phải, giúp thoát nước dễ dàng, chống ẩm, chống thấm, chống nóng một cách hiệu quả, điều hòa không khí bên trong luôn mát mẻ và trong lành.
Từ sảnh chính bước vào nhà sẽ là phòng khách, căn phòng được thiết kế diện tích khá rộng và tiện nghi cho việc sinh hoạt chung của gia đình cũng như tiếp đón khách. Căn phòng nối liền cùng phòng thờ tạo sự kết nối chặt chẽ, rộng rãi cho không gian. Tiếp đến là phòng bếp + ăn được ngăn cách với phòng khách bằng vách lam gỗ, vừa tạo không gian riêng tư, vừa có sự liên thông với nhau.
Thiết kế 4 phòng ngủ phía đối diện, 1 phòng ngủ có nhà vệ sinh khép kín, đảm bảo sự riêng tư cho các thành viên trong gia đình sinh hoạt. Trung tâm nhà được bố trí tiểu cảnh xanh, tạo điều kiện cho việc gần gũi với thiên nhiên.
Nhà mái Nhật 1 tầng tân cổ điển
Ngoài ra, chất liệu gỗ tự nhiên được sử dụng rộng rãi trong kiến trúc nhà Nhật cũng góp phần tạo nên vẻ ấm cúng và gần gũi. Những chi tiết nhỏ như cửa gỗ tròn, cầu thang gỗ uốn lượn đều làm tăng sự sang trọng và độc đáo cho ngôi nhà. Ví dụ, hãy tưởng tượng bạn bước vào ngôi nhà Nhật này. Khi bạn cởi giày và đi vào phòng khách, ánh sáng tự nhiên từ cửa sổ lớn tràn đầy căn phòng, tỏa sáng trên những bức tường trắng tinh khôi và những họa tiết trang trí tinh tế. Bạn sẽ cảm nhận được sự thanh lịch và trang nhã trong từng chi tiết nhỏ như các tấm rèm mỏng mịn hay những bức tranh trừu tượng treo trên tường. Đi qua phòng khách, bạn sẽ tiếp tục nhìn thấy một căn phòng ăn được bài trí đẹp mắt với bàn ăn và ghế gỗ sang trọng. Bạn có thể nhìn thấy các chủ đề trang trí của nhà Nhật trong từng chi tiết như chậu bonsai trên bàn, các đèn trang trí bằng giấy Washi treo từ trần và các tấm biển thông báo viết bằng chữ Kanji. Với các chi tiết như vậy, ngôi nhà Nhật mang đến một không gian sống lý tưởng, vừa đẹp mắt và tinh tế, vừa gắn kết mọi thành viên trong gia đình. Vào ban đêm, ánh sáng từ các đèn trang trí tạo nên một không gian mơ mộng. Bạn có thể thấy những bức tranh nghệ thuật treo trên tường được chiếu sáng bởi ánh sáng mềm mại từ đèn, tạo ra một hiệu ứng màu sắc độc đáo. Những tia sáng điểm xuyến trên tường làm nổi bật những đường cong của các họa tiết hoa văn và tạo ra một không gian trưởng thành và lãng mạn. Với kiến trúc tân cổ điển và sự kết hợp của màu sắc, chất liệu và ánh sáng, ngôi nhà Nhật tạo ra một không gian sống đẹp mắt và độc đáo. Nó không chỉ là nơi để sống mà còn là một tác phẩm nghệ thuật mà người ta có thể trầm mình trong sự tĩnh lặng và yên bình.

Hệ thống cửa chính được làm từ chất liệu gỗ tự nhiên tạo sự ấn tượng, gần gũi nhưng không kém phần sang trọng. Cùng với hệ cửa sổ bằng chất liệu kính cường lực trong suốt, hệ trụ cột tròn kiên cố và khối vòm trước nhà đem đến sự bề thế và vững chắc cũng như vẻ đẹp cuốn hút của mẫu nhà tân cổ điển này.

Mặt bằng công năng nhà mái Nhật 1 tầng tân cổ điển được bố trí bao gồm 1 phòng khách, 4 phòng ngủ, 2 phòng ngủ có nhà vệ sinh khép kín, phòng bếp + ăn, phòng sinh hoạt chung, phòng vệ sinh chung và khu vực tập gym. Tất cả đều được phân chia công năng tiện nghi và khoa học, dựa trên mong muốn của các thành viên trong gia đình, đáp ứng sự thoải mái nhất.
Nhà vườn mái Nhật 1 tầng phong cách hiện đại
Mẫu biệt thự đẹp này mang đến không gian tràn ngập sức sống, nổi bật là trên nền màu sơn trắng chủ đạo kết hợp màu xanh của hệ mái, đan xen cùng màu xám của đá ốp phần chân tường góp phần mang đến vẻ đẹp thanh thoát và hài hòa cho công trình. Đặc biệt, phong cách thiết kế hiện đại không bị ràng buộc theo bất kỳ nguyên tắc nào, chính vì thế mà công trình được kiến tạo một cách độc đáo và phá cách mới mẻ.

Mẫu nhà 1 tầng mái Nhật phong cách hiện đại với thiết kế khá đơn giản, tập trung không gian mở để đem lại sự thoải mái và tiện nghi cho gia chủ. Điểm nổi bật của ngôi nhà chính là cách phối màu trang nhã, kiến trúc mái Nhật bề thế cùng vật liệu trang trí tối giản, không quá cầu kỳ nhưng vẫn toát lên nét đẹp sang trọng và tinh tế.
Bản vẽ mặt bằng công năng của nhà 1 tầng mái Nhật này bao gồm 3 phòng ngủ, 1 phòng khách, 1 phòng bếp + ăn, 1 phòng thờ, phòng vệ sinh chung. Ngôi nhà thiết kế công năng hướng đến không gian mở nên mỗi khu vực đề được bố trí hệ cửa kính hoặc cửa thông gió đáp ứng sự lưu khí tốt.
Mẫu nhà 1 tầng mái Nhật kết hợp sân vườn
Phương án thiết kế nhà 1 tầng mái Nhật sân vườn là kiểu nhà được rất nhiều gia chủ yêu thích ở các vùng nông thôn. Kiểu nhà được phối hợp và bài trí hài hòa giữa kiến trúc và cảnh quan sân vườn mang nét đẹp cá tính của gia chủ. Đặc biệt chi phí xây dựng mẫu nhà này không quá cao, phù hợp với túi tiền của đông đảo gia đình Việt.
Điểm nhấn của công trình chính là phần mái Nhật màu xanh, hệ thống trụ cột đắp nổi các đường gờ bắt mắt cùng với hình khối vuông vức tạo nên một công trình sang trọng và ấn tượng. Phần cửa chính và cửa sổ đều được thiết kế bằng kính cường lực giúp không gian trong ngôi nhà thông thoáng và tươi sáng hơn rất nhiều.

Ngôi nhà có chiều sâu, bao quanh nhà là tiểu cảnh sân vườn được trồng nhiều cây xanh, hoa lá gia tăng vẻ đẹp bắt mắt cho mặt tiền và tạo nên không gian thư giãn thoải mái cho các thành viên trong gia đình.
Mặt bằng công năng nhà mái Nhật 1 tầng này bao gồm có 3 phòng ngủ, 1 phòng khách, 1 phòng bếp + ăn, 1 phòng thờ, phòng vệ sinh chung. Công năng sử dụng dựa trên nhu cầu của từng thành viên mà kiến trúc sư bố trí hợp lý, đáp ứng nhu cầu sử dụng thoải mái.
Thiết kế nhà biệt thự 1 tầng mái Nhật 3 phòng ngủ
Mẫu nhà 1 tầng mái Nhật 3 phòng ngủ với toàn bộ sân vườn được thiết kế đồng bộ với mặt tiền kiến trúc mang đến một không gian sống hoàn hảo cho gia đình. Ngôi nhà với phần mái Nhật màu xanh gho nổi bật trên nền trắng tinh khôi của công trình, kết hợp với việc ốp đá trên mảng tường giúp hạn chế tình trạng bám rêu, bụi bẩn cũng như tăng tính thẩm mỹ cho ngôi nhà.
Kiến trúc nhà mái Nhật với khối mái chữ A có độ dốc nhẹ, giúp thoát nước mưa nhanh chóng, tránh tình trạng bị thấm nước, ảnh hưởng đến kết cấu chung của ngôi nhà. Đồng thời mái Nhật đem lại sự thoáng mát và mùa hè, ấm áp vào mùa đông, cũng như thể hiện tính thẩm mỹ, thu hút sự chú ý của người nhìn.
Kế phòng khách là khu vực bếp + ăn, chiếm một diện tích khá rộng lớn và được ngăn cách với phòng khách bởi vách lam gỗ. Khu vực phòng vệ sinh chung và giặt được bố trí sát phòng bếp, đảm bảo nhu cầu sinh hoạt tiện lợi. Bố trí 3 phòng ngủ cạnh nhau tại vị trí cuối nhà, 1 phòng ngủ lớn có tích hợp thêm nhà vệ sinh khép kín, đảm bảo sự riêng tư. Phòng thờ đặt phía trước nhà, song song với phòng khách, không gian phòng thờ thiết kế thoáng đãng và chuẩn phong thủy.
Nhà 1 tầng mái Nhật 4 phòng ngủ
Mẫu nhà 1 tầng mái Nhật này mang phong cách hiện đại, nhờ sự thiết kế tinh tế đã giúp ngôi nhà thỏa mãn được yêu cầu của chủ đầu tư khi kết nối giữa ánh sáng tự nhiên, gió trời từ bên ngoài vào. Tạo được sự mới lạ, nét đẹp ấn tượng cho tổng thể công trình.
Thiết kế giản đơn mà thu hút chính là cảm nhận của tất cả khi ngắm nhìn ngôi nhà 1 tầng mái Nhật này. Ngoại thất lựa chọn 2 tone màu chính, đó là gam màu trắng và gam màu xanh của hệ mái đem đến diện mạo mới mẻ, giản dị. Hệ cửa kính khung nhôm xingfa màu đen giúp ngôi nhà tận dụng tối đa ánh sáng từ bên ngoài. Ánh sáng và gió tự nhiên sẽ mang lại một không gian sống vô cùng thư thái và mát mẻ. Kết hợp tiểu cảnh xanh bao quanh nhà, khiến cho ngôi nhà bớt đi sự đơn điệu và nhàm chán.
Mặt bằng công năng nhà 1 tầng mái Nhật được bố trí bao gồm 4 phòng ngủ, 1 phòng ngủ master có diện tích lớn, tích hợp thêm nhà vệ sinh và phòng thay đồ riêng, 1 phòng khách, phòng bếp + ăn, 1 phòng vệ sinh chung, 1 phòng thờ, khu vực giặt phơi.
Mẫu thiết kế nhà vườn 1 tầng mái Nhật ở nông thôn
Mẫu nhà vườn 1 tầng mái Nhật được thiết kế hơi hướng kiểu truyền thống như phần mái Nhật màu xanh giúp ngôi nhà trở nên thời thượng hơn. Nét hiện đại của công trình được thể hiện qua vật liệu như kính cường lực, gỗ tự nhiên, giúp không gian bên trong thêm thông thoáng và tràn ngập ánh sáng tự nhiên.
Mẫu nhà 1 tầng mái Nhật ngoài ưu điểm thoát nước tốt, tránh ẩm mốc thì mái Nhật còn đem đến sự độc đáo và bề thế cho công trình. Gia chủ kết hợp trồng thêm cây xanh bao quanh nhà giúp thanh lọc không gian và làm tươi mát không gian hiệu quả trong mùa hè nóng bức.
Mặt bằng công năng phòng nhà 1 tầng được đội ngũ kiến trúc sư bố trí công năng khoa học. Ngay từ sảnh chính bước vào nhà là không gian phòng khách và tiền sảnh rộng rãi để đón tiếp khách và là nơi các thành viên trong gia đình có thể sinh hoạt thoải mái.
Bên trong là khu vực phòng bếp + ăn đặt gần sảnh phù của ngôi nhà giúp lấy nhiều gió và điều hòa không khí cho căn phòng. Tiếp đến là 3 phòng ngủ, 1 phòng ngủ master có nhà vệ sinh riêng, 1 phòng vệ sinh chung và lối ra sân sau nhà bố trí khu vực giặt cùng sân phơi có mái che.
Mẫu nhà 1 tầng mái Nhật sang trọng
Hệ trụ cột chắc chắn của ngôi nhà 1 tầng sử dụng kiến trúc mái Nhật là một điểm nhấn quan trọng trong thiết kế của nó. Trụ cột được xây dựng từ vật liệu chất lượng cao và được bố trí một cách hài hòa và đẹp mắt trên cả hai bên của ngôi nhà. Nhìn từ xa, ngôi nhà trở lên rất ấn tượng và kiên cố nhờ vào những trụ cột mạnh mẽ này. Bên cạnh đó, ngôi nhà còn có một khối vòm trước hiên nhà, tạo nên một điểm nhấn thú vị trong kiến trúc tổng thể. Khối vòm được thiết kế một cách tinh tế và phù hợp với phong cách mái Nhật, tạo nên sự hòa quyện hài hòa giữa các yếu tố kiến trúc của ngôi nhà. Với việc sử dụng khối vòm này, ngôi nhà trở nên độc đáo và thu hút sự chú ý từ xa. Màu sơn trắng chủ đạo được sử dụng trên toàn bộ ngôi nhà, tạo nên sự tinh tế và thanh nhã. Màu sơn này không chỉ mang lại cảm giác dịu nhẹ mà còn giúp làm tôn lên tính thẩm mỹ của kiến trúc. Màu xanh ghi của mái Nhật cũng đóng vai trò quan trọng trong việc tạo điểm nhấn cho ngôi nhà và tạo ra một sự cân đối màu sắc. Hai màu sắc này kết hợp nhau tạo nên một tổng thể hài hòa và tinh tế, mang đến cho ngôi nhà một vẻ ngoài sang trọng và đẳng cấp. Một điểm đặc biệt khác của kiến trúc ngôi nhà này là hệ bậc tam cấp, kết nối nhà với sân. Hệ bậc được thiết kế có độ dốc nhẹ, kết nối chặt chẽ giữa không gian trong nhà và không gian ngoài trời. Không chỉ đơn thuần là một phần của kiến trúc, hệ bậc còn tạo ra sự thu hút và kết nối giữa các không gian khác nhau trong ngôi nhà. Với việc sử dụng hệ bậc này, ngôi nhà trở nên không chỉ là nơi ở mà còn là một không gian giao thoa giữa nội thất và không gian xung quanh. Tổng thể, ngôi nhà 1 tầng sử dụng kiến trúc mái Nhật mang đến một cái nhìn hấp dẫn và đẳng cấp. Từ vẻ ngoài kiên cố và hài hòa đến sự tinh tế và thẩm mỹ của màu sơn, đến sự kết nối chặt chẽ và thu hút của hệ bậc tam cấp, ngôi nhà này được thiết kế để tạo ra một môi trường sống đẹp mắt và ấm cúng cho gia đình sử dụng.
Sảnh bên hông nhà tuy là sảnh phụ nhưng vẫn được thiết kế đầy đủ từ hệ bậc tam cấp, trụ cột tới khối vòm mái hiên kiên cố không thua kém gì với sảnh chính. Ngắm nhìn tổng thể công trình có sự kết nối thống nhất từ việc trang trí cho đến cách phối màu sắc vô cùng ăn ý, mang đến nét đẹp tinh tế và cuốn hút.
Mặt bằng công năng nhà 1 tầng mái Nhật được bố trí các tính năng hợp lý đảm bảo công năng tiện nghi nhất cho gia đình. Từ sảnh chính đi vào trong sẽ là phòng khách rộng rãi, đặt sát với hệ cửa chính tạo sự thông thoáng cho căn phòng. Phòng thờ được bố trí đối diện phòng khách, hướng ra trước nhà, thiết kế chuẩn phong thủy và lấy sáng hiệu quả.
Bên trong là phòng bếp + ăn, có lối ra sảnh phụ, vừa giúp lưu thông khí hiệu quả tránh đọng mùi thức ăn mà lại chuẩn phong thủy. Bố trí 3 phòng ngủ tiện nghi và thông thoáng, 1 phòng ngủ master có diện tích lớn, tích hợp nhà vệ sinh để đảm bảo không gian sinh hoạt riêng tư cho vợ chồng. Phòng vệ sinh đặt cuối nhà, sân sau tận dụng làm sân phơi và khu vực giặt.
Nhà vườn 1 tầng mái Nhật tối giản
Phối cảnh ngoại thất mẫu nhà 1 tầng mái Nhật được hoàn thiện từ sân vườn cho đến phối cảnh kiến trúc tổng thể. Khoảng sân phía trước rộng rãi và thoáng mát, nổi bật với thiết kế gạch màu xám trắng. Cùng với kiến trúc hiện đại mái Nhật luôn cho thấy sự cân đối, tối giản và tinh tế trong việc trang trí mặt tiền.
Hình khối kiến trúc mẫu nhà 1 tầng hiện đại khá kiên cố và chắc chắn. Phần chân tường được ốp gạch màu xám giúp bảo vệ tường khỏi những tác động xấu từ môi trường. Hệ thống cửa kính trong suốt, mảng tường nhấn đường gờ đắp nổi, tường ốp gạch, đây được xem là điểm nhấn ấn tượng của công trình.
Mặt bằng công năng của ngôi nhà 1 tầng mái Nhật bao gồm: phòng ngủ tích hợp cùng phòng thờ, phòng bếp + ăn, 3 phòng ngủ, phòng vệ sinh chung. Không gian nội thất được bố trí thuận tiện cho nhu cầu di chuyển cũng như đáp ứng không gian nghỉ ngơi thoải mái nhất cho các thành viên trong gia đình.
Thiết kế nhà 1 tầng mái Nhật giá rẻ
Mẫu nhà 1 tầng được thiết kế kiểu Nhật lợp ngói xanh tạo cảm giác dịu mắt và gần gũi cho công trình. Kiểu mái này sẽ giúp ngôi nhà trở nên mát mẻ vào mùa hè, ấm áp vào mùa đông nhờ chất liệu ngói có khả năng tản nhiệt tương đối tốt và hiệu quả.
Hệ thống cửa chính và cửa sổ là sự kết hợp tinh tế giữa cửa nhôm kính và cửa gỗ giúp đón sáng và tạo nét đẹp sang trọng cho ngôi nhà. Bên cạnh đó, bố cục không gian ngoại thất được thiết kế hình khối vuông vức, tạo sự liền mạch cùng hệ thống sân vườn bố trí cây xanh tươi mát đem đến cảm giác thư thái cho gia chủ.
Mặt bằng công năng nhà 1 tầng mái Nhật này bao gồm có 1 phòng khách rộng lớn, phòng bếp và ăn liên thông nhau, 2 phòng ngủ và nhà vệ sinh chung. Phòng khách được bố trí gần cửa ra vào giúp gia chủ có thể nghỉ ngơi và thư giãn thoải mái. Tiếp đến là phòng bếp + ăn được bố trí liên thông phòng khách, giúp kết nối phòng chức năng chặt chẽ. Bố trí 2 phòng ngủ và nhà vệ sinh cuối nhà, 1 phòng ngủ master có nhà vệ sinh riêng, đảm bảo không gian riêng tư cho vợ chồng gia chủ.







