Những mẫu thiết kế nhà nhỏ 4×10 hiện nay đang trở thành những công trình nhà ở phổ biến tại các khu vực đô thị đông đúc bởi quỹ đất xây dựng hạn chế. Và hơn nữa, chi phí thi công nhà diện tích nhỏ 4×10 không quá cao, phù hợp với đại đa số kinh tế của nhiều gia đình. Nếu bạn đang tìm hiểu và muốn xây dựng một mẫu thiết kế nhà nhỏ 4×10 đẹp, tiện nghi và tiết kiệm chi phí hãy tham khảo bài viết dưới đây.
Tuyển chọn 5+ mẫu thiết kế nhà nhỏ 4x10m đẹp tiết kiệm chi phí
Việc thiết kế một căn nhà nhỏ 410 luôn là thách thức dành cho nhiều chủ đầu tư, đặc biệt là khi cần phối cảnh mặt tiền và bố trí công trình sao cho hiệu quả và tiện nghi trên diện tích hạn chế 40m2. Dưới đây là một số đề xuất thiết kế nhà đẹp và tiện nghi, được nhiều gia chủ ưa chuộng nhất hiện nay.
Thiết kế nhà diện tích nhỏ 4x10m 5 phòng ngủ
Nhà nhỏ với diện tích 4×10 và 5 phòng ngủ này đã thu hút sự yêu thích và ưa chuộng của không ít gia chủ. Điều đáng chú ý là kiến trúc độc đáo và sáng tạo cùng màu sắc trắng chủ đạo tạo nên sự mới lạ cho căn nhà. Dù không rộng lớn, không gian trong nhà vẫn mang đến một cảm giác mở rộng, rộng rãi và hiện đại. Đặc biệt, sự kết hợp giữa cửa kính, cửa cổng và hàng rào được thiết kế theo một kiến trúc đồng nhất trên mặt tiền nhà, tạo ra một tổng thể hài hòa và thú vị.

Mặt bằng công năng tầng trệt được thiết kế gồm 1 phòng khách, phòng bếp + ăn, phòng vệ sinh chung và sân sau nhỏ. Không gian thiết kế đảm bảo sự tiện nghi và khoa học trong quá trình sử dụng cũng như sự thông thoáng giữa các phòng chức năng.

Công năng tầng lửng bố trí 1 phòng ngủ tiện nghi, có tích hợp nhà vệ sinh khép kín. Phòng thờ bố trí hướng ra trước mặt tiền, thiết kế thông tầng, đảm bảo sự lưu thông không khí luôn được diễn ra tạo cảm giác mát mẻ.

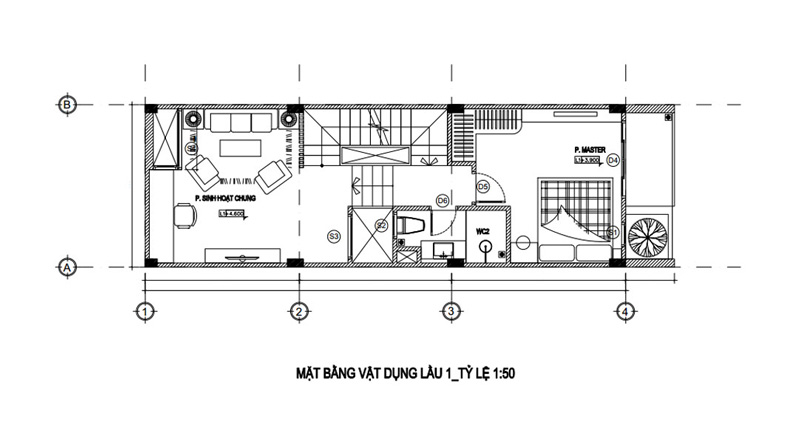
Lầu 1 bố trí bao gồm 2 phòng ngủ, 1 phòng vệ sinh chung. Công năng phòng ngủ đáp ứng tính riêng tư và sự thoải mái trong quá trình sử dụng cho các thành viên trong gia đình.

Mặt bằng lầu 2 bố trí tương tự như lầu 1, thiết kế 2 phòng ngủ và 1 phòng vệ sinh. Kiến trúc sư thiết kế công năng được tính toán chi tiết ngoài sự tiện nghi thì đảm bảo yếu tố phong thủy, một không gian nghỉ ngơi, thư giãn tối ưu nhất.

Công năng tầng tum được kiến trúc sư thiết kế sân thượng trước và sau. Sân thượng trước được gia chủ bố trí bàn ghế ngồi thư giãn kết hợp trồng cây xanh, sân thượng sau tích hợp khu vực giặt và sân phơi.

Thiết kế nhà nhỏ 4×10 3 phòng ngủ 1 phòng thờ
Hình khối mẫu nhà nhỏ 4×10 3 tầng có kiến trúc hình khối tối giản, mang đến cái nhìn sắc nét và khỏe khoắn. Việc xử lý tinh tế mặt tiền, từ hệ thống cửa cổng cho đến các mảng khối ban công và vật liệu trang trí đều được xử lý hài hòa, thống nhất mang đến điểm nhấn độc đáo và thu hút người nhìn.

- Dự án liên quan: Top 10 Mẫu nhà ống đẹp 3 tầng 4m thiết kế tối ưu chi phí
Việc bố trí phòng khách ngay bên cạnh cửa chính tầng trệt mang lại không gian thuận tiện và tận dụng ánh sáng và gió tự nhiên một cách tối đa. Cầu thang được đặt ở trung tâm tầng trệt, cho phép kiến trúc sư sử dụng khu vực này để thiết kế nhà vệ sinh chung, đồng thời, nhìn ngang qua cầu thang là một đồng cảnh xanh tươi mát. Khu vực cuối nhà dành cho bếp và bàn ăn được thiết kế sao cho thông thoáng và tránh tình trạng mùi thức ăn bám đọng.

Lầu 1 là không gian nghỉ ngơi riêng tư cho các thành viên trong gia đình. Phòng ngủ master có diện tích rộng rãi và tiện nghi. Bên cạnh là phòng vệ sinh chung, thiết kế thuận tiện cho nhu cầu di chuyển. Cuối nhà là phòng sinh hoạt chung của gia đình.

Công năng lầu 2 mẫu thiết kế nhà nhỏ 4×10 3 tầng này bố trí 2 phòng ngủ, diện tích tương đồng nhau, thiết kế tính toán khoa học và tiện nghi. Trung tâm nhà phố là cầu thang thông tầng và nhà vệ sinh chung.

Mặt bằng công năng sân thượng bao gồm phòng thờ hướng ra trước nhà, thiết kế theo không gian mở, đảm bảo không gian thoáng đãng và lưu thông khí. Phía bên trong là khu vực cầu thang thông tầng và khu vực giặt. Sân thượng trước dùng để trồng cây xanh và sân thượng sau sử dụng làm sân phơi.

Mẫu nhà diện tích nhỏ 4×10 có tầng hầm
Xu hướng thiết kế nhà diện tích nhỏ 4×10 có tầng hầm để tận dụng không gian và mở rộng công năng sử dụng, có thể đáp ứng một nơi để xe hoặc làm nhà kho được nhiều gia đình tại các khu vực thành phố ưa chuộng.

Khối kiến trúc mặt trc được thiết kế đẹp mắt với sự kết hợp của không gian mở và vật liệu kính trong suốt, cùng với trần cao và màu sơn tươi sáng, tạo nên một hình ảnh hài hòa giữa các màu chủ đạo nổi bật và sự ấm áp của cây xanh. Kết quả là một diện mạo tổng thể hấp dẫn và lôi cuốn mắt người nhìn.
Mẫu thiết kế nhà nhỏ 4×10 kết hợp kinh doanh
Xu hướng xây dựng nhỏ 4×10 kết hợp kinh doanh đang ngày càng phổ biến và được ưa chuộng tại các khu vực đô thị hiện nay. Ngoài việc tạo ra không gian thoải mái và tiện nghi để sống, kiểu nhà này còn mang lại thu nhập và giúp gia chủ tiết kiệm chi phí tối đa.

Mẫu thiết kế nhà nhỏ 4×10 này với phong cách kiến trúc hiện đại, trẻ trung và hình dáng nổi bật, đã thu hút ngay từ lần đầu nhìn. Điểm đáng chú ý của căn nhà là các khối hình độc đáo kết hợp với vật liệu trang trí như gỗ ốp tường màu nâu, cửa kính khung nhôm xingfa màu đen và lan can kính cùng với tiểu cảnh xanh bên trước. Trang trí đơn giản nhưng hài hòa và đẹp mắt, tạo nên một không gian sống gần gũi với thiên nhiên cây cảnh.
Mẫu nhà diện tích nhỏ 4x10m có gác lửng
Gác lửng là tầng trung gian giữa các tầng trong cùng một công trình nhà ở. Và ngày nay, với sự tăng dân số nhanh chóng, quỹ đất xây dựng bị thu hẹp nên những mẫu nhà phố gác lửng được nhiều gia đình ưa chuộng và lựa chọn. Khi vừa tiết kiệm được diện tích xây dựng vừa tạo được một ngôi nhà có kiến trúc độc đáo và xu hướng.

- Xem nhiều dự án nhà phố 4m: Top 15 mẫu thiết kế nhà phố 4m hiện đại HOT nhất hiện nay
Ngắm nhìn từ bên ngoài, công trình gác lửng đã được mở rộng chiều cao hơn so với các dự án nhà phố thông thường. Gác lửng mang lại không chỉ sự thông thoáng mà còn nét đẹp thẩm mỹ cao, cùng với nhiều tiện ích cho việc sử dụng, như bố còn mang lại sự thoải mái cho tất cả các thành viên trong gia đình.
Thiết kế nhà 4×10 3 tầng tân cổ điển
Trong lòng đô thị hối hả và đông đúc,hiều người tìm kiếm những công trình mang nét đẹp trang nhã, lịch lãm và thanh thoát, và kiến trúc tân cổ điển là điều họ tìm kiếm. Đặc biệt, mẫu thiết kế nhà nhỏ 4×10 đang trở thành lựa chọn phổ biến với các chủ đầu tư, vì nó không chỉ phù hợp với diện tích đất mà còn đáp ứng yêu cầu về thẩm mỹ và tiện nghi. Mẫu nhà này mang đến sự đẳng cấp, sang trọng và có sức hút đáng kinh ngạc.

Mẫu thiết kế nhà nhỏ 4×10 phong cách hiện đại
Phương án thiết kế nhà diện tích nhỏ 4×10 phong cách hiện đại được sơn tường tone màu trắng chủ đạo kết hợp với gam màu nâu gỗ và màu đen của khung cửa kính cùng lam sắt tạo điểm nhấn tương phản bắt mắt. Ngôi nhà này hướng đến sự tối giản trong từng đường nét kiến trúc, nhưng vẫn đảm bảo sự sang trọng, hiện đại và xu thế. Sự kết hợp giữa cây xanh, gỗ và cửa kính chính là giải pháp ưu Việt cho những căn nhà phố có diện tích hạn hẹp hiện nay và cũng là đặc trưng của phong cách hiện đại.

Mẫu nhà nhỏ 4x10m thiết kế tối giản
Mẫu thiết kế nhà nhỏ×10 theo phong cách tối giản mang đến những điểm vượt trội đầu tiên là vẻ đẹp trẻ trung và nhẹ nhàng được thể hiện qua sự hài hòa của các hình khối vuông vức và sự khỏe khoắn. Bày trí thông minh của mặt tiền, cửa chính, cửa sổ và ban công đã được thiết kế một cách khoa học và khéo léo để tận dụng ánh sáng và không khí tự nhiên, mang lại sự thoáng đãng và mát mẻ cho ngôi nhà của bạn. Các cửa sử dụng kính cường lực với khung nhôm xingfa sang trọng và phù hợp với kiến trúc chung của công trình. Bên cạnh đó, việc trang trí hệ thống cây xanh ở ban công cũng góp phần làm tăng tính hài hòa và gần gũi của không gian.

Thiết kế nhà nhỏ 4×10 có sân vườn
Mẫu thiết kế nhà phố này không quá phức tạp, phối hợp với sân vườn nhỏ phía trước để sử dụng làm chỗ đậu xe và trồng thêm một số cây xanh. Kết hợp với việc có tầng tum và ban công được bố trí với một số không gian xanh và sử dụng cửa kính hiệu quả, căn nhà có tầm nhìn đẹp, sang trọng và thu hút. Tông màu chủ đạo là trắng nhẹ nhàng, mang lại sự bình yên và thư giãn, cùng với sắc xanh tạo nên một không gian sống đầy sức sống cho ngôi nhà.

Các nguyên tắc thiết kế nhà nhỏ 4×10 (40m2) tối ưu không gian
Khi thiết kế một căn nhà nhỏ với diện tích 4×10 (40m2), có một số nguyên tắc cần tuân thủ để tối ưu hóa không gian sử dụng, đảm bảo sự thoải mái và tiện nghi cũng như tính thẩm mỹ cho không gian sống. Dưới đây là một số gợi ý để bạn tham khảo:
Sử dụng gam màu sáng chủ đạo
Tông màu sáng là một yếu tố quan trọng trong thiết kế nhà nhỏ có diện tích 4×10, giúp tối ưu không gian và tạo cảm giác rộng rãi. Để sơn và trang trí ngôi nhà, chúng ta có thể lựa chọn các gam màu pastel, kem, be, xám và trắng làm màu chủ đạo. Những tông màu sáng này không chỉ có khả năng phản chiếu ánh sáng tốt hơn mà còn tạo điểm nhấn cho không gian, giúp nó trở nên thoáng đãng và hạn chế cảm giác chật chội tối đa.

Tạo không gian mở thông thoáng
Nhằm mang đến một cảmác không gian m rộng hơn, quý khách có thể tạo ra một không gian thông thoáng bằng cách tránh sử dụng quá nhiều vật liệu chia tường. Thay vì xây các tường ngăn cách giữa các không gian, quý khách có thể thay thế chúng bằng các giải pháp như vách kính hoặc vách lam gỗ để tạo ra một không gian liên thông. Điều này sẽ giúp các không gian kết nối với nhau hơn, tạo cảm giác thông thoáng và diện tích như được mở rộng ra.

Lựa chọn đồ nội thất thông minh
Khi lựa chọn đồ nội thất, chúng ta cần đặc biệt chú trọng đến tính thông minh và tính đa năng của các món đồ. Với diện tích nhỏ, việc chọn quá nhiều đồ nội thất sẽ làm không gian trở nên chật chội. Thay vào đó, chúng ta nên ưu tiên những món đồ đa năng, có thể sử dụng cho nhiều mục đích khác nhau. Tránh chọn những món đồ cầu kỳ hoặc nhiều họa tiết hoa văn, vì chúng có thể làm cho không gian trở nên rối mắt và chiếm diện tích sử dụng.

Tận dụng tối đa khoảng trống
Một nguyên tắc quan trọng khác trong thiết kế nhà nhỏ 4×10 là tận dụng tối đa khoảng trống. Đều muốn không gian sống của mình trở nên rộng rãi và gọn gàng mà không cần phải làm thay đổi diện tích? Hãy không để các góc chết, vách tường, gầm cầu thang trở thành vùng không sử dụng. Hay nên tận dụng chúng để treo đồ, tận dụng không gian lưu trữ và trang trí nội thất bằng cách sử dụng giá treo tường, kệ sách treo hoặc giá đỡ. Bên cạnh đó, bạn cũng có thể bố trí cây xanh tại các góc chết và sử dụng gầm cầu thang làm không gian nhà vệ sinh hoặc nhà kho. Nhờ tận dụng khoảng trống này, không gian sống của bạn sẽ trở nên rộng rãi hơn, ngôi nhà sẽ trông gọn gàng và đáng sống hơn mà không cần chiếm diện tích của diện tích. Với những nguyên tắc này, việc tận dụng không gian trong thiết kế nhà nhỏ sẽ trở nên dễ dàng và hiệu quả hơn.

Tối ưu hóa ánh sáng tự nhiên
Một nguyên tắc quan trọng tiếp theo trong thiết kế nhà diện tích nhỏ 4×10 là tận dụng tối đa ánh sáng tự nhiên từ bên ngoài để làm sáng và mở rộng không gian trong nhà. Bạn có thể tạo điều kiện cho ánh sáng tự nhiên thẩm thấu vào ngôi nhà bằng cách sử dụng các loại cửa sổ thông phòng, cửa sổ trần và cửa sổ lớn. Điều này giúp ánh sáng tự nhiên lan tỏa khắp căn phòng mà không bị che khuất bởi các vật liệu hay rèm cửa quá dày đặc. Việc này sẽ tạo ra không gian sống rộng rãi và thoáng đãng hơn.

Sử dụng đồ nội thất đụng trần
Đồ nội thất đụng trần cũng là một giải pháp tuyệt vời để tận dụng không gian lưu trữ trong ngôi nhà nhỏ. Chúng ta có thể chọn các loại tủ kệ cao sát trần như tủ quần áo hoặc tủ bếp để lưu trữ đồ đạc tiện nghi.

Nếu bạn đang tìm kiếmột lựa chọn thích hợp cho việc xây dựng nhà phố của bạn, đảm bảo nó phù hợp với nhu cầu sử dụng, tính thẩm mỹ và chi phí. Hãy liên hệ với LG Tech để được hỗ trợ tư vấn bởi các kiến trúc sư chuyên nghiệp.







