Không quá cầu kỳ hay phô trương, những mẫu nhà 1 trệt 1 lầu mái Thái ghi điểm trong mắt mọi người bởi lối kiến trúc đơn giản mà sang trọng. Sự kết hợp tinh tế giữa kiến trúc truyền thống gần gũi cùng sự phá cách mới mẻ của nét đẹp hiện đại cùng công năng khoa học, không gian sống gần gũi thiên nhiên, mát mẻ đã khiến những mẫu nhà đẹp này ngày càng được đón nhận và yêu thích. Dưới đây, LG Tech xin giới thiệu các mẫu nhà 1 trệt 1 lầu mái Thái được ưa chuộng nhất trong thời gian vừa qua, cùng tìm hiểu nhé!
Tại sao những mẫu nhà 1 trệt 1 lầu mái Thái được yêu thích?
Những mẫu nhà 1 trệt 1 lầu mái Thái được lựa chọn và yêu thích bởi công trình này có nhiều ưu điểm vượt trội không chỉ về phong cách kiến trúc mà còn sở hữu nhiều tính năng vượt trội. Dưới đây là một số nguyên nhân chính mà ngôi nhà mái Thái được nhiều chủ đầu tư xây dựng:
- Tính thẩm mỹ cao: Mái Thái là kiểu mái có độ dốc lớn, giúp thoát nước nhanh chóng, chống thấm hiệu quả. Đồng thời, mái Thái cũng tạo nên vẻ đẹp sang trọng, bề thế cho ngôi nhà.
- Phù hợp với khí hậu Việt Nam: Khí hậu Việt Nam có đặc trưng là nóng ẩm mưa nhiều. Mái Thái có khả năng chống nóng, chống thấm tốt, giúp ngôi nhà luôn mát mẻ, khô ráo.
- Tận dụng không gian hiệu quả: Kiểu nhà 1 trệt 1 lầu có thể đáp ứng nhu cầu sinh hoạt của gia đình từ 3-5 người. Tầng trệt có thể bố trí phòng khách, phòng bếp, phòng ăn, phòng ngủ,… Tầng lầu có thể bố trí phòng ngủ, phòng thờ, phòng sinh hoạt chung,…
- Chi phí xây dựng hợp lý: Chi phí xây dựng nhà 1 trệt 1 lầu mái Thái tương đối hợp lý, phù hợp với điều kiện kinh tế của nhiều gia đình hiện nay.
Tại sao những mẫu nhà 1 trệt 1 lầu mái Thái lại được yêu thích nhiều đến thế?
Top những mẫu nhà 1 trệt 1 lầu mái Thái đẹp ấn tượng nhất
Trong cuộc sống hiện nay, những mẫu nhà 1 trệt 1 lầu đẹp mái Thái không còn quá xa lạ mà ngày càng được nhiều gia đình lựa chọn làm không gian sống cho gia đình bởi ngôi nhà ở hữu vẻ đẹp sang trọng, bền vững và không bị lỗi thời theo thời gian. Dưới đây, LG Tech đã tổng hợp các mẫu nhà lầu mái Thái đẹp thịnh hành nhất năm mà bạn có thể tham khảo!
Mẫu nhà 1 trệt 1 lầu mái Thái hiện đại
Ngoại thất mẫu nhà 1 trệt 1 lầu mái thái dưới đây là sự kết hợp hài hòa giữa nét đẹp truyền thống và hiện đại. Kiến trúc mái Thái truyền thống mang đến sự bề thế, uy nghi cho ngôi nhà. Phong cách hiện đại thể hiện qua những đường nét đơn giản, khỏe khoắn.
Mẫu nhà 1 trệt 1 lầu mái Thái hiện đại có sự đặc biệt và độc đáo trong việc sắp đặt hệ thống cửa kính. Những chiếc cửa kính này không chỉ tạo ra một nguồn ánh sáng tự nhiên cho ngôi nhà màòn giúp không gian bên trong trở nên thoáng đãng và tươi mát. Một ví dụ cụ thể để minh họa cho sự ưu việt của hệ thống cửa kính trong mẫu nhà này là việc sử dụng khung nhôm xingfa màu đen kết hợp với màu sơn ngoại thất trắng tinh khôi.
Sự kết hợp này tạo nên sự tương phản ấn tượng, giúp ngôi nhà nổi bật hơn và mang đến một vẻ đẹp lịch lãm và thu hút. Với cách bố trí cửa kính thông minh, ngôi nhà có thể tận dụng tối đa nguồn ánh sáng tự nhiên từ mặt trời trong suốt cả ngày. Ngoài ra, sự lắp đặt cửa kính cũng giúp tạo ra một mối liên kết hợp lý giữa không gian ngoại thất và không gian nội thất của ngôi nhà. Những cái cửa kính lớn được lắp đặt ở phòng khách và phòng ngủ chính giúp ngôi nhà trở nên mở ra, tạo cảm giác rộng rãi và thoáng đãng cho các phòng.
Hơn nữa, sử dụng cửa kính trong thiết kế nhà cũng tạo ra một liên kết tương tác giữa không gian trong nhà và không gian ngoài trời. Khi có một mảnh cửa kính lớn mở ra, cảnh quan bên ngoài sẽ được hòa quyện với không gian trong nhà, mang lại cảm giác gần gũi với thiên nhiên và tạo ra một không gian sống thân thiện và thoải mái. Ví dụ, một căn nhà 1 trệt 1 lầu mái Thái hiện đại có sử dụng cửa kính thông minh với một mảnh kính lớn ở phòng khách, tạo ra một khoảng không gian liên kết với vườn hoa và bể cá phía ngoài.
Khi mở cửa kính này, không gian trong nhà được mở rộng ra và tận hưởng được không khí trong lành và cảnh quan xanh mát từ vườn hoa. Đây thực sự là một cách tuyệt vời để gia đình tận hưởng không gian sống và liên kết với thiên nhiên. Tóm lại, mẫu nhà 1 trệt 1 lầu mái Thái hiện đại không chỉ đơn giản và hiện đại, mà còn giữ được nét truyền thống quyến rũ. Chi tiết đặc biệt về hệ thống cửa kính trong ngôi nhà này mang đến không gian sống thoáng đãng và tươi mát, mang lại một cảm giác rộng rãi và gần gũi với thiên nhiên.
Mẫu nhà 1 trệt 1 lầu mái Thái tân cổ điển
Phong cách kiến trúc tân cổ điển có nguồn gốc từ Châu u, là sự kết hợp hoàn hảo giữa nét đẹp cổ điển và hiện đại. Kiến trúc nhà 1 trệt 1 lầu mái Thái tân cổ điển không quá chú trọng đến sự cân đối của hình khối hay nhiều chi tiết trang trí cầu kỳ, phức tạp. Mà thay vào đó là sự chú trọng đến những tỷ lệ vàng chuẩn chỉ, những mảng khối hình vuông, hình vòm cùng trụ cột đơn giản, nhấn họa tiết tại đầu và chân cột trụ để tôn lên nét đẹp sang trọng và kiêu sa cho ngôi nhà.

Ngôi nhà mái Thái đẹp với mặt tiền rộng rãi, sân vườn rộng thoáng cùng hệ mái Thái màu xanh ấn tượng

Ngôi nhà 1 trệt 1 lầu thiết kế tối giản các họa tiết hoa văn trang trí nhưng vẫn đáp ứng vẻ đẹp sang trọng

Ngôi nhà 2 tầng mái Thái gây ấn tượng bởi mảng trụ cột và hình khối kiên cố cùng họa tiết trang trí tinh tế

Ngôi nhà có sân vườn trước rộng thiết kế kiến trúc sang trọng, trang nhã

Mẫu nhà phố 1 trệt 1 lầu mái Thái với toen màu trắng làm chủ đạo kết hợp hệ thống cửa sơn đen tạo sự tương phản tinh tế
Mẫu nhà 1 trệt 1 lầu mái Thái chữ L
Nhà lầu mái Thái chữ L được triển khai xây dựng theo phương án tối ưu, thiết kế khoa học và hiện đại, hình khối kiến trúc hướng đến sự đơn giản hóa nhưng thể hiện được sự khỏe khoắn và bề thế. Ngắm nhìn tổng thể, ngôi nhà chữ L mái Thái trông thanh thoát và đẹp mắt bởi các vật liệu trang trí như, kính, gỗ, nhôm, đá… hòa quyện cùng các gam màu trung tính như trắng, xám, nâu,… đã mang đến một tổng thể vô cùng ấn tượng.
Với kiểu dáng chữ L, tận dụng điểm khuyết để làm tiểu cảnh sân vườn cũng như khu vực để xe, đem lại không gian sống gần gũi với thiên nhiên cũng đáp ứng công năng sử dụng tiện nghi cho gia đình chủ đầu tư.
Nhà 1 trệt 1 lầu mái Thái chữ L tô điểm các phào chỉ tối giản kết hợp hình khối vuông vức

Điểm nhấn của ngôi nhà mái Thái này chính là sự phối hợp màu sắc hài hòa trong tổng thể

Mẫu nhà chữ L 1 trệt 1 lầi mái Thái thiết kế tối giản, không xuất hiện quá nhiều chi tiết trang trí cầu kỳ

Ngôi nhà toát lên nét đẹp trẻ trung và sinh động nhưng không kém phần cá tính

Phối cảnh nhà 1 trệt 1 lầu mái Thái này toát lên vẻ đẹp sang trọng từ vật liệu cho đến màu sắc trang trí đều mang tính đồng điệu và gần gũi
Mẫu nhà 1 trệt 1 lầu mái Thái 5x20m
Những mẫu nhà 1 trệt 1 lầu mái Thái 5x20m thường được xây dựng tại các khu vực đô thị, nơi có đông dân cư sinh sống. Mẫu nhà đẹp này thường thiết kế theo phong cách kiến trúc hiện đại, tối giản và gần gũi tạo cảm giác thân thuộc. Kết hợp gam màu chủ đạo là những gam màu trung tính, trẻ trung điểm xuyết cùng cây xanh, hệ thống cửa kính trong suốt, mang lại một không gian thoáng đãng, gần gũi thiên nhiên.
Việc sử dụng cửa kính có bố trí khoa học và kích thước lớn mang lại nhiều lợi ích đáng kể cho căn nhà. Đầu tiên, việc loại bỏ mảng tường bê tông thô cứng giữa các không gian trong căn nhà giúp tạo ra một không gian mở, thông thoáng và rộng rãi hơn. Nhờ vào cửa k có kích thước lớn, không gian view ra sân vườn hoặc các không gian mở khác có thể được tận dụng tối đa, tạo cảm giác thoải mái và gần gũi với thiên nhiên.
Thêm vào đó, việc sử dụng cửa kính lớn cũng giúp mang ánh sáng và gió trời vào nhà một cách tối ưu. Ánh sáng tự nhiên là một yếu tố quan trọng trong thiết kế căn nhà, nó không chỉ tạo cảm giác sáng sủa và tươi mát, mà còn giúp tiết kiệm năng lượng và giảm bớt sự phụ thuộc vào ánh sáng nhân tạo. Với cửa k có kích thước lớn, nhiều ánh sáng tự nhiên có thể lọt vào trong nhà, cho phòng đón nắng và không gian sinh hoạt chung như phòng khách, phòng bếp trở nên sáng hơn.
Bên cạnh ánh sáng, việc sử dụng cửa kính còn giúp thông thoáng không gian và đảm bảo sự lưu thông của gió trời. Khi mở cửa kính, không khí tươi mát từ bên ngoài có thể dễ dàng thông qua và tuần hoàn trong nhà, tạo cảm giác thoải mái và dễ chịu cho cư dân. Đặc biệt, với cửa k có bố trí khoa học, có thể tạo được hiệu ứng “chuông gió” – một luồng gió tự nhiên từ bên dưới đến bên trên trong ngôi nhà, giúp làm mát không gian và cải thiện không khí bên trong. Cửa kính cũng là một giải pháp phổ biến dành cho các căn nhà phố hiện đại tại các khu vực thành thị có diện tích xây dựng hạn chế. Trên thực tế, trong các khu đô thị đã phát triển, không gian xanh và sân vườn thường bị hạn chế.
Tuy nhiên, việc sử dụng cửa kính có kích thước lớn sẽ giúp mở rộng không gian nhìn ra bên ngoài và cũng tạo thêm sự kết nối giữa nhà và môi trường xung quanh. Điều này giúp tận dụng tối đa không gian và tạo cảm giác thoáng đãng cho căn nhà, khiến nó trở nên hài hòa với thiên nhiên và môi trường xung quanh. Có thể dùng ví dụ để minh họa cho việc sử dụng cửa kính có bố trí khoa học và kích thước lớn trong thiết kế căn nhà.
Ví dụ, một căn nhà phố có diện tích xây dựng hạn chế có thể sử dụng cửa kính lớn ở phần cửa chính nhà. Thay vì một chiếc cửa gỗ thông thường, gia chủ có thể lựa chọn một cửa k có khung kính đẹp mắt và kích thước lớn. Nhờ vậy, khi mở cửa, không gian phòng khách sẽ được mở ra và liên kết một cách tự nhiên với không gian sân trước hay hẻm phố, tạo cảm giác không gian mở rộng và tươi mát hơn.

Mẫu nhà phố 1 trệt 1 lầu mái Thái hơi hướng phong cách tân cổ điển

Phương án thiết kế nhà 1 trệt 1 lầu 5x20m nổi bật với tone màu trắng tinh khôi làm chủ đạo

Nhà phố 5x20m 2 tầng kết hợp sân vườn cây xanh bát ngát

Mẫu thiết kế nhà 1 trệt 1 lầu mái Thái 5x20m đang được rất nhiều người yêu thích

Đơn giản, nhẹ nhàng không quá cầu kỳ nhưng công trình vẫn toát lên vẻ đẹp trang nhã
Mẫu nhà 1 trệt 1 lầu mái Thái 5x15m
Những mẫu nhà 1 trệt 1 lầu mái Thái 5x15m hiện diện một cách đầy thu hút với kiến trúc hiện đại, nhẹ nhàng. Ngôi nhà sở hữu hình khối đơn giản và độc đáo, phối cùng màu sắc trung tính hài hòa cùng vật liệu xây dựng hiện đại như kính, đá, nhôm, sắt,… tạo nên những điểm nhấn mới mẻ cho công trình. Các họa tiết trang trí hầu hết đều tối giản hết mức nhưng vẫn tạo được hiệu ứng đầy mới mẻ và sang trọng, cũng như đem lại một không gian sống tràn đầy năng lượng.
Công trình nhà 2 tầng mái Thái 5x15m này thường sẽ chú trọng đến không gian sống thông thoáng và tiện nghi, hướng đến không gian mở, rộng rãi và tối giản các chi tiết rườm rà nhưng vẫn đáp ứng hiệu ứng thẩm mỹ cao.

Hệ thống cửa kính phân bố khoa học vừa gia tăng tính thẩm mỹ vừa giúp ngôi nhà 1 trệt 1 lầu 5x15m lấy sáng hiệu quả

Căn nhà 1 trệt 1 lầu này gây sự chú ý bởi những phào chỉ đắp nổi ấn tượng trên mảng tường

Mẫu nhà 1 trệt 1 lầu 5x15m mái Thái theo phong cách kiến trúc hiện đại

Phối cảnh 3D nhà 1 trệt 1 lầu mái Thái sở hữu nét đẹp hiện đại và truyền thống
Mẫu nhà 1 trệt 1 lầu mái Thái kiểu biệt thự
Những căn nhà 1 trệt 1 lầu mái Thái kiểu biệt thự thường xuất hiện nhiều tại các vùng nông thôn, nơi có diện tích đất lớn để xây dựng. Bên cạnh một công trình kiên cố và bề thế thì những mẫu nhà này còn tích hợp sân vườn rộng rãi, tiểu cảnh xanh hoặc có thêm hồ bơi để thư giãn cho gia đình.
Mẫu nhà 1 trệt 1 lầu mái Thái ở nông thôn
Mẫu nhà 1 trệt 1 lầu mái Thái ở nông thôn luôn nhận được sự yêu thích của nhiều chủ đầu tư hiện nay bởi vẻ đẹp thẩm mỹ cao cùng nhiều tính năng vượt trội của công trình đem lại. Hệ mái Thái với tính năng chống ẩm, chống mốc và thoát nước nhanh chóng vừa đảm bảo ngôi nhà bền vững theo thời gian, đồng thời mái Thái còn đem đến giá trị thẩm mỹ cao cho kiến trúc.
Căn nhà 1 trệt 1 lầu mái Thái ở nông thôn hướng đến một không gian mở, kết hợp các mảng khối đua rộng và sắp xếp theo sự chuyển tiếp tự nhiên. Mặt tiền cực kỳ thoáng đãng và cao ráo kết hợp cùng cửa kính, hệ mái Thái nên không gian bên trong luôn mát mẻ và ngập tràn ánh sáng tự nhiên.
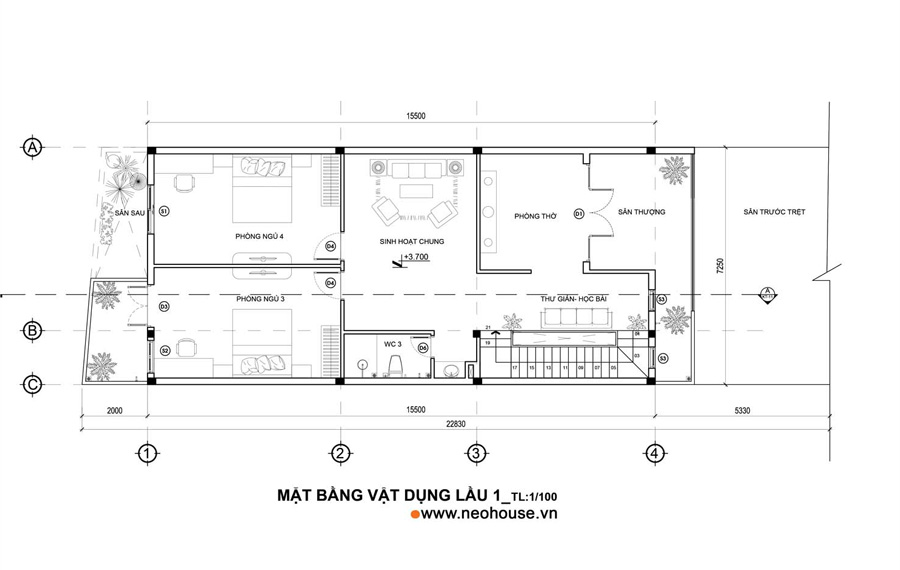
Bố trí mặt bằng công năng nhà 1 trệt 1 lầu mái Thái khoa học
Ngoài một kiến trúc nhà 1 trệt 1 lầu mái Thái đẹp và ấn tượng thì việc bố trí mặt bằng công năng tiện nghi, đáp ứng nhu cầu sử dụng cho các thành viên trong gia đình là điều hết sức cần thiết. Dưới đây là ý tưởng bố trí nhà 2 tầng mái Thái mà bạn có thể tham khảo để lên phương án bố trí cho ngôi nhà trong tương lai của gia đình mình.

Nhìn vào bản vẽ mặt bằng tầng trệt, chúng ta có thể thấy từ cửa chính tiến vào trong nhà, đầu tiên là không gian phòng khách đặt sát cửa chính, căn phòng rộng rãi, đối diện là cầu thang thông tầng, đảm bảo cho quá trình di chuyển thuận lợi cũng như giúp căn phòng thoáng đãng. Tiến vào trong là khu vực bếp và bàn ăn liền kề, bàn ăn 6 người cùng căn bếp chữ L, đặt sát cửa sau nhà, sử dụng hệ cửa thông gió, đáp ứng việc lưu thông khí, tránh đọng mùi thức ăn hiệu quả. Song song nhà bếp + ăn là không gian 2 phòng ngủ và phòng WC chung. Cuối cùng là sân sau tận dụng bố trí khu vực giặt + phơi và tiểu cảnh cây xanh.

Lầu 1 của mẫu nhà 1 trệt 1 lầu mái Thái bao gồm có 2 phòng ngủ có diện tích sử dụng tương đồng nhau, nội thất đơn giản, sử dụng cửa kính thông gió cũng như lấy sáng cho căn phòng luôn tươi sáng. Trung tâm của ngôi nhà là phòng sinh hoạt chung của gia đình cùng phòng WC chung đối diện, kế bên là khu vực học tập cho các bé. Phòng thờ trang nghiêm đặt vị trí hướng ra trước mặt tiền, có lối ra sân thượng trước nhà.
Các lưu ý khi xây nhà 1 trệt 1 lầu mái Thái
Khi tiến hành thiết kế nhà 1 trệt 1 lầu mái Thái, chủ đầu tư cần chú ý một số điều như sau để đáp ứng một ngôi nhà đẹp, tiện nghi cũng như tiết kiệm chi phí xây dựng.
Diện tích đất xây dựng phù hợp
Nếu bạn sở hữu diện tích xây dựng nhỏ như nhà phố thì nên ưu tiên không gian sống mở và lựa chọn phong cách hiện đại. Kiến trúc tối giản, không xuất hiện quá nhiều chi tiết trang trí cầu kỳ, rối mắt, thay vào đó là khai thác mảng khối độc đáo, màu sắc chủ đạo trẻ trung kết hợp vật liệu xây dựng mới để tôn lên nét đẹp cho công trình. Không gian chức năng bố trí liên thông và kết nối chặt chẽ với nhau, vừa tối ưu thêm diện tích rộng rãi vừa gắn kết tình cảm người thân trong gia đình.
Trong trường hợp sở hữu diện tích xây dựng lớn thì gia chủ có thể xây dựng nhà có sân vườn tích hợp nhiều khu vực giải trí và thư giãn cho gia đình như tiểu cảnh xanh, hồ cá, chòi nghỉ,.. vừa giúp ngôi nhà gần gũi với cảnh quan thiên nhiên trong lành và mát mẻ, vừa tạo điều kiện cho gia đình có thêm không gian thư giãn và giải trí.
Chọn phong cách kiến trúc phù hợp
Phong cách kiến trúc ngoài việc thể hiện gu thẩm mỹ, cá tính của gia chủ mà còn ảnh hưởng đến chi phí xây dựng. Để chọn được phong cách phù hợp gia chủ cần nghiên cứu và tìm hiểu chi tiết về các phong cách kiến trúc hiện nay như phong cách hiện đại, tối giản, tân cổ điển, cổ điển hay phong cách Châu u, đương đại,… đánh giá từng phong cách và lựa chọn dựa trên ngân sách đầu tư cũng như gu thẩm mỹ của mình.
Lựa chọn phong cách kiến trúc phù hợp theo sở thích và ngân sách đầu tư
Kết hợp hài hòa giữa màu sắc và vật liệu
Việc kết hợp hài hòa giữa màu sắc và vật liệu là yếu tố quyết định đến tính thẩm mỹ của mặt tiền kiến trúc nhà 1 trệt 1 lầu mái Thái. Hầu hết, các công trình hiện nay đều sử dụng các gam màu trung tính và màu sáng như màu trắng, màu ghi xám, màu be,… điểm xuyết các vật liệu có gam màu trầm ấm như màu nâu của gỗ, màu đen của khung cửa nhôm, màu ghi xám của đá hay gạch ốp tường,… những gam màu này khi phối với nhau tạo sự tương phản, bổ trợ nhau tạo nên vẻ đẹp có chiều sâu và ấn tượng cho công trình.
Bố trí nội thất khoa học và hợp lý
Ngoài các yếu tố ngoại thất trên thì để tạo sự thu hút mạnh mẽ của người nhìn thì việc bố trí nội thất bên trong ngôi nhà 1 trệt 1 lầu mái Thái cũng cần được xem xét kỹ lưỡng sao cho khoa học và hợp lý nhất. Thông thường, nội thất sẽ dựa trên phong cách kiến trúc thiết kế chủ đạo từ đó mà kiến trúc sư sẽ lên ý tưởng bố trí không gian chức năng và sử dụng vật liệu trang trí nhằm đảm bảo sự đồng điệu từ ngoại thất cho đến nội thất.







