Nhà 1 trệt 1 lầu đẹp với phối cảnh kiến trúc hiện đại, sang trọng cùng mặt bằng công năng bố trí khoa học, được rất nhiều chủ đầu tư hiện nay lựa chọn vì tiết kiệm chi phí và diện tích thi công, đồng thời mang đến một không gian sống thoải mái, tiện nghi, phù hợp cho gia đình có từ 3-4 thành viên sinh sống. Chính vì vậy, hãy cùng LG Tech khám phá ngay những phương án thiết kế nhà 1 trệt 1 lầu đẹp để có thêm các ý tưởng mới cho ngôi nhà trong tương lai của mình nhé!
Lý do nên thiết kế thi công nhà 1 trệt 1 lầu?
Nhà 1 trệt 1 lầu (hay nhà 2 tầng) là một loại hình nhà ở phổ biến tại các khu vực đô thị, nơi đông dân cư, cũng như ở nông thôn loại hình nhà ở này cũng được nhiều gia đình lựa chọn bởi chi phí xây dựng thấp nhưng vẫn đáp ứng đầy đủ công năng sinh hoạt và thẩm mỹ cao cho ngôi nhà. Trong đó, thiết kế thi công nhà 1 trệt 1 lầu có những ưu điểm như sau:
Tiết kiệm chi phí xây dựng
Phương án thiết kế nhà đẹp 1 trệt 1 lầu đáp ứng công năng sử dụng thoải mái cho gia đình có thành viên từ 3-4 cùng sinh sống. Chi phí xây dựng nhà 1 trệt 1 lầu thường thấp hơn so với các loại nhà cao tầng khác bởi diện tích xây dựng nhỏ hơn, thời gian thi công ngắn hơn và ít tốn vật liệu hơn.

Thiết kế nhà 1 trệt 1 lầu tiết kiệm so với những công trình cao tầng khác
Phù hợp diện tích đất nhỏ
Mẫu nhà này phù hợp với những cặp vợ chồng mới cưới hay gia đình có ít thành viên sở hữu diện tích xây dựng nhỏ, có kinh phí đầu tư hạn chế. Thông thường, diện tích xây nhà 1 trệt 1 lầu sẽ dao động từ 50-100m2, bố trí từ 2-3 phòng ngủ, đáp ứng đầy đủ nhu cầu sinh hoạt của gia đình cũng như đáp ứng ngân sách đầu tư hợp lý.
Công năng sử dụng tiện nghi
Bố trí mặt bằng công năng nhà 1 trệt 1 lầu khá đơn giản và dễ thực hiện bởi công trình có thiết kế 1 vế thang từ tầng trệt lên lầu 1. Các không gian chức năng được phân chia bố cục khoa học, tiện nghi và đầy đủ các khu vực chức năng cho gia đình, bao gồm phòng khách, phòng bếp, phòng ăn, phòng ngủ, phòng WC,… Ngoài ra, tầng lầu có thể được bố trí thêm phòng thờ, phòng làm việc, phòng sinh hoạt chung,… giúp gia đình có thêm không gian sinh hoạt và nghỉ ngơi thoải mái.
Phù hợp với những diện tích đất không quá lớn nhưng vẫn đáp ứng đầy đủ công năng tiện nghi
Đa dạng phong cách thiết kế
Những mẫu nhà một trệt một lầu có đa dạng về phong cách thiết kế lẫn mặt tiền kiến trúc. Chủ đầu tư có thể lựa chọn phong cách từ hiện đại, tân cổ điển cho đến cổ điển,… kiến trúc mái bằng, mái thái, mái chéo,… tùy theo điều kiện tài chính mà gia chủ có thể lựa chọn một loại hình nhà 1 trệt 1 lầu phù hợp.
Nhà 1 trệt 1 lầu có nhiều phong cách kiến trúc đa dạng
Tiêu chuẩn khi thiết kế nhà 1 trệt 1 lầu mà chủ đầu tư nên biết?
Nhà ở 1 trệt 1 lầu là loại hình nhà ở phổ biến ở Việt Nam, để đảm bảo an toàn và chất lượng cho công trình trong quá trình sử dụng, thiết kế nhà 1 trệt 1 lầu cần đáp ứng các tiêu chuẩn sau:
- Kết cấu của nhà 1 trệt 1 lầu phải đảm bảo chịu được các tác động của môi trường tự nhiên như gió bão, động đất, sét,… Đồng thời, kết cấu nhà cũng cần đảm bảo tính thẩm mỹ và hài hòa với cảnh quan xung quanh, thiết kế phù hợp với khu đất, hướng gió, hướng mặt trời.
- Sau khi xây dựng hoàn thiện và đưa vào sử dụng, các bộ phận của công trình như tường, cột, dầm, sàn, mái… phải đảm bảo sử dụng bình thường, không bị biến dạng hay suy giảm các tính chất khác quá giới hạn cho phép.
- Yêu cầu về vật liệu xây dựng cũng rất quan trọng. Vật liệu phải đảm bảo được độ bền của sản phẩm, đồng thời phải có khả năng chịu lực và trường tồn theo thời gian. Nếu không đáp ứng được các yêu cầu này, việc xây dựng ngôi nhà của bạn có thể gặp phải một số vấn đề nghiêm trọng trong tương lai.
- Cuối cùng, trong quá trình xây dựng nhà 1 trệt 1 lầu, cần phải đảm bảo công trình không gây hư hỏng cho các công trình liền kề ở phần ngầm xung quanh ngôi nhà và các công trình trên mặt đất. Nếu gây ảnh hưởng và vi phạm sẽ để lại những hậu quả khó lường cho gia đình và tài sản của bạn. Do đó, việc chú ý và thực hiện đầy đủ tiêu chuẩn thiết kế nhà ở 1 trệt 1 lầu là rất cần thiết để xây dựng một căn nhà an toàn, đẹp và bền vững.
Những tiêu chuẩn khi thiết kế thi công nhà 1 trệt 1 lầu mà gia chủ cần nắm bắt
Tổng hợp các mẫu nhà 1 trệt 1 lầu hiện đại đẹp ưa chuộng 2023
Ngày nay, hầu hết các chủ đầu tư đều mong muốn sở hữu một ngôi nhà đẹp, ấn tượng bởi ngôi nhà được xem là bộ mặt, là không gian phô diễn kiến trúc, tạo sự thu hút cho ánh nhìn của mọi người. Để các bạn có thể những cảm hứng, ý tưởng mới, LG Tech đã tổng hợp những mẫu nhà 1 trệt 1 lầu đẹp được xây dựng phổ biến nhất hiện nay để cùng tham khảo.
Mẫu nhà 1 trệt 1 lầu 8×15
Mẫu nhà 1 trệt 1 lầu diện tích 8x15m này có thiết kế hiện đại, bắt mắt, đặc biệt phù hợp với diện tích đất có mặt tiền rộng. Điểm nhấn chính của ngôi nhà là việc sử dụng các nguyên vật liệu hiện đại để trang trí như kính, gỗ, nhôm,… kết hợp gam màu sơn tường trắng tinh khiết làm chủ đạo, giúp cho không gian mặt tiền trở nên sang trọng và trẻ trung hơn rất nhiều. Ngôi nhà tuy thiết kế đơn giản nhưng lại không kém phần sang trọng trong tổng thể khi kết hợp một cách hài hòa và vô cùng ăn ý.
Nhà 1 trệt 1 lầu mặt tiền 8m theo phong cách kiến trúc hiện đại
Công trình toát lên vẻ sang trọng và tinh tế qua tone màu trắng chủ đạo

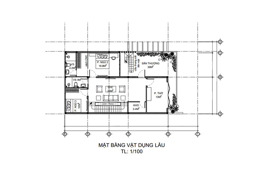
Mặt bằng công năng tầng trệt của mẫu nhà 1 trệt 1 lầu 8x15m gồm phòng khách, phòng bếp liên thông phong ăn, phòng ngủ có bố trí thêm nhà vệ sinh khép kín, cuối nhà là phòng WC chung. Ngoài ra, căn nhà còn có khu vực sân trước bố trí tiểu cảnh xanh và gara để xe cũng như nơi vui chơi cho các bé.

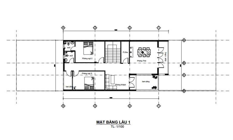
Mặt bằng lầu 1 của ngôi nhà là không gian sinh hoạt chung của cả gia đình. Công năng được bố trí gồm 2 phòng ngủ, 1 phòng ngủ có thêm nhà vệ sinh khép kín đảm bảo không gian nghỉ ngơi riêng tư và thoải mái. Trung tâm của ngôi nhà là khu vực sinh hoạt chung, nhà kho và cầu thang thông tầng cùng lối ra ban công. Phòng thờ được vị trí hướng ra trước mặt tiền, sử dụng cửa kính khung nhôm nên không gian nơi đây luôn đón nhận được nhiều ánh sáng, tràn ngập năng lượng.
Nhà 1 trệt 1 lầu 7×15
Ngôi nhà này được xây dựng trên một khu đất rộng 160m2, với diện tích sàn là 7x15m. Phần đất còn lại được sử dụng để tạo sân vườn và gara đỗ xe. Việc sử dụng một phần của khu đất để tạo sân vườn và gara không chỉ làm tăng tính thẩm mỹ mà còn mang lại lợi ích cho cư dân. Sân vườn cung cấp không gian xanh để thư giãn và tạo cảm giác gần gũi với thiên nhiên. Gara đỗ xe cung cấp không gian bảo vệ và tiện nghi cho các phương tiện của gia đình.
Nhìn vào phối cảnh, ngôi nhà này được thiết kế với một tầng trệt và một tầng lầu. Thiết kế đường nét mạnh mẽ và hình khối chắc chắn tạo nên vẻ đẳng cấp cho không gian sống bên trong. Sử dụng hệ cửa kính trong suốt là một niềm tự hào của ngôi nhà này với mục đích tận dụng ánh sáng và không khí từ bên ngoài thấm vào không gian sống bên trong. Cửa kính trong suốt không chỉ mang lại sự rộng rãi và thoáng đãng mà còn tạo cảm giác kết nối với tự nhiên. Trong những ngày nắng nóng, ánh sáng tự nhiên cùng không khí mát mẻ từ bên ngoài sẽ làm giảm nhiệt độ bên trong ngôi nhà một cách tự nhiên.
Tầng trệt được thiết kế với các không gian chức năng chính như phòng khách, phòng ăn và bếp. Sự kết hợp giữa các không gian này tạo ra một không gian sống tiện nghi và thoải mái cho cả gia đình. Phòng khách được bày trí sao cho mang lại không gian thoáng đãng và gọn gàng. Các đồ nội thất được chọn lựa một cách tinh tế và hài hòa với không gian chung.
Phòng ăn và bếp được thiết kế mở với nhau, tạo sự liên kết trong việc nấu nướng và dùng bữa. Thiết kế không gian chung này tạo cảm giác gia đình gần gũi và tạo điểm nhấn cho không gian sống.
Tầng lầu của ngôi nhà được thiết kế với lô gia rộng hơn so với tầng trệt. Lô gia là một không gian ngoài trời được bao quanh bởi lan can và cây xanh. Được trải đá hoa cương và bố trí ghế ngồi, lô gia tạo ra một không gian thư giãn và ban công để cư dân có thể tận hưởng không gian xanh và quang cảnh xung quanh. Cây xanh được trồng ở lô gia mang lại không gian mát mẻ và tạo cảm giác gần gũi với thiên nhiên. Mỗi khi cư dân muốn thư giãn hay ngắm cảnh, họ có thể tận dụng lô gia này để có những khoảnh khắc thú vị và thư giãn.
Như vậy, ngôi nhà được xây dựng trên một khu đất rộng 160m2 không chỉ tận dụng tối đa không gian mà còn tạo ra sự kết nối với thiên nhiên thông qua hệ cửa kính trong suốt và lô gia rộng rãi. Những không gian sống chức năng và thoải mái được thiết kế tinh tế và hài hòa, mang lại sự tiện nghi và đẳng cấp cho cư dân. Từ sân vườn, gara, phòng khách, phòng ăn và bếp cho đến lô gia, ngôi nhà này mang đến cho cư dân một không gian sống hoàn hảo và gần gũi thiên nhiên.
Thiết kế đơn giản, nhẹ nhàng từ màu sắc cho đến vật liệu trang trí nhưng nhà 1 trệt 1 lầu 7x15m này vẫn toát lên vẻ đẹp sang trọng

Công năng sử dụng tầng trệt của mẫu nhà 1 trệt 1 lầi 7x15m được bố trí bao gồm các phòng chức năng như phòng khách, phòng bếp và bàn ăn, 2 phòng ngủ và nhà vệ sinh chung. Khu vực sân sau được tận dụng thiết kế tiểu cảnh xanh cùng khu vực giặt + sân phơi.

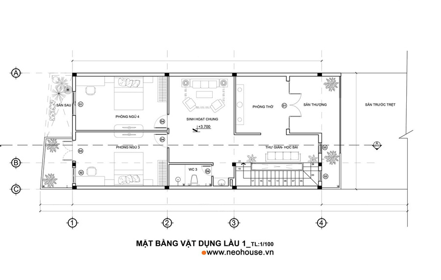
Không gian lầu 1 của ngôi nhà được bố trí gồm có 2 phòng ngủ lớn, có diện tích sử dụng tương đồng nhau, tuy nhiên 1 phòng ngủ có lối ra ban công sau nhà. Trung trâm là phòng sinh hoạt chung và phòng WC chung cho cả gia đình giải trí, thư giãn. Phía trước là phòng thờ hướng ra mặt tiền, có lối ra sân thượng trước, song song với phòng thờ là khu vực học tập cùng cầu thang thông tầng.
Nhà 1 trệt 1 lầu 7×12
Phương án thiết kế nhà 1 trệt 1 lầu 7x13m này gây ấn tượng ngay từ lần đầu tiên bởi các vật liệu trang trí hiện đại, những đường nét, hình khối góc cạnh kết hợp cùng việc bố trí nhiều mảng cây xanh, căn nhà phố 1 trệt 1 lầu đáp ứng đầy đủ về các tiêu chí thẩm mỹ lẫn không gian sống gần gũi, trong lành và phù hợp với xu hướng kiến trúc hiện nay.

Mẫu nhà 1 trệt 1 lầu 7x12m hiện đại, gần gũi mang lại cảm giác thân thuộc

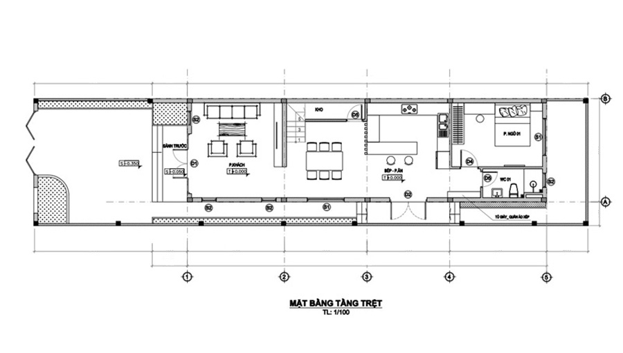
Mặt bằng công năng sử dụng của căn biệt thự 2 tầng này được thiết kế khu vực gara và phòng khách đặt sát cửa chính, đối diện là văn phòng làm việc. Từ phòng khách, tiến vào sâu bên trong ngôi nhà là phòng bếp liền kề bàn ăn và quầy bar mini, đối diện là phòng ngủ dành cho ông bà, đáp ứng nơi nghỉ ngơi thoải mái cũng như thuận tiện cho quá trình di chuyển. Cuối cùng là phòng WC chung, khu vực giặt và sân phơi.

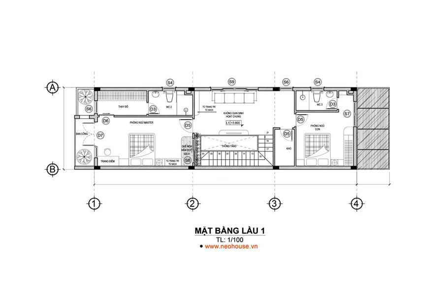
Tầng 1 căn hộ không chỉ có cấu trúc gồm 3 phòng ngủ, mà còn được thiết kế một cách công phu và thông minh để tận dụng tối đa không gian sử dụng. Đặc biệt, phòng ngủ chính (master bedroom) là một không gian rộng lớn được dành riêng cho chủ nhà. Đây là nơi mà chủ nhà có thể thư giãn và nghỉ ngơi sau một ngày làm việc căng thẳng.
Phòng ngủ chính còn tích hợp một phòng vệ sinh riêng, với các tiện nghi hiện đại để đáp ứng nhu cầu của chủ nhà. Việc tích hợp phòng vệ sinh riêng biệt cho phòng ngủ chính không chỉ tạo ra sự tiện nghi, thoải mái mà còn tăng tính riêng tư cho chủ nhà. Các phòng ngủ còn lại trong căn hộ được thiết kế để phục vụ các nhu cầu riêng biệt của con gái và khách.
Cả hai phòng đều có lối ra ban công phía sau nhà, tạo ra không gian thoáng mát và kết nối với thiên nhiên bên ngoài. Việc có ban công trong phòng ngủ không chỉ mang lại sự thoải mái và dễ chịu cho cư dân, mà còn tạo ra một môi trường sống rộng rãi và gần gũi với thiên nhiên. Để tạo sự tiện nghi và thuận lợi cho việc sử dụng, căn hộ này được trang bị một phòng vệ sinh chung gần với hai phòng ngủ. Điều này giúp tiết kiệm thời gian và không gian di chuyển cho cả gia đình và khách. Sự đặt sàng này cũng tạo ra một không gian sinh hoạt chung vừa đủ để gia đình có thể quây quần, gặp gỡ và sinh hoạt hàng ngày.
Ngoài ra, tầng 1 căn hộ còn có không gian cầu thang kết hợp nối các tầng, tạo sự liên kết và dễ dàng di chuyển giữa các tầng trong căn hộ. Cầu thang là một yếu tố quan trọng trong thiết kế không gian và cung cấp một phong cách hiện đại và thẩm mỹ cho căn hộ. Thiết kế thông minh của căn hộ còn bao gồm việc đặt phòng thờ ngay bên cạnh cầu thang, hướng ra mặt tiền nhà và có cửa ra sân thượng phía trước nhà. Điều này không chỉ đáp ứng nhu cầu tôn giáo của gia đình mà còn tạo ra một không gian yên tĩnh và tĩnh lặng để cầu nguyện và tôn vinh.
Tổng thể, căn hộ tầng 1 được thiết kế mở và rộng rãi, tận dụng tối đa không gian sử dụng và đáp ứng các nhu cầu của cư dân. Thiết kế thông minh và tiện ích của các phòng ngủ, phòng vệ sinh và không gian chung tạo nên một không gian sống hoàn hảo và đầy đủ tiện nghi.

Nhìn vào bản vẽ mặt bằng tầng tum của nhà 1 trệt 1 lầu 7×12 ta có thể thấy gia chủ khá đầu tư cho không gian này. Đây là nơi đề gia đình, người thân và bạn bè tụ họp vui chơi trong những dịp cuối tuần và ngày nghỉ lễ nên kiến trúc sư có bố trí bộ bàn ăn dành cho 6 người, kế bên là căn bếp nhỏ, bao quanh là tiểu cảnh cây xanh bát ngát. Một không gian lý tưởng để ngồi ăn uống, trò chuyện cùng người thân bên khung cảnh trong lành và gần gũi như thế này. Khu vực sân thượng sau được gia chủ làm nơi vui chơi, trồng cây xanh và sân phơi.
Nhà 1 trệt 1 lầu 6×20
Ngoại thất mẫu nhà 1 lầu 1 trệt 6x20m này được phối những gam màu đối lập là gam màu trắng, màu đen và màu nâu gỗ, tạo nên hiệu ứng thẩm mỹ bắt mắt trong tổng thể. Ngôi nhà tận dụng lấy sáng từ hệ thống cửa kính trong suốt được bố trí dày đặt trước mặt tiền, thay thế cho những mảng tường thô cứng, đồng thời giúp ngôi nhà trông sang trọng và hiện đại hơn rất nhiều. Ngoài ra, xung quanh ngôi nhà bố trí nhiều tiểu cảnh xanh bát ngát từ cổng chính, ban công lầu 1. Không gian xanh này ngoài việc làm đẹp còn có tác dụng cân bằng không khí, xua tan sự ngột ngạt một cách hiệu quả.

Nhà 1 trệt 1 lầu 6×20 thiết kế đơn giản nhưng tràn ngập cây xanh

Căn nhà đẹp được thiết kế khép kín từ cổng cho đến nội thất trong nhà, đảm bảo một nơi sinh hoạt riêng tư
Khu vực sân thượng trước bố trí bộ bàn ghế sofa mềm mại cùng bàn trà đơn giản, bao quanh là cây xanh

Mặt bằng sử dụng tầng trệt của ngôi nhà 1 trệt 1 lầu 6x20m có khu vực gara để xe, phòng khách liên thông cùng khu vực bếp và bàn ăn, bên trong là phòng ngủ có thích hợp cùng nhà vệ sinh riêng, lối ra sân vườn sau, bên cạnh là phòng WC chung cho cả nhà.

Mặt bằng lầu 1 thiết kế gồm có 2 phòng ngủ, phòng WC chung và phòng sinh hoạt chung. Sân thượng trước dùng để nướng BBQ và khu vực trồng cây xanh. Các khu vực chức năng được bố trí khoa học, tạo sự thoải mái và thuận lợi trong quá trình sử dụng của các thành viên trong gia đình.
Mẫu nhà 1 trệt 1 lầu 6×15
Hình khối kiến trúc mẫu nhà 1 trệt 1 lầu 6×15 đơn giản và vuông vức, hệ thống hình khối cân đối, thiết kế kiến trúc mặt tiền nổi bật với các vật liệu như gạch inax, kính, đá, gỗ nhựa ngoài trời ốp tường. Ban công phía trước lầu 1 khá rộng rãi, tích hợp cùng cây xanh, trồng hoa, đáp ứng một nơi thư giãn thoải mái và gần gũi, cũng như đem lại những hiệu ứng thẩm mỹ nổi bật cho căn nhà đẹp.
Công trình nhà 1 trệt 1 lầu 6×15 sử dụng kiến trúc mái bằng kiên cố, hướng đến không gian mở
Ngoài kiến trúc được đầu tư thẩm mỹ thì hệ thống tường rào và cửa cổng cũng được thiết kế chỉn chu, hài hòa với kiến trúc
Công trình với những mảng khối đua ra độc đáo, tạo khối hình chữ C hai bên bắt mắt
Không quá trang trí nhiều màu sắc hay vật liệu, ngôi nhà hướng đến sự tối giản vừa thanh thoát vừa tiết kiệm chi phí
Mặt bằng tổng thể nhà 1 trệt 1 lầu 6x15m gồm có sân trước bố trí gara ô tô và khu vực vui chơi. Nội thất bên trong thiết kế gồm có phòng khách, phòng bếp liền kề bàn ăn, phòng ngủ có nhà vệ sinh khép kín, phòng WC chung phía cuối nhà.
Trên lầu 1, từ cầu thang thông tầng đi lên, bên tay trái sẽ là 2 phòng ngủ đều có lối ra ban công, diện tích sử dụng đồng đều nhau, đối diện cầu thang là phòng vệ sinh chung, bên tay phải là 1 phòng ngủ có nhà vệ sinh riêng, sát bên là phòng thờ hướng ra mặt tiền trước nhà, đảm bảo yếu tố phong thủy và không gian thông thoáng.
Mẫu nhà 1 trệt 1 lầu 5×20
Công trình nhà 1 trệt 1 lầu 5×20 này sở hữu sắc trắng thuần khiết, đơn giản nhưng lại ghi điểm nhấn nổi bật với các khối hình bê tông khỏe khoắn kết hợp cùng vật liệu sắt, nhôm sơn màu đen và màu nâu của gỗ nhựa ốp tường góp phần tạo diện mạo thanh thoát và gần gũi. Mẫu thiết kế nhà đẹp này còn sở hữu lan can, cửa sổ bằng vật liệu kính để mở rộng không gian và tầm nhìn cho gia đình.
Bên cạnh đó, kiến trúc sư cũng khéo léo bố trí cây xanh ở một số vị trí để tạo điểm nhấn cho công trình. Tổng thể ngôi nhà từ cửa cổng, tường rào cho đến mặt tiền kiến trúc đều thiết kế đồng điệu từ màu sắc cho đến vật liệu trang trí.
Mẫu nhà 1 trệt 5x20m thiết kế theo phong cách hiện đại, phá cách, hướng đến không gian mở
Căn nhà thiết kế cấn đối từ màu sắc trắng chủ đạo đến vật liệu gỗ ốp và lam sắt

Công năng tầng trệt nhà 1 trệt 1 lầu 5x20m này bố trí khu vực gara để xe, phòng khách, phòng ăn và nhà bếp, phòng WC chung, phòng ngủ tích hợp nhà vệ sinh riêng và lối ra sân sau nhà. Tất cả các khu vực chức năng đều được đảm bảo tính tiện nghi và thuận tiện trong quá trình di chuyển cũng như sử dụng thoải mái nhất.

Mặt bằng công năng lầu 1 gồm 2 phòng ngủ, phòng gym + làm viêc, phòng WC và khu vực giặt + phơi. Trong đó, không gian phòng gym kết hợp cung với phòng làm việc hướng ra phía trước mặt tiền, không gian rộng và thoáng đãng, không chỉ là nơi để gia đình tập luyện thể thao, rèn luyện sức khỏe mà còn là nơi để làm việc cho gia đình.
Mẫu nhà 1 trệt 1 lầu 5×17
Sở hữu khu đất có mặt tiền khá rộng rãi, đây là ưu điểm lớn để kiến trúc sư có thể sáng tạo nên một công trình đẹp, tiện nghi. Phối cảnh nhà 1 trệt 1 lầu 5×17 theo kiểu dáng trang nhã từ cách trang trí vật liệu cho đến màu sắc phối tổng thể. Đặc biệt, công trình sử dụng hệ mái Thái vừa giúp nâng cao tính thẩm mỹ vừa giúp điều hòa không khí cho ngôi nhà luôn mát mẻ cũng như thoát nước mưa, chống ẩm mốc hiệu quả, bảo vệ công trình bền vững theo thời gian.
Tông thể ngôi nhà 1 trệt 1 lầu 5×17 bắt mắt bởi 2 tone màu trắng và đen tương phản nhau
Với kiến trúc mái Thái, nhà 1 trệt 1 lầu 5x27m luôn mát mẻ và gia tăng thêm tính thẩm mỹ chung
Ngoài việc sử dụng sân trước làm khu vực gara để xe, đây còn là không gian để vui chơi và giải trí cho gia đình

Tầng trệt của mẫu nhà 1 trệt 1 lầu 5x17m bao gồm 1 phòng ngủ, phòng khách, phòng bếp kết hợp cùng bàn ăn, phòng vệ sinh chung. Đặc biệt, phía dưới cầu thang thông tầng kiến trúc sư còn tận dụng thiết kế nhà kho, giúp gia chủ lưu trữ những vật dụng cần thiết, vừa đáp ứng nhu cầu sử dụng, vừa không chiếm diện tích sử dụng của công trình.

Lầu 1 gồm 2 phòng ngủ, phòng sinh hoạt chung, phòng học và phòng WC chung. Các phòng được bố trí về một phía để tạo hành lang di chuyển thuận tiện, các phòng đều có diện tích rộng rãi và thông thoáng, kết hợp với cửa kính, hướng ra ban công trước cho nên không gian bên trong luôn đón được nhiều ánh sáng tự nhiên từ bên ngoài.
Mẫu nhà 1 trệt 1 lầu 5×15
Công trình nhà 1 trệt 1 lầu 5×15 dưới đây có tổng diện tích đất 420m2, diện tích xây dựng 75m2 và đất còn lại được sử dụng cho việc thiết kế tiểu cảnh xanh, gara để xe, khu vực vui chơi, giải trí cho gia đình. Ngôi nhà phố là sự kết hợp tinh tế giữa kiến trúc hiện đại hòa cùng thiên nhiên xanh mát, trong lành và gần gũi. Những mảng màu trắng chủ đạo phối cùng màu ghi xám, màu nâu gỗ, màu đen tạo sự tương phản, nhấn nhá và bổ trợ nhau tạo nên một diện mạo vô cùng trẻ trung và sang trọng.
Phối cảnh kiến trúc nhà 1 trệt 1 lầu 5x15m hiện đại với sân vườn rộng rãi
Kiến trúc nhà đơn giản từ hình khối cho đến vật liệu trang trí và màu sắc chủ đạo

Nhà 1 trệt 1 lầu 5x15m sử dụng nhiều hệ cửa kính khung nhôm giúp tạo sự liên kết giữa nội thất bên trong và khu vực sân vườn

Bước vào không gian tầng trệt của ngôi nhà là phòng khách rộng rãi và thoáng mát. Dẫn vào bên trong là phòng đọc sách kết hợp phòng ngủ đầy đủ tiện nghi. Kế bên là phòng WC chung, đối diện là cầu thang thông tầng. Cuối nhà là không gian của phòng bếp cùng bàn ăn, đảo bếp và lối ra sân sau nhà có tích hợp không gian giặt và phơi.

Lầu 1 của mẫu thiết kế nhà 1 trệt 1 lầu 5×15 có 2 phòng ngủ tương đối rộng và trang bị đầy đủ các đồ nội thất. Trong đó thì phòng ngủ master có diện tích lớn hơn, có bố trí thêm phòng thay đồ, phòng WC riêng và lối ra ban công, còn phòng ngủ cho cô con gái cũng được tích hợp phòng WC khép kín, đảm bảo nơi nghỉ ngơi và sinh hoạt riêng tư. Trung tâm ngôi nhà là không gian sinh hoạt chung của gia đình, cầu thang thông tầng và nhà kho.
Mẫu nhà 1 trệt 1 lầu đẹp 4×20
Không cần trang trí quá phức tạp hay cầu kỳ, bản vẽ nhà 1 trệt 1 lầu 4x20m vẫn dư sức gây ấn tượng trong mọi ánh nhìn bởi các hình khối vuông vắn, đua ra thụt vào đầy cá tính. Kiến trúc sư đã tiết chế việc sử dụng quá nhiều gam màu sắc cho mặt tiền công trình, phù hợp với yêu cầu mà chủ đầu tư mong muốn về không gian tối giản, tiện nghi. Điều đặc biệt, khu vực sân trước được kiến trúc tích hợp bộ bàn ghế sofa, hồ cá và cây xanh có mái che, một không gian lý tưởng để thư giãn và giải trí hiệu quả cho các thành viên trong gia đình sau một ngày làm việc vất vả.
Công trình này ghi điểm nhấn với các mảng hình khối cân đối, đua ra thụt vào độc đáo
Không gian sân trước được tận dụng làm nơi giải trí cho gia đình khi bố trí hồ cá, cây cảnh và bộ bàn ghế sofa êm ái
Tuy không quá rộng rãi và có nhiều chi tiết trang trí nhưng mẫu nhà 1 trệt 1 lầu đẹp 4x20m vẫn đáp ứng tiêu chí về thẩm mỹ và không gian sử dụng thoải mái
Theo nhu cầu sử dụng của chủ đầu tư, kiến trúc sư đã bố trí mặt bằng công năng của ngôi nhà như sau: phòng khách, bếp + phòng ăn, 1 phòng ngủ, phòng WC chung. Từ sảnh bước vào trong là không gian phòng khách khá rộng rãi, liền kề là khu vực bếp và bàn ăn thông thoáng. Nhà vệ sinh chung thiết kế ngay cạnh phòng bếp + ăn, sát cầu thang thông tầng. Cuối nhà là phòng ngủ tiện nghi, có lối ra sân vườn phía sau nhà.

Mặt bằng lầu 1 bao gồm có 2 phòng ngủ rộng và thoáng, phòng sinh hoạt chung và phòng WC. Bố trí 2 phòng ngủ trước và sau nhà, phòng ngủ master hướng ra trước mặt tiền, diện tích sử dụng khá rộng rãi, có thêm nhà vệ sinh riêng, phòng ngủ còn lại đặt phía cuối nhà, cối lối ra ban công. Trung tâm là khu vực sinh hoạt chung cho cả gia đình vào mỗi tối bên những thước phim, thời sự trong ngày.
Thiết kế nhà 1 trệt 1 lầu 4×12
Căn nhà 1 trệt 1 lầu hiện đại có diện tích 4x12m sở hữu lợi thế về chiều dài. Vì thế mà kiến trúc theo kiểu dáng hiện đại, tối giản, hướng đến không gian mở là lựa chọn tối ưu nhất. Với mẫu nhà đẹp này, kiến trúc sư đã tận dụng triệt để mặt bằng, tạo ra một không gian thoải mái, đáp ứng các phòng chức năng sử dụng tiện nghi. Tuy nhiên, mặt tiền có phần hạn hẹp nên không gian có phần bí bách và nóng bức. Để khắc phục vấn đề này, kiến trúc sư đã sử dụng hệ những ô cửa kính lớn kết hợp gạch bông gió, vừa tạo sự kín đáo cho ngôi nhà, vừa có thể lưu thông khí và lấy sáng hiệu quả cũng như góp phần gia tăng hiệu ứng thẩm mỹ trong tổng thể công trình.

Mẫu thiết kế nhà ghi điểm nhấn nổi bật với những hình khối độc đáo cùng màu sắc tươi sáng

Mẫu thiết kế nhà 1 trệt 1 lầu 4x12m phong cách kiến trúc hiện đại, chủ yếu tập trung không gian mở và thông thoáng

Công năng tầng trệt của phương án thiết kế nhà 1 trệt 1 lầu 4x12m này được kiến trúc sư bố trí như sau: 1 phòng khách, liền kề là phòng bếp, bàn ăn và quầy bar mini, phòng ngủ nhỏ và phòng WC chung, sân sau thiết kế máy giặt và sân phơi.

Mặt bằng lầu 1 gồm có 2 phòng ngủ, đều có lối ra ban công, 1 phòng ngủ có thêm nhà vệ sinh riêng. Phòng sinh hoạt chung và phòng WC chung cùng nhà kho, cầu thang thông tầng bố trí tại trung tâm ngôi nhà. Phòng thờ được đặt vị trí bên góc, hướng mặt tiền phía trước, đảm bảo không gian trang nghiêm và yên tĩnh.
Nhà 1 trệt 1 lầu mái thái
Căn nhà 1 trệt 1 lầu mái Thái này sở hữu diện tích đất khá rộng rãi, tổng diện tích là 11x25m, công trình phù hợp cả nông thôn và thành thị. Mặt tiền ngôi nhà đem lại cho người nhìn cảm quan tích cực về không gian sống trẻ trung, trang nhã và năng động nhờ vào cách phối màu sắc. Công trình thiết kế theo phong cách hiện đại nên không trang trí quá nhiều họa tiết cầu kỳ. Các đường gờ chỉ chạy ngang trên mảng tường giúp ngôi nhà bớt đi sự đơn điệu. Cùng với việc sử dụng rất nhiều cửa kính thay thế cho tường bê tông và sân vườn tích hợp nhiều mảng cây xanh. Nhờ vậy mà ngôi nhà mái Thái luôn ngập tràn ánh sáng tự nhiên và không gian bên trong luôn mát mẻ.
Ngôi nhà mái thái sử dụng các gam màu trung tính như trắng, xanh, đen,… phối hợp ăn ý với nhau
Những đường kẻ chỉ trên tường kết hợp những ô cửa kính được thiết kế dày đặt, tạo nên vẻ đẹp mới mẻ cũng như giúp ngôi nhà đó nhận nhiều nguồn năng lượng vào trong
Hệ mái Thái kiên cố và bề thế đồng thời giúp thoát nước mưa, điều hòa không khí bên trong luôn được mát mẻ
Dựa trên nhu cầu sử dụng của các thành viên trong gia đình, kiến trúc sư bố trí công năng tầng trệt nhà 1 trệt 1 lầu mái Thái này bao gồm có phòng khách, phòng ngủ, không gian bếp + bàn ăn và phòng WC chung. Các không gian chức năng đều có sự liên kết với nhau, tạo nên một không gian liên thông, kết nối chặt chẽ, vừa rộng thoáng, vừa đáp ứng nhu cầu sử dụng tiện nghi.
Lầu 1 có phòng sinh hoạt chung thiết kế hướng ra lô gia trước nhà. Bên cạnh là 3 phòng ngủ rộng rãi và tiện nghi. Kế bên là phòng thờ trang nghiêm, có cửa sổ bằng kính trong suốt nên có thể lấy sáng hiệu quả. Một nhà vệ sinh nhỏ ở góc cầu thang thông tầng, thuận tiện cho nhu cầu sinh hoạt cũng như di chuyển.
Mẫu nhà 1 lầu 1 trệt mái bằng
Phối cảnh nhà 1 trệt 1 lầu mái bằng có diện tích 8x14m, kiến trúc sư đã khéo léo vận dụng những thiết kế hình khối và đường nét kiến trúc khỏe khoắn giúp ngôi nhà toát lên vẻ đẹp cá tính và thẩm mỹ. Công trình lựa chọn sơn tường trắng làm chủ đạo, song kết hợp cùng những khung cửa nhôm kính sơn màu đen giúp cho ngôi nhà trở nên ấn tượng và nổi bật hơn. Sự đối lập, tương phản của hai màu sắc dường như giúp ngôi nhà trở nên cuốn hút và bắt mắt hơn rất nhiều.
Phối cảnh mẫu thiết kế nhà 1 trệt 1 lầu mái bằng hiện đại, sang trọng
Ngôi nhà sử dụng gam màu trắng chủ đạo không gây cảm giác nặng nề hay nhàm chán

Mặt bằng tầng trệt mẫu nhà 1 trệt 1 lầu mái bằng này được thiết kế công năng khoa học, các không gian chức năng bố trí vừa phải, hợp lý. Sân vườn trước tích hợp nhiều mảng cây xanh và bố trí khu vực gara để xe. Tiến vào trong là không gian phòng khách rộng 27m2, liên thông với phòng khách và bàn ăn. Phòng ngủ master đặt kế bên, có thêm phòng WC, đảm bảo không gian nghỉ ngơi riêng tư. Phía góc cuối nhà bố trí phòng WC chung và khu vực giặt + sấy.

Mặt bằng lầu 1 thiết kế 2 phòng ngủ, 1 phòng ngủ có bố trí thêm khu vực thay đồ và nhà vệ sinh khép kín. Sát bên 2 phòng ngủ là phòng vệ sinh chung, phòng sinh hoạt chung và nhà kho. Phòng thờ trang nghiêm đặt vị trí trước nhà, diện tích 13m2, sử dụng cửa kính trong suốt nên không gian luôn thoáng đãng.
Nhà 1 trệt 1 lầu 1 sân thượng
Nhà 1 trệt 1 lầu 1 sân thượng hiện nay đang chiếm được rất nhiều tình cảm của các chủ đầu tư hiện nay bởi vẻ đẹp ngoại thất cùng công năng bố trí tiện nghi. Thiết kế sân thượng được xem là xu hướng phù hợp với những ngôi nhà phố có diện tích mặt tiền hạn hẹp, sân thượng sẽ giúp mở rộng khoảng trời trên mái cũng như giúp tăng không gian sử dụng cho gia đình.
Mẫu nhà 1 trệt 1 lầu 1 sân thượng được xây dựng lùi về phía sau giúp tạo ra một khoảng sân trước rộng để làm sân vườn và khu vực để xe. Bên cạnh đó, với lối thiết kế này còn hỗ trợ giảm thiểu tối đa tiếng ồn từ xe cộ ngoài đường. Từ đó, đáp ứng nhu cầu sinh hoạt và nghỉ ngơi của gia đình sẽ luôn được đảm bảo sự yên tĩnh và thoải mái. Ngôi nhà thiết kế đơn giản với tone màu trắng kết hợp màu xám đen và nâu gỗ, sử dụng vách kính lớn trong suốt thay thế cho bức tường bê tông cứng ngắc đem lại một tổng thể nhẹ nhàng, thanh thoát và tràn ngập ánh sáng.
Căn nhà 1 trệt 1 lầu 1 sân thượng này được thiết kế các không gian nối liền nhau. Tại tầng trệt, đầu tiên là không gian phòng khách rộng rãi, kế bên là cầu thang thông tầng. Tiếp nối là khu vực phòng bếp + bàn ăn, phòng ngủ và phòng WC chung đặt cuối khu vực nhà.
Trên lầu 1, ngôi nhà được bố trí 2 phòng ngủ, 2 phòng vệ sinh chung, phòng sinh hoạt chung. Các không gian phòng chức năng đều được kiến trúc sư tính toán và phân chia bố cục rõ ràng, khoa học, đáp ứng đầy đủ nhu cầu sử dụng cho các thành viên sinh hoạt.
Mặt bằng công năng tầng thượng được thiết kế bao gồm sân thượng trước và sau. Sân thượng trước được sử dụng cho mục đích trồng cây xanh, bố trí thêm bàn trà ngồi thư giãn, sân thượng sau khá rộng, có thể tận dụng làm nơi vui chơi, trồng thêm cây xanh và sân phơi.
Mẫu nhà phố 1 trệt 1 lầu đơn giản
Lối thiết kế tối giản, nhẹ nhàng, không quá cầu kỳ vẫn luôn chiếm trọn cảm tình của nhiều chủ đầu tư hiện nay. Vì thế mà không có gì ngạc nhiên khi có nhiều gia đình lựa chọn phương án thiết kế nhà này để xây dựng mái ấm của mình. Công trình nhà 1 trệt 1 lầu đơn giản này được xây dựng trên tổng diện tích đất 15x18m, sử dụng hệ mái Lệch độc đáo, cùng gam màu trung tính trang trí như màu trắng, nâu gỗ, ghi xám,… tạo nên một tổng thể tươi sáng và sang trọng. Ban công lầu 1 đua ra rộng tạo khối hình bắt mắt, kết hợp lan can kính và gỗ nhựa ốp tường, hệ thống đèn led, một điểm nhấn giúp ngôi nhà nổi bật bất kể ngày đêm.

Ở tầng trệt, từ sảnh bước vào trong là phòng khách khá rộng lớn, liền kề là phòng bếp và ăn, vừa giúp không gian thêm phần rộng thoáng, vừa tạo sự kết nối giữa các thành viên trong gia đình. Phía đối diện là phòng ngủ cùng phòng WC chung. Ngoài ra, khu vực sau nhà có thêm khu vực giặt và sân phơi.

Mặt bằng lầu 1 với thiết kế phòng thờ trang nghiêm, có lối ra ban công trước nhà. Bố trí 2 phòng ngủ đầy đủ tiện nghi và không gian khá rộng. Kế bên là phòng đọc sách và phòng WC chung.
Mặt tiền nhà 1 trệt 1 lầu hiện đại
Với khu đất đồi núi dốc, giải pháp thiết kế nhà 1 trệt 1 lầu theo phong cách hiện đại được kiến trúc sư áp dụng vào công trình, cũng như đưa ra phương án bố trí mặt bằng công năng sao cho phù hợp, đáp ứng nhu cầu sử dụng cho các thành viên trong gia đình.
Ngôi nhà đẹp 1 trệt 1 lầu chú trọng hướng đến không gian mở, gần gũi với cảnh quan thiên nhiên nên được sử dụng hệ thống cửa kính kích thước lớn, thay thế hoàn toàn cho bức tường bê tông thô cứng, kết hợp với sân vườn bố trí tiểu cảnh xanh bao quanh, giúp ngôi nhà luôn đón nhận được nhiều nguồn ánh sáng và tràn ngập năng lượng. Hình khối thiết kế theo kiểu mới lạ, phá cách cùng với vật liệu trang trí như gỗ nhựa ngoài trời, đá tự nhiên ốp tường giúp gia tăng thêm tính thẩm mỹ trong tổng thể cho ngôi nhà đơn giản nhưng không kém phần sang trọng, độc đáo.

Công trình nhà 1 trệt 1 lầu hiện đại với mảng kính lớn thay thế hoàn toàn cho tường bê tông thô cứng

Căn nhà 1 trệt 1 lầu hiện đại thiết kế theo không gian mở, tạo nhiều góc view ra bên ngoài

Thiết kế nhà hiện đại thống nhất từ cửa cổng, tường rào cho đến kiến trúc mặt tiền

Tầng trệt được thiết kế bao gồm phòng sinh hoạt chung, 2 phòng ngủ đều có phòng thay đồ riêng, nhà vệ sinh và khu vực tập thể dục. Phòng vệ sinh chung được đặt gọn gàng ngay cạnh 2 phòng ngủ nên tạo sự thuận lợi trong quá trình sử dụng. Phòng ngủ thiết kế sử dụng nhiều cửa kính giúp lấy sáng và gió trời hiệu quả.

Lầu 1 bao gồm phòng khách kết hợp phòng thờ, liên thông với khu vực bếp và bàn ăn, tạo sự kết nối không gian chặt chẽ và rộng rãi. Phòng ngủ thứ nhất bố trí đối diện khu bếp, có diện tích hợp lý, sát bên là phòng ngủ master đặt phía trong cùng nhưng vẫn đảm bảo đón nhận được nhiều ánh sáng nhờ hệ thống cửa kính trong phòng, phòng ngủ này có tích hợp thêm phòng thay đồ và phòng WC nhỏ.
Mẫu nhà 1 trệt 1 lầu 4 phòng ngủ
Với những gia đình đông thành viên, việc thiết kế nhà 1 trệt 1 lầu ngoài việc đáp ứng thẩm mỹ của công trình thì công năng sử dụng cũng được đặc biệt quan tâm đến. Căn nhà đẹp 1 trệt 1 lầu 4 phòng ngủ dưới đây đáp ứng đầy đủ nhu cầu sử dụng thoải mái cho gia đình có từ 3-5 thành viên cùng sinh sống.
Mẫu nhà đẹp ghi điểm bởi ngoại thất trang nhã và ấm cúng từ màu sơn chủ đạo cho đến vật liệu trang trí. Với 3 gam màu trắng – đen – nâu kết hợp ăn ý với nhau tạo nên một tổng thể vô cùng hoàn mỹ. Mặt tiền kiến trúc còn sử dụng vách kính trong suốt lớn, đá và gỗ ốp tường, vừa giúp gia chủ có nhiều góc nhìn rộng thoáng, vừa càng tăng thêm vẻ đẹp sang trọng cho công trình. Cây xanh bố trí bao quanh kết hợp hồ bơi, một nơi giải trí lý tưởng cho cả nhà vào những dịp cuối tuần, nghỉ lễ
Tầng trệt là không gian sinh hoạt chung thoáng rộng để dành đón khách, nơi gia đình sum vầy và giải trí. Ngoài ra còn có phòng bếp + ăn, tủ đồ chơi, phòng WC chung và giặt. Phòng khách và bếp liền kế, đối diện phòng khách là phòng chơi + đàn piano, không gian liên thông nên khá rộng rãi và thoáng đãng.
Mặt bằng lầu 1 được bố trí nhiều phòng chức năng, đặc biệt là phòng ngủ master khi tích hợp phòng làm việc, phòng wc và khu vực ngồi thư giãn thiết kế bộ bàn ghế sofa êm ái, lối ra ban công, đáp ứng đầy đủ tiêu chí cho vợ chồng chủ đầu tư về không gian thư giãn riêng tư. Phía đối diện phòng ngủ master là 2 phòng ngủ cho con cái, diện tích thiết kế tương đồng nhau, sát bên là phòng học và nhà vệ sinh chung.
Mẫu nhà 1 trệt 1 lầu 1 tum
Thay vì xây nhà 3 tầng, các chủ đầu tư hiện nay lựa chọn các mẫu nhà 1 trệt 1 lầu 1 tum bởi vừa tiết kiệm được chi phí xây dựng nhưng vẫn đảm bảo công năng thoải mái. Không gian tầng tum có thể bố trí thêm được phòng ngủ, phòng thờ hay nhà kho, phòng giải trí, kết hợp sân thượng trước và sau,… giúp gia tăng công năng sử dụng cũng như tạo sự bề thế không thua kém gì nhà 3 tầng.
Mẫu nhà 1 trệt 1 lầu 1 tum hiện đại dưới đây có đường nét kiến trúc khỏe khoắn, tối giản. Mặt tiền căn nhà thiết kế phi đối xứng với các mảng khối vuông vức xếp chồng lên nhau. Hệ thống cửa kính được bố trí xuyên suốt từ tầng trệt cho đến tầng tum, phía trước ban công tích hợp thêm nhiều cây xanh, giải pháp lấy sáng và tạo sự gần gũi với thiên nhiên hiệu quả cũng như góp phần phô diễn nét đẹp thanh thoát cho tổng thể công trình.
Kiến trúc hiện đại, sử dụng vật liệu gỗ, kính, nhôm cùng lam sắt trang trí tạo vẻ đẹp phóng khoáng, mới mẻ cho ngôi nhà

Mặt tiền kiến trúc cân đối với tỷ lệ hài hòa, các đường nét tối giản kết hợp mảng xanh tạo sự gần gũi, sang trọng cho căn nhà 1 trệt 1 lầu 1 tum

Mặt bằng tầng trệt được bố trí bao gồm sân trước, phòng khách, phòng bếp và bàn ăn, phòng WC chung và sân sau. Không gian tầng trệt được thiết kế thoáng đãng và rộng rãi. Cầu thang thông tầng được bố trí tại vị trí áp sát vào tường, vừa được xem như là vách ngăn, vừa để giúp cho phần không gian sảnh tầng thêm phần rộng rãi. Đối diện cầu thang còn bố trí thêm tiểu cảnh cây cảnh, đem không gian xanh vào bên trong nhà.

Mặt bằng công năng lầu 1 được bố trí bao gồm có 2 phòng ngủ có diện tích sử dụng lớn, cả 2 đều tích hợp phòng thay đồ và phòng WC khép kín, đảm bảo nơi nghỉ ngơi riêng tư và thoải mái nhất. Trung tâm nhà là không gian sinh hoạt chung cho gia đinihf cùng cầu thang thông tầng.

Mặt bằng tầng tum của mẫu nhà 1 trệt 1 lầu 1 tum bố trí sân thượng trước và sau. Sân thượng trước tích hợp nhiều mảng cây xanh dùng để giải trí và đãi tiệc vào cuối tuần hay ngày nghỉ lễ. Sân thượng sau được gia chủ làm sân phơi.
Xây nhà 1 trệt 1 lầu hết bao nhiêu tiền?
Trên thị trường hiện nay, những đơn vị nhà thầu thường sẽ cung cấp bao gồm 2 gói xây dựng nhà cơ bản đó là thi công phần thô và thi công hoàn thiện.
Và LG Tech cũng vậy, đơn giá thi công nhà 1 trệt 1 lầu tại công ty cũng có 2 gói xây dựng, trong đó đơn giá sẽ bao gồm:
- Đơn giá thi công phần thô và nhân công hoàn thiện với chi phí khoảng từ 3.600.000đ – 3.800.000đ/m2
- Đơn giá xây nhà trọn gói (chìa khóa trao tay) khoảng từ 6.100.000đ – 7.500.000đ/m2
Đây là đơn giá thi công nhà 1 trệt 1 lầu mới nhất mà LG Tech cập nhật gửi đến bạn cùng tham khảo. Và để biết chi tiết cách tính nhà 1 trệt 1 lầu bao nhiêu tiền thì mời bạn cùng tham khảo tiếp nội dung dưới đây.
Cách tính chi phí xây nhà 1 trệt 1 lầu như thế nào?
Hầu hết, hiện tại các đơn vị đều áp dụng cách tính chi phí xây nhà theo m2, đây là một cách tính khá đơn giản mà ai cũng có thể thực hiện được. Công thức tính thi công như sau:
Chi phí thi công = diện tích xây dựng (m2) x đơn giá xây dựng (vnđ/m2)
Dựa theo công thức trên, bạn cần tính diện tích xây dựng từng khu vực trong ngôi nhà, từ đó công diện tích xây dựng nhân cho đơn giá xây dựng cho từng m2 là sẽ có được dự toán chi phí gần chính xác cho ngôi nhà của mình. Bên cạnh đó, bạn cũng cần cộng thêm chi phí phát sinh để đảm bảo chi phí tốt nhất khi tiến hành xây dựng nhà.
Ví dụ cách tính xây dựng nhà 1 trệt 1 lầu 80m2:
- Móng: 80 x 40% = 32m2
- Tầng trệt: 80 x 100% = 80m2
- Lầu 1: 80 x 100% = 80m2
- Mái BTCT: 80 x 78% = 62,4m2
=> Tổng diện tích xây dựng sẽ là: 254.4m2
Như vậy, dựa trên công thức nhà 1 trệt 1 lầu diện tích 80m2 sẽ là:
– Chi phí thi công phần thô: 254.4 x 3.800.000 = 966.720.000đ
– Chi phí xây nhà trọn gói : 254.4 x 7.000.000 = 1.780.000.000đ
Ví dụ cách tính xây dựng nhà 1 trệt 1 lầu 100m2:
- Móng: 100 x 40% = 40m2
- Tầng trệt: 100 x 100% = 100m2
- Lầu 1: 100 x 100% = 100m2
- Mái BTCT: 100 x 78% = 78m2
=>Tổng diện tích xây dựng sẽ là: 318m2
Dựa trên công thức tính, chi phí xây nhà phố 1 trệt 1 lầu diện tích 100m2, cụ thể:
– Chi phí xây phần thô và nhân công hoàn thiện: 318 x 3.800.000 = 1.208.400.000đ
– Chi phí xây nhà trọn gói (chìa khóa trao tay): 318 x 7.000.000 = 2.226.000.000đ
Các ưu đãi khi khách hàng lựa chọn xây nhà trọn gói (chìa khóa trao tay) tại LG Tech:
- Hỗ trợ khách hàng xin phép xây dựng.
- Miễn phí 100% bản vẽ hồ sơ điện nước.
- Quà tặng giá trị khi bàn giao công trình.
- Miễn phí chi phí thiết kế khi xây nhà.
Chú ý: Chi phí trên chỉ là ví dụ về cách tính xây nhà 1 trệt 1 lầu mà chúng tôi gửi đến bạn tham khảo. Đơn giá trên sẽ không chính xác 100%, chỉ mang tính tương đối về con số.
Lưu ý khi thiết kế xây nhà 1 trệt 1 lầu
Nhà 1 trệt 1 lầu là một trong những loại hình nhà ở rất phổ biến tại Việt Nam. Hiện tại, có rất nhiều phương án thiết kế thi công nhà 1 trệt 1 lầu đẹp, đa dạng phong cách và kiểu dáng để gia chủ có thể lựa chọn theo đúng nhu cầu và thẩm mỹ của mình. Tuy nhiên, để có một ngôi nhà 1 trệt 1 lầu đẹp, hoàn hảo nhất thì các chủ đầu tư cần lưu ý những vấn đề sau đây:
Diện tích xây dựng
Với những mẫu nhà phố 1 trệt 1 lầu sẽ có diện tích hẹp về chiều ngang, rộng về chiều dài. Vì thế mà gia chủ cần cân nhắc diện tích xây dựng sao cho phù hợp với khu đất, vừa đáp ứng công năng sử dụng, vừa tối ưu chi phí. Khi đó, việc lựa chọn phương án thiết kế nhà 1 trệt 1 lầu hiện đại theo không gian mở, có sân vườn, tích hợp 3-4 phòng ngủ chính là giải pháp tối ưu để đem đến một không gian sinh hoạt thoải mái và tiện nghi.
Chọn phong cách kiến trúc phù hợp
Phong cách kiến trúc là một yếu tố để tạo nên vẻ đẹp và kiểu dáng chủ đạo của cả công trình, cũng như thể hiện gu thẩm mỹ, cá tính của gia chủ. Hiện tại có rất nhiều phong cách kiến trúc khác nhau như hiện đại, cổ điển, tân cổ điển,… dựa trên sở thích, nhu cầu, ngân sách đầu tư và thẩm mỹ của mỗi chủ đầu tư mà có cho mình lựa chọn phù hợp.
Lựa chọn màu sắc hài hòa
Màu sắc là yếu tố quan trọng để mang đến vẻ đẹp ấn tượng tổng thể cho ngôi nhà. Vì thế, nên lựa chọn màu sắc hài hòa, phù hợp với phong cách kiến trúc và sở thích của gia đình cũng như các yếu tố xung quanh.
Trong thiết kế nhà 1 trệt 1 lầu thường sẽ chọn các gam màu tươi sáng, trẻ trung phối cùng các vật liệu trang trí có gam màu trầm, màu tối, nhằm tạo sự tương phản bắt mắt, bổ trợ cho nhau làm nên vẻ đẹp hoàn mỹ, tinh tế cho ngôi nhà.
Bố trí mặt bằng công năng hợp lý
Ngoài các yếu tố về kiến trúc, thì nội thất bên trong cũng cần đảm bảo công năng sử dụng sao cho phù hợp và đáp ứng đầy đủ công năng tiện nghi cho các thành viên trong gia đình trong quá trình sinh hoạt. Đặc biệt, chú ý đến yếu tố ánh sáng, phong thủy, không gian thông thoáng, giao thông đi lại sao cho khoa học, đảm bảo sự nghỉ ngơi và di chuyển thuận lợi nhất.

Như vậy, LG Tech đã chia sẻ tất cả các phương án thiết kế nhà 1 trệt 1 lầu đẹp thịnh hành nhất hiện nay đến các bạn cùng tham khảo và chiêm ngưỡng. Cùng với đó là đánh giá về nhà 1 lầu 1 trệt, cách tính chi phí và lưu ý khi xây dựng. Hy vọng những thông tin chia sẻ trên sẽ hữu ích và đem đến cho bạn những gợi ý mới mẻ về ý tưởng thiết kế cho riêng mình.







