Nhà 1 trệt 1 lầu đẹp 4×20 là một trong những nhà ở “đang làm mưa làm gió” và trở thành xu hướng kiến trúc được nhiều chủ đầu tư săn đón. Công trình nhà 1 trệt 1 lầu 4x20m gây sự chú ý bởi phong cách thiết kế đa dạng cùng mặt bằng công năng tiện nghi. Hơn nữa, diện tích xây dựng 4×20 cực kỳ phổ biến, đặc biệt phù hợp với những gia đình sống ở thành phố muốn sở hữu một không gian sống đẹp mắt và thoải mái. Nhà 1 trệt 1 lầu đẹp 4×20 là mẫu mà LG Tech giới thiệu đến quý khách ngày hôm nay hứa hẹn sẽ làm say lòng bất cứ ai ngay từ ánh nhìn đầu tiên.
Phối cảnh kiến trúc mẫu nhà 1 trệt 1 lầu đẹp 4×20
Theo đó, không phải ngẫu nhiên mà phong cách kiến trúc hiện đại trở thành một trong những lựa chọn phổ biến của rất nhiều công trình nhà ở hiện nay. Từ những căn nhà phố cho đến biệt thự cao cấp đều ưa chuộng kiểu dáng kiến trúc này. Và mẫu nhà 1 trệt 1 lầu đẹp 4×20 lại một lần nữa thể hiện rõ nét những tinh hoa và sự độc đáo của phong cách này qua bản vẽ phối cảnh dưới đây.

Phối cảnh kiến trúc nhà 1 trệt 1 lầu 4x20m đẹp thanh thoát và sang trọng
Ngắm nhìn tổng thể mặt tiền, ngôi nhà có diện mạo tối giản, trẻ trung và năng động, toát lên sự phóng khoáng mới mẻ. Những mảng khối hình học cân đối, góc cạnh tạo hình ấn tượng góp phần mang đến nét đẹp tinh tế, thu hút mọi ánh nhìn của người đi đường. Kết hợp cùng vật liệu trang trí như gỗ nhựa màu nâu, đá ốp tường, lam sắt và cửa kính khung nhôm sơn đen,… đem lại một tổng thể thanh thoát, không quá cầu kỳ nhưng tạo vẻ đẹp tươi trẻ, khỏe khoắn cho mặt tiền.
Bên cạnh đó, mẫu nhà 1 trệt 1 lầu đẹp 4×20 còn tạo cảm giác nhẹ nhàng, mới mẻ nhờ vào tone màu sơn trắng chủ đạo. Một gam màu rất được ưa chuộng và sử dụng phổ biến trong kiến trúc nhà ở hiện nay. Gam màu này vừa giúp làm nổi bật vẻ đẹp của các vật liệu trang trí, vừa thể hiện sự sang trọng và bắt mắt trong cái nhìn tổng thể.

Phối cảnh mẫu nhà 1 trệt 1 lầu đẹp 4×20 kết hợp cây xanh tạo không gian trong lành và gần gũi
Hệ thống tường bao và cửa cổng được kiến trúc sư thiết kế đồng bộ với tổng thể kiến trúc mặt tiền tạo một tổng thể ăn ý và hài hòa. Không gian sân trước được tận dụng làm khu vực gara kết hợp bố trí tiểu cảnh xanh mát vừa đáp ứng nhu cầu sử dụng mà còn tạo một khoảng không gần gũi, ngập tràn ánh sáng tự nhiên.
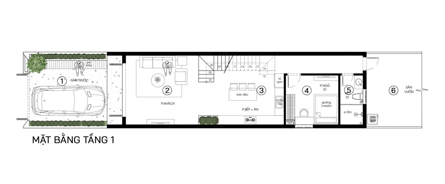
Bản vẽ bố trí mặt bằng công năng mẫu nhà 1 trệt 1 lầu đẹp 4×20
Bản vẽ bố trí mặt bằng công năng nhà 1 trệt 1 lầu đẹp 4×20 được kiến trúc sư phân bổ dựa trên những mong muốn của chủ đầu tư về một không gian sống thoáng đãng và rộng rãi cũng như tối ưu hóa công năng tiện nghi đáp ứng nhu cầu sử dụng cho các thành viên trong gia đình.
Bản vẽ mặt bằng công năng tầng trệt
Công năng tầng trệt bao gồm bố trí phòng khách, phòng bếp + ăn, phòng ngủ, phòng WC chung.

Bản vẽ mặt bằng công năng tầng trệt mẫu nhà 1 trệt 1 lầu đẹp 4×20
Mặt bằng được tính toán dựa trên các nhu cầu, thói quen sử dụng của gia đình. Thiết kế phần sân trước kết hợp làm khu vực để xe và trồng tiểu cảnh cây xanh, đây là một không gian đệm trước khi tiến vào bên trong nhà.
Từ sân trước bước vào là không gian nội thất phòng khách thoáng đãng, thiết kế liên thông cùng với phòng bếp và bàn ăn, tạo sự kết nối không gian cũng như tối ưu không gian thêm rộng rãi. Ngay bên cạnh phòng ăn là phòng ngủ dành cho ông bà, kế bên là phòng vệ sinh chung và lối ra sân sau nhà, tạo sự thuận tiện trong quá trình di chuyển.
Bản vẽ mặt bằng công năng lầu 1
Công năng lầu 1 bao gồm 2 phòng ngủ, phòng sinh hoạt chung, phòng thờ.

Bản vẽ mặt bằng công năng lầu 1 mẫu nhà 1 trệt 1 lầu đẹp 4×20
Lầu 1 của nhà 1 trệt 1 lầu đẹp 4×20 được kiến trúc sư thiết kế dành cho không gian sinh hoạt riêng tư của gia đình, bố trí 1 phòng ngủ master có diện tích sử dụng lớn, tích hợp thêm phòng vệ sinh khép kín, đáp ứng không gian nghỉ ngơi và thư giãn riêng tư cho vợ chồng chủ đầu tư.
Trung tâm ngôi nhà là phòng sinh hoạt chung của gia đình, kế bên là phòng ngủ dành cho cô con gái, thiết kế nội thất phù hợp với cá tính và sở thích của bé. Phòng thờ trang nghiêm đặt hướng ra trước mặt tiền, đón nhận được nhiều ánh sáng và gió tự nhiên từ bên ngoài.
Ý tưởng thiết kế nội thất nhà 1 trệt 1 lầu 4x20m sang trọng
Để hình dung rõ nét hơn về mẫu nhà 1 trệt 1 lầu đẹp 4×20 này, dưới đây là ý tưởng thiết kế nội thất mà bạn có thể tham khảo để có thêm nhiều gợi ý mới mẻ cho tổ ấm của gia đình mình trong tương lai.
Thiết kế nội thất phòng khách
Trong việc thiết kế căn nhà, sự thanh lịch và tinh tế luôn là yếu tố quan trọng được khách hàng mong muốn. Một trong những điểm đáng chú ý trong việc tạo ra một không gian đẹp mắt và sang trọng là bố trí nội thất phù hợp.
Một ví dụ cho việc áp dụng sự thanh lịch và tinh tế trong căn nhà là việc sử dụng bộ bàn ghế sofa kiểu chữ L. Loại bàn ghế này không chỉ mang lại sự thoải mái và tiện ích cho gia đình mà còn thể hiện được sự hiện đại và sang trọng. Sofa kiểu chữ L còn tạo ra sự hài hòa và đồng nhất trong không gian, đồng thời tạo ra các khu vực riêng biệt như khu vực xem TV, đọc sách hay thư giãn.
Phối màu sắc tương phản hài hòa cũng là một yếu tố không thể thiếu trong việc tạo ra sự thanh lịch và tinh tế. Khi chọn màu sắc cho bộ sofa, bàn trà và các vật dụng trang trí, tận dụng màu sáng và màu tối để tạo ra sự cân đối và hài hòa. Ví dụ, có thể sử dụng một chiếc bàn trà làm từ đá tự nhiên có màu sáng để tạo điểm nhấn trong không gian và cũng làm nổi bật sự tráng lệ và tuyệt vời của căn phòng.
Đèn trang trí cũng là một yếu tố quan trọng để tăng thêm vẻ sang trọng cho căn phòng. Có thể sử dụng các loại đèn trang trí được thiết kế độc đáo và nghệ thuật để tạo điểm nhấn và tạo ra ánh sáng mềm mại cho không gian. Ví dụ, một chiếc đèn chùm được làm từ chất liệu cao cấp và có thiết kế đẹp mắt có thể làm nổi bật không gian và góp phần tạo nên sự sang trọng cho căn phòng.
Như vậy, việc bố trí nội thất với bộ bàn ghế sofa kiểu chữ L, phối màu sắc tương phản hài hòa và sử dụng đèn trang trí là những cách tốt để mang lại sự thanh lịch và tinh tế cho căn nhà. Với những thiết kế và lựa chọn phù hợp, không gian phòng khách có thể trở thành một nơi tráng lệ và tuyệt vời để gia đình thư giãn và tiếp đón khách mời.

Nội thất phòng khách sử dụng tone màu sắc tương phản vô cùng bắt mắt
Tivi gắn tường kết hợp khối đá ốp lát tạo hình chữ nhật độc đáo, kích thích thị giác thêm phần ấn tượng. Cùng với tủ kệ gỗ đặt sát tường phía dưới, vừa không chiếm diện tích, vừa tăng không gian sử dụng cho gia đình.

Không gian nội thất thiết kế liền mạch tạo sự kết nối chặt chẽ và rộng rãi
Nhờ thiết kế nội thất mẫu nhà 1 trệt 1 lầu đẹp 4×20 kết nối mở, các không gian sinh hoạt trong căn nhà từ phòng khách, bếp và ăn đều liên kết với nhau, giúp cho quá trình ăn uống, sinh hoạt của các thành viên trong gia đình trở nên thoải mái hơn rất nhiều.
Thiết kế nội thất phòng bếp
Thiết kế phòng bếp có màu sắc nhẹ nhàng và sang trọng. Căn bếp chữ L gọn gàng, tối ưu diện tích sử dụng hiệu quả, có thêm đảo bếp lớn cung cấp khu vực ăn uống, thư giãn thoải mái cho gia đình. Nơi này còn được bố trí thêm những chiếc ghế bar cùng đèn trần trang trí tạo điểm nhấn ấn tượng và lung linh cho không gian.

Phòng bếp với đồ nội thất hiện đại kết hợp màu sắc trang nhã cùng mảng cây xanh đem lại một không gian ấm cúng

Thiết kế nội thất phòng bếp mẫu nhà 1 trệt 1 lầu đẹp 4×20 sang trọng và tiện nghi
Kệ bếp được thiết kế sát trần nhà, tạo nên một phần của không gian sống rất đặc biệt và ấm cúng.
Với vật liệu gỗ nâu đẹp mắt, nó không chỉ làm cho khu vực nấu nướng trở nên tinh tế hơn mà còn tạo ra một không gian ấm áp và êm dịu. Không những thế, mặt bếp và tường xung quanh được trang trí bằng kính trong suốt và đèn ánh sáng trắng, tạo ra một hiệu ứng tuyệt vời trong việc chiếu sáng và tăng độ sáng cho khu vực nấu nướng. Với ánh sáng trắng, khu vực trở nên sáng rõ và tạo cảm giác gọn gàng và sạch sẽ. Một khi bạn đứng trước kệ bếp này, bạn sẽ cảm nhận được sự tinh tế và hiện đại mà nó mang lại cho không gian.
Một điểm đáng chú ý là kiến trúc sư đã tạo thêm một tiểu cảnh xanh duyên dáng bên cạnh kệ bếp. Điều này không chỉ mang lại một màu sắc tươi mới cho không gian, mà còn giúp mang lại cảm giác gần gũi với thiên nhiên. Cảnh quan xanh tươi cùng với những bông hoa và cây xanh không chỉ làm cho căn phòng trở nên thêm sống động và dễ chịu mà còn cải thiện chất lượng không khí trong căn phòng.
Để giúp bạn hình dung rõ hơn, hãy tưởng tượng bạn đang đứng trước một kệ bếp được thiết kế sát trần nhà. Bạn nhìn thấy mặt bếp bằng gỗ nâu sáng bóng, được trang trí kính trong suốt và đèn ánh sáng trắng. Cái nhìn này làm cho kệ bếp trở nên sang trọng và ấm cúng. Bên cạnh đó là một tiểu cảnh xanh đẹp mắt với cây cỏ xanh tươi, hoa tươi rực rỡ và những chi tiết tự nhiên khác. Tất cả những chi tiết này tạo nên một không gian sống tuyệt vời, nơi bạn có thể nấu nướng và trò chuyện với gia đình và bạn bè cùng một lúc.
Với sự kết hợp tinh tế giữa vật liệu, ánh sáng và tiểu cảnh xanh, kệ bếp không chỉ thực hiện nhiệm vụ chức năng của nó, mà còn tạo ra một không gian sống đẹp mắt và thoải mái cho gia đình. Nếu bạn có ý định thiết kế lại khu vực nấu nướng trong nhà, hãy cân nhắc đến việc sử dụng kệ bếp với các yếu tố kiến trúc và thiết kế phù hợp để mang lại không gian sống hoàn hảo cho gia đình bạn.
Thiết kế nội thất phòng ngủ
Các phòng ngủ của nhà 1 trệt 1 lầu đẹp 4×20 hiện đại đều đem lại cảm giác ấm áp và thoải mái cho gia đình. Phòng ngủ có sự giản lược các chi tiết trang trí nội thất nhằm tối ưu diện tích sử dụng tiện nghi và thoải mái cho các thành viên nghỉ ngơi và thư giãn.

Phòng ngủ master sử dụng tone màu tương phản và trầm ấm
Phòng ngủ master thiết kế nội thất nhẹ nhàng và tinh tế, tối giản các họa tiết trang trí cầu kỳ mà vẫn đáp ứng tính thẩm mỹ cao. Sự tinh tế, hài hòa từ màu sắc cho đến đồ nội thất đã đem đến một không gian nghỉ ngơi hoàn hảo cho gia chủ.
Căn phòng ngủ lựa chọn tone màu trắng tinh khôi làm chủ đạo, điểm xuyết cùng màu đen trang nhã tạo sự tương phản bắt mắt cho không gian. Đặc biệt, phòng vệ sinh khép kín sử dụng vách kính trong suốt thay vì tường bê tông, đã góp phần tối ưu diện tích thêm phần thoáng đãng và rộng rãi. Chiếc giường lớn đặt trung tâm căn phòng tạo sự cân đối và chừa lối đi hai bên thoải mái.

Nội thất phòng ngủ 02 bố trí đồ nội thất khoa học đáp ứng sự tiện nghi trong quá trình sử dụng
Căn phòng ngủ 02 của nhà trệt 1 lầu đẹp 4×20 với thiết kế nội thất bằng gỗ gần gũi. Việc sử dụng tủ quần áo sát trần, kết hợp tivi âm phía trong tối ưu diện tích một cách hiệu quả, đáp ứng nhu cầu sử dụng cho gia đình.
Ngay từ cái nhìn đầu tiên, căn phòng này đã thu hút sự chú ý của mọi người bởi sự hài hòa và trang nhã trong thiết kế. Phòng được bố trí với các tone màu trắng, gam màu xám và nâu gỗ, tạo nên một không gian hiện đại nhưng không kém phần ấm cúng. Ở phòng khách, một chiếc ghế sofa màu xám được đặt giữa hai bức tường trắng. Những chiếc gối màu nâu gỗ được xếp ngay trên ghế, tạo nên điểm nhấn màu sắc và đồng thời làm tăng tính thẩm mỹ.
Bên cạnh đó, một bức tranh treo trên tường mang đến hơi thở nghệ thuật cho không gian này. Ở góc phòng có một niş nhỏ được trưng bày các vật trang trí như những tác phẩm nghệ thuật nhỏ, những đồ vật mang ý nghĩa hay những cây xanh nhỏ để tạo điểm nhấn cho không gian này. Sàn nhà được lát gạch men màu xám, tạo cảm giác lạnh và sạch sẽ.
Tuy nhiên, điểm nhấn chính của căn phòng chính là khoảng cách giữa cửa kính trong suốt và rèm che. Nhờ vào sự kết hợp này, chủ nhân căn phòng có thể tự do điều chỉnh lượng ánh sáng tự nhiên trong phòng. Khi muốn tận hưởng ánh sáng mặt trời, rèm che có thể được kéo lên hoặc gập lại để cửa kính trở nên trong suốt. Ngược lại, khi cần giữ riêng tư hoặc hạn chế ánh sáng, chỉ cần kéo rèm che xuống là căn phòng trở nên yên tĩnh và tối om hơn.
Thêm vào đó, tạo sự tương phản giữa ánh sáng tự nhiên và ánh sáng nhân tạo cũng mang đến cảm giác thoải mái và thư thái trong căn phòng này. Một chiếc đèn trần treo từ trần trung tâm mang đến một nguồn sáng chủ đạo, giúp chiếu sáng toàn bộ không gian một cách đồng đều và êm dịu. Với việc bố trí phòng như vậy, chủ nhân căn phòng có thể tận hưởng không gian dễ chịu để thư giãn sau một ngày làm việc căng thẳng. không gian sống trở nên thoải mái và bình yên, đặc biệt là khi có thể điều chỉnh được lượng ánh sáng và sử dụng nơi chứa trang trí cá nhân để thể hiện cái tôi riêng của mình. Ví dụ, một người có sở thích nghệ thuật có thể sử dụng không gian để trưng bày những tác phẩm nghệ thuật yêu thích của mình. Một người khác có thể thích cây cỏ và sử dụng không gian để trồng và chăm sóc những loại cây yêu thích của mình.
Tóm lại, việc bố trí căn phòng với các tone màu trắng, gam màu xám và nâu gỗ kết hợp với cửa kính trong suốt và rèm che 2 lớp không chỉ tạo nên một không gian hài hòa và thu hút mà còn mang đến cảm giác thoải mái và thư thái để thư giãn. Việc tự do điều chỉnh ánh sáng tự nhiên và sử dụng không gian để thể hiện cá nhân là những yếu tố quan trọng trong việc tạo nên một căn phòng sống đẹp và lý tưởng.

Phòng ngủ 03 thiết kế từ màu sắc và đồ nội thất hướng đến sự trẻ trung và năng động
Phòng ngủ 03 được thiết kế với các tone màu nhẹ nhàng và trẻ trung. Gam màu trắng tinh khôi chủ đạo cùng màu hồng cá tính phù hợp với lứa tuổi. Bàn học và tủ kệ được thiết kế gần với cửa sổ để đón nhận được nhiều ánh sáng và chủ động điều chỉnh theo ý muốn. Đồ nội thất như tranh treo tường, giường, tủ quần áo,… có kiểu dáng hiện đại, mở rộng và tận dụng không gian lưu trữ một cách tối đa.
Thiết kế nội thất phòng thờ

Thiết kế nội thất phòng thờ trang nghiêm
Không gian nội thất phòng thờ trang nghiêm nên việc trang trí nội thất rất được gia chủ chú ý đến. Khu vực bàn thờ được chạm khắc vô cùng tinh xảo, bày trí gọn gàng, tỉ mỉ giúp kết nối các thế hệ và thể hiện sự tôn kính của con cháu dành cho ông bà tổ tiên của gia đình. Tất cả không gian nội thất đã thể hiện lên sự trang nghiêm của nơi thờ cúng.
Thiết kế nội thất phòng tắm

Nội thất phòng vệ sinh kết hợp phòng tắm sử dụng tone màu sắc sáng giúp không gian luôn sạch sẽ, mới mẻ
Vẫn là một tone màu sắc trắng chủ đạo, nội thất phòng tắm kết hợp vệ sinh rộng rãi và thông thoáng. Gạch ốp sàn và tường đồng màu, các trang thiết bị vệ sinh bố trí khoa học, tiện nghi. Không gian tắm và vệ sinh ngăn cách bởi vách kính trong suốt, tạo sự kết nối không gian cũng như tối ưu diện tích thêm phần rộng rãi trong quá trình sử dụng.
Dự trù chi phí thi công mẫu nhà 1 trệt 1 lầu đẹp 4x20m
Để quý khách có thể chủ động hơn trong việc dự trù chi phí xây dựng nhà 1 trệt 1 lầu đẹp 4×20, dưới đây LG Tech chia sẻ cách tính chi phí để mọi người có thể tính toán cho công trình trong tương lai.
Hiện tại, LG Tech dự toán chi phí bằng cách tính theo diện tích m2, cụ thể như sau:
- Đơn giá xây dựng phần thô sẽ dao động từ 3.600.000đ – 3.800.000đ/m2
- Đơn giá xây dựng nhà hoàn thiện (ưu đãi miễn phí 100% chi phí thiết kế) dao động từ 6.100.000đ – 7.500.000đ/m2
Theo đơn giá trên, chúng ta sẽ áp dụng công thức tính như sau:
Chi phí xây nhà trọn gói = đơn giá x diện tích xây dựng
Dựa trên đơn giá xây dựng, công thức tính trên chúng ta sẽ dự trù chi phí như sau:
- Móng: 80 x 45% = 36m2
- Tầng trệt: 80 x 100% = 80m2
- Lầu 1: 80 x 100% = 80m2
- Mái BTCT: 80 x 80% = 64m2
=> Tổng diện tích xây dựng: 260m2
Vậy chi phí xây dựng nhà phố 2 tầng diện tích 80m2, cụ thể:
– Chi phí xây dựng phần thô: 260 x 3.750.000 = 975.000.000đ
– Chi phí thi công nhà trọn gói (chìa khóa trao tay): 260 x 7.000.000 = 1.820.000.000đ
Trên đây là phương án thiết kế nhà 1 trệt 1 lầu đẹp 4×20 hiện đại chắc chắn sẽ mang đến không gian sống tiện nghi, sang trọng và gần gũi với thiên nhiên. Hy vọng mẫu thiết kế nhà đẹp trên sẽ giúp bạn có thêm ý tưởng thiết kế mới cho gia đình mình trong tương lai.







