Bản vẽ nhà 1 trệt 1 lửng 1 lầu hiện đang đứng đầu trong xu hướng tìm kiếm mẫu nhà đẹp hiện nay, qua đó chúng ta có thể thấy mẫu nhà này đang được rất nhiều chủ đầu tư quan tâm và lựa chọn. Trong phạm vi bài viết này, LG Tech sẽ giới thiệu đến quý bạn đọc những mẫu bản vẽ nhà 1 trệt 1 lửng 1 lầu đẹp được thiết kế khoa học và tiện nghi cùng kiến trúc ngoại thất sang trọng. Cùng chúng tôi tìm hiểu nhé!
Nhà 1 trệt 1 lửng 1 lầu là gì?
Mẫu nhà 1 trệt 1 lửng 1 lầu hay còn gọi là nhà 2 tầng có gác lửng, là một kiểu nhà có kết cấu gồm 2 tầng và 1 gác lửng. Theo đó, tầng trệt là tầng đầu tiên, tiếp xúc trực tiếp với mặt đất. Tầng lửng được bố trí ở giữa tầng trệt và tầng lầu, có chiều cao trung bình từ 2,2 – 2,5m. Còn tầng lầu là tầng cao nhất của ngôi nhà.
Hầu hết, việc lựa chọn xây tầng lửng là để tăng không gian sử dụng cho gia chủ. So với việc xây thêm tầng lầu nữa thì việc sử dụng tầng lửng được cho là tối ưu chi phí xây dựng đáng kể. Đặc biệt, đối với những căn nhà phố, bị giới hạn về diện tích xây dựng, thì tầng lửng là một lựa chọn hoàn hảo để tăng không gian sử dụng.

Mẫu thiết kế nhà 1 trệt 1 lửng 1 lầu là gì?
Tuy tầng lửng không được xem là một tầng lầu nhưng lại đảm nhận chức năng tương tự như tầng lầu vậy. Tầng lửng có thể được bố trí phòng sinh hoạt chung, phòng thờ, phòng ngủ, phòng giải trí,.. tùy vào nhu cầu sử dụng của gia chủ mà không gian sẽ được bố trí phù hợp với mong muốn.
Ngoài ra, tầng lửng có thể được đặt ở phía trước, bên hông hay phía sau, tùy vào kiến trúc và sở thích của gia chủ mà kiến trúc sư sẽ cân đối và phân chia khoa học.
Những tiêu chuẩn khi thiết kế bản vẽ nhà 1 trệt 1 lửng 1 lầu
Để đảm bảo tính an toàn và tính thẩm mỹ cho công trình, khi xây nhà 1 trệt 1 lửng 1 lầu gia chủ cần tuân thủ các tiêu chuẩn sau:
Điều kiện xây dựng
Theo quy định của Luật Xây dựng, nhà ở riêng lẻ chỉ được xây dựng tầng lửng khi chiều rộng lộ giới L > 3,5m. Điều này nhằm đảm bảo an toàn cho người sử dụng và tránh gây ảnh hưởng đến các công trình xung quanh.

Đáp ứng điều kiện xây dựng nhà 1 trệt 1 lửng 1 lầu
Diện tích sàn tầng lửng
Diện tích sàn tầng lửng không được vượt quá 65% diện tích sàn xây dựng của tầng ngay bên dưới nhằm đảm bảo tính vững chắc và an toàn cho ngôi nhà.

Chú ý đến diện tích sàn của tầng lửng so với các tầng lầu khác
Chiều cao của tầng lửng
Chiều cao của tầng lửng thường được quy định như sau:
- Đối với trường hợp có lộ giới nhỏ hơn 3,5m và chiều cao từ mặt vỉa hè đến sàn tầng 1 là 3,8m, thì chiều cao của tầng lửng chỉ có thể từ 1,5m trở xuống.
- Trong trường hợp lộ giới lớn hơn 3,5m nhưng không quá 20m và chiều cao từ mặt vỉa hè đến sàn tầng 1 là 5,8m, tầng lửng có thể được xây dựng với chiều cao từ 1,8m đến 2m.
- Đối với các trường hợp có lộ giới lớn hơn 20m và chiều cao từ mặt vỉa hè đến sàn tầng 1 là 7m, chiều cao của tầng lửng có thể từ 2,8m đến 3m.
Những mẫu nhà 1 trệt 1 lửng 1 lầu đẹp được ưa chuộng nhất
Bạn đang tìm kiếm ý tưởng thiết kế nhà 1 trệt 1 lửng 1 lầu đẹp, hãy tham khảo ngay những phương án thiết kế dưới đây để có thêm nhiều ý tưởng mới và độc đáo cho riêng mình. Đây là những mẫu bản vẽ nhà 1 trệt 1 lửng 1 lầu đẹp đang được rất nhiều người yêu thích và lựa chọn được LG Tech tổng hợp. Cùng tham khảo nhé!

Mẫu thiết kế nhà 1 trệt 1 lửng 1 lầu bố trí tầng lửng làm không gian sinh hoạt chung

Kiến trúc nhà 1 trệt 1 lửng 1 lầu thiết kế tone màu trắng chủ đạo kết hợp vật liệu gỗ công nghiệp màu nâu tạo nên không gian gần gũi và sang trọng

Với diện tích xây dựng hạn chế, việc có thêm tầng lửng giúp tăng không gian sử dụng cho các thành viên trong gia đình
Những bản vẽ nhà 1 trệt 1 lửng 1 lầu thông dụng nhất hiện nay
Để đáp ứng nhu cầu sử dụng tiện nghi và thoải mái cho các thành viên trong gia đình. Việc bố trí công năng bản vẽ nhà 1 trệt 1 lửng 1 lầu khoa học và được tính toán kỹ lưỡng là một việc làm hết sức cần thiết. Dưới đây là một số bản vẽ nhà 2 tầng có gác lửng được sử dụng phổ biến nhất hiện nay, mời các bạn cùng tham khảo qua nhé!
Bản vẽ nhà 1 trệt 1 lửng 1 lầu cho vợ chồng trẻ
Với diện tích đất hạn chế, ngôi nhà 1 trệt 1 lửng 1 lầu 1 phòng ngủ dưới đây phù hợp với những cặp vợ chồng trẻ mới cưới hoặc có con nhỏ. Không gian được kiến trúc sư thiết kế tối ưu, đáp ứng các khu vực chức năng tiện nghi và thoải mái. Tầng trệt bố trí phòng khách, phòng ăn và bếp cùng phòng WC chung. Tầng lửng là phòng sinh hoạt chung cho cả gia đình. Lầu 1 là phòng ngủ của vợ chồng chủ đầu tư, không gian khá rộng rãi và tiện nghi khi tích hợp nhiều chức năng.

Bản vẽ mặt bằng công năng nhà 1 trệt 1 lửng 1 lầu cho cặp vợ chồng trẻ
Bản vẽ nhà 1 trệt 1 lầu 1 lửng có gara
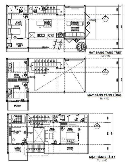
Mặt bằng công năng của nhà 1 trệt 1 lầu 1 lửng 3 phòng ngủ bao gồm tầng trệt bố trí sân trước làm khu vực gara để xe, phòng khách, phòng ngủ và phòng WC chung. Tầng lửng tận dụng làm khu vực nhà bếp và bàn ăn. Lầu 1 thiết kế 2 phòng ngủ, phòng sinh hoạt chung và phòng WC chung.
Bản vẽ nhà 1 trệt 1 lửng 1 lầu 3 phòng ngủ
Với bản vẽ mặt bằng công năng 3 phòng ngủ của ngôi nhà 1 trệt 1 lửng 1 lầu rất phù hợp cho những gia đình có từ 3-5 thành viên sinh sống. Công năng bố trí bao gồm tầng trệt có phòng khách, phòng ngủ và phòng WC chung. Tầng lửng bố trí không gian nấu nướng với căn bếp chữ I và bàn ăn dành cho 6 người. Lầu 1 thiết kế 2 phòng ngủ, 1 phòng WC chung.

Bản vẽ mặt bằng công năng nhà 1 trệt 1 lửng 1 lầu 3 phòng ngủ
Bản vẽ nhà 1 trệt 1 lửng 1 lầu 4 phòng ngủ
Công năng ngôi nhà 1 trệt 1 lửng 1 lầu 4 phòng ngủ được kiến trúc sư bố trí tầng trệt gồm có phòng khách rộng rãi, phòng bếp, phòng ăn, phòng WC chung. Mặt bằng tầng lửng thiết kế phòng sinh hoạt chung, phòng ngủ và phòng WC chung. Công năng lầu 1 có 3 phòng ngủ và phòng WC chung.
Bản vẽ nhà 1 trệt 1 lửng 1 lầu 5 phòng ngủ
Sở diện tích đất khá rộng lớn cùng gia đình có đông thành viên nên ngôi nhà 2 tầng có gác lửng được gia chủ bố trí 5 phòng ngủ, đáp ứng đầy đủ nhu cầu sinh hoạt và nghỉ ngơi thoải mái cũng như riêng tư cho các thành viên. Theo đó, tầng trệt gồm có phòng khách, phòng bếp + ăn, phòng ngủ giường đôi có nhà vệ sinh riêng, phòng WC chung. Tầng lửng bố trí 2 phòng ngủ tương đồng nhau. Lầu 1 thiết kế 2 phòng ngủ, phòng sinh hoạt chung và phòng vệ sinh chung.

Bản vẽ mặt bằng công năng nhà 1 trệt 1 lầu 1 lửng 5 phòng ngủ
Bản vẽ nhà 1 trệt 1 lửng 1 lầu hiện đại
Nhà hiện đại này không chỉ được thiết kế theo phong cách hiện đại mà còn có cấu trúc công năng thông minh. Ở tầng trệt, chúng ta có phòng khách được bố trí sao cho tiện lợi và thoải mái. Với kiến trúc mở, ánh sáng mặt trời có thể thoải mái đi vào phòng, tạo không gian sáng rạng ngời và gần gũi với thiên nhiên.
Phòng bếp tiện nghi được trang bị đầy đủ các thiết bị hiện đại để phục vụ nhu cầu nấu nướng hàng ngày của gia đình. Cùng với đó, có một phòng vệ sinh chung làm tăng tính tiện lợi và tránh việc cạnh tranh giữa các thành viên trong gia đình khi sử dụng nhà vệ sinh. Tầng lửng được thiết kế đặc biệt để dành cho ông bà, với một phòng ngủ riêng biệt và một nhà vệ sinh kín đảm bảo sự riêng tư và tiện lợi cho họ. Điều này giúp tạo ra một không gian riêng biệt dành riêng cho ông bà, nơi họ có thể thư giãn và nghỉ ngơi một cách thoải mái sau những ngày làm việc vất vả.
Lầu 1 bao gồm 2 phòng ngủ, một phòng cho vợ chồng và một phòng cho con trai. Mỗi phòng đều được thiết kế với một nhà vệ sinh riêng, đảm bảo sự tiện lợi và riêng tư cho mỗi thành viên trong gia đình. Khi mỗi người có một không gian ở riêng, tạo điều kiện thuận lợi cho mọi người có không gian cá nhân và tránh cảm giác chật chội.
Điều đáng nói là việc thiết kế hợp lý các không gian trong ngôi nhà này đã mang lại sự tiện nghi và thoải mái cho gia đình. Mỗi người trong gia đình có không gian riêng của mình để thư giãn và tận hưởng cuộc sống. Tổ chức thành công các hàng không gian trong căn nhà này là một ví dụ mẫu mực về cách sắp xếp một ngôi nhà thông minh và hài hòa về công năng. Dùng ví dụ này làm chuẩn mực, chúng ta có thể thấy rõ hơn tầm quan trọng và lợi ích của việc sắp xếp không gian trong một ngôi nhà.
Việc tạo ra những không gian phù hợp và tiện nghi không chỉ mang lại sự thoải mái và thoáng đãng cho cả gia đình, mà còn tạo điều kiện thuận lợi cho mỗi cá nhân trong gia đình có không gian cá nhân và riêng tư của mình. Điều này thể hiện sự tỉ mỉ và quan tâm đến sở thích và nhu cầu của mỗi thành viên trong gia đình, tạo nên một môi trường sống hài hòa và hạnh phúc.

Bản vẽ mặt bằng công năng nhà 1 trệt 1 lửng 1 lầu hiện đại
Bản vẽ nhà 1 trệt 1 lửng 1 lầu diện tích nhỏ
Với diện tích khá hạn chế, chỉ vỏn vẹn 4x10m, việc tối ưu không gian thông thoáng, rộng rãi và đáp ứng đầy đủ công năng sử dụng là một bài toán khó. Tuy nhiên đối với kiến trúc sư có nhiều năm kinh nghiệm thì việc này cũng khá đơn giản. Theo đó, tầng trệt được bố trí khu vực sân trước dùng để xe máy và tiểu cảnh xanh, bên trong nhà là không gian bếp và phòng khách liền kề nhau, vừa đáp ứng một không gian rộng thoáng, vừa kết nối sự thân mật giữa các thành viên trong gia đình, phía cuối nhà là phòng WC chung và cầu thang thông tầng. Tầng lửng là phòng ngủ rộng 16m2 có tích hợp thêm nhà vệ sinh riêng biệt. Lầu 1 bố trí 2 phòng ngủ tiện nghi và khu vực sân phơi.

Bản vẽ mặt bằng nhà 1 trệt 1 lửng 1 lầu có diện tích nhỏ 4x10m
Trên đây là những mẫu bản vẽ nhà 1 trệt 1 lửng 1 lầu đẹp, khoa học và phổ biến nhất hiện nay mà LG Tech đã gửi đến các bạn cùng chiêm ngưỡng. Hy vọng, thông qua bài viết trên sẽ giúp các bạn có thêm phương án bố trí mặt bằng công năng cho gia đình của mình trong tương lai.







