Bạn đang có ý định xây dựng một ngôi nhà 1 trệt 1 lầu cho gia đình mình? Bạn đang băn khoăn về các vấn đề liên quan đến thiết kế, phong cách, công năng sử dụng và chi phí xây dựng? Hãy cùng LG Tech tham khảo ngay bài viết kinh nghiệm xây nhà 1 trệt 1 lầu dưới đây được chúng tôi rút kết hơn 9 năm kinh nghiệm trong lĩnh vực xây dựng. Hy vọng bài viết sẽ đem đến những thông tin hữu ích trong việc xây dựng mái ấm cho gia đình mình trong tương lai.
Lợi ích khi xây nhà 1 trệt 1 lầu
Hiện nay, những mẫu nhà 1 trệt 1 lầu được nhiều gia đình quan tâm bởi công trình này mang lại nhiều lợi ích nổi bật, phù hợp với nhu cầu sử dụng cho gia đình có từ 3-5 thành viên cùng sinh sống. Dưới đây là một số ưu điểm của loại hình nhà ở này mà bạn có thể tham khảo.
- Lối thiết kế nhà khá đa dạng và thẩm mỹ, có nhiều phong cách để gia chủ lựa chọn từ tối giản đến hiện đại, từ tân cổ điển cho đến cổ điển. Mỗi một phong cách đều có điểm nhấn ấn tượng và thẩm mỹ riêng để thu hút mọi ánh nhìn.
- Nhà 1 trệt 1 lầu đáp ứng nhu cầu sử dụng thoải mái và tiện nghi cho gia đình có từ 2-3 thế hệ cùng sinh sống.
- Với chiều cao không quá lớn, không quá phô trương hay bề thế, tuy nhiên mẫu nhà đẹp này vẫn đem đến công trình kiên cố, khỏe khoắn và bền vững.
- Vì là nhà thấp tầng nên những công trình sẽ có mức đầu tư chi phí xây dựng không quá cao, rất phù hợp với nhiều gia đình trẻ. Cùng với đó, thời gian thi công hoàn thiện cũng khá nhanh chóng so với các nhà cao tầng khác.

Lợi ích khi thiết kế và thi công nhà 1 trệt 1 lầu
Kinh nghiệm xây nhà 1 trệt 1 lầu đẹp và tiết kiệm
Bạn là một gia đình trẻ, có con nhỏ, ngân sách đầu tư có phần hạn chế thì LG Tech khuyên bạn tốt nhất nên lựa chọn dịch vụ xây nhà 1 trệt 1 lầu trọn gói bởi vì có nhiều ưu điểm như tiết kiệm chi phí thiết kế (miễn phí 100% khi lựa chọn dịch vụ xây nhà trọn gói), tiết kiệm chi phí xây dựng, tiết kiệm thời gian, tránh phát sinh,… và dưới đây là các bước xây nhà 1 trệt 1 lầu mà các gia chủ có thể tham khảo trước khi xây dựng, nhằm tối ưu chi phí cũng như đáp ứng công năng sử dụng cho gia đình.
Xác định phong cách kiến trúc
Đây là một trong những bước đầu tiên và quan trọng nhất trong quá trình xây nhà. Việc xác định được phong cách và cấu trúc của ngôi nhà sẽ giúp gia chủ hình dung được tổng thể căn nhà của mình, từ đó có thể lên kế hoạch và dự trù kinh phí một cách khoa học.
Đối với phong cách kiến trúc, đây là một yếu tố quan trọng ảnh hưởng đến vẻ đẹp và tính thẩm mỹ của công trình. Hiện nay có rất nhiều phong cách xây dựng khác nhau, phổ biến nhất là các phong cách cổ điển, tân cổ điển, hiện đại, tối giản,…

Xác định rõ phong cách kiến trúc xây dựng ngay từ đầu
Để xác định được phong cách xây dựng phù hợp, gia chủ cần cân nhắc các yếu tố sau:
- Sở thích cá nhân
- Ngân sách đầu tư
- Diện tích đất xây dựng
- Quy hoạch đô thị
Ví dụ, nếu bạn yêu thích sự sang trọng, đẳng cấp và có kinh tế dư giả thì có thể lựa chọn phong cách cổ điển hoặc tân cổ điển. Nếu bạn yêu thích sự đơn giản, tinh tế và ngân sách đầu tư ở mức trung bình thì có thể lựa chọn phong cách hiện đại hoặc tối giản. Mỗi một phong cách sẽ có chi phí khác nhau và mang một nét đẹp đặc trưng riêng biệt.
Và để định hình được cấu trúc của ngôi nhà thì gia chủ cần dựa trên thực trạng hiện tại của khu đất xây dựng. Đối với những khu đất lớn, rộng rãi thì có thể xây nhà biệt thự sang trọng, tích hợp sân vườn, tiểu cảnh xanh. Còn đối với khu đất nhỏ thì xây nhà phố hiện đại sẽ là lựa chọn phù hợp.
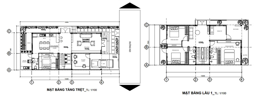
Lên ý tưởng bản vẽ thiết kế
Bộ hồ sơ thiết kế được xem như một bản hợp đồng giữa chủ đầu tư và nhà thầu xây dựng. Nó không chỉ là một tài liệu mô tả các yêu cầu và chỉ dẫn kỹ thuật để xây dựng công trình, mà còn đóng vai trò quan trọng trong việc trình bày ý đồ và khả năng sáng tạo của kiến trúc sư.
Tóm lại, bộ hồ sơ thiết kế có vai trò cực kỳ quan trọng trong việc đảm bảo quá trình thi công công trình xây dựng được diễn ra một cách hợp lý và thành công. Nó không chỉ đảm bảo công trình được xây dựng đúng theo ý muốn của gia chủ, mà còn đảm bảo tính an toàn và bền vững của công trình.

Lên ý tưởng bản vẽ thiết kế cho nhà 1 trệt 1 lầu
Và nếu không có khả năng lên ý tưởng bản vẽ thiết kế thì gia chủ có thể thuê kiến trúc sư hoặc chọn dịch vụ xây nhà trọn gói để phụ trách giai đoạn lên bản vẽ thiết kế cho gia đình. Hiện tại, nếu không có kinh nghiệm trong thiết kế xây dựng thì việc lên bản vẽ là điều không thể, không phải ai cũng có thể làm được. Vì thế hãy cân nhắc thật kỹ lưỡng bởi nó ảnh hưởng đến chất lượng sống, phong thủy và sự an toàn của công trình trong quá trình sử dụng của gia đình mình.

Lên kế hoạch chi tiết chi bản vẽ thiết kế cho nhà 1 trệt 1 lầu
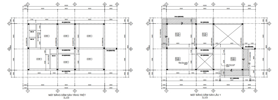
Dự toán chi phí xây dựng
Xây nhà là một khoản đầu tư lớn, vì vậy việc lập kế hoạch tài chính là vô cùng cần thiết. Bản dự toán chi phí sẽ giúp gia chủ ước tính được tổng chi phí xây dựng là bao nhiêu tiền, từ đó có thể chủ động để điều chỉnh kế hoạch xây dựng cho phù hợp với ngân sách đầu tư.
Khi lập bản dự toán kinh tế, gia chủ cần tham khảo giá thành xây dựng, vật liệu, nhân công,… tại thời điểm đó. Ngoài ra, gia chủ cũng cần tính toán đến các chi phí phát sinh như chi phí xin cấp phép xây dựng, chi phí nội thất,…

Dự toán chi phí xây dựng trọn gói nhà 1 trệt 1 lầu
Tuy nhiên, việc dự toán chi phí này tốn khá nhiều thời gian và công sức. Hơn nữa, nếu không có kinh nghiệm lựa chọn vật liệu thì gia chủ sẽ không đảm bảo được chất lượng, mua dư vật liệu, cũng như giá thành có thể cao hơn rất nhiều so với việc chọn nhà thầu xây nhà trọn gói.
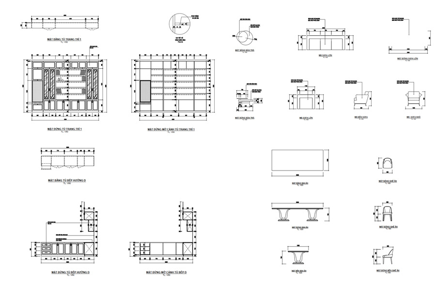
Lên kế hoạch mua sắm đồ nội thất
Việc lựa chọn nội thất phù hợp với phong cách thiết kế chủ đạo của ngôi nhà không chỉ mang lại sự hài hòa mà còn tạo nên một không gian sống hoàn hảo cho gia đình. Điều này giúp tăng cường cảm giác thoải mái và hài lòng của các thành viên trong gia đình, đồng thời tạo nên một không gian hiện đại và độc đáo. Ví dụ, nếu ngôi nhà có phong cách trang trí hiện đại và sử dụng các màu sắc trung tính như trắng, xám, và đen, thì việc lựa chọn bộ sofa màu trắng hoặc xám sẽ phù hợp. Một bộ sofa màu trắng sẽ mang lại một vẻ đẹp tinh tế và sang trọng, trong khi một bộ sofa màu xám sẽ tạo nên một không gian trang nhã và hiện đại.
Bên cạnh đó, việc chọn các chiếc bàn và ghế có thiết kế đơn giản và tinh tế sẽ làm nổi bật sự mạnh mẽ và thanh lịch của phong cách thiết kế hiện đại. Nếu ngôi nhà có phong cách trang trí cổ điển, trong đó sử dụng các màu sắc đậm như nâu, vàng, và màu đỏ, thì việc chọn bộ sofa màu nâu sẽ là một lựa chọn tuyệt vời. Màu nâu mang lại cảm giác ấm cúng và sang trọng, tạo nên một không gian trang nhã và truyền thống.
Thêm vào đó, việc chọn các món đồ nội thất có chất liệu đồng vàng, ngoại hình cổ điển sẽ tăng thêm sự phù hợp và cùng kết hợp tạo nên một không gian trang nhã theo phong cách cổ điển.
Ngoài ra, việc lựa chọn nội thất phù hợp còn đòi hỏi người lựa chọn phải cân nhắc các yếu tố tiện nghi và sử dụng của gia đình. Ví dụ, nếu gia đình có trẻ nhỏ, việc chọn bộ bàn ăn có kích thước và kiểu dáng phù hợp sẽ tạo điều kiện thuận lợi cho việc chăm sóc và nuôi dạy trẻ. Đồng thời, việc chọn ghế sofa có tính năng tiện nghi như có thể kéo ra để làm giường sẽ giúp tiết kiệm không gian và mang lại sự thoải mái và thuận tiện cho gia đình.
Ngoài ra, việc lựa chọn nội thất cần xem xét và đảm bảo phù hợp với kích thước của không gian sống. Ví dụ, nếu phòng khách có diện tích nhỏ, việc chọn một bộ sofa nhỏ gọn và những món đồ nội thất có kiểu dáng nhỏ hơn sẽ giúp tối ưu hóa không gian và tạo cảm giác thoải mái cho không gian sống.
Tóm lại, việc lựa chọn nội thất phù hợp với phong cách thiết kế chủ đạo của ngôi nhà và đáp ứng các yếu tố tiện nghi, sử dụng, và không gian là một yếu tố quan trọng trong việc tạo ra không gian sống hoàn hảo cho gia đình. Việc lựa chọn này không chỉ đơn thuần là vấn đề thẩm mỹ mà còn mang lại sự hài hòa và thoải mái cho gia đình.

Lên kế hoạch mua sắm đồ nội thất cho từng không gian
Ngoài kiểu dáng thì gia chủ cần chú ý đến kích thước, vị trí đặt đồ nội thất sao cho khoa học, không lấn chiếm quá nhiều diện tích cũng như đáp ứng yếu tố phong thủy. Để thực hiện điều này thì gia chủ cần có bản vẽ khai triển vật dụng chi tiết.
Nghiệm thu công trình
Nghiệm thu công trình là bước cuối cùng trong quá trình xây dựng. Gia chủ cần kiểm tra một cách chi tiết và kỹ lưỡng toàn bộ công trình để đảm bảo chất lượng, an toàn và thẩm mỹ.
Khi nghiệm thu công trình, gia chủ cần kiểm tra các hạng mục như kết cấu, điện nước, cửa, cầu thang, lan can,… Ngoài ra, cũng cần kiểm tra lại các yêu cầu thiết kế ban đầu để đảm bảo công trình đúng như mong muốn của mình.

Nghiệm thu công trình nhà 1 trệt 1 lầu chi tiết và kỹ lưỡng
Tham khảo một số mẫu nhà 1 trệt 1 lầu đẹp 2023
Ngoài chia sẻ kinh nghiệm xây nhà 1 trệt 1 lầu thì LG Tech gửi đến bạn những mẫu thiết kế nhà 1 trệt 1 lầu đẹp được ưa chuộng và phổ biến nhất hiện nay để cùng tham khảo và chiêm ngưỡng.
Mẫu nhà 1 trệt 1 lầu mái Thái
Nhà mái Thái là một trong những công trình được rất nhiều gia đình hiện nay lựa chọn trong việc xây dựng mái ấm bởi công trình sở hữu vẻ đẹp kiên cố, sang trọng và phù hợp cả nông thôn, thành thị. Với hệ mái Thái được xếp chồng lên nhau, có độ dốc lớn, giúp thoát nước cũng như chống thấm, mốc và đem đến tính thẩm mỹ cao cho ngôi nhà.

Nhà 1 trệt 1 lầu mái Thái với kiến trúc khỏe khoắn cùng tone màu trang nhã
Mẫu nhà 1 trệt 1 lầu mái bằng
Khác với hệ mái Thái, nhà 1 trệt 1 lầu mái bằng đem đến một công trình trẻ trung, hiện đại và vuông vức. Nhà mái bằng có lối thiết kế cá tính với những mảng hình khối cân đối, màu sắc tươi sáng kết hợp cùng tiểu cảnh xanh tại ban công và sử dụng cửa kính trong suốt đem đến một không gian sống mở, gần gũi cảnh quan thiên nhiên. Mẫu nhà này rất phù hợp với những gia chủ yêu thích nét đẹp phóng khoáng, đơn giản nhưng không kém phần sang trọng.

Mẫu thiết kế nhà 1 trệt 1 lầu mái bằng theo phong cách kiến trúc hiện đại
Mẫu nhà 1 trệt 1 lầu mái lệch
Nhà mái lệch hay còn gọi nhà mái chéo là một trong những kiểu công trình có phần mái cách điệu mới mẻ so với những hệ mái dốc truyền thống. Kiểu mái có thể là mái dốc về một bên hoặc mái dốc đổ cả về hai bên có độ lệch không đồng nhất, góp phần đem đến sự mới lạ cho ngôi nhà. Vẻ đẹp ấn tượng và mới lạ của nhà 1 trệt 1 lầu mái lệch phá vỡ đi sự nhàm chán, thay vào đó là sự cuốn hút khó tả.

Mẫu nhà 1 trệt 1 lầu mái lệch với mảng khối mái độc đáo và mới lạ
Mẫu nhà 1 trệt 1 lầu hiện đại
Nhà 1 trệt 1 lầu phong cách hiện đại là loại hình nhà ở được nhiều chủ đầu tư hiện nay rất ưa chuộng. Công trình có thiết kế tối giản, thanh thoát hoàn toàn không xuất hiện những chi tiết trang trí cầu kỳ như hoa văn, phào chỉ,… mà thay vào đó, ngôi nhà hiện đại gây ấn tượng bởi những hình khối bê tông đua ra thụt vào lạ mắt, khỏe khoắn kết hợp các vật liệu trang trí như gỗ, đá, kính, nhôm,… tạo nên vẻ đẹp cách tân mới mẻ cho ngôi nhà.

Thiết kế nhà 1 trệt 1 lầu phong cách hiện đại với khối hình vuông vức, góc cạnh bắt mắt
Mẫu nhà 1 trệt 1 lầu tân cổ điển
Một trong những đặc điểm nổi bật của những ngôi nhà tân cổ điển 1 trệt 1 lầu kết hợp phong cách. Phong cách trên được thể hiện khi sử dụng các chi tiết hoa văn và phào chỉ trang trí, tạo nên vẻ đẹp. Tuy nhiên sự mềm mại, uyển chuyển và không quá cầu kỳ tạo nên sự tối giản và thanh thoát cho ngôi nhà. Một ví dụ cụ thể về sự kết hợp giữa phong cách cổ điển và hiện đại trong một ngôi nhà tân cổ điển 1 trệt 1 lầu là việc sử dụng trụ cột kiên cố.
Trụ cột không chỉ có tác dụng chống lực và giữ cho ngôi nhà vững chắc, mà còn tạo nên vẻ bề thế và sang trọng cho kiến trúc. Trụ cột có thể được thiết kế với hình dáng và hoa văn phù hợp với phong cách cổ điển, nhưng vẫn mang trong mình tính năng hiện đại. Ví dụ, trụ cột có thể được làm bằng vật liệu chịu lực cao cấp như thép không gỉ hoặc bê tông cốt thép, có thể được sơn phủ một lớp sơn cao cấp để tôn lên vẻ đẹp và bền đẹp của nó.
Hình khối của ngôi nhà cũng đóng vai trò quan trọng trong việc tạo nên vẻ bề thế và sang trọng cho ngôi nhà tân cổ điển 1 trệt 1 lầu. Kiến trúc của những ngôi nhà này thường được thiết kế với các hình khối góc cạnh, tạo nên sự độc đáo và ấn tượng. Ví dụ, ngôi nhà có thể có hình dáng hình hộp chữ nhật với các phần cửa sổ lớn và với một tầng lầu phía trên được xây lên nhẹ nhàng nhưng vẫn chắc chắn. Sự khéo léo trong việc bố trí các hình khối này giúp ngôi nhà trở nên thu hút mọi ánh nhìn và tạo ra một ấn tượng mạnh mẽ.
Ngoài ra, việc sử dụng các chất liệu và màu sắc phù hợp cũng đóng vai trò quan trọng trong việc mang lại vẻ đẹp cho ngôi nhà tân cổ điển. Các vật liệu tự nhiên như gỗ, đá và bê tông cùng với các gam màu trầm nhã như nâu, xám, trắng thường được ưu tiên sử dụng. Ví dụ, các khung cửa và cửa sổ được làm bằng gỗ tự nhiên có thể sử dụng các hoa văn truyền thống để tạo nên vẻ đẹp cổ điển. Các bề mặt đá hoặc bê tông có thể được sử dụng để tạo ra sự mạnh mẽ và độc đáo cho tường nhà. Sự sử dụng đúng chất liệu và màu sắc không chỉ làm tăng tính thẩm mỹ mà còn tạo ra một không gian sống thoáng đãng và gần gũi với thiên nhiên.
Những ngôi nhà tân cổ điển 1 trệt 1 lầu không chỉ mang đến sự kiêu sa và sang trọng mà còn tạo nên một không gian sống thoải mái và thân thiện. Với sự kết hợp tinh tế giữa phong cách cổ điển và hiện đại, kiến trúc của chúng mang đến sự thanh lịch và sự tinh tế. Việc thiết kế ngôi nhà mềm mại và uyển chuyển cùng với việc sử dụng các chi tiết trang trí không quá cầu kỳ đủ để tạo nên một ngôi nhà hấp dẫn và đáng sống.

Phối cảnh nhà 1 trệt 1 lầu tân cổ điển với họa tiết và phào chỉ đắp nổi sang trọng, đẳng cấp
Mẫu nhà 1 trệt 1 lầu hình chữ L
Thiết kế nhà 1 trệt 1 lầu chữ L là kiểu nhà rất phổ biến hiện nay. Với cấu trúc hình chữ L giúp gia chủ dễ dàng bố trí, sắp xếp bố cục công năng chi tiết và khoa học. Đặc biệt là đối với những ngôi nhà có diện tích xây dựng lớn, gia chủ có thể kết hợp sân vườn rộng rãi, trồng nhiều cây xanh, bố trí khu vực để xe và không gian giải trí cho gia đình. Đây là một mẫu nhà đẹp đảm bảo các tiêu chí về một không gian sống xanh, công năng tiện nghi và kiến trúc bền vững.

Mẫu nhà chữ L hòa quyện giữa kiến trúc hiện đại cùng cây xanh bát ngát
Mẫu nhà 1 trệt 1 lửng 1 lầu
Mẫu nhà 1 trệt 1 lửng 1 lầu được xem là giải pháp giúp gia tăng không gian sử dụng nhưng chi phí xây dựng không quá cao như những căn nhà 3 tầng. Ngoài việc giải quyết được vấn đề không gian sống tiện nghi thì những căn nhà lửng còn được xem là xu hướng kiến trúc hiện nay bởi công trình phù hợp với đa dạng kiến trúc từ phong cách hiện đại cho đến tân cổ điển. Nhà 1 trệt 1 lầu 1 lửng đáp ứng một công trình thẩm mỹ cũng như phù hợp với những gia đình có từ 3-5 thành viên sinh sống.

Mẫu thiết kế nhà 1 trệt 1 lửng 1 lầu theo phong cách hiện đại là giải pháp tối ưu công năng tiện nghi
Các lưu ý khi xây nhà 1 trệt 1 lầu
Ngoài các kinh nghiệm xây nhà 1 trệt 1 lầu trên, khi xây dựng gia chủ cần lưu ý một số vấn đề như sau để đảm bảo công trình đáp ứng theo nhu cầu, tránh phát sinh và tiết kiệm chi phí khi thi công.
- Hãy tính toán, dự trù chi phí hợp lý cho ngôi nhà 2 tầng của gia đình, nên sử dụng 70-80% số tiền hiện có để dự phòng cho trường hợp phát sinh chi phí trong quá trình xây dựng nhà.
- Dựa trên nhu cầu sử dụng của từng thành viên trong gia đình, phân chia công năng sao cho hợp lý để đáp ứng sự thoải mái, tiện nghi và riêng tư.
- Lưu ý đến yếu tố phong thủy như hướng nhà, hướng cửa chính, vị trí bếp, vị trí cầu thang, vị trí các phòng,… nhằm mang đến tài lộc, may mắn cho gia đình.
- Tận dụng tối đa ánh sáng tự nhiên từ bên ngoài, sử dụng cửa kính hoặc giếng trời chính là giải pháp tốt nhất cho phương án này.
- Chừa lại một khoản diện tích để xây dựng sân trước nếu tổng diện tích đất đáp ứng được.
- Sử dụng vật liệu xây dựng, trang trí thân thiện với môi trường xung quanh.
- Theo dõi và giám sát quá trình thi công để đảm bảo công trình theo đúng tiến độ và chất lượng.

Những lưu ý khi xây nhà 1 trệt 1 lầu trọn gói







