3 mẫu thiết kế nhà 40m2 có thang máy
Thiết Kế Nhà 40m2 Có Thang Máy: Giải Pháp Tối Ưu Cho Không Gian Nhỏ
Khi nói đến thiết kế nhà ở trong không gian hạn chế như 40m2, việc lắp đặt thang máy có thể không phải là điều đầu tiên mọi người nghĩ đến. Tuy nhiên, với sự phát triển của công nghệ và thiết kế thông minh, thang máy ngày càng trở thành một phần không thể thiếu trong các ngôi nhà hiện đại, kể cả những ngôi nhà có diện tích khiêm tốn. Việc tích hợp thang máy trong nhà 40m2 không chỉ giúp tăng tính tiện lợi và an toàn mà còn nâng cao giá trị của ngôi nhà. Dưới đây là một số lợi ích và lưu ý khi thiết kế nhà 40m2 có thang máy.
Lợi Ích của Việc Có Thang Máy Trong Nhà 40m2
- Tiết Kiệm Không Gian: Thang máy hiện đại được thiết kế gọn gàng, phù hợp với không gian nhỏ. Các mẫu thang máy gia đình có thể được tích hợp ngay vào bức tường hoặc khoảng trống nhỏ, giúp tối ưu hóa không gian sử dụng.
- Thuận Tiện và An Toàn: Đối với gia đình có người già hoặc trẻ nhỏ, thang máy mang lại sự thuận tiện và an toàn khi di chuyển giữa các tầng, đặc biệt khi cần mang vác đồ đạc nặng.
- Tăng Giá Trị Bất Động Sản: Một ngôi nhà có thang máy thường được đánh giá cao hơn về mặt thị trường, làm tăng giá trị bất động sản, đặc biệt trong các khu vực đô thị.
Thiết Kế Thang Máy Cho Nhà 40m2
- Chọn Loại Thang Máy Phù Hợp: Đối với nhà 40m2, các loại thang máy gia đình nhỏ, thang máy không dùng hố pit, hoặc thang máy pneumatic (thang máy chân không) có thể là những lựa chọn tối ưu. Chúng nhỏ gọn và không đòi hỏi nhiều không gian cho hố thang máy.
- Tối Ưu Hóa Không Gian: Thiết kế thang máy nên đảm bảo không làm ảnh hưởng đến các không gian sống chính. Việc sử dụng kính trong suốt hoặc thiết kế mở có thể giúp không gian nhìn rộng rãi hơn.
- Đảm Bảo An Toàn và Tuân Thủ Pháp Lý: Kiểm tra các quy định về an toàn và xây dựng tại địa phương khi lắp đặt thang máy. Đảm bảo thiết kế và lắp đặt thang máy tuân thủ tất cả các tiêu chuẩn an toàn cần thiết.
Với diện tích 40m2, để bố trí được đầy đủ các phòng ốc, công năng mà vẫn đảm bảo tính thẩm mỹ thì các kiến trúc sư phải thực sự đầu tư nghiên cứu. Hơn thế nữa, với những căn nhà 40m2 từ 5 tầng trở lên, việc bố trí thang máy là vô cùng cần thiết. Dưới đây là 3 mẫu thiết kế nhà 40m2 có thang máy bạn có thể tham khảo.
Mẫu 1: Thiết kế nhà 40m2, khổ đất 4x10m có thang máy
Thông tin chung về công trình:
Mặt tiền: 4 m. Diện tích mặt bằng: 4m x 10m
Loại hình: Nhà ở
Số tầng: 6 tầng
Số lượng phòng: Mỗi tầng bố trí 1 phòng diện tích 20m2
Toàn bộ phần giao thông của ngôi nhà được bố trí ở cuối công trình
Thông tin thang máy:
Sử dụng loại thang máy gia đình nhỏ nhất
Tải trọng: 250kg
Kích thước cabin: 1030mm x 830mm x 2300mm
Kích thước hố thang: 1430mm x 1330mm
Cửa thang rộng 650mm

Mặt cắt ngang bản vẽ thiết kế nhà 40m2
Mẫu 2: Thiết kế nhà ống 5 tầng, lô góc 40m2
Thông tin chung về công trình:
Tên chủ nhà: Phạm Văn Trung
Diện tích 40m2, lô góc với 2 mặt tiền
Số tầng: 5 tầng
Phong cách: Hiện đại
Thang máy sử dụng: Loại thang gia đình nhỏ nhất, loại tải trọng 250kg nhập khẩu nguyên chiếc hoặc liên doanh
Nguồn nội dung: https://nhadepktv.vn/thiet-ke-nha-lo-pho/thiet-ke-nha-ong-5-tang-lo-goc.html
Cơ cấu không gian các tầng:
Tầng 1: Gồm phòng ăn, phòng bếp và khu để xe ban đêm
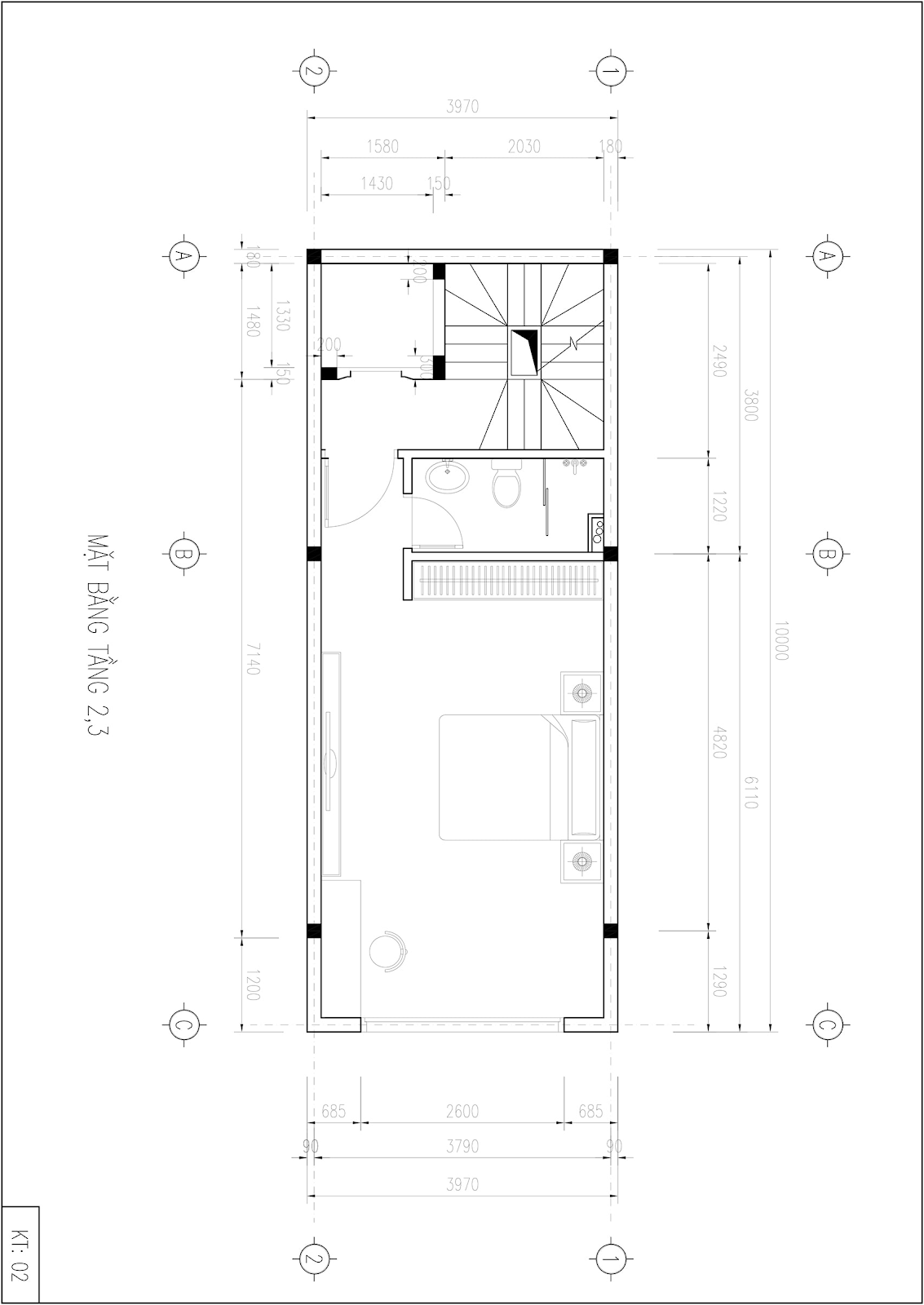
Tầng 2: Do thiết kế đua ra vỉa hè mỗi bên 900mm nên diện tích tầng 2 là 55m2. Không gian tầng 2 gồm phòng khách, phòng ngủ, ban công, nhà vệ sinh
Tầng 3, tầng 4: Diện tích 55m2, gồm 2 phòng ngủ cho người lớn rộng 23m2 và 1 phòng ngủ cho trẻ con rộng 12,5m2, phòng vệ sinh rộng 5,5m2, ban công
Tầng 5: Gồm phòng thờ, khu bếp nấu nhỏ và sân thượng để phơi đồ và trồng cây cảnh

Bản vẽ tầng 1

Bản vẽ tầng 2, tầng 3

Bản vẽ tầng 5
Mẫu 3: Thiết kế nhà phố 5 tầng, 4x10m
Thông tin chung về công trình:
Chủ công trình: Anh Huyên
Địa chỉ tọa lạc: Phố Nguyễn Văn Huyên, Bến Tre
Phong cách: Nhà phố đẹp, hiện đại
Số tầng: 5 tầng
Thang máy sử dụng: Loại thang gia đình tải trọng 250kg nhập khẩu nguyên chiếc hoặc liên doanh
Cơ cấu không gian các tầng:
Tầng 1: Bố trí hệ thống gara ô tô, nhà để xe, 1 phòng bếp
Tầng 2: Gồm 1 phòng khách, 1 phòng ngủ, 1 nhà vệ sinh, 1 ban công nhỏ để hút ánh sáng cho ngôi nhà
Tầng 3: Bố trí khu vực giếng trời, 1 phòng ngủ, 1 nhà vệ sinh lớn, 1 ban công để lấy ánh sáng tự nhiên
Tầng 4: Gồm 2 phòng ngủ và có sân thượng để phơi quần áo
Tầng 5: Gồm phòng thờ, sân thượng và phòng giặt

Mặt bằng tầng 1

Mặt bằng tầng 2

Mặt bằng tầng 3

Mặt bằng tầng 4

Mặt bằng tầng 5
Có thể thấy, với 3 mẫu thiết kế nhà 40m2 có thang máy kể trên, việc tận dụng không gian để bố trí các phòng công năng cho ngôi nhà là rất quan trọng. Hơn nữa, do đều là nhà mặt phố, chiều cao từ 5 tầng trở lên nên sử dụng thang máy gia đình tải trọng 250kg là hợp lý.
Tùy vào mức đầu tư cho hạng mục thang máy, mà chủ nhà có thể chọn loại thang máy phù hợp. Có thể là thang máy liên doanh, hoặc thang máy nhập khẩu nguyên chiếc. Về giá cả thì thang máy nhập khẩu nguyên chiếc có mức giá cao hơn so với dòng liên doanh.
LG Tech hy vọng với bài viết này có thể cung cấp cho bạn một số thông tin hữu ích phục vụ cho sự lựa chọn của bạn.







