10+ Mẫu nhà 1 trệt 1 lầu 5×17 hiện đại tiết kiệm vừa đẹp vừa rẻ
Với những gia đình có ít thành viên cùng sinh sống hoặc điều kiện về tài chính không quá nhiều nhưng vẫn muốn sở hữu một không gian sống tiện nghi và sang trọng. Mẫu nhà 1 trệt 1 lầu 5×17 được xem là phương án tối ưu nhất dành cho bạn ngay lúc này. Với kinh phí đầu tư vừa phải, đảm bảo một công trình kiên cố và tinh tế cùng đáp ứng đầy đủ công năng sử dụng. Bạn có thể hoàn toàn thiết kế thi công nhà 1 trệt 1 lầu 5×17 để phục vụ nhu cầu sống cho tất cả các thành viên trong gia đình.
Phối cảnh mặt tiền mẫu nhà 1 trệt 1 lầu 5×17 hiện đại
Ngay sau khi chúng tôi tiếp nhận yêu cầu thiết kế thi công mẫu nhà 1 trệt 1 lầu của gia đình chú Hùng, kiến trúc sư đã nhanh chóng tiến hành khảo sát hiện trạng thực tế khu đất. Từ đó, lên kế hoạch, ý tưởng và phương án thiết kế sao cho đáp ứng với điều kiện thực tế của gia đình.

Với mặt tiền 5m, chiều sâu dài 17m, phương án xử lý mặt tiền nhanh chóng được kiến trúc sư xử lý và thiết kế mặt tiền khá thoáng đãng và rộng rãi.
Mẫu thiết kế nhà đẹp với hệ cửa cổng chính bốn cánh, thiết kế lam gỗ chắn ngang cùng khung sắt phun sơn tĩnh điện màu đen kết hợp cùng trụ cột bê tông kiên cố và gạch inax ốp giúp kiến trúc mặt tiền trở nên thông thoáng, hiện đại và ấn tượng hơn trong tổng thể. Phía trước được bố trí khoảng không gian sân trước khá rộng, kết hợp tiểu cảnh cây xanh đem đến sức sống và tràn đầy năng lượng cho ngôi nhà.

Thiết kế mẫu nhà 1 trệt 1 lầu 5×17 với mảng tường tầng trệt được ốp đá tự nhiên màu trắng vân mây xám, cùng ban công lầu 1 bố lan can sắt trang trí hoa văn uốn lượn màu đen, khối ban công đua ra rộng hình vòm kết hợp hệ mái giật cấp đem đến sự cân đối trong tổng thể cũng như giúp căn nhà toát lên sự bề thế và vững chãi.
Hình khối giật cấp cùng với khoảng cửa nhôm kính xingfa màu đen kết hợp với gạch inax ốp tường trang trí và tone màu sắc trắng làm chủ đạo giúp tôn lên nét đẹp của các vật liệu, các chi tiết trang trí mang đến cảm hứng mới lạ cho không gian nhà phố.
Phương án thiết kế mẫu nhà 1 trệt 1 lầu 5×17 với hình khối đơn giản, nhẹ nhàng nhưng ấn tượng, màu sắc phối trang nhã và hài hòa, sự kết hợp ăn ý tạo nên một không gian gần gũi và đẹp mắt cho gia đình.
Mặt bằng công năng mẫu nhà 1 trệt 1 lầu 5×17
Để đáp ứng một ngôi nhà hoàn hảo nhất cho gia đình chú Hùng tại Củ Chi, TP. HCM ngoài phối cảnh đẹp mắt và ấn tượng thì mặt bằng công năng cũng cần phải được thiết kế chú trọng đến. Ngôi nhà ưu tiên sự thông thoáng và tiện nghi, thiết kế hướng đến không gian mở, đây là những yêu cầu mà gia chủ quan tâm đặc biệt đến.
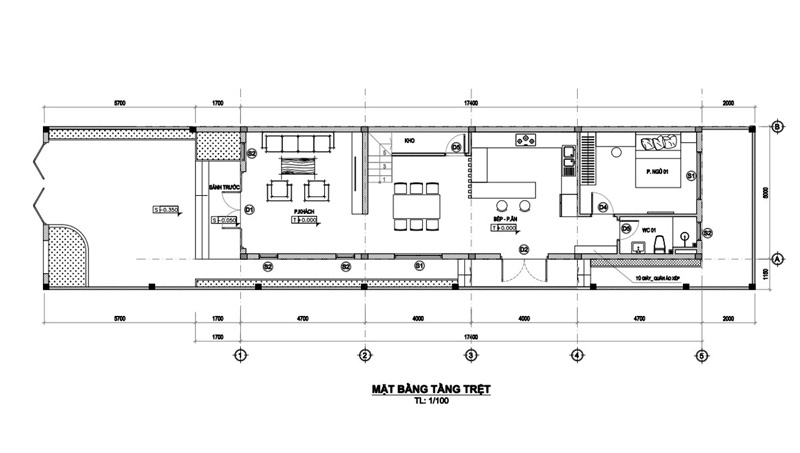
Mặt bằng công năng tầng trệt mẫu nhà 1 trệt 1 lầu 5×17
Với diện tích xây dựng không quá rộng lớn, đi cùng kiến trúc nhà phố, kiến trúc sư đã đưa ra phương án bố trí mặt bằng đề cao đến sự thông thoáng sát với yêu cầu của gia đình.

Tầng trệt của căn nhà thiết kế với sự chú trọng đến việc tạo không gian thoáng đãng, đón ánh sáng tự nhiên từ bên ngoài. Với sân trước rộng rãi, gia đình có thể tổ chức các hoạt động ngoài trời như hẹn hò gia đình, trò chuyện với hàng xóm hoặc trồng và chăm sóc cây cảnh. Phòng khách nằm kề ngay cửa chính, tạo sự thuận tiện cho cả gia đình và khách mời khi đến nhà. Kiến trúc sư đã chọn bố trí phòng khách ở vị trí này để tận dụng ánh sáng từ cửa chính và cũng tạo ra một không gian mở, mời gọi và thoáng đãng cho mọi người. Ngoài ra, một cửa sổ lớn hoặc cửa kính cũng có thể được thêm vào để tận dụng tối đa ánh sáng tự nhiên và tạo ra mối liên kết giữa ngôi nhà và môi trường bên ngoài. Ở tầng trệt, có một cầu thang thông tầng được đặt ngay gần khu vực phòng khách. Cầu thang không chỉ xây dựng như một phần của đường đi lên xuống giữa các tầng mà nó còn có thể được sử dụng một cách đa chức năng. Kiến trúc sư thông minh sắp xếp một nhà kho nhỏ ngay tại cầu thang thông tầng này. Nhờ vị trí đặt nhà kho này, không gian không được sử dụng một cách hiệu quả trước đây giờ đây trở thành nơi để lưu trữ các vật dụng, sách báo, quần áo hoặc các vật phẩm gia đình khác. Điều này thể hiện sự tinh tế trong thiết kế không chỉ giúp tiết kiệm diện tích mà còn đảm bảo tính công năng của căn nhà. Nhà kho nhỏ này không chỉ giúp tận dụng tối đa không gian của cầu thang thông tầng mà còn giúp gia đình có một nơi lưu trữ ngay tại căn nhà của mình mà không cần tạo ra diện tích riêng biệt cho việc đó. Với sự kết hợp giữa không gian tiện nghi, thoáng đãng, và tính công năng, căn nhà trên tầng trệt này tạo ra một môi trường sống thoải mái và ấm cúng cho gia đình. Cách bố trí căn nhà này cũng cho phép sự linh động trong việc sử dụng không gian và tận dụng tối đa nguồn năng lượng và ánh sáng tự nhiên. Điều này không chỉ giúp giảm thiểu sử dụng điện năng mà còn mang lại lợi ích cho sức khỏe và tâm trí của cả gia đình.
Không gian phòng bếp và 1 phòng ngủ cùng nhà vệ sinh chung đặt cuối nhà, đảm bảo vừa thông thoáng vừa tạo điều kiện thuận tiện cho quá trình sinh hoạt cũng như sử dụng tiện nghi cho các thành viên.
Mặt bằng công năng lầu 1 nhà 1 trệt 1 lầu 5x17m
Công năng lầu 1 của mẫu nhà 1 trệt 1 lầu 5×17 bố trí 2 phòng ngủ, trong đó 1 phòng ngủ master thiết kế hướng ra trước mặt tiền, không gian rộng và thoáng hơn phòng ngủ còn lại. Trung tâm nhà là khu vực phòng sinh hoạt chung và học tập, đảm bảo nơi nghỉ ngơi và thư giãn lý tưởng cho các thành viên trong gia đình.

Với mặt bằng công năng được bố trí dựa trên nhu cầu sinh hoạt của từng thành viên trong gia đình này, kiến trúc sư của LG Tech đã hoàn toàn chinh phục chủ đầu tư từ phối cảnh của mẫu nhà 1 trệt 1 lầu 5×17 cho đến cách bố trí và phân chia công năng.
Phối cảnh nội thất mẫu nhà 1 trệt 1 lầu 5×17 hiện đại
Một thiết kế nội thất phòng khu trong một căn nhà 1 trệt 1 lầu có thể tạo cảm giác tươi sáng và trẻ trung bằng cách thống trị màu trắng trên tường. Màu trắng tạo nên không gian rộng rãi, sạch sẽ và thông thoáng, đồng thời cũng là một tông màu dễ dùng và phối hợp với các màu sắc khác. Bộ sofa chữ L màu xám là một sự lựa chọn kỹ càng để mang lại sự thoải mái và tiện nghi cho phòng khách. Sofa chữ L cho phép gia đình và khách mời có thể ngồi thoải mái và thư giãn sau một ngày làm việc căng thẳng. Màu xám của sofa mang lại vẻ đẹp trang nhã và tạo sự kháng kháng cho không gian. Bàn kính hình tròn được chọn để kết hợp với sofa, tạo điểm nhấn trang trí và mang lại cảm giác thanh lịch cho không gian. Bàn kính có thể được sử dụng để đặt hoa, sách và các vật trang trí nhỏ khác, làm nổi bật esthetics của phòng khách. Tấm thảm lông đen được đặt dưới bộ sofa có thể thêm sự ấm áp và mềm mại cho không gian, đồng thời tạo điểm nhấn trực quan cho không gian. Thảm lông đen có sự kết hợp giữa màu sắc tối và bề mặt mềm mại, tạo nên sự hòa trộn hoàn hảo giữa tính năng và thẩm mỹ. Trong thiết kế nội thất phòng khách, việc sắp xếp hài hòa giữa sự tiện nghi và vẻ đẹp trang nhã là mục tiêu quan trọng. Việc chọn lựa các màu sắc tinh tế và khéo léo giúp đạt được mục tiêu này. Màu trắng trên tường kết hợp với màu xám trên sofa và thảm lông đen tạo sự cân đối và phối hợp màu sắc nhằm tạo nên một không gian hài hòa và trang nhã. Ngoài ra, việc chọn lựa các trang trí như đèn trang trí, tranh ảnh, đèn bàn và thảm trang trí có thể làm tăng thêm vẻ đẹp và sự sang trọng cho phòng khách. Sự chú trọng vào chi tiết và những món phụ kiện này sẽ tạo nên sự hoàn thiện cho thiết kế nội thất phòng khách mẫu nhà 1 trệt 1 lầu. Ví dụ, một chiếc đèn trang trí với kiểu dáng độc đáo hoặc một bức tranh ảnh có màu sắc sống động có thể làm tăng thêm sinh khí và nét riêng độc đáo cho phòng khách. Sự kết hợp giữa ánh sáng và màu sắc sẽ tạo ra một không gian thân thiện và ấm cúng cho cả gia đình và khách mời. Tổng thể, việc thiết kế một phòng khách mẫu trong một ngôi nhà 1 trệt 1 lầu với sự thống trị của màu trắng trên tường và sự hài hòa giữa sofa chữ L màu xám, bàn kính hình tròn và tấm thảm lông đen tạo nên một không gian tiện nghi, thoải mái và trang nhã. Việc chọn lựa và bố trí các màu sắc và trang trí phù hợp, cùng với sự tập trung vào chi tiết và các món phụ kiện, sẽ tạo ra một phòng khách đẹp mắt và đáp ứng được nhu cầu của cả gia đình và khách mời.
Kệ tivi gắn tường, tivi treo tường nhằm tối ưu diện tích, kèm theo đó là ngăn kệ tủ tích hợp nhiều ngăn hộc cùng với hệ thống cửa kính có rèm kéo giúp cho việc sắp xếp không gian phòng khách trở nên gọn gàng và thông thoáng hơn rất nhiều.
Khu vực cầu thang kết hợp với giếng trời cùng với tiểu cảnh cây xanh góp phần mang cảnh quan thiên nhiên vào trong nhà, kết hợp với ánh sáng và gió trời giúp ngôi nhà luôn mát mẻ và gần gũi.
Thiết kế bếp cho mẫu nhà 1 trệt 1 lầu 5×17 gây ấn tượng mạnh mẽ với nội thất sử dụng đồ gỗ tự nhiên, cùng với tone màu trầm ấm thể hiện gu thẩm mỹ và một không gian trang nhã. Tủ bếp chữ L ôm sát tường, cao sát trần cùng nhiều học tủ, giúp cho việc cất giữ đồ dùng được thoải mái và dễ dàng hơn. Bên cạnh đó, việc kết hợp thêm đảo bếp được ốp đá tự nhiên vân mây cùng lam gỗ tạo cho khu vực nấu nướng thêm phần rộng hơn và thuận tiện hơn trong việc sinh hoạt hàng ngày của gia đình.
Khu vực bàn ăn nổi bật khi được trang trí thêm những bức tranh treo tường màu sắc cùng đường gờ đắp nổi trên mảng tường mang đến vẻ đẹp sinh động và mới mẻ. Cùng với đó, bộ bàn ghế anh kiểu cách, hệ thống đèn thả trần càng giúp không thêm phần ấn tượng và ấm cúng cho những bữa ăn ngon cho gia đình.
Phòng ngủ master thiết kế rộng rãi với đầy đủ nội thất tiện nghi, tích hợp cùng phòng vệ sinh khép kín trong phòng để thuận tiện cho nhu cầu sinh hoạt riêng tư. Bên cạnh đó, sự kết hợp tinh tế của các gam màu trung tính như màu trắng chủ đạo, màu xám và màu nâu gỗ đã làm căn phòng thêm phần sang trọng hơn.
Ngoài ra, việc kết hợp với cửa sổ, cửa thông gió bằng cửa kính khung nhôm xingfa kết hợp rèm che, giúp gia chủ có thể chủ động trong việc lấy sáng và gió từ bên ngoài vào, góp phần tạo sự thoáng mát và mới mẻ cho căn phòng ngủ.
Phòng ngủ của cô con gái thiết kế nhẹ nhàng và ấn tượng với gam màu hồng tươi sáng và gam màu trắng. Kết hợp cùng giấy dán tường và tủ kệ nhiều ngăn giúp không gian càng trở nên trẻ trung và sinh động hơn, phù hợp với tính cách của cô con gái mới lớn.
Cửa ban công và cửa thông gió được bố trí khoa học, kết hợp rèm kéo giúp điều chỉnh tự động ánh sáng chủ động từ bên ngoài vào. Tab 2 bên đầu giường được tận dụng bố trí bàn học và khu vực ngồi thư giãn, vừa tăng công năng sử dụng, vừa chiếm nhiều diện tích.
Nhà vệ sinh với gạch màu sáng vân mây ốp tường, sàn lát gạch màu trầm bắt mắt tạo nên một không gian sạch sẽ và sang trọng. Phòng tắm được ngăn cách với vệ sinh nhờ vách kính trong suốt, thiết kế thông minh vừa có thể ngăn cách khu vực chức năng vừa có sự liên kết chặt chẽ.
Hình ảnh thi công hoàn thiện mẫu nhà 1 trệt 1 lầu 5×17
Để bạn có thể hình dung công trình thực tế sau khi thi công, LG Tech gửi đến bạn một số hình ảnh mẫu nhà 1 trệt 1 lầu 5×17 được chúng tôi thiết kế thi công trọn gói cho gia đình chú Hùng tại Củ Chi, TP. HCM với kinh phí thi công kiến trúc 3,2 tỷ, nội thất 450 triệu.





Tham khảo thêm các mẫu nhà 1 trệt 1 lầu 5×17 đẹp sang trọng khác
Để các bạn có thêm ý tưởng thiết kế cho mẫu nhà 1 trệt 1 lầu 5×17 thì chúng tôi gửi đến bạn một số mẫu nhà phố 2 tầng 5x17m được yêu thích và ưa chuộng nhất hiện nay. Hy vọng sẽ giúp bạn có thêm nhiều phương án thiết kế mới mẻ cho không gian sống của gia đình mình.
Mẫu nhà 1 trệt 1 lầu 5×17 mái bằng
Mẫu thiết kế mẫu nhà 1 trệt 1 lầu 5×17 với kiến trúc hiện đại vừa tiết kiệm chi phí xây dựng, vừa đảm bảo một không gian sống thông thoáng cùng công năng sử dụng tiện nghi. Cùng với đó, phong cách thiết kế cách tân này dễ dàng chiếm trọn tình cảm của nhiều chủ đầu tư từ khắp khu vực thành thị cho đến nông thôn.

Ngôi nhà thiết kế gần gũi với không gian mở, nhiều khoảng không rộng đón ánh sáng và gió trời. Cùng với việc kết hợp hài hòa giữa gam màu trắng tinh khôi làm chủ đạo hòa với gam màu gam màu nâu gỗ trầm ấm và màu đen của khung cửa kính đã giúp căn nhà thêm phần cuốn hút và bắt mắt hơn rất nhiều. Bên cạnh đó, khi thiết kế mẫu nhà 1 trệt 1 lầu 5×17, gia chủ đã chú trọng đến việc tích hợp cây xanh, vừa tô điểm thêm màu sắc sinh động vừa mang đến cảnh quan thiên nhiên vào căn nhà phố.
Mẫu thiết kế nhà 1 trệt 1 lầu 5×17 mái thái
Mẫu nhà 1 trệt 5×17 mái thái là một công trình kiến trúc đẹp mắt và có mặt tiền công năng. Thiết kế của ngôi nhà này tập trung vào việc tạo nên các chi tiết trang trí và hoàn thiện ngoại thất để tạo nên một vẻ đẹp hiện đại và đẳng cấp. Ngôi nhà được thiết kế với 2 mặt tiền, tạo nên sự thu hút cho người nhìn từ mọi góc độ. Với sự kết hợp hoàn hảo của các tone màu trung tính, ngôi nhà mang lại một cảm giác thanh lịch và sang trọng. Các màu sắc như trắng, xám, và nâu được sử dụng làm màu chủ đạo, tăng thêm vẻ đẹp thoáng đãng và tinh tế cho ngôi nhà. Kiểu dáng hình vuông của ngôi nhà cùng với các đường nét sắc sảo và tinh tế tạo nên một ấn tượng mạnh mẽ và imposant. Các góc cạnh được thiết kế chắc chắn và cân đối, mang lại vẻ đẹp hài hòa và kiên cố cho công trình này. Ngoài ra, ngôi nhà còn sử dụng mái thái để tạo nên sự phong cách riêng biệt và thu hút. Mái thái có hình dạng độc đáo và sáng tạo, mang lại cảm giác mới mẻ và khác biệt cho kiến trúc của ngôi nhà. Để minh họa thêm cho sự đẹp mắt và cuốn hút của ngôi nhà này, chúng ta có thể xem xét một số ví dụ về các chi tiết trang trí và hoàn thiện ngoại thất. Ví dụ, ngôi nhà có thể được trang trí bằng các mảng xanh tươi mát và cây cỏ xung quanh, tạo nên một không gian thoáng đãng và gần gũi với thiên nhiên. Ngoài ra, cửa chính và cửa sổ cũng được chú trọng và thiết kế một cách tinh tế. Cửa chính có thể được làm bằng gỗ tự nhiên, tạo nên sự đẹp mắt và ấm cúng cho ngôi nhà. Cửa sổ có thể được thiết kế lớn, để cho ánh sáng tự nhiên và không gian thoáng đãng đi vào trong nhà. Với mẫu nhà 1 trệt 5×17 mái thái này, chúng ta có một ví dụ rõ ràng về sự kết hợp hoàn hảo giữa công năng và vẻ đẹp. Ngôi nhà này mang lại sự hài hòa và phong cách cho người sử dụng, đồng thời tạo nên một không gian sống thoải mái và ấm cúng.

Với chiều cao xây dựng nhà 1 trệt 1 lầu, kích thước mặt tiền hẹp, thiết kế mái thái giúp ngôi nhà trở nên khác biệt, ấn tượng và mới mẻ trong từng chi tiết trang trí cũng như không gian sống được tối ưu hơn. Ngắm nhìn tổng thể công trình, điểm nhấn nổi bật nhất chính là hình khối, màu sắc tươi sáng kết hợp vật liệu như kính, gỗ, gạch inax,… tất cả được phân bổ và bố trí khoa học mang đến một chỉnh thể vô cùng ấn tượng và sang trọng.
Mẫu nhà 1 trệt 1 lầu 5×17 có gara
Phối cảnh mẫu nhà 1 trệt 1 lầu 5x17có gara dưới đây gây sự chú ý mạnh mẽ với vẻ ngoài đơn giản, trang nhã. Kiến trúc mặt tiền ngôi nhà được phối hài hòa của màu sơn sáng đã mang đến một công trình trẻ trung và mới mẻ.

Thiết kế khoảng sân trước rộng rãi, vừa sử dụng cho nhu cầu để xe ô tô, vừa là nơi vui chơi và trồng cây xanh cho gia đình. Khối ban công lầu 1 đua ra rộng so với tầng trệt, tận dụng để nới rộng diện tích thêm rộng rãi, tích hợp cùng bổn tiểu cảnh cây xanh phía trước và gỗ nhựa ngoài trời ốp tường góp phần tạo điểm nhấn bắt mắt và ấn tượng cho mặt tiền nhà 1 trệt 1 lầu này. Không quá cầu kỳ nhưng ngôi nhà vẫn toát lên vẻ đẹp sang trọng nhờ vào lối trang trí hài hòa và tinh tế.
Thiết kế nhà 1 trệt 1 lầu 5×17 sang trọng
Ngôi nhà 1 trệt diện tích 5×17 được xây dựng với một hệ thống trụ cột vuông và tròn vững chãi trước mặt tiền, tận dụng không gian một cách tối ưu. Mẫu nhà này đã tạo ra sự cuốn hút, khiến mọi người không thể rời mắt khỏi nó. Để tạo thêm điểm nhấn và sự phong cách cho ngôi nhà, các chi tiết trang trí phào chỉ và hoa văn được bố trí bao quanh tường, tường rào và cửa sổ. Những hoa văn tinh xảo và phá cách này tạo nên vẻ đẹp kiêu sa và quý phái cho tòa nhà. Bố cục thiết kế của ngôi nhà được giữ một cách hoàn hảo, mọi chi tiết đều được cân nhắc tỷ mỉ để tạo ra sự cân đối về tỷ lệ, đường nét và họa tiết trang trí. Ví dụ, các cột vuông được sắp xếp một cách đều đặn và tạo thành một hàng liên tục, đồng thời tạo ra sự trầm tư cho ngôi nhà. Các cột tròn, mặt tiền của ngôi nhà được trang trí chi tiết phào chỉ với những họa tiết tinh xảo, tạo nên một sự cân đối về hình dáng và màu sắc. Những chi tiết này không chỉ làm nổi bật ngôi nhà mà còn thêm vào vẻ đẹp tổng thể. Không chỉ là vẻ đẹp bên ngoài, ngôi nhà này còn mang đến sự sang trọng và đẳng cấp bên trong. Mỗi phòng trong ngôi nhà đều được thiết kế một cách tỉ mỉ, tạo ra sự hài hòa và thoáng đãng. Ví dụ, phòng ngủ được bố trí ở phía sau ngôi nhà, tận dụng ánh sáng tự nhiên từ các cửa sổ lớn và trang bị tiện nghi hiện đại như giường ngủ thoải mái và tủ quần áo tiện nghi. Phòng khách và phòng ăn cũng được thiết kế mở, tạo ra không gian rộng lớn và thuận tiện cho việc gia đình quây quần với nhau. Thêm vào đó, ngôi nhà cũng có một khoảng sân trước và sân sau, tận dụng không gian mở để trồng cây cảnh, làm khu vườn hoặc để các thành viên gia đình thư giãn và vui chơi. Kết hợp với màu sắc và họa tiết trang trí trên bề mặt ngôi nhà, khoảng sân trước và sân sau tạo ra một không gian xanh tươi mát và thân thiện. Tổng thể, ngôi nhà 1 trệt 1 lầu có diện tích 5×17 này không chỉ là một nơi để sinh sống mà còn là một tác phẩm nghệ thuật, một công trình kiến trúc đẹp và đẳng cấp. Nhìn vào ngôi nhà này, ai cũng có thể cảm nhận được sự tinh tế trong thiết kế và sự lưu ý đến từng chi tiết nhỏ.

Sử dụng hệ thống cửa kính, kết hợp khung nhôm màu đen trầm ấm, hài hòa với tổng thể ngoại thất mang đến một mẫu nhà 1 trệt 1 lầu sang trọng và nổi bật tại nơi đây. Ngôi nhà được thiết kế theo phong cách tân cổ điển, một phong cách khá được ưa chuộng và quan tâm cho những công trình nhà phố hiện nay.
Mẫu nhà 1 trệt 1 lầu 5×17 kết hợp không gian xanh
Mẫu nhà 1 trệt 1 lầu kích thước 5×17 có vị trí đặc biệt thu hút sự chú ý của mọi người nhờ vào diện mạo đẹp mắt và sự tinh tế trong phối cảnh. Thiết kế của căn nhà này đã sử dụng tốt những vật liệu xây dựng phổ biến hiện nay như đá tự nhiên, gạch, gỗ nhựa ngoài trời và lan can sắt phun sơn tĩnh điện màu đen. Một trong những điểm đáng chú ý nằm ở kết cấu bên ngoài của căn nhà. Bằng cách sử dụng đá tự nhiên và gạch, nhà khái quát vừa đẹp vừa bền. Đá tự nhiên, với màu sắc và độ bền tự nhiên, tạo nên một cảm giác sang trọng và cổ điển cho ngôi nhà. Gạch được sử dụng chủ yếu trên khu vực sàn và tượng trưng cho tính chất ấm cúng và tự nhiên của không gian sống. Đặc biệt, mẫu nhà này còn được trang trí bằng gỗ nhựa ngoài trời và lan can sắt phun sơn tĩnh điện màu đen. Gỗ nhựa ngoài trời là một vật liệu rất phổ biến trong kiến trúc hiện đại, vừa có tính năng bền chắc và đáng tin cậy, vừa giữ được tự nhiên và đẹp mắt. Gỗ được sử dụng rải rác trên các cửa sổ và cửa ra vào, tạo điểm nhấn và mang lại sự ấm cúng cho không gian sống. Ngoài ra, lan can sắt phun sơn tĩnh điện màu đen còn đóng vai trò quan trọng trong việc tạo nên vẻ đẹp kiểu dáng và bảo đảm tính an toàn cho gia đình. Ngoài ra, không gian sống mới mẻ và hiện đại cũng được tạo ra nhờ vào việc trồng hoa tại lầu 1. Nhờ diện tích rộng rãi và ý tưởng sáng tạo trong thiết kế, không gian này có thể được sử dụng để trồng các loại hoa và cây cảnh đẹp mắt. Các bồn hoa, chậu cây và hệ thống tưới tiêu được đặt khéo léo để tạo nên một không gian xanh tươi mát và góp phần làm đẹp cho căn nhà. Tổng thể, mẫu nhà 1 trệt 1 lầu kích thước 5×17 với diện mạo đẹp mắt và sự tinh tế trong phối cảnh đã tạo ra một không gian sống mới mẻ và hiện đại cho gia đình. Sự sử dụng tốt các vật liệu xây dựng phổ biến hiện nay và việc trồng hoa tại lầu 1 cũng góp phần tạo nên sự độc đáo và đẹp mắt cho ngôi nhà này.

Hệ cây xanh tiểu cảnh cũng được gia chủ chú trọng đặc biệt trong phương án thiết kế nhà đẹp cho gia đình. Nhìn vào bản vẽ phối cảm, ta có thể thấy từ sân vườn cho đến lầu 1, kiến trúc sư đề bố trí tiểu cảnh xanh khoa học, không lấn chiếm diện tích, bố trí thông minh vừa đem lại một nguồn năng lượng, sinh khí trong lành cho ngôi nhà, vừa gia tăng tính thẩm mỹ chung.







