TOP 5+ mẫu nhà phố 2 tầng 7x20m đẹp thiết kế tiết kiệm
Khi cần thiết kế và thi công nhà phố 2 tầng với diện tích 7x20m, quy trình này không còn là điều khó khăn nếu chủ đầu tư có kế hoạch tài chính hợp lý, xác định rõ phong cách kiến trúc phù hợp và nhu cầu công năng sử dụng. Để mang đến cho bạn nhiều lựa chọn mới mẻ cho ngôi nhà tương lai của gia đình, hãy tham khảo ngay các mẫu nhà phố 2 tầng 7x20m hiện đại và được ưa chuộng nhất hiện nay tại LG TECH.
Mẫu nhà phố 2 tầng 7x20m độc đáo

Khi ngắm nhìn mẫu nhà phố 2 tầng 7x20m này, hầu hết ai cũng đều bị thu hút bởi nét đẹp độc đáo và phá cách của công trình.
Ngôi nhà được thiết kế đơn giản, không quá phức tạp, tập trung vào việc tạo ra một khối kiến trúc độc đáo kết hợp với một khu vườn xanh mát được bố trí hợp lý. Điều này giúp trang trí thêm điểm nhấn cho không gian phía trước. Với sự kết hợp của các vật liệu như đá ốp tường tối màu ở tầng trệt, gỗ nhựa ngoài trời màu nâu và màu trắng chủ đạo, hệ thống cửa kính đã tạo nên một không gian gần gũi và sang trọng.
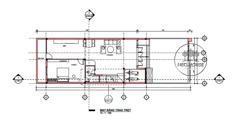
Về cách bố trí mặt bằng công năng sử dụng của căn nhà phố 2 tầng 7x20m độc đáo này, từ cửa chính tiến vào bên trong nhà là không gian phòng khách, diện tích khá rộng rãi, đặt sát với cửa chính giúp đón nhận nhiều ánh sáng. Liền kề phòng khách là khu vực bếp ăn được và cầu thang thông tầng, ngoài việc đảm bảo sự tiện nghi và thoáng đãng cho không gian này, kiến trúc sư còn chú trọng đến yếu tố phong thủy. Phòng ngủ và nhà vệ sinh chung đặt phía cuối nhà, đảm bảo một không gian riêng tư và thoải mái cho việc nghỉ ngơi.
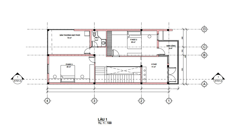
Công năng lầu 1 bố trí 3 phòng ngủ khoa học và rộng rãi, đều có nhà vệ sinh khép kín, đem đến sự riêng tư cho chủ nhân căn phòng. Phòng thư giãn tích hợp cùng khu vực thờ đặt hướng ra trước mặt tiền, kết hợp với thiết kế thông tầng, giúp không gian luôn thoáng khí và mát mẻ.
Mẫu nhà phố 2 tầng 7x20m có sân vườn

Phương án nhà phố 2 tầng 7x20m này có kiến trúc đơn giản, nhẹ nhàng nhưng vẫn đầy cuốn hút và gần gũi. Sự kết hợp tinh tế giữa gam màu trắng chủ đạo cùng với gam màu xám đen tại tầng trệt, màu nâu của gỗ ốp tường đầy bắt mắt. Hệ thống cửa bằng vật liệu kính cường lực khung nhôm xingfa sơn màu đen mang đến nguồn ánh sáng và đón gió tự nhiên từ bên ngoài vào giúp căn nhà luôn mát mẻ và thông thoáng.

Khoảng sân trước của mẫu nhà phố 2 tầng 7x20m này được tận dụng làm khu vực để xe ô tô kết hợp khoảng sân vườn xanh mát. Phòng khách bố trí gần cửa chính, diện tích rộng rãi, đối diện là cầu thang thông tầng, dễ dàng đáp ứng cho việc di chuyển. Đặc biệt, kiến trúc sư đã tận dụng khu vực dưới cầu thang bố trí nhà vệ sinh chung, một giải pháp tối ưu diện tích hiệu quả cho những căn nhà phố đẹp.
Tiến vào bên trong là khu vực bếp, bàn ăn và phòng ngủ. Không gian sinh hoạt này được kiến trúc sư bố trí và tính toán khoa học, đáp ứng một nơi nghỉ ngơi và thư giãn cũng như sum vầy tiện nghi cho tất cả các thành viên trong gia đình.

Mặt bằng công năng lầu 1 bố trí 2 phòng ngủ có diện tích khá rộng, nội thất được bố trí tiện nghi và đầy đủ, đáp ứng nơi nghỉ ngơi thoải mái. Phòng thờ thiết kế hướng ra trước mặt tiền, sử dụng cửa kính trong suốt nên đón nhận được nhiều ánh sáng tự nhiên. Phía cuối nhà là phòng WC và sân thượng sau sử dụng làm nơi giặt và sân phơi.
Mẫu nhà phố 2 tầng 7x20m mái bằng

Thiết kế nhà phố 2 tầng 7x20m mái bằng dưới đây có mặt tiền thoáng đãng với kiến trúc thiết kế tối giản nhưng vẫn đáp ứng các tiêu chí về thẩm mỹ hiện đại, tinh tế. Việc hạn chế tối đa các mảng khối bê tông thay vào đó là cửa kính khung nhôm xingfa ở mặt tiền không chỉ giúp tăng tính thẩm mỹ mà còn giúp ngôi nhà đón nhận được nhiều nguồn ánh sáng tự nhiên và giúp căn nhà trở nên rộng rãi hơn rất nhiều. Tone màu trắng chủ đạo hòa cùng màu đen và màu nâu gỗ tự nên sự nổi bật và sang trọng, khiến cho người ngoài nhìn vào đều cảm thấy dễ chịu.

Tầng trệt mẫu nhà phố 2 tầng hiện đại mái bằng gồm phòng khách đặt gần cửa chính, tiếp đến là phòng bếp kết hợp khu vực bàn ăn. Đối diện là không gian 2 phòng ngủ và nhà vệ sinh chung đặt sát nhau, đảm bảo sự tiện nghi và giao thông di chuyển được thuận tiện nhất. Sân sau được kiến trúc sư tận dụng làm khu vực giặt và sân phơi.
Lầu 1 của ngôi nhà là không gian sinh hoạt và nghỉ ngơi của gia đình, được thiết kế bao gồm 2 phòng ngủ, phòng sinh hoạt chung, phòng vệ sinh chung và khu vực học tập. Phòng thờ thiết kế hướng ra trước sân thượng, đảm bảo yếu tố phong thủy và một không gian trang nghiêm.
Mẫu nhà phố 2 tầng 7x20m mái thái

Thiết kế nhà phố 2 tầng 7x20m này được thiết kế với những đường nét kiến trúc nhẹ nhàng, phóng khoáng và đơn giản khi ngắm nhìn. Phần mái thái kiên cố hình chữ A có độ dốc lớn, kết hợp cùng bố cục hình khối cân xứng, các vật liệu trang trí và cột trụ đảm bảo vai trò che chở bảo vệ ngôi nhà bền vững theo thời gian.

Ngắm nhìn tổng thể công trình, chúng ta sẽ bị cuốn hút bởi yếu tố tối giản từ cách trang trí cho đến việc sử dụng màu sắc. Với tone màu trắng chủ đạo kết hợp cùng gam màu nâu gỗ, gam màu đen hòa quyện mang đến vẻ đẹp thanh lịch và mới mẻ cho tổng thể ngôi nhà 2 tầng.
Mẫu nhà phố 2 tầng 7x20m hiện đại

Một công trình với kiến trúc ngoại thất vô cùng đơn giản nhưng lại nổi bật giữa không gian. Kiến trúc sư đã sử dụng gam màu trắng làm chủ đạo cho toàn bộ mặt tiền kết hợp cùng đường nét kiến trúc vuông vức cùng khối vòm độc đáo mang đến điểm nhấn ấn tượng cho ngôi nhà.
Khu vực lầu 1 gây ấn tượng bằng việc sử dụng khối vòm bắt mắt, ban công đua ra rộng kết hợp cùng hệ thống cửa kính khung nhôm xingfa trong suốt có tác dụng đón sáng và gió thoáng, cũng như mang lại thẩm mỹ cho công trình.
Mẫu nhà phố 2 tầng 7x20m tân cổ điển

Kiến trúc nhà phố tân cổ điển 2 tầng này toát lên nét đẹp sang trọng, xa hoa với những hình khối cũng như các chi tiết hoa văn trang trí mang đậm tính nghệ thuật. Các đường phào chỉ tuy được tiết giảm nhưng vẫn mang đến sự uyển chuyển bắt mắt cho công trình.
Ngôi nhà 2 tầng không quá nhiều đường phào chỉ uốn lượn, những điểm nhấn chính của ngôi nhà là hệ thống cửa cổng, cột trụ và hệ thống mái thái kiên cố kết hợp cùng với tone màu sơn trắng tinh khôi và cửa gỗ màu nâu đỏ, đây chính là những điểm đặc trưng của những mẫu nhà phố tân cổ điển.
Với những mẫu nhà phố 2 tầng 7x20m trên, chắc có lẽ bạn đã có được cho riêng mình những ý tưởng thiết kế cho mẫu nhà phố trong tương lai của gia đình mình.







