Biệt thự nghỉ dưỡng là một trong những dạng biệt thự sang trọng, cao cấp cả nội thất bên trong lẫn kiến trúc ngoại thất bên ngoài, cùng với việc tích hợp nhiều không gian thư giãn, giải trí đem đến một nơi nghỉ dưỡng lý tưởng cho gia đình chủ đầu tư.
Và để sở hữu một không gian sống hoàn hảo, việc có cho mình một bản vẽ mặt bằng biệt thự nghỉ dưỡng khoa học, bố trí logic trong từng chi tiết là điều không dễ dàng gì. Chính vì thế, trong bài viết dưới đây, LG Tech tuyển chọn những mẫu mặt bằng biệt thự nghỉ dưỡng sang trọng và tinh tế nhất để các bạn cùng tham khảo!
Bản vẽ mặt bằng biệt thự nghỉ dưỡng là gì?
Trước khi tham khảo các mẫu mặt bằng biệt thự nghỉ dưỡng, chúng ta cùng nhau tìm hiểu sơ lược về khái niệm và công dụng của bản vẽ mặt bằng biệt thự như thế nào?
Khái niệm mặt bằng biệt thự nghỉ dưỡng
Bản vẽ mặt bằng biệt thự nghỉ dưỡng là bản vẽ thể hiện hình dạng, kích thước, vị trí các phòng ốc, cầu thang, hành lang, cửa sổ, cửa ra vào,… của biệt thự nghỉ dưỡng trên một mặt phẳng nằm ngang. Bản vẽ này được sử dụng trong quá trình thiết kế, thi công và quản lý vận hành trong từng giai đoạn.
Đây là một trong những bản vẽ quan trọng nhất trong hồ sơ thiết kế biệt thự nghỉ dưỡng. Bản vẽ này thể hiện đầy đủ thông tin về cấu trúc không gian bên trong của biệt thự, giúp chủ đầu tư và các nhà thầu thi công có thể hình dung được tổng thể kiến trúc và công năng sử dụng của công trình.
Công dụng của bản vẽ mặt bằng biệt thự
Bản vẽ mặt bằng biệt thự nghỉ dưỡng gồm có 3 công dụng chính, trong đó bao gồm:
Bản vẽ mặt bằng biệt thự cung cấp thông tin chi tiết về bố cục, kích thước, diện tích,… của các không gian trong nhà. Nhờ đó, gia chủ có thể dễ dàng hình dung được căn biệt thự của mình sẽ được bố trí như thế nào. Bên cạnh đó, gia chủ có thể cùng kiến trúc sư thảo luận, chỉnh sửa bản vẽ sao cho phù hợp với nhu cầu và sở thích của từng thành viên trong gia đình.
Dựa trên bản vẽ mặt bằng biệt thự nghỉ dưỡng, đội ngũ thi công sẽ định hình và triển khai xây dựng công trình. Bản vẽ mặt bằng biệt thự chính là cơ sở để đội ngũ thi công đảm bảo tính an toàn, vững chắc cho ngôi nhà của chủ đầu tư.
Bản vẽ mặt bằng biệt thự là căn cứ để gia chủ kiểm tra, giám sát tiến độ thi công của dự án. Gia chủ có thể đối chiếu thực tế với bản vẽ để đảm bảo công trình được thi công đúng như thiết kế.
Top 10 mẫu bản vẽ mặt bằng biệt thự nghỉ dưỡng bậc nhất hiện nay
Dưới đây là những mẫu mặt bằng biệt thự nghỉ dưỡng bậc nhất đã được LG Tech triển khai cho nhiều chủ đầu tư trên các tỉnh thành tại Việt Nam gửi đến các bạn cùng tham khảo. Chắc chắn sẽ gợi lên những ý tưởng, có cho mình một phương án thiết kế phù hợp trong tương lai.
Mặt bằng biệt thự nghỉ dưỡng 3 tầng hiện đại
Căn biệt thự nghỉ dưỡng 3 tầng được xây dựng với thiết kế hiện đại, mang lại vẻ đẹp mắt và sang trọng cho không gian sống. Khi nhìn từ xa, ngôi nhà tạo nên một ấn tượng mạnh mẽ nhờ vào kết cấu vững chắc và màu sắc hài hòa. Một trong những điểm nổi bật của căn nhà là khuôn viên xanh tươi, bao quanh toàn bộ không gian. Các cây cỏ và cây cảnh được sắp xếp tỉ mỉ, tạo nên một không gian thiên nhiên thoáng đãng và gần gũi với con người.
Bên cạnh đó, hồ bơi nhỏ xinh giữa khu vườn cũng là một điểm nhấn thu hút sự chú ý và tăng thêm sự tươi mát cho căn biệt thự nghỉ dưỡng. Để tạo sự riêng tư và tách biệt hoàn toàn với môi trường bên ngoài, căn biệt thự nghỉ dưỡng được bao quanh bởi hàng rào bê tông vững chắc. Hàng rào không chỉ đảm bảo an ninh mà còn tạo được sự yên tĩnh và riêng tư cho cư dân. Thiết kế cửa cổng và vật liệu trang trí trên hàng rào được chọn một cách tỉ mỉ và phù hợp với bề mặt của ngôi nhà, tạo nên một khung cảnh đẹp mắt và thú vị.
Trước cửa chính của căn biệt thự nghỉ dưỡng, có một sảnh rộng rãi và hiện đại. Sảnh nhà được trang trí bằng đá và gỗ chất lượng cao, tạo nên sự sang trọng và ấn tượng cho không gian vào cửa. Cửa chính được thiết kế bằng kính cường lực, mang đến sự thông thoáng và cho phép ánh sáng tự nhiên lọt vào trong nhà. Bên trong căn biệt thự nghỉ dưỡng, không gian được chia thành nhiều phòng và khu vực chức năng. Những phòng ngủ được trang bị nội thất cao cấp và thiết kế theo phong cách hiện đại. Phòng khách rộng rãi và thoáng đãng, với cửa sổ lớn nhìn ra khu vườn xanh tươi, tạo cho cư dân cảm giác thư thái và gần gũi với thiên nhiên.
Ngoài ra, căn biệt thự còn có các phòng chức năng như phòng làm việc, phòng ăn, phòng thư viện và phòng giải trí. Mỗi phòng đều được thiết kế độc đáo và tinh tế, tạo nên không gian sống đa dạng và tiện ích cho gia đình. Với các yếu tố trên, căn biệt thự nghỉ dưỡng 3 tầng không chỉ đáp ứng được các tiêu chí về vẻ đẹp tổng thể và hiện đại mà còn mang lại cho cư dân sự thoả mái và tiện nghi trong cuộc sống hàng ngày.
Những ví dụ cụ thể trên chỉ là một trong nhiều trường hợp có thể áp dụng cho các căn biệt thự nghỉ dưỡng, tùy thuộc vào sở thích và yêu cầu của từng gia đình.

Mặt tiền nhà 3 tầng hiện đại kết hợp nhiều mảng cây xanh bát ngát

Vách kính, cửa kính có kích thước lớn kết hợp với cây xanh mang đến một căn biệt thự nghỉ dưỡng hoàn hảo
Khối nhà chính xây dựng 3 tầng với kiến trúc mái bằng cùng mảng kính lớn và cửa kính bố trí dày đặc vừa đơn giản, vừa giúp tạo nhiều góc view ra bên ngoài. Khuôn viên tích hợp nhiều mảng cây xanh và khu vực giải trí cho gia đình thư giãn và nghỉ ngơi.

Nhìn từ trên cao xuống, từ sân vườn cho đến kiến trúc và không gian giải trí đều được bố trí khoa học
Mặt bằng biệt thự nghỉ dưỡng 3 tầng hiện đại cũng được đầu tư bố trí từ sân vườn cho đến nội thất bên trong. Sân vườn tích hợp nhiều mảng cây xanh bao quanh, tiểu cảnh khô và hồ bơi, đây là nơi thư giãn và giải trí lý tưởng cho gia đình. Tầng trệt bố trí công năng gồm khu vực gara, phòng khách, phòng bếp + bàn ăn liên thông với phòng khách, bên trong là phòng ngủ và phòng WC chung.

Mặt bằng biệt thự nghỉ dưỡng 3 tầng hiện đại với công năng tầng trệt
Công năng lầu 1 của căn biệt thự nghỉ dưỡng 3 tầng gồm: 2 phòng ngủ có nhà vệ sinh riêng, phòng karaoke giải trí, khu vực tập thể dục và thiết kế thông tầng nên giúp ngôi nhà tạo sự kết nối giữa các tầng với nhau, cũng như tạo không gian thoáng đãng.

Mặt bằng biệt thự nghỉ dưỡng 3 tầng hiện đại với công năng lầu 1
Mặt bằng lầu 2 gồm có phòng ngủ master rộng rãi, tích hợp phòng thay đồ, phòng WC riêng cùng lối ra ban công. Sát bên là phòng làm việc, không gian thư giãn bên ngoài bố trí bộ bàn ghế sofa và sân thượng trước.

Mặt bằng biệt thự nghỉ dưỡng 3 tầng hiện đại với công năng lầu 2
Bên cạnh một kiến trúc mặt tiền sang trọng, hiện đại và tinh tế cùng sân vườn xanh mát, thì thiết kế nội thất bên trong mẫu biệt thự nghỉ dưỡng 3 tầng hiện đại này cũng được đầu tư chỉn chu từ vật liệu cho đến từng món đồ nội thất, màu sắc cho đến đường nét trang trí. Dưới đây là một số hình ảnh phối cảnh 3D nội thất mặt bằng biệt thự nghỉ dưỡng 3 tầng mà bạn có thể tham khảo.
Bản vẽ mặt bằng biệt thự nghỉ dưỡng 2 tầng tối giản
Với lợi thế về diện tích đất rộng, mặt bằng biệt thự nghỉ dưỡng 2 tầng thu hút mọi ánh nhìn nhờ vào lối thiết kế tối giản nhưng không kém phần sang trọng và phá cách mới mẻ. Mọi ngóc ngách từ sân vườn, mặt tiền kiến trúc cho đến ngoại thất đều được chú trọng trong từng chi tiết nhằm mang lại một không gian nghỉ dưỡng thoải mái nhất.
Biệt thự nghỉ dưỡng hiện đại là một kiệt tác thiết kế kiến trúc độc đáo, nổi bật với sự tích hợp của nhiều tiện ích và khu vực dành riêng cho sinh hoạt và thư giãn. Chủ đầu tư đã đặc biệt quan tâm đến việc tạo ra một không gian sống tiện nghi và gần gũi với thiên nhiên.
Một điểm đặc biệt của biệt thự là sân vườn rộng và thoáng đã được trang bị nhiều mảng cây xanh và khu vực giải trí. Nhìn từ xa, những d khung cảnh tươi đẹp và hài hòa. Khi các thành viên trong gia đình ra ngoài sân vườn, họ có thể tận hưởng không gian thoáng đãng và tự nhiên, đồng thời có thể tham gia vào các hoạt động ngoài trời như picnic, chơi cầu trượt, múa lửa, hay thậm chí với một mái vòm nhỏ, tổ chức một buổi tiệc ngoài trời đầy màu sắc.
Thêm vào đó, biệt thự này còn có một hồ bơi ngoài trời lớn phía trước. Hồ bơi được thiết kế hài hòa với kiến trúc tổng thể của biệt thự, tạo nên một không gian tuyệt vời để thư giãn và tận hưởng những ngày hè nóng bức. Với ánh nắng mặt trời chiếu xuống từ trên cao, ánh nước trong hồ bơi phản chiếu, tạo ra một hình ảnh rực rỡ và thu hút.
Bên cạnh đó, không gian quanh hồ bơi cũng được thiết kế với các ghế thư giãn và khu vực đi bộ, cho phép người sở hữu biệt thự thưởng thức không gian ngoài trời và tận hưởng không gian yên tĩnh và thanh bình. Không chỉ tỏa sáng bên ngoài, mà biệt thự còn được thiết kế với vách kính trong suốt cho mặt tiền. Điều này cho phép ánh sáng tự nhiên thâm nhập sâu vào từng không gian bên trong, tạo nên một cảm giác mở và thoải mái.
Từ bất kỳ vị trí nào trong biệt thự, chủ nhân cũng có thể tận hưởng khung cảnh thiên nhiên bên ngoài và trải nghiệm sự giao thoa giữa không gian nội và ngoại thất. Hình ảnh cây xanh trong sân vườn, ánh nước trong hồ bơi và những bức tranh thiên nhiên tuyệt đẹp được tạo ra qua vách kính trong suốt đã tạo nên một không gian sống thú vị và độc đáo.
Tổng cộng, với sân vườn rộng và thoáng, hồ bơi ngoài trời lớn, và vách kính trong suốt, biệt thự nghỉ dưỡng hiện đại không chỉ mang đến một không gian sống tiện nghi và đẳng cấp, mà còn cho phép cư dân tận hưởng những khoảnh khắc tuyệt vời và thiết kế đẹp mắt. Đây chính là điểm đặc biệt của biệt thự, tạo nên không gian sống đóng vai trò quan trọng trong việc thư giãn và tận hưởng cuộc sống hiện đại.
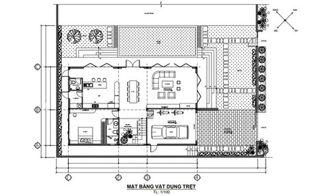
Bản vẽ mặt bằng tổng thể biệt thự nghỉ dưỡng 2 tầng thể hiện chi tiết từ cảnh quan sân vườn cho đến vật dụng bố trí nội thất bên trong. Từ cửa cổng tiến vào trong là khu vực sân vườn có nhiều cây xanh, kế bên hông nhà là hồ bơi ngoài trời. Không gian sử dụng tầng trệt bên trong bố trí gồm phòng khách liền kề khu vực bếp và bàn ăn, sát bên là 2 phòng ngủ và phòng WC chung.

Mặt bằng tổng thể biệt thự nghỉ dưỡng 2 tầng theo phong cách tối giản
Mặt bằng biệt thự nghỉ dưỡng 2 tầng với công năng sử dụng lầu 1 bao gồm có 2 phòng ngủ, phòng WC chung, phòng thờ, khu vực giặt, khu vực tập gym và sân phơi. Tất cả các khu vực chức năng đều được kiến trúc sư tính toán và phân chia khoa học, dựa trên nhu cầu sử dụng của chủ đầu tư.

Mặt bằng lầu 1 biệt thự nghỉ dưỡng 2 tầng tối giản
Phương án thiết kế nội thất biệt thự nghỉ dưỡng 2 tầng theo phong cách tối giản không chú trọng quá nhiều chi tiết trang trí cầu kỳ mà thay vào đó là những món đồ nội thất kiểu dáng nhẹ nhàng và tươi sáng. Cùng với việc thiết kế không gian mở, thông tầng, căn nhà 2 tầng trở nên mát mẻ và vô cùng thu hút.

Không gian phòng ăn nổi bật với hệ thống đèn chùm thả trần lung linh

Mặt bằng biệt thự nghỉ dưỡng 2 tầng mái thái 4 phòng ngủ
Mặt bằng biệt thự nghỉ dưỡng 2 tầng mái thái được xây dựng trên một diện tích đất rộng 24x20m là một tuyệt tác kiến trúc mang đến không gian lý tưởng cho cả gia đình thư giãn và nghỉ ngơi sau những ngày làm việc căng thẳng. Chủ nhà có một số tiêu chí quan trọng khi thiết kế ngôi nhà này, bao gồm sự tiện nghi, thoáng mát và tích hợp nhiều tiện ích cùng với cảnh quan cây xanh trong kiến trúc.
Đầu tiên, nổi bật trong thiết kế của biệt thự là mái thái truyền thống với đường nét uốn lượn tạo nên một vẻ đẹp truyền thống và tinh tế. Mái thái được làm bằng vật liệu gỗ tự nhiên, mang lại một cảm giác gần gũi với thiên nhiên và tạo nên một không gian thoáng đãng cho cả ngôi nhà.
Bên trong, không gian sống được thiết kế rộng rãi và mở, tận dụng tối đa ánh sáng tự nhiên và không gian xanh từ bên ngoài. Phòng khách được bố trí tại tầng trệt, với những sofa êm ái và bàn trà nhỏ để tạo nên một không gian thư giãn và giao lưu cho cả gia đình. Các cửa sổ lớn được đặt ở khắp nơi để mang đến cảnh quan tuyệt đẹp từ bên ngoài và kết nối tốt với không gian ngoại thất. Những tiện ích được tích hợp sẵn trong biệt thự cũng là một điểm nhấn quan trọng. Một hồ bơi nhỏ được xây dựng ngay bên cạnh khu vực tiếp khách, tạo nên một không gian thư giãn và giải trí cho cả gia đình và bạn bè khi họ đến chơi.
Ngoài ra, một sân vườn xanh mát với các loại cây cối và hoa lá tạo nên một không gian xanh tươi mát và gần gũi với thiên nhiên. Nếu nhìn từ phía trên, có thể thấy rõ ràng sự bố trí hợp lí của các phòng trong ngôi nhà. Tầng trệt được dành riêng cho phòng khách, phòng ăn và khu vực bếp. Tầng trên là không gian riêng tư với các phòng ngủ rộng rãi và phòng tắm tiện nghi, linh hoạt cho cả người lớn và trẻ nhỏ trong gia đình.
Tất cả các phòng đều được đặt cửa sổ để tận dụng ánh sáng và gió tự nhiên, đồng thời đem lại cảnh quan tươi mới từ bên ngoài. Một điểm đáng chú ý khác của biệt thự nghỉ dưỡng này là việc sử dụng các vật liệu tự nhiên và màu sắc tươi tắn trong kiến trúc. Gỗ, đá và thảm cỏ được sử dụng một cách tinh tế để tạo ra một sự kết hợp hoàn hảo giữa kiến trúc và thiên nhiên xung quanh.
Ví dụ, các vách tranh trong nhà được sơn màu xanh lá cây nhẹ nhàng, hòa quyện với không gian xanh ngoại thất. Các sàn nhà được lát bằng gỗ tự nhiên, tạo cảm giác ấm cúng và gần gũi. Những đường cong của kiến trúc và độ cao của mái thái tạo nên một không gian thú vị và hấp dẫn.
Tổng thể, biệt thự nghỉ dưỡng 2 tầng mái thái này là một sự kết hợp hoàn hảo giữa kiến trúc truyền thống và hiện đại, mang lại không gian thoáng đãng và tiện nghi cho cả gia đình. Từ cách bố trí các phòng, tiện ích tích hợp, sử dụng các vật liệu và màu sắc tự nhiên đến sự nhấn mạnh vào cảnh quan xanh mát, ngôi nhà này thực sự là một nơi nghỉ ngơi tuyệt vời.

Kiến trúc mặt tiền nhà biệt thự nghỉ dưỡng mái thái 2 tầng ghi điểm với tone màu tươi sáng
Khác với những mẫu nhà có kiểu dáng nan ná nhau trên thị trường, công trình biệt thự nghỉ dưỡng 2 tầng mái thái sở hữu mặt tiền góc cạnh và trẻ trung. Việc sử dụng màu sắc trắng làm chủ đạo kết hợp hệ mái thái màu xanh, màu đen của khung cửa nhôm và màu xanh của cây cảnh, đã góp phần tạo nên một tổng thể bổ trợ nhau đem lại nét đẹp thanh thoát và vô cùng ấn tượng, thu hút mọi ánh nhìn.
Mặt bằng tổng thể của mẫu biệt thự nghỉ dưỡng 2 tầng mái thái với không gian sân vườn rộng, gia chủ thiết kế tích hợp khu vực kinh doanh, gara để xe, hồ bơi giải trí và bố trí mảng cây xanh bao quanh nhà. Công năng bên trong bao gồm có phòng khách kết hợp phòng chơi Piano, liền kề là khu vực bếp và bàn ăn cùng khu vực giặt, sân phơi và phòng WC chung.
Mặt bằng biệt thự nghỉ dưỡng 2 tầng mái thái với lầu 1 thiết kế 3 phòng ngủ, trong đó 1 phòng ngủ master dành cho vợ chồng chủ đầu tư nên diện tích sử dụng rộng, bố trí thêm nhà vệ sinh, phòng thay đồ riêng tư và phòng làm việc. Đối diện là phòng ngủ cho hai con, trung tâm nhà là phòng học cho các bé và phòng WC chung.

Mặt bằng lầu 1 biệt thự nghỉ dưỡng 2 tầng mái thái 4 phòng ngủ
Tầng áp mái của ngôi nhà biệt thự nghỉ dưỡng được tích hợp nhiều công năng, trong đó bao gồm phòng ngủ nhỏ, phòng gym, phòng quần áo, phòng gội đầu và phòng WC chung.
Phương án thiết kế nội thất biệt thự nghỉ dưỡng 2 tầng mái thái 4 phòng ngủ hướng đến vẻ đẹp sang trọng và hiện đại. Không gian sử dụng gam màu trẻ trung, kết hợp các vật liệu như đá vân mây, gỗ công nghiệp màu nâu, cùng các không gian được phân chia khoa học, đem một nơi sinh hoạt và nghỉ ngơi vừa thẩm mỹ, vừa tiện nghi nhất cho gia đình.
Mặt bằng biệt thự nghỉ dưỡng 2 tầng ở nông thôn
Thiết kế mặt bằng biệt thự nghỉ dưỡng 2 tầng ở nông thôn với lợi thế diện tích đất rộng nên việc bố trí một không gian nghỉ dưỡng trở nên đơn giản và dễ dàng hơn rất nhiều. Mẫu nhà vườn cộng hưởng với hệ mái Thái hình chữ A có độ dốc cao giúp công trình thêm phần cao ráo và thanh thoát hơn. Cảnh quan sân vườn với sân trước lát gạch màu xám cùng cây cảnh xanh mướt phân chia bố cục khoa học, gọn gàng và kiến trúc mặt tiền hiện đại, tạo nên một không gian sống hoàn hảo từ trong ra ngoài.

Thiết kế mặt bằng biệt thự nghỉ dưỡng 2 tầng ở nông thôn hiện đại, đơn giản nhưng vẫn cuốn hút

Biệt thự nghỉ dưỡng thiết kế hài hòa với không gian thiên nhiên
Phía sau nhà là chòi nghỉ và hồ bơi được bố trí thêm những chiếc ghế mây kết hợp nệm thư giãn thoải mái. Lối được lát sàn gỗ màu nâu hòa quyện bên khung cảnh cây xanh bát ngát, một không gian giải trí lý tưởng cho các thành viên trong gia đình.

Thiết kế biệt thự nghỉ dưỡng với khuôn viên sân vườn rộng rãi

Không gian sân sau được tận dụng bố trí chòi nghỉ, hồ bơi để thư giãn và giải trí
Mặt bằng biệt thự nghỉ dưỡng 2 tầng ở nông thôn với tổng diện tích đất rộng 1200m2, diện tích xây dựng 10x23m, đất còn lại được sử dụng cho sân vườn. Ngắm nhìn mặt bằng tổng thể chúng ta có thể thấy sân trước được sử dụng làm gara để xe, sân vườn sau bố trí hồ bơi, chòi nghỉ và cây xanh thư giãn. Công năng tầng trệt gồm có phòng khách kết hợp phòng thờ, phòng bếp và ăn, phòng ngủ ông bà và phòng ngủ cho khách, khu vực tập thể dục, phòng WC chung, khu vực tập thể dục, phòng xông hơi và phòng gia nhân.

Mặt bằng tổng thể biệt thự nghỉ dưỡng 2 tầng ở nông thôn
Lầu 1 bố trí 4 phòng ngủ, tất cả đều có phòng vệ sinh riêng nên đảm bảo một không gian thư giãn và nghỉ ngơi riêng tư nhất. Trung tâm nhà là khu vực phòng sinh hoạt chung cho cả gia đình.

Mặt bằng lầu 1 biệt thự nghỉ dưỡng 2 tầng ở nông thôn
Mặt bằng biệt thự nghỉ dưỡng 2 tầng có hồ bơi
Phương án mặt bằng biệt thự nghỉ dưỡng 2 tầng có hồ bơi này có tọa lạc tại một vùng ngoại ô rộng lớn, yên bình và trong lành. Rời xa thành phố náo nhiệt, đầy khói bụi, khi bước chân đến nơi đây bạn sẽ bị ngỡ ngàng như đang lạc vào một thế giới hoàn toàn khác. Một thế giới vừa gần gũi, thân quen vừa yên ả và dịu êm. Đây chính là một nơi “đi để trở về” đúng nghĩa mà hầu hết các chủ đầu tư đều mong ước.
Căn biệt thự kiên cố và bề thế soi bóng bên hồ bơi trong xanh. Công trình xây dựng theo kiểu dáng hiện đại, sử dụng chất liệu gỗ, kính, đá tự nhiên tạo cảm giác sang trọng và gần gũi. Thiết kế biệt thự sử dụng các gam màu sáng kết hợp việc bố trí nhiều cửa kính, ngoài việc giúp công trình thêm phần sinh động mà còn góp phần giúp gia đình cho nhiều góc view ra sân vườn cũng như lấy sáng và gió mát hiệu quả từ bên ngoài vào.
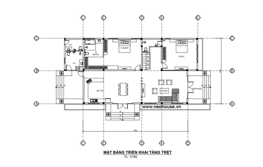
Mặt bằng công năng tầng trệt bố trí phòng khách đặt sát cửa chính ra vào, liên thông với bên trong là phòng bếp và khu vực ăn uống. Song song với phòng khách và bếp là 2 phòng ngủ, trong đó phòng ngủ master và phòng ngủ cho ông bà. Cuối nhà có bố trí phòng WC chung.

Mặt bằng tầng trệt biệt thự nghỉ dưỡng 2 tầng có hồ bơi thể hiện chi tiết từng công năng cụ thể
Công năng lầu 1 được thiết kế 3 phòng ngủ, phòng thờ, phòng sinh hoạt chung, khu vực học tập và phòng WC chung. Tất cả các không gian đều rộng rãi và thoáng mát, đáp ứng một nơi sinh hoạt thoải mái trong quá trình sử dụng và di chuyển giao thông qua lại.

Mặt bằng lầu 1 biệt thự nghỉ dưỡng 2 tầng có hồ bơi
Phương án nội thất của mẫu mặt bằng biệt thự nghỉ dưỡng 2 tầng có hồ bơi này được sử dụng vật liệu gỗ chủ đạo từ các món đồ nội thất cho đến việc trang trí. Chất liệu gỗ vừa tạo một không gian ấm cúng, gần gũi và thân quên, vừa góp phần tạo nên sự sang trọng và trang nhã cho tổng thể không gian sống.
Bản vẽ biệt thự nghỉ dưỡng 2 tầng hiện đại
Mẫu thiết kế biệt thự nghỉ dưỡng 2 tầng mang lại một không gian nghỉ ngơi thoải mái và ấn tượng với ngoại cảnh tràn ngập sắc xanh cùng khu vực giải trí hài hòa. Cùng với kiến trúc nhà mái thái tối giản, ứng dụng vật liệu hiện đại như đá tự nhiên, kính cường lực và gam màu sắc trẻ trung giúp công trình thêm phần ấn tượng và bắt mắt hơn rất nhiều.
Bên cạnh đó, ngôi nhà tích hợp thêm nhiều hệ thống đèn chiếu sáng từ công trình cho đến sân vườn đều được thiết kế hài hòa. Ngôi nhà thật lung linh và sinh động khi về đem, một khung cảnh lý tưởng để giảm stress sau những giờ làm việc mệt mỏi.
Mặt bằng biệt thự nghỉ dưỡng 2 tầng có sân vườn rộng
Với cuộc sống ngày càng phát triển mạnh mẽ thì những giá trị về tinh thần ngày càng được nhiều chủ đầu tư đề cao. Cùng với đó, việc nghỉ dưỡng, giải trí chính là những yếu tố giúp thỏa mãn nhu cầu của con người. Cũng bởi những nguyên nhân này, những mẫu mặt bằng biệt thự nghỉ dưỡng 2 tầng có sân vườn rộng ngày càng được đón nhận và yêu thích.
Phương án mặt bằng biệt thự nghỉ dưỡng 2 tầng có sân vườn này được thiết kế theo phong cách kiến trúc hiện đại, tối giản từ màu sắc cho đến đường nét trang trí. Hệ thống tường rào chắn kiên cố, cửa cổng thiết kế đồng bộ với kiến trúc và sân vườn mang lại một tổng thể chỉn chu và hài hòa.

Căn biệt thự sang trọng mang đậm phong cách kiến trúc hiện đại
Biệt thự hiện đại kết hợp mái thái luôn mang đến nhiều tính năng vượt trội trong kiến trúc. Vừa giúp thoát nước mưa cực kỳ tốt, vừa chống ẩm, mốc, gia tăng tính thẩm mỹ cao cho ngôi nhà mà còn giúp điều hòa không gian bên trong mát mẻ. Chưa hết, khi kết hợp cùng hệ thống cửa kính, yếu tố thiên nhiên bao quanh, góp phần tạo sự thông thoáng, dễ chịu từ mọi góc nhìn.
Đúng nghĩa mặt bằng biệt thự nghỉ dưỡng, ngôi nhà 2 tầng có sân vườn rộng được gia chủ tận dụng tối đa diện tích để bố trí các khu vực thư giãn và giải trí cho gia đình. Nhìn vào bản vẽ mặt bằng tổng thể, chúng ta có thể thấy từ cửa cổng tiến vào bên trong, khu vực sân trước là không gian xanh bát ngát và trong lành của sân cỏ, tiểu cảnh cùng khu vực gara, nhà thờ. Sân sau được thiết kế với khu vực hồ cá, chòi nghỉ, sân golf, tiểu cảnh xanh, đây là nơi thư giãn, vui chơi cho cả gia đình.

Mặt bằng biệt thự nghỉ dưỡng 2 tầng có sân vườn rộng với công năng sử dụng tại tầng trệt bao gồm: khu vực ăn ngoài trời, phòng khách, khu vực bếp và phòng ăn, phòng ngủ có nhà vệ sinh khép kín, khu vực giặt + phơi.
Công năng sử dụng lầu 1 bố trí 3 phòng ngủ, trong đó có 1 phòng ngủ nhỏ dành cho người giúp việc, phòng thờ, phòng WC chung và sân thượng trước.
Mặt bằng biệt thự nghỉ dưỡng 1 tầng kiểu Nhật
Thiết kế mặt bằng biệt thự nghỉ dưỡng 1 tầng kiểu Nhật Bản sang trọng với hệ thống cửa kính bao quanh, thay thế tường tạo nhiều góc view đẹp ra sân vườn phía trước. Kiến trúc sử dụng hình khối, hệ mái Thái và gạch ốp lát để tạo điểm nhấn thẩm mỹ cũng như giúp bảo vệ công trình khỏi những ảnh hưởng từ môi trường. Ngôi nhà hướng đến không gian mở, kiến trúc hiện đại pha chút nét đẹp của Nhật Bản tạo nên sự mới mẻ và độc đáo so với những công trình lân cận.
Điều đặc biệt của ngôi nhà này chính là trung tâm ngôi nhà bố trí một tiểu cảnh xanh ngoài trời, tiếp giáp với các không gian phòng ngủ. Thật tuyệt vời khi mỗi sáng thức giấc, mở cửa phòng ngủ, gia chủ đã tận hưởng một khoảng không gian trong lành, mát mẻ từ thiên nhiên đem lại.
Thiết kế mặt bằng biệt thự nghỉ dưỡng 1 tầng với sân vườn theo đúng kiểu Nhật Bản, từ cây cảnh, đá, vật liệu lát sàn đều mang hơi hướng Nhật, đem đến một không gian xanh ấn tượng, mới lạ.
Ngắm nhìn bản vẽ mặt bằng tổng thể căn biệt thự nghỉ dưỡng 1 tầng, bao quanh ngôi nhà là một không gian xanh bát ngát được kiến trúc sư phân chia bố cục rõ ràng, giúp gia chủ dễ hình dung thực tế tổng thể ngôi nhà của mình.







