Hiện nay, mặt bằng biệt thự 200m2 được nhiều chủ đầu tư đánh giá cao về thẩm mỹ cũng như đáp ứng đầy đủ công năng sử dụng tiện nghi. Cùng với đó, biệt thự 200m2 kết hợp cảnh quan sân vườn, tiểu cảnh xanh bao quanh góp phần tạo nên không gian sống trong lành và tiện nghi. Và tùy theo mục đích sử dụng của mỗi gia đình mà kiến trúc biệt thự 200m2 có thể xây dựng từ 1-3 tầng. Trong bài viết dưới đây, LG Tech sẽ gửi những bản vẽ mặt bằng biệt thự 200m2 đẹp, tiện nghi để mọi người cùng tham khảo!
Tổng hợp những mẫu mặt bằng biệt thự 200m2 được yêu thích nhất
Với diện tích đất rộng 200m2, gia chủ có thể thỏa sức kiến tạo nên một mẫu thiết kế biệt thự vô cùng sang trọng và bắt mắt. Cho dù phong cách kiến trúc hiện đại, tân cổ điển hay là kiểu mái thái, mái dốc, mái bằng, là 1 tầng, 2 tầng, 3 tầng,… bạn sẽ tìm được phương án thiết kế nhà đẹp cho gia đình mình trong tương lai. Dưới đây là những mặt bằng biệt thự 200m2 được yêu thích và lựa chọn nhiều nhất hiện nay.
Mặt bằng biệt thự 200m2 hiện đại tiện nghi
Biệt thự phong cách hiện đại 200m2 ghi điểm với diện mạo kiến trúc sang trọng và trẻ trung. Nét đẹp ấy thể hiện qua sự hài hòa của bố cục màu sắc cùng các vật liệu trang trí hiện đại tạo nên một vẻ đẹp ngoại thất hoàn hảo. Cùng với đó, kiến trúc sư đã thể hiện chất hiện đại rõ nét bằng cách thiết kế những mảng khối hình học phi đối xứng, kết hợp mảng kính cường lực lớn, nhờ đó đã giúp căn biệt thự 200m2 mang một nét đẹp khỏe khoắn, hiện đại và tạo không gian mở.
Bản vẽ phối cảnh 3D biệt thự 200m2 sang trọng và gần gũi với cây xanh
Căn biệt thự hiện đại này được thiết kế với một số mảng cây xanh trên ban công và sân vườn, tạo nên một không gian gần gũi với thiên nhiên ngay tại căn nhà. Việc có cây xanh xung quanh nhà mang lại nhiều lợi ích đáng kể cho gia chủ.
Đầu tiên, cây xanh mang đến một môi trường trong lành và mát mẻ, làm tăng ôxy trong không khí và làm giảm nhiệt độ môi trường xung quanh. Điều này rất quan trọng trong mùa hè, khi khí hậu trở nên nóng bức và khó chịu. Nhờ vào cây xanh, căn biệt thự này trở thành một nơi lý tưởng để gia đình thư giãn và thưởng thức không gian sống trong lành.
Ngoài ra, sự kết hợp giữa hồ bơi, cửa kính và các góc nhìn ra bên ngoài trong căn biệt thự này tạo nên một hệ thống thông gió và chất lượng ánh sáng tự nhiên cho toàn bộ không gian sống. Điều này không chỉ tạo ra một môi trường sống thoáng đãng và sáng sủa, mà còn giúp tiết kiệm năng lượng điện. Cửa kính trong căn nhà cho phép ánh sáng mặt trời tự nhiên chiếu vào trong, cung cấp ánh sáng tự nhiên cho toàn bộ căn nhà và giảm nhu cầu sử dụng đèn điện vào ban ngày. Hơn nữa, hệ thống thông gió tự nhiên từ những góc nhìn ra bên ngoài giúp hút và tiết lưu không khí, làm cho không gian sống trong nhà luôn tươi mát và thoải mái.
Diện tích 200m2 trong căn biệt thự này được coi như đủ rộng rãi để đáp ứng nhu cầu sống của một gia đình từ 3-5 thành viên. Có hai hoặc ba phòng ngủ đủ rộng để mỗi thành viên trong gia đình có một không gian riêng tư, và các khu vực chung như phòng khách và nhà bếp cũng được thiết kế để tận dụng tối đa diện tích và đảm bảo một không gian sống thoải mái và tiện nghi. Ngoài ra, biệt thự cũng có thể có các tiện nghi và tiện ích khác như phòng gym, phòng làm việc, sân chơi cho trẻ em, hay khu vực thư giãn ngoài trời.
Tất cả những yếu tố này đều đáp ứng nhu cầu sinh hoạt và giải trí của gia đình mà không cần phải rời bỏ không gian của căn nhà. Với việc kết hợp giữa mảng cây xanh, hồ bơi, cửa kính và diện tích rộng rãi, căn biệt thự hiện đại này mang lại nhiều lợi ích cho gia chủ. Nó không chỉ làm đẹp thêm cho công trình mà còn tạo ra một môi trường sống trong lành, thoáng đãng, và tiện nghi.
Với sự tinh tế trong thiết kế và sự đa dạng về tiện ích, căn biệt thự này đáp ứng tất cả các nhu cầu của một gia đình hiện đại và trở thành một điểm đến nghỉ dưỡng lý tưởng để thư giãn và tận hưởng cuộc sống.

Ngôi nhà sử dụng nhiều mảng kính lớn, trong suốt giúp cho gia chủ có nhiều góc view và gia tăng hiệu ứng thẩm mỹ
Bản vẽ mặt bằng biệt thự 200m2 giúp khách hàng nắm bắt được số lượng phòng chức năng, vị trí, kích thước cụ thể. Tất cả các phòng sinh hoạt được sắp xếp và phân chia không gian khoa học, đem lại sự thoải mái và tiện nghi cho các thành viên trong quá trình sinh hoạt.

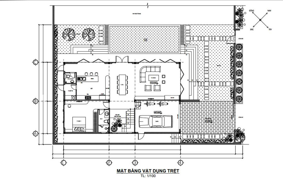
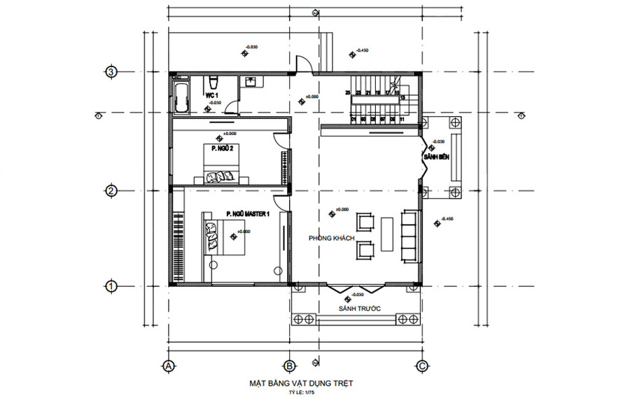
Mặt bằng tầng trệt biệt thự 200m2 3 tầng hiện đại bố trí sân vườn, gara để xe, phòng khách liên thông căn bếp và bàn ăn, 1 phòng ngủ, phòng WC chung

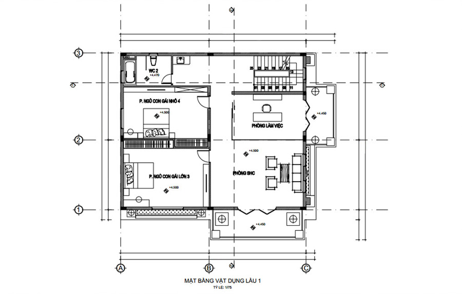
Mặt bằng lầu 1 biệt thự 200m2 3 tầng hiện đại từng không gian bố trí linh hoạt và tiện nghi

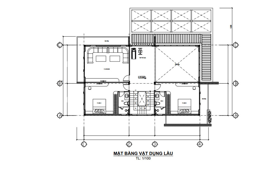
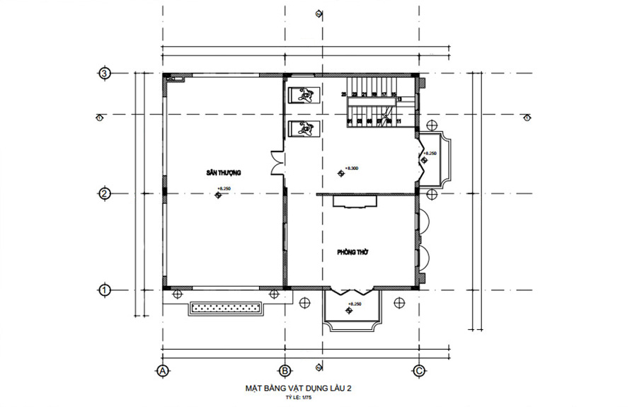
Mặt bằng tầng thượng biệt thự 200m2 3 tầng hiện đại từng vị trí bố trí được tính toán chi tiết và khoa học
Mặt bằng biệt thự 200m2 phong cách tối giản
Phương án thiết kế mặt bằng biệt thự 200m2 phong cách tối giản này phù hợp với những gia đình yêu thích lối sống hiện đại, tối giản và bình yên. Những đường nét trang trí, hoa văn đều được giản lược tối đa theo đúng chất chủ đạo của phong cách tối giản. Công trình có hình khối góc cạnh, phi đối xứng, kết hợp phần mái lệch độc đáo giúp ngôi nhà trở nên ấn tượng và thu hút hơn.
Biệt thự 200m2 tối giản không quá nhiều chi tiết trang trí cầu kỳ nhưng vẫn thu hút qua nét đẹp thanh thoát
Ngôi nhà được thiết kế với tông màu trung tính như màu trắng, màu nâu gỗ, màu kem, và màu xanh hài hòa, tạo nên một sự kết hợp tuyệt đẹp và gần gũi với thiên nhiên. Các gam màu này không chỉ mang đến sự trang nhã, thanh lịch cho ngôi nhà mà còn tạo nên một không gian ấm cúng và thuận tiện cho cả gia đình và khách đến thăm.
Hệ thống cửa và lan can trong ngôi nhà được chế tạo sử dụng chất liệu kính cường lực chất lượng cao. Sự chọn lựa này không chỉ mang lại tính thẩm mỹ mà còn đảm bảo sự an toàn và bền bỉ cho ngôi nhà. Kính cường lực có khả năng chịu lực tốt, chống va đập và chống ăn mòn, giúp ngôi nhà trở nên vững chắc và bền vững theo thời gian. Đồng thời, chất liệu kính cường lực còn cho phép ánh sáng tự nhiên lọt vào trong nhà, tạo ra không gian sáng đẹp và thoáng đãng.
Thêm vào đó, sử dụng chất liệu kính cường lực làm hệ thống cửa và lan can cũng mang lại sự sang trọng và hiện đại cho ngôi nhà. Với bề mặt kính láng mịn và khả năng chống trầy xước, ngôi nhà trở nên lộng lẫy và thu hút mọi ánh nhìn. Các cửa kính cường lực có thể được thiết kế theo nhiều kiểu dáng và kích thước khác nhau, tương thích với kiến trúc và không gian trong ngôi nhà.
Ngoài ra, sự sử dụng chất liệu kính cho lan can cũng mang lại sự tinh tế và duyên dáng cho ngôi nhà. Ví dụ, hình dung ngôi nhà được thiết kế với hệ thống cửa sổ lớn bằng kính cường lực tạo cảm giác như là một “ngôi nhà trong mơ”. Ánh sáng tự nhiên nắng rọi qua những cửa sổ rộng lớn này, làm dịu đi không gian trong nhà, tạo ra một không gian sống tươi sáng và khoáng đạt.
Bạn có thể đặt bàn và ghế ngồi gần cửa sổ để thưởng thức cảnh quan ngoại vi và tận hưởng không gian thiên nhiên tươi mát. Hơn nữa, việc có hệ thống cửa và lan can bằng kính cường lực ngôi nhà trở nên thoáng đãng hơn, vì ánh sáng có thể xuyên qua và chiếu sáng cho tất cả các khu vực trong nhà.
Tóm lại, ngôi nhà được thiết kế với sự sử dụng tông màu trung tính và hệ thống cửa và lan can bằng kính cường lực mang lại một không gian sinh động, hấp dẫn và thoáng mát. Với việc chọn lựa chất liệu và thiết kế sáng tạo, ngôi nhà trở nên sang trọng, an toàn và thu hút mọi ánh nhìn. Qua việc sử dụng các ví dụ cụ thể, những ưu điểm và giá trị của thiết kế này đã được mô tả và minh họa rõ ràng.

Công trình biệt thự với mái lệch độc đáo kết hợp cùng vật liệu trang trí hiện đại đem lại sự bắt mắt và sang trọng
Bản vẽ mặt bằng biệt thự 200m2 tối giản nhờ vào việc bố trí từng phòng chức năng được tính toán chi tiết. Khuôn viên sân vườn và các phòng chức năng được phân chia công năng đáp ứng mục đích sử dụng của từng thành viên trong gia đình. Mỗi một phòng đều được phân chia rõ ràng và mạch lạc, đáp ứng sự riêng tư, thoải mái.

Mặt bằng biệt thự 200m2 với công năng tầng trệt có phòng khách, phòng ngủ, bếp, bàn ăn và phòng WC chung

Mặt bằng biệt thự 200m2 với công năng lầu 1 có 2 phòng ngủ, 1 phòng thờ, phòng đọc sách và phòng WC chung
Mặt bằng biệt thự 200m2 tân cổ điển
Với sự phát triển không ngừng của kỹ thuật xây dựng và thiết kế, mẫu biệt thự mini mới đã đạt được sự nổi bật với kiến trúc đồng đều và hấp dẫn. Đường phào chỉ, hệ thống kèo cột và hoa văn lan can được tỉ mỉ thiết kế và kết hợp tương hợp nhằm tạo nên một công trình đẹp mắt và đầy mê hoặc. Một đặc điểm nổi bật của mẫu biệt thự mini này là hệ trụ cột được bố trí thảm khắp ngoại thất của căn nhà. Những trụ cột vững chắc và nổi bật không chỉ tạo thành một yếu tố kiến trúc trang trọng mà còn đảm bảo sự ổn định và bền vững cho toàn bộ công trình.
Đồng thời, sự kết hợp giữa kiến trúc cổ điển và phong cách hiện đại mang lại sự thanh lịch và tinh tế hơn cho ngôi biệt thự. Cụ thể, kiến trúc cổ điển thường được hiểu là sự tích hợp các yếu tố trang trí và hình ảnh từ các thế kỷ trước, như cột cổ điển, hoa văn và kiến trúc gắn liền với lịch sử. Phong cách hiện đại, ngược lại, nhấn mạnh vào sự đơn giản, sự tối giản và sự hiện đại trong thiết kế.
Tuy nhiên, những ngôi nhà kết hợp giữa cổ điển và hiện đại lại mang tới sự hòa hợp đặc biệt, như một sự hòa quyện giữa quá khứ và hiện tại, tạo ra một không gian sống độc đáo và thu hút. Ví dụ, một mẫu biệt thự mini kết hợp giữa kiến trúc cổ điển và phong cách hiện đại có thể sử dụng các yếu tố cổ điển như cột cổ điển trang trí ở phần cửa chính và các hoa văn tranh trên tường.
Tuy nhiên, phần ngoại thất có thể thiết kế theo phong cách hiện đại với các đường nét đơn giản, màu sắc tối giản và các cửa sổ toàn cảnh. Sự kết hợp này không chỉ tạo ra một không gian sống đa dạng và độc đáo mà còn mang lại sự tinh tế và thanh lịch hơn cho ngôi nhà. Xu hướng này đang rất phổ biến hiện nay và phù hợp với nhu cầu của nhiều người. Khi mà việc sở hữu một căn biệt thự lớn có thể gặp khó khăn về mặt không gian và kinh phí, mẫu biệt thự mini kết hợp giữa kiến trúc cổ điển và phong cách hiện đại là một giải pháp lý tưởng. Nó không chỉ tận dụng tối đa diện tích nhỏ gọn mà còn mang lại cảm giác sang trọng và mạnh mẽ cho căn nhà.
Tóm lại, mẫu biệt thự mini mới thể hiện sự mạnh mẽ và sang trọng thông qua kiến trúc đồng đều và hấp dẫn. Sự kết hợp giữa kiến trúc cổ điển và phong cách hiện đại tạo nên sự thanh lịch và tinh tế cho ngôi biệt thự. Với vô số lợi thế và phù hợp với nhu cầu hiện tại, mẫu biệt thự mini này đang ngày càng trở nên phổ biến và được ưa chuộng.

Biệt thự 200m2 theo phong cách tân cổ điển sở hữu những hoa văn, phào chỉ uyển chuyển. Ngôi nhà tân cổ điển thật lung linh và sinh động khi về đêm
Bản vẽ mặt bằng biệt thự 200m2 tân cổ điển được phân chia diện tích tổng thể hài hòa. Mỗi một phòng chức năng trong căn biệt thự được sắp xếp khéo léo đem lại sự thoải mái nhất cho gia chủ.

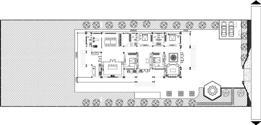
Mặt bằng tổng thể biệt thự 200m2 tân cổ điển thể hiện chi tiết sân vườn cho đến bố cục công năng trong ngôi nhà
Mẫu nhà vườn 200m2 đẹp 2 tầng
Mẫu nhà vườn 200m2 đẹp vẫn đang là xu hướng được rất nhiều gia đình hiện nay ưa chuộng. Khác với những ngôi nhà tại các khu vực thành phố lớn, nhà vườn sở hữu diện tích rộng rãi, thoáng mát nên rất thích hợp để thư giãn và nghỉ dưỡng. Ngoài ra, với kiến trúc đơn giản, chi phí đầu tư và công năng bố trí hợp lý, công trình đáp ứng cho gia đình có từ 4 thành viên trở lên sinh sống.

Mẫu biệt thự nhà vườn 200m2 tích hợp nhiều mảng cây xanh cùng hồ bơi và chòi nghỉ thư giãn
Ngắm nhìn mặt bằng biệt thự 200m2 trên, công trình thiết kế đơn giản nhưng tô điểm với khoảng sân vườn rộng rãi đầy cây xanh, hoa lá tích hợp cùng hồ bơi và nhiều không gian giải trí. Đây có thể được tận dụng làm nơi nghỉ ngơi, thư giãn cũng như đem lại nguồn sinh khí cho nội thất bên trong. Căn biệt thự hướng đến không gian mở nên các khung cửa và lan can được làm bằng kính cường lực. Kết hợp với hệ mái Thái, vừa tạo nên một tổng thể thống nhất, vừa điều hòa không khí luôn mát mẻ, trong lành.
Bản vẽ mặt bằng biệt thự 2 tầng diện tích 200m2 mái thái ngoài việc đáp ứng các phòng chức năng được phân chia rõ ràng, khoa học thì kiến trúc sư còn đáp ứng về yếu tố phong thủy, đáp ứng một ngôi nhà nghỉ ngơi thoải mái và mang lại may mắn, tài lộc cho gia đình.

Mặt bằng biệt thự 200m2 mái thái được tích hợp nhiều phòng chức năng với diện tích rộng rãi và thoáng đãng

Mặt bằng biệt thự 200m2 mái thái với bố cục không gian lầu 1 khoa học, tiện nghi
Thiết kế biệt thự 200m2 kiểu Pháp
Biệt thự 200m2 kiểu pháp gây ấn tượng bởi vẻ đẹp xa hoa và bề thế. Màu trắng của sơn trường chủ đạo tạo nên sự mới mẻ, chinh phục mọi góc nhìn. Sự tương phản của màu sắc trắng cùng màu đen của khung cửa nhôm và màu vàng của đá vân mây ốp tầng trệt góp phần tôn lên vẻ đẹp xa hoa, thời thượng của căn biệt thự 3 tầng 200m2 này.

Xa hoa, tráng lệ và đẳng cấp là những từ ngữ miêu tả chính xác về mặt bằng biệt thự 200m2 kiểu Pháp
Mẫu biệt thự tân cổ điển kiểu Pháp có kết cấu vững chắc nhờ vào các mảng khối cân đối, hệ thức cột trụ lớn. Thiết kế hình vòm, hình vuông kết hợp các chi tiết trang trí tỉ mỉ, tinh xảo và bắt mắt tạo nên một tổng thể vô cùng chỉn chu và cực kỳ sang trọng. Hứa hẹn mang đến cho chủ đầu tư sở hữu không gian sống tiện nghi, đẳng cấp và thể hiện vị thế cá nhân.
Biệt thự 200m2 kiểu Pháp gây ấn tượng bởi những thước trụ cột và mảng khối vuông vức kết hợp các phào chỉ, hoa văn trang trí
Mẫu biệt thự 200m2 phong cách Châu Âu
Ngắm nhìn tổng thể mặt bằng biệt thự 200m2 phong cách Châu Âu, hình khối kiến trúc toát lên sự chắc chắn và kiên cố, mặt tiền rộng tạo nên sức hút và điểm nhấn nổi bật trong phương án thiết kế này.

Kiến trúc biệt thự 200m2 phong cách châu Âu vô cùng tráng lệ và xa hoa
Kiến trúc biệt thự 200m2 chú trọng đến những đường gờ, phào chỉ chạy dọc theo hệ thống chân cột và đầu cột, kết hợp cùng họa tiết hoa văn trang trí tỉ mỉ, đem lại những nét đẹp hoàn mỹ, hoàn toàn khác biệt cho ngôi nhà.

Thiết kế biệt thự 200m2 sử dụng gam màu trắng tinh khiết làm tone màu chủ đạo
Công trình khoác lên mình tone màu trắng tinh khôi làm tone màu chủ đạo, nhấn nhá cùng hệ cửa kính khung nhôm và hệ mái Mansard sơn màu đen, một sự tương phản bổ trợ nhau tạo nên cái nhìn mới mẻ. Biệt thự sử dụng phào chỉ nguyên khối, hoa văn trang trí tinh xảo trên mảng tường, càng tôn lên những nét đẹp kiêu sa và lộng lẫy.

Bao quanh công trình biệt thự 200m2 được tích hợp nhiều mảng cây xanh bát ngát

Biệt thự 2 tầng 200m2 phong cách Châu Âu thể hiện quyền quý, địa vị của chủ đầu tư
Mặt bằng nhà 200m2 mái thái
Mái thái là một trong những kiến trúc phổ biến và sử dụng rãi không chỉ tại các khu vực nông thôn mà thành phố cũng rất thịnh hành. Nhà mái thái không chỉ đẹp mắt mà còn sở hữu nhiều tính năng ưu Việt giúp bảo vệ ngôi nhà trước tác động của thời tiết đem lại. Kết hợp các mảng khối sắp xếp khoa học, gọn gàng được thể hiện chi tiết và cuốn hút người nhìn từ bất kỳ góc nhìn nào.

Mẫu biệt thự mái Thái 200m2 thiết kế thống nhất từ cửa cổng, tường rào cho đến kiến trúc mặt tiền, cây cảnh và sân vườn
Cùng với hệ thường tường rào, cửa cổng được thiết kế thống nhất với kiến trúc mặt tiền, khiến không gian bên trong và bên ngoài trở nên hài hòa và đồng điệu hơn. Đặc biệt, hệ thống cửa kính được phân bổ dày đặt giúp không gian nội thất thoáng đãng cũng như tạo tầm nhìn và đón gió mát từ hệ thống sân vườn xung quanh hiệu quả nhất.
Nhìn từ trên xuống, ngôi nhà thiết kế sân vườn với nhiều mảng cây xanh bát ngát, tạo không gian sống trong lành

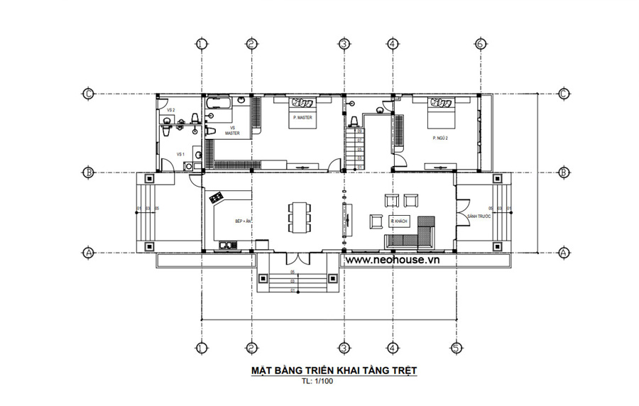
Mặt bằng tầng trệt biệt thự 200m2 mái thái bố trí phòng thờ, phòng khách, 2 phòng ngủ, phòng bếp + bàn ăn, phòng WC chung

Mặt bằng biệt thự 200m2 mái thái với công năng lầu 1 thiết kế các không gian sinh hoạt riêng tư cho gia đình
Mặt bằng nhà 200m2 mái bằng
Hình khối mặt tiền mặt bằng biệt thự 200m2 mái bằng được thiết kế đơn giản, không quá rườm rà nhưng không vì thế mà trông nhàm chán hay đơn điệu. Mà ngược lại, chính những khối hình vuông vức và phá cách đó, ngôi nhà 2 tầng mái bằng toát lên sự trang nhã và trẻ trung. Công trình sử dụng nhiều cửa kính khung nhôm đen cùng mảng kính có kích thước lớn, ngoài việc đem đến nguồn ánh sáng từ bên ngoài dễ dàng chiếu vào bên trong nhà.

Mặt bằng biệt thự 200m2 mái bằng có mặt tiền khá rộng rãi và thoáng đãng
Bên cạnh đó, với cửa kính và mảng kính lớn còn giúp gia chủ có nhiều góc nhìn ra ngoài sân vườn, gia tăng hiệu ứng thẩm mỹ cao, sự sang trọng cho mặt tiền kiến trúc. Vì thế ngôi nhà 200m2 luôn tràn ngập sức sống và thoáng mát.
Ngoại thất kiến trúc sử dụng các hình khối góc cạnh, mảng tường ốp kính, gỗ, đá và gạch có gam màu trầm ấm nổi bật trên nền sơn trắng tinh khôi chủ đạo. Tổng thể sân vườn rộng rãi, tích hợp cùng nhiều mảng cây xanh, hồ bơi, một căn biệt thự 200m2 lý tưởng để nghỉ dưỡng và thư giãn cho gia đình.

Mặt bằng biệt thự 200m2 mái bằng với công năng tầng trệt bao gồm phòng khách, 2 phòng ngủ, phòng bếp cùng bàn ăn, phòng WC chung

Mặt bằng biệt thự 200m2 mái bằng với công năng lầu 1 gồm 2 phòng ngủ, phòng thờ, khu vực giặt và phơi, gym, thiết kế thông tầng
Thiết kế biệt thự nhà vườn 200m2 đẹp
Kết hợp cùng các vật liệu hiện đại cùng gam màu tươi sáng, mẫu biệt thự nhà vườn 200m2 đẹp mang đến diện mạo gần gũi, sự kết hợp hoàn hảo giữa vẻ đẹp truyền thống và hiện đại mới mẻ. Những ô cửa sổ đơn và cửa sổ kép ở 2 bên đem đến cho ngôi nhà những điểm nhìn lý tưởng. Hơn nữa, nhờ vào những ô cửa kính, ánh sáng và gió mát dễ dàng lưu thông vào bên trong nhà. Bên cạnh đó, tiểu cảnh sân vườn với nhiều mảng không gian xanh, cây cảnh và bồn cây trồng ở cạnh nhà. Kế bên là ao sen, chòi nghỉ, nhà thờ tổ và hồ cá được phân chia bố cục khoa học, vừa đáp ứng một nơi trang nghiêm vừa đem lại một không gian thư giãn thoải mái cho gia đình.
Công trình sử dụng hai gam màu tương phản trong thiết kế ngoại thất, đó là màu trắng và xám thể hiện sự bắt mắt cho công trình. Màu sắc kết hợp hệ thống trụ cột, nhấn phào chỉ trang trí đơn giản, đá ốp tường và hình khối cũng đã đủ mang lại sức hút thống nhất cho phương án mặt bằng biệt thự 200m2.
=

Mặt bằng công năng tầng trệt biệt thự nhà vườn 200m2 1 tầng thể hiện chi tiết công năng từng phòng và vị trí hiển thị
Mặt bằng biệt thự 200m2 có gara
Ngoại thất mẫu nhà biệt thự 200m2 có gara này gây chú ý mạnh mẽ với vẻ ngoài thanh lịch và sang trọng. Sự kết hợp giữa các mảng hình khối vững chắc cùng màu sơn tươi sáng đã mang lại vẻ đẹp trẻ trung, trang nhã cho ngôi nhà.
Không những thế, mảng tường tầng trệt được ốp tự nhiên màu vàng vân mây trang trí vừa đem lại thẩm mỹ cao cho công trình, vừa giúp bảo vệ công trình khỏi tác động của thời tiết. Lầu 1 và lầu 2 thiết kế ban công đua ra rộng so với tầng trệt, tạo khối hình vững chắc. Cùng với hệ thống trụ cột tròn nhấn họa tiết chân và đầu cột, cửa sổ thiết kế kiểu vòm tròn cùng hệ mái Thái giật cấp, tạo nên một tổng thể vô cùng hài hòa và ấn tượng.
Bản vẽ mặt bằng biệt thự 3 tầng 200m2 có gara được bố trí dựa trên nhu cầu sử dụng thực tế của gia chủ cũng như các thành viên trong gia đình. Các không gian chức năng đều hướng đến một không gian sinh hoạt thoáng đãng, rộng rãi và liên thông với nhau tạo sự kết nối cho gia đình thêm phần gắn kết tình cảm.

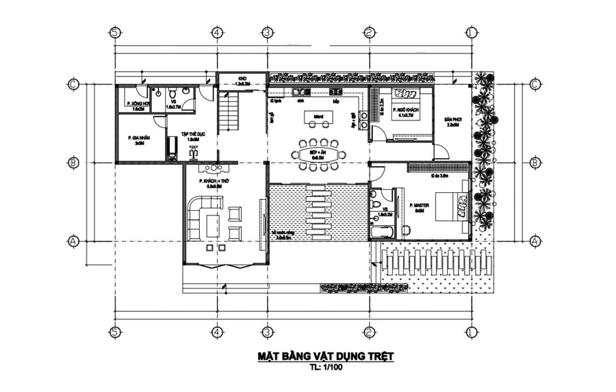
Mặt bằng biệt thự 200m2 với công năng tầng trệt thiết kế 2 phòng ngủ, phòng WC chung, phòng khách

Mặt bằng công năng lầu 1 biệt thự 200m2 3 tầng với 2 phòng ngủ, phòng sinh hoạt chung, phòng làm việc và phòng WC chung

Mặt bằng biệt thự 2002m với lầu 2 bố trí công năng tận dụng mọi không gian sử dụng
Mặt bằng biệt thự 2 tầng 10x20m
Phối cảnh mặt tiền biệt thự 2 tầng 10x20m hiện lên với vẻ đẹp thanh thoát, trang trí tối giản, công trình phù hợp cho những khu đất rộng lớn và yêu thích nét đẹp truyền thống, sân vườn kết hợp cùng sự phá cách mới mẻ của phong cách hiện đại.
Ngôi nhà sử dụng hệ mái Thái kiên cố, thiết kế khéo léo, không chỉ tạo nên được vẻ đẹp tổng thể cho công trình mà còn giúp bảo vệ ngôi nhà trước mọi tác động của thời tiết, đặc biệt thời tiết nhiệt đới mưa nhiều của nước ta. Ngoài ra, mái Thái còn giúp điều hòa không khí bên trong nhà luôn mát mẻ vào mùa nắng nóng. Mặt tiền lầu 1 được thiết kế ban công đua ra rộng, sử dụng lan can và hệ thống cửa bằng vật liệu kính cường lực trong suốt giúp không gian thêm phần thông thoáng và đón nhận nhiều ánh sáng tự nhiên, giảm thiểu sự bí bách tối đa.

Mặt bằng tầng trệt biệt thự 10x20m 2 tầng mái thái

Mặt bằng lầu 2 biệt thự 10x20m 2 tầng mái thái
Chi phí thiết kế thi công biệt thự 200m2
Ngoài quan tâm đến mặt bằng biệt thự 200m2, chi phí xây nhà 200m2 trọn gói bao nhiêu cũng được rất nhiều chủ đầu tư quan tâm khi có ý định xây dựng mái ấm cho gia đình mình. Hãy cùng LG Tech tìm hiểu về chi phí xây trọn gói nhà 200m2 ngay nội dung dưới đây nhé!
Vì sao phải tính chi phí xây dựng biệt thự 200m2
Xây dựng biệt thự là một công trình lớn, đòi hỏi chi phí đầu tư không hề nhỏ. Việc tính toán chi phí xây dựng biệt thự 200m2 là vô cùng cần thiết.
Việc tính toán chi phí xây dựng sẽ giúp gia chủ xác định được số tiền cần phải chuẩn bị để xây dựng biệt thự 200m2. Từ đó, gia chủ có thể cân đối tài chính và lên kế hoạch chi tiêu hợp lý.
Bên cạnh đó, trong quá trình thi công xây dựng, có thể phát sinh một số khoản chi phí ngoài dự kiến. Việc tính toán chi phí sẽ giúp gia chủ dự trù được những khoản chi phí này, từ đó hạn chế tối đa những phát sinh không đáng có.
Những chi phí cần phải chuẩn bị cho việc thiết kế thi công biệt thự 200m2 mà bạn có thể tham khảo:
– Chi phí thiết kế: Đây là khoản chi phí mà chủ đầu tư phải trả cho đơn vị thiết kế để có bộ hồ sơ thi công nhà. Trong đó, trọn bộ hồ sơ sẽ bao gồm: mặt bằng biệt thự 200m2, phối cảnh 3D kiến trúc, bản vẽ nội thất, kết cấu, điện, nước, bản vẽ chi tiết đồ nội thất, kỹ thuật,…
– Chi phí thi công phần thô: Đây là khoản chi phí mà chủ đầu tư phải chi trả cho đơn vị khi thực hiện xây nhà phần thô bao gồm: móng nhà, dầm, sàn, cột, điện, nước,…
– Chi phí thi công hoàn thiện: Đây là công đoạn để hoàn tất kiến trúc, bao gồm ốp lát trang trí, lát sàn, sơn vôi tường,…
– Chi phí sản xuất và lắp đặt nội thất: Chi phí này cho đồ nội thất bên trong nhà để đưa vào giai đoạn sử dụng, các trang thiết bị đồ nội thất sẽ bao gồm: bàn, ghế, giường, tủ, đồ gia dụng,…
– Dự trù khoản chi phí phát sinh: Hầu hết, những công trình hay dự án nào cũng có khoản phí dự trù đưa vào dự toán. Mức phát sinh chi phí ở mức chấp nhận được dao động khoảng 10%.
Cách tính chi phí xây nhà biệt thự 200m2
Trước tiên, muốn tính được chi phí xây dựng mặt bằng biệt thự 200m2, thì cần phải xác định được diện tích xây dựng các mặt sàn và diện tích mái của công trình như thế nào. Với những ngôi nhà mái chéo, mái dốc thì diện tích hệ mái sẽ nhân cho hệ số từ 1,35 đến 1,45 (tùy vào độ dốc từng công trình).
Ví dụ:
Công trình nhà 2 tầng có diện tích 200m2 mái dốc lợp ngói, tổng diện tích xây dựng của ngôi nhà là 200 + 200 x 1.4 = 480m2.
Dựa theo đơn giá xây dựng của các nhà thầu trên thị trường hiện nay dao động khoảng từ 6 – 7 triệu/m2 thì một căn nhà 2 tầng diện tích 200m2 sẽ có chi phí thi công khoảng 2 tỷ đồng (tùy vào diện tích xây dựng thấp hơn thì sẽ dưới 2 tỷ). Còn nếu tính thêm nội thất hoàn thiện thì ngôi nhà này cũng cần ít nhất chi phí khoảng 2,2 tỷ đồng để có thể đưa vào giai đoạn sử dụng.
Những lưu ý khi thiết kế thi công biệt thự 200m2
Khi thiết kế và xây dựng mặt bằng biệt thự 200m2, gia chủ cần lưu ý đến những vấn đề quan trọng sau đây để đảm bảo công trình được thực hiện đúng tiến độ và đạt chất lượng cao.
Trước khi bắt tay vào thi công, gia chủ có hai phương án để giám sát công trình. Nếu muốn thuê một đơn vị chuyên nghiệp giám sát, thì cần lưu ý đến hợp đồng phải minh bạch, chi tiết từng giai đoạn và có cam kết rõ ràng để tránh sự mập mờ và các rắc rối sau này.
Ngoài ra, gia chủ cũng có thể tự giám sát công trình nếu có kiến thức chuyên môn, tuy nhiên cần phải lưu ý đến từng khâu và từng công đoạn trong quá trình giám sát thi công.
Các lưu ý khi tiến hành thiết kế thi công biệt thự diện tích 200m2
Bước đầu tiên là chuẩn bị san lấp mặt bằng và các giấy tờ pháp lý liên quan đến cấp phép xây dựng cũng như việc cung cấp nguyên vật liệu và bản vẽ thiết kế cho nhà thầu thi công. Việc này rất quan trọng để đảm bảo quá trình thi công diễn ra thuận lợi và đạt hiệu quả.
Trong giai đoạn thi công phần thô, cần đảm bảo hệ thống khung kết cấu được thực hiện đúng vật tư, kỹ thuật và kết cấu. Việc nghiệm thu theo từng giai đoạn cũng rất quan trọng để đảm bảo đúng yêu cầu và tiến độ thi công.
Giai đoạn hoàn thiện là giai đoạn cuối cùng trong quá trình xây dựng, trong đó cần chú ý đến việc trát tường, lát sàn, sơn bả và quy trình lắp đặt điện, nước,… Mỗi công việc cần có độ chính xác và tỉ mỉ, yêu cầu hoàn thiện đạt chất lượng để đảm bảo tính thẩm mỹ và sử dụng lâu dài.
Đối với trang thiết bị và chọn đồ nội thất, gia chủ cần lựa chọn những đơn vị uy tín và quan tâm đến vấn đề bảo hành, bảo trì, đặc biệt nên lựa chọn nhà thầu có xưởng sản xuất trực tiếp để đảm bảo chất lượng cũng như chi phí. Không nên ham rẻ mà mua hàng kém chất lượng hoặc không rõ nguồn gốc để tránh những ảnh hưởng về sau.







