3 mẫu thiết kế nhà 5x20m có thang máy
Mỗi một mẫu thiết kế được đề cập ở bài viết dưới đây đều hướng tới người sử dụng, mang lại công năng đầy đủ và tiện nghi nhất cho người sử dụng. Cùng tham khảo các mẫu thiết kế nhà 5x20m có thang máy dưới đây để thêm ý tưởng cho công trình mơ ước của mình nhé.

Mẫu 1: Mẫu nhà ống 5 tầng có thang máy 5x20m
Thiết kế nhà ống 5 tầng kích thước 5x20m có thang máy là một giải pháp hoàn hảo cho các gia đình sống ở đô thị, đặc biệt là những khu vực có diện tích đất hạn chế nhưng yêu cầu không gian sống rộng rãi và tiện nghi. Dưới đây là một gợi ý chi tiết về cách bố trí các tầng và thiết kế nội thất cho ngôi nhà này.
1. Mặt bằng tổng thể
Tầng 1:
- Sảnh chính: Khu vực đón khách, kết hợp với cây xanh hoặc tiểu cảnh nhỏ.
- Phòng khách: Thiết kế mở, liên thông với bếp và phòng ăn để tạo cảm giác rộng rãi.
- Bếp và phòng ăn: Bố trí hiện đại, có quầy bar hoặc đảo bếp, bàn ăn rộng rãi cho gia đình.
- WC: Nhà vệ sinh nhỏ gọn dưới cầu thang.
- Garage: Khu vực để xe máy hoặc ô tô nhỏ, có lối vào riêng biệt nếu cần thiết.
Tầng 2:
- Phòng ngủ master: Diện tích lớn, có nhà vệ sinh riêng, không gian thay đồ và ban công.
- Phòng làm việc hoặc phòng đọc sách: Không gian yên tĩnh, có cửa sổ lớn để đón ánh sáng tự nhiên.
Tầng 3:
- 2 phòng ngủ: Mỗi phòng có nhà vệ sinh riêng và cửa sổ lớn để đón ánh sáng tự nhiên.
- Phòng sinh hoạt chung: Không gian nhỏ gọn, thoải mái cho các hoạt động gia đình.
Tầng 4:
- Phòng sinh hoạt chung: Khu vực giải trí, thư giãn cho cả gia đình.
- Phòng ngủ: Có nhà vệ sinh riêng.
- Phòng giặt: Kết hợp với không gian phơi đồ, tiện lợi cho việc giặt giũ.
Tầng 5:
- Phòng thờ: Không gian trang nghiêm, yên tĩnh.
- Sân thượng: Có thể trồng cây hoặc làm khu vực BBQ, tiểu cảnh, tạo không gian thư giãn ngoài trời.
2. Thiết kế nội thất
- Phong cách hiện đại: Sử dụng các đường nét đơn giản, tinh tế, tối giản nhưng sang trọng.
- Màu sắc: Chọn gam màu trung tính như trắng, xám, be kết hợp với các điểm nhấn màu sắc tươi sáng như xanh lá, vàng hoặc cam.
- Vật liệu: Gỗ công nghiệp, kính cường lực, đá tự nhiên và kim loại để tạo cảm giác hiện đại và sang trọng.
3. Thang máy
- Vị trí: Thang máy được bố trí ở giữa nhà hoặc gần cầu thang bộ để tiện lợi cho việc di chuyển giữa các tầng.
- Loại thang máy: Chọn loại thang máy gia đình nhỏ gọn, có tải trọng phù hợp với số lượng người sử dụng.
4. Mặt tiền nhà
- Kiến trúc: Sử dụng các đường nét đơn giản, hiện đại với các chi tiết như cửa kính lớn, ban công kính cường lực, các mảng tường ốp gỗ hoặc đá.
- Màu sắc: Sử dụng gam màu trung tính như trắng, xám, đen kết hợp với các điểm nhấn màu sắc để tạo sự hài hòa và hiện đại.
5. Các yếu tố khác
- Hệ thống ánh sáng: Kết hợp ánh sáng tự nhiên và đèn chiếu sáng nhân tạo để ngôi nhà luôn sáng sủa, thoáng đãng.
- Cảnh quan: Bố trí thêm cây xanh ở ban công, sân thượng để tạo không gian sống gần gũi với thiên nhiên.
Mẫu nhà ống dưới đây có thiết kế độc đáo với sân chơi rộng cho trẻ, có cầu thang máy tiện nghi để các thành viên di chuyển thuận tiện và an toàn giữa các tầng.
Thông tin chung về công trình
Diện tích: 5x20m
Số tầng: 5 tầng
Loại hình kiến trúc: Hiện đại
Thang máy sử dụng: Thang nhập khẩu Nhật Bản, tải trọng 350kg
Chi tiết công năng các tầng
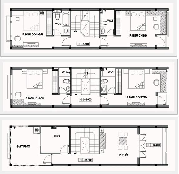
Tầng 1: Gara, phòng bếp và phòng ăn, phòng vệ sinh
Tầng 2: Phòng sinh hoạt chung, phòng khách
Tầng 3, 4: Mỗi tầng gồm 2 phòng ngủ, mỗi phòng đều có nhà vệ sinh khép kín, có ban công thoáng đãng.
Tầng 5: Gồm phòng thờ, sân thượng, sân phơi và 1 kho nhỏ

Mặt bằng công năng tầng 1, 2

Mặt bằng công năng tầng 3, 4, 5
Mẫu 2: Mẫu thiết kế nhà 5x20m 4 tầng có thang máy
Thiết kế nhà 5x20m 4 tầng có thang máy là một giải pháp lý tưởng cho các gia đình sống trong đô thị, đặc biệt tại các thành phố lớn như Hà Nội. Dưới đây là một gợi ý chi tiết về cách bố trí các tầng và thiết kế nội thất cho ngôi nhà này:
1. Mặt bằng tổng thể
Tầng 1:
- Sảnh chính: Khu vực đón khách với cây xanh hoặc tiểu cảnh nhỏ để tạo cảm giác thân thiện.
- Phòng khách: Thiết kế mở, liên thông với bếp và phòng ăn để tạo không gian rộng rãi và thoáng mát.
- Bếp và phòng ăn: Bố trí hiện đại với quầy bar hoặc đảo bếp, bàn ăn lớn cho gia đình.
- WC: Nhà vệ sinh nhỏ gọn dưới cầu thang.
- Garage: Khu vực để xe máy hoặc ô tô nhỏ, có lối vào riêng biệt nếu cần thiết.
Tầng 2:
- Phòng ngủ master: Diện tích lớn, có nhà vệ sinh riêng, không gian thay đồ và ban công.
- Phòng làm việc hoặc phòng đọc sách: Không gian yên tĩnh với cửa sổ lớn để đón ánh sáng tự nhiên.
- WC: Nhà vệ sinh chung cho cả tầng.
Tầng 3:
- 2 phòng ngủ: Mỗi phòng có nhà vệ sinh riêng và cửa sổ lớn để đón ánh sáng tự nhiên.
- Khu vực sinh hoạt chung: Không gian thoải mái cho các hoạt động gia đình.
Tầng 4:
- Phòng thờ: Không gian trang nghiêm, yên tĩnh.
- Phòng giặt: Kết hợp với không gian phơi đồ, tiện lợi cho việc giặt giũ.
- Sân thượng: Có thể trồng cây hoặc làm khu vực BBQ, tiểu cảnh, tạo không gian thư giãn ngoài trời.
2. Thiết kế nội thất
- Phong cách hiện đại: Sử dụng các đường nét đơn giản, tinh tế, tối giản nhưng sang trọng.
- Màu sắc: Chọn gam màu trung tính như trắng, xám, be kết hợp với các điểm nhấn màu sắc tươi sáng như xanh lá, vàng hoặc cam.
- Vật liệu: Gỗ công nghiệp, kính cường lực, đá tự nhiên và kim loại để tạo cảm giác hiện đại và sang trọng.
3. Thang máy
- Vị trí: Thang máy được bố trí ở giữa nhà hoặc gần cầu thang bộ để tiện lợi cho việc di chuyển giữa các tầng.
- Loại thang máy: Chọn loại thang máy gia đình nhỏ gọn, có tải trọng phù hợp với số lượng người sử dụng.
4. Mặt tiền nhà
- Kiến trúc: Sử dụng các đường nét đơn giản, hiện đại với các chi tiết như cửa kính lớn, ban công kính cường lực, các mảng tường ốp gỗ hoặc đá.
- Màu sắc: Sử dụng gam màu trung tính như trắng, xám, đen kết hợp với các điểm nhấn màu sắc để tạo sự hài hòa và hiện đại.
5. Các yếu tố khác
- Hệ thống ánh sáng: Kết hợp ánh sáng tự nhiên và đèn chiếu sáng nhân tạo để ngôi nhà luôn sáng sủa, thoáng đãng.
- Cảnh quan: Bố trí thêm cây xanh ở ban công, sân thượng để tạo không gian sống gần gũi với thiên nhiên.
Đây là công trình nhà ống được bố trí một cách rất khoa học, vừa đảm bảo công năng vừa độc đáo về mặt kiến trúc thẩm mỹ. Mặc dù chỉ có 4 tầng nhưng để tăng sự tiện nghi cho công trình, chủ nhà đã quyết định lắp đặt thêm thang máy. Cùng tìm hiểu chi tiết về mẫu thiết kế nhà 5x20m có thang máy này nhé.
Thông tin chung công trình:
Chủ đầu tư: Nguyễn Thị Bốn
Địa chỉ: Đường Nguyễn Phong Sắc, Quảng Ninh
Diện tích: 5x20m
Công năng chi tiết các tầng:
Tầng 1: Phòng khách, Phòng bếp ăn, nhà vệ sinh, gara
Tầng 2: Gồm 2 phòng ngủ, thư viện, nhà vệ sinh
Tầng 3: Gồm 2 phòng ngủ có nhà vệ sinh khép kín
Tầng 4: Phòng thờ, kho, sân phơi, khu vực chơi thể thao

Mặt bằng tầng 1, 2

Mặt bằng tầng 3, 4
Mẫu 3: Mẫu nhà phố hiện đại 5x20m2, 4 tầng có thang máy
Dưới đây là một mẫu thiết kế nhà phố hiện đại kích thước 5x20m, 4 tầng, có thang máy. Mẫu này được thiết kế với mục tiêu tối ưu hóa không gian, đảm bảo tiện nghi và thẩm mỹ hiện đại.
Mặt bằng tổng thể
Tầng 1
- Sảnh chính: Khu vực đón khách.
- Phòng khách: Không gian rộng rãi, thông thoáng, liên thông với bếp và phòng ăn.
- Bếp và phòng ăn: Thiết kế mở, hiện đại với quầy bar hoặc đảo bếp, bàn ăn lớn cho gia đình.
- WC: Nhà vệ sinh nhỏ gọn dưới cầu thang.
- Garage: Khu vực để xe máy hoặc ô tô nhỏ, có lối vào riêng biệt nếu cần thiết.
Tầng 2
- Phòng ngủ master: Diện tích lớn, có nhà vệ sinh riêng, không gian thay đồ và ban công.
- Phòng làm việc hoặc phòng đọc sách: Không gian yên tĩnh với cửa sổ lớn để đón ánh sáng tự nhiên.
- WC: Nhà vệ sinh chung cho cả tầng.
Tầng 3
- 2 phòng ngủ: Mỗi phòng có nhà vệ sinh riêng và cửa sổ lớn để đón ánh sáng tự nhiên.
- Phòng sinh hoạt chung: Không gian thoải mái cho các hoạt động gia đình.
Tầng 4
- Phòng thờ: Không gian trang nghiêm, yên tĩnh.
- Phòng giặt: Kết hợp với không gian phơi đồ, tiện lợi cho việc giặt giũ.
- Sân thượng: Có thể trồng cây hoặc làm khu vực BBQ, tiểu cảnh, tạo không gian thư giãn ngoài trời.
Thiết kế nội thất
- Phong cách hiện đại: Sử dụng các đường nét đơn giản, tinh tế, tối giản nhưng sang trọng.
- Màu sắc: Chọn gam màu trung tính như trắng, xám, be kết hợp với các điểm nhấn màu sắc tươi sáng như xanh lá, vàng hoặc cam.
- Vật liệu: Gỗ công nghiệp, kính cường lực, đá tự nhiên và kim loại để tạo cảm giác hiện đại và sang trọng.
Thang máy
- Vị trí: Thang máy được bố trí ở giữa nhà hoặc gần cầu thang bộ để tiện lợi cho việc di chuyển giữa các tầng.
- Loại thang máy: Chọn loại thang máy gia đình nhỏ gọn, có tải trọng phù hợp với số lượng người sử dụng.
Mặt tiền nhà
- Kiến trúc: Sử dụng các đường nét đơn giản, hiện đại với các chi tiết như cửa kính lớn, ban công kính cường lực, các mảng tường ốp gỗ hoặc đá.
- Màu sắc: Sử dụng gam màu trung tính như trắng, xám, đen kết hợp với các điểm nhấn màu sắc để tạo sự hài hòa và hiện đại.
Các yếu tố khác
- Hệ thống ánh sáng: Kết hợp ánh sáng tự nhiên và đèn chiếu sáng nhân tạo để ngôi nhà luôn sáng sủa, thoáng đãng.
- Cảnh quan: Bố trí thêm cây xanh ở ban công, sân thượng để tạo không gian sống gần gũi với thiên nhiên.
Dưới đây là mẫu thiết kế nhà phố hiện đại dành cho gia đình với 4 thành viên. Mong muốn của chủ nhà là không gian tươi mát, với tiện nghi đầy đủ. Loại thang máy sử dụng là thang liên doanh, tải trọng 250kg
Công năng chi tiết các tầng
Tầng 1: Gồm gara, phòng khách, bếp ăn, khu sảnh và thang máy
Tầng 2: Phòng ngủ master, phòng sinh hoạt chung, phòng vệ sinh, khu sảnh và thang máy
Tầng 3: 2 phòng ngủ bé, 1 phòng vệ sinh, khu sảnh và thang máy
Tầng 4: Sân thượng, phòng thờ, sân phơi

Mặt bằng công năng tầng 1

Mặt bằng công năng tầng 2

Mặt bằng công năng tầng 3

Mặt bằng công năng tầng 4
Ba mẫu thiết kế nhà 5x20m có thang máy nêu trên đều được các kiến trúc sư đưa ra các giải pháp bố trí không gian rất khoa học. Có thể nói khó có thể tìm ra giải pháp kiến trúc hoàn hảo hơn cho loại hình nhà ống có thang máy.
Mỗi mẫu thiết kế đều không chỉ chú trọng vào không gian sinh hoạt của gia đình mà còn đảm bảo không gian thể dục thể thao, sân chơi cho từng thành viên. Sự tài tình và tinh tế trong việc cân đối không gian của kiến trúc sư mang lại cho mỗi công trình sự hài hòa tổng thể.
Đặc biệt, bằng việc lắp đặt thêm thang máy, mỗi một công trình đều toát lên sự hiện đại, tiện nghi. Cả ba công trình nêu trên đều có thể sử dụng thang máy mini do diện tích thang máy gia đình cũng không quá lớn.







