Mặt bằng biệt thự sân vườn hiện nay được rất nhiều chủ đầu tư quan tâm bởi bản vẽ thiết kế này thể hiện tổng thể diện tích, công năng sử dụng sân vườn cũng như mặt bằng bố trí bên trong ngôi nhà giúp gia chủ dễ dàng hình dung và nắm bắt rõ các vị trí, kích thước và bố cục của các phòng chức năng sử dụng. Hãy cùng LG Tech tham khảo các phương án thiết kế bản vẽ mặt bằng biệt thự sân vườn đẹp, khoa học và thẩm mỹ dưới đây để có thêm nhiều ý tưởng bố trí mới dành cho riêng mình.
Mặt bằng biệt thự sân vườn là gì?
Mặt bằng biệt thự sân vườn là bản vẽ thể hiện bố cục, kích thước, vị trí các phòng, hướng nhà, hệ thống đường đi, cây xanh, đồ nội thất, khu vực chức năng trong một căn biệt thự sân vườn. Mặt bằng này được thể hiện dưới dạng hình chiếu bằng, từ đó giúp người xem có thể hình dung được tổng thể căn nhà, cũng như các khu vực chức năng bên trong.
Dựa trên những thông tin của mặt bằng biệt thự, chủ đầu tư có cái nhìn tổng quan của ngôi nhà của mình. Từ đó, có thể tùy chỉnh theo đúng mong muốn và nhu cầu sử dụng trước khi tiến hành thi công nhà.

Mặt bằng biệt thự sân vườn là gì?
Hầu hết, các bản vẽ mặt bằng tổng thể biệt thự sân vườn sẽ bao gồm 2 phần chính, đó là mặt bằng công năng và phần tiểu cảnh sân vườn:
Mặt bằng công năng: Phần này thể hiện hướng nhà, kích thước chi tiết, vị trí các phòng chức năng, vị trí công trình xây dựng so với tổng thể khu đất.
Mặt bằng sân vườn: Thể hiện các chi tiết như cây xanh, hồ cá, hồ bơi, hòn non bộ, chòi nghỉ, gara để xe,…
Như vậy, việc lên ý tưởng và bố trí mặt bằng biệt thự rất quan trọng trong giai đoạn xây nhà trong tương lai của gia đình mình. Hãy cùng theo cân LG Tech tìm hiểu các nguyên tắc và lưu ý khi thiết kế mặt bằng biệt thự sân vườn qua nội dung dưới đây.
Nguyên tắc khi thiết kế mặt bằng tổng thể biệt thự sân vườn
Mặt bằng tổng thể biệt thự sân vườn là bản vẽ thể hiện toàn bộ không gian của biệt thự, bao gồm nhà ở và khuôn viên sân vườn. Để có được một thiết kế mặt bằng tổng thể hoàn hảo, cần tuân thủ các nguyên tắc sau:
Nguyên tắc bố cục mặt bằng biệt thự vườn
Nguyên tắc bố cục mặt bằng biệt thự sân vườn là sự sắp xếp các không gian chức năng của biệt thự và sân vườn theo một trật tự nhất định, đảm bảo sự hài hòa, thuận tiện và khoa học. Có hai yếu tố chính cần được chú ý khi bố trí, bao gồm:
– Yêu cầu của gia chủ: Thiết kế mặt bằng biệt thự sân vườn cần đáp ứng được các yêu cầu về sử dụng, sinh hoạt của gia chủ. Số lượng thành viên trong gia đình, sở thích và thói quen sinh hoạt thực tế của từng gia đình sẽ là những yếu tố quan trọng ảnh hưởng đến bố cục mặt bằng.
– Sự lưu thông: Không gian lưu thông trong biệt thự sân vườn cần được đảm bảo sự thuận tiện và thoải mái trong quá trình sử dụng cho các thành viên trong gia đình. Theo đó sự lưu thông thuận tiện bao gồm theo phương ngang và phương dọc. Trong đó, phương ngang là sự di chuyển giao thông thuận tiện giữa các phòng chức năng trong một mặt phẳng của mặt bằng, phương dọc là sự di chuyển giữa các tầng của công trình và cầu thang là yếu tố quyết định.

Nguyên tắc bố cục mặt bằng biệt thự sân vườn
Nguyên tắc bố trí mặt bằng sân vườn nhà biệt thự
Bố trí mặt bằng sân vườn biệt thự là việc sắp xếp các yếu tố cảnh quan trong sân vườn theo một bố cục thống nhất, hài hòa. Có nhiều cách bố trí mặt bằng sân vườn biệt thự khác nhau, tùy thuộc vào sở thích và phong cách của gia chủ. Một số cách bố trí phổ biến mà bạn có thể tham khảo như:
– Bố trí cân bằng đối xứng: Cách bố trí được sử dụng rộng rãi và phổ biến cho những căn biệt thự có nhà vườn rộng rãi. Trong đó, sân vườn sẽ được thiết kế bao gồm cây cảnh, hồ cá, thảm cỏ, chòi nghỉ, hồ bơi,… được bố trí đối xứng, hài hòa trong tổng thể.
– Bố trí cân bằng đối tâm: Cách bố trí này lấy một yếu tố cảnh quan làm trọng tâm, chẳng hạn như hồ bơi và chòi nghỉ làm tâm, các yếu tố còn lại sẽ được bố trí xung quanh sao cho hài hòa, tinh tế đem đến hiệu ứng thẩm mỹ tổng thể bắt mắt.
– Bố trí cân bằng bất đối xứng: Kiểu bố trí này tạo ra một không gian không theo trục đối xứng rõ ràng, với cảnh vật giống nhau ở cả hai bên. Tuy nhiên, cách này tạo ra nhiều khoảng trống phù hợp để tạo điểm nhấn cho các tiểu cảnh, khu vườn trồng cây, chòi nghỉ để thư giãn và giải trí.
– Bố trí tạo điểm nhấn trọng điểm: Phong cách này tập trung vào việc thiết kế nhiều khu vực với các mảng chính và phụ rõ ràng. Tùy thuộc vào sự sáng tạo, sở thích và nhu cầu của chủ nhà để thiết kế và tạo điểm nổi bật cho một khu vực cụ thể.

Nguyên tắc bố trí mặt bằng sân vườn nhà biệt thự
Lưu ý yếu tố phong thủy trong mặt bằng biệt thự sân vườn
Phong thủy là một lĩnh vực đòi hỏi sự kiên nhẫn và am hiểu sâu sắc về cả môi trường và con người. Nó không chỉ dừng lại ở việc bài trí và thiết kế ngôi nhà, mà còn đòi hỏi sự quan tâm đến mọi khía cạnh trong cuộc sống hàng ngày. Một trong những yếu tố quan trọng nhất trong phong thủy là sự cân bằng năng lượng.
Theo quan niệm phong thủy, một ngôi nhà được xem là có năng lượng tốt khi có khả năng thu hút và giữ lại năng lượng tích cực. Điều này có thể đồng nghĩa với việc sử dụng màu sắc và vật liệu trong việc trang trí nhà cửa. Ví dụ, màu trắng và màu xanh lá cây được xem là mang lại năng lượng tốt cho ngôi nhà, vì chúng tượng trưng cho sự tinh khiết và sự sống. Trong khi đó, màu đen thường được coi là mang lại năng lượng tiêu cực, vì nó có liên quan đến sự u ám và sự chết chóc.
Ngoài ra, vật liệu cũng đóng vai trò quan trọng trong việc tạo ra một ngôi nhà có năng lượng tốt. Ví dụ, gỗ và đá được cho là mang lại năng lượng tích cực, trong khi vật liệu như kim loại thường tụ họp năng lượng và không tạo điều kiện tốt cho sức khỏe và tài lộc của gia chủ. Bên cạnh việc bài trí và thiết kế nhà cửa, phong thủy cũng cho rằng việc bố trí đồ đạc và vật dụng trong ngôi nhà cũng có tác động sâu sắc đến năng lượng. Ví dụ, điều quan trọng là không để các vật dụng quá tải trọng hoặc lộn xộn trong phòng ngủ, vì nó có thể làm giảm năng lượng tích cực và gây ảnh hưởng đến giấc ngủ của chủ nhà.
Ngoài ra, phong thủy cũng gắn liền với việc xác định hướng nhà trong quá trình xây dựng và lựa chọn địa điểm để xây dựng. Theo phong thủy, hướng nhà có thể ảnh hưởng đến năng lượng và tác động lên tình hình tài chính và sức khỏe của gia chủ. Ví dụ, một ngôi nhà hướng về phía Đông được cho là mang lại tài lộc và may mắn, trong khi ngôi nhà hướng về phía Tây có thể gây rối loạn và rủi ro tài chính.
Cuối cùng, phong thủy cũng chú trọng đến việc tạo không gian sống và làm việc thoải mái và hài hòa cho mọi người trong gia đình. Theo quan niệm phong thủy, một ngôi nhà phải có sự cân bằng giữa ánh sáng và không gian, với không gian mở và thông thoáng sẽ giúp tăng cường năng lượng tích cực và sức khỏe cho cả nhà.
Như vậy, phong thủy không chỉ là một môn khoa học cổ truyền, mà còn là một nghệ thuật sống và làm việc tạo điều kiện tốt nhất cho cuộc sống của con người. Việc áp dụng phong thủy trong thiết kế và trang trí ngôi nhà có thể tạo ra một môi trường sống và làm việc tốt nhất cho gia đình, giúp họ tận hưởng cuộc sống an lành, hạnh phúc và thịnh vượng.
Với biệt thự sân vườn, việc thiết kế mặt bằng sao cho hợp phong thủy là điều vô cùng quan trọng mà gia chủ cần chú trọng đến. Dưới đây là một số lưu ý cần nắm bắt trước khi xây nhà:
Phong thủy phòng khách
Có thể bố trí các vật dụng khác nhau trong phòng khách theo nhiều hướng khác nhau, mỗi một hướng sẽ có ý nghĩa riêng biệt, cụ thể:
– Ở góc Đông – Đông Nam (hành Mộc) là nơi chủ về tài lộc, có thể đặt cây cối hoặc các mô hình tượng trưng cho sự thịnh vượng, như con cóc ngậm tiền hay mèo may mắn.
– Góc Tây Bắc (hành Kim) là nơi chủ quý nhân, có thể đặt chuông gió kim loại 6 hoặc 8 ống.
– Góc phía Bắc của phòng khách (hành Thủy) là nơi chủ về sự nghiệp, có thể đặt bể cá hoặc các vật dụng trang trí liên quan đến nước.
– Góc phía Nam (hành Hỏa) là nơi chủ về danh vọng, nên đặt những vật dụng sáng để mang lại năng lượng như đèn chùm.
– Góc Tây Nam (hành Thổ) là nơi chủ về niềm vui, có thể đặt các vật dụng trang trí thể hiện tình cảm, sự gắn bó như hoa mẫu đơn hay các tượng cặp thiên nga.
– Góc phía Tây (hành Kim) là nơi chủ về con cháu, có thể đặt các vật dụng kim loại như cúp, huy chương hoặc bình hoa.
Cuối cùng, góc Đông Bắc (hành Thổ) là nơi chủ về tri thức, có thể đặt một cây đèn hướng lên phía trên để thu hút nguồn âm dương.

Yếu tố phong thủy phòng khách khi thiết kế mặt bằng biệt thự sân vườn
Phong thủy phòng bếp + ăn
Không gian bếp + ăn được xem là nơi sum vầy của gia đình bên những bữa cơm gia đình ấm áp và hạnh phúc. Vì thế, khi bố trí mặt bằng biệt thự sân vườn, căn bếp và bàn ăn của gia chủ cần chú ý yếu tố phong thủy như sau:
– Đầu tiên: Không nên đặt bếp ở góc Tây Bắc, nếu không phù hợp hướng thì nồi cơm điện nên đặt vị trí quay về hướng tốt cho chủ nhà.
– Phòng bếp nên được thiết kế liên thông với phòng ăn để tạo sự thoáng đãng và tiện lợi.
– Vị trí đẹp nhất cho phòng ăn là ở giữa căn nhà. Nên bố trí bộ bàn ghế phù hợp để tạo sự gắn kết sự yêu thương giữa các thành viên trong gia đình. Hơn nữa, việc có từ 6-8 ghế sẽ tốt hơn so với chỉ có bàn 4 ghế.

Bố trí phòng bếp và bàn ăn chuẩn phong thủy cho mặt bằng biệt thự sân vườn
Phong thủy phòng ngủ
Đối với phong thủy mặt bằng biệt thự cho phòng ngủ, gia chủ nên sử dụng giường bằng vật liệu gỗ để tạo sự kết nối và gần gũi với thiên nhiên, cũng như tạo sự ấm cúng cho căn phòng. Khi bố trí giường, hãy đặt vị trí theo hướng tốt phù hợp với con số bát quái của chủ nhân căn phòng.
Tuyệt đối không nên đặt đầu giường hướng ra cửa sổ hay hướng về nhà vệ sinh, đây là điều cấm kỵ trong việc thiết kế phòng ngủ.
Việc đặt giường ngủ dưới cây xà ngang hoặc vật nặng trên mái nhà có thể tạo áp lực lên người ngủ và ảnh hưởng đến sức khỏe của họ. Ví dụ, cây xà ngang lớn có thể gây rung động khi gió thổi mạnh, làm rung chuyển giường và tạo cảm giác không ổn định cho người nằm. Điều này có thể gây ra rối loạn giấc ngủ, vận động không tự chủ, thậm chí có thể dẫn đến việc ngã khỏi giường và gây chấn thương.
Tương tự, vật nặng nằm trên mái nhà cũng có thể tạo áp lực lên giường và người ngủ. Ví dụ, nếu có một tấm mái bị hỏng hoặc một vật nặng nằm trên mái, có thể tạo ra một lực lên giường và người nằm. Điều này có thể làm giảm cảm giác thoải mái và ảnh hưởng đến sự thư thái trong giấc ngủ.
Ngoài ra, việc sử dụng đèn ngủ cũng có thể ảnh hưởng đến chất lượng giấc ngủ. Đèn quá sáng hay gam màu chói mắt có thể gây căng thẳng và khó chịu cho mắt, làm giảm khả năng thư giãn và chuyển sang trạng thái ngủ. Ví dụ, đèn sáng chói có thể kích thích não bộ và tạo cảm giác tỉnh táo, gây khó khăn trong việc buổi có giấc ngủ sâu và ngủ say.
Trong khi đó, sử dụng các gam màu trầm ấm cho đèn ngủ có thể tạo cảm giác thư thái và kích thích giấc ngủ tốt hơn. Ví dụ, gam màu xanh lá cây nhạt hoặc xanh dương nhẹ mang lại cảm giác mát mẻ và thư thái, giúp tạo điều kiện tốt cho giấc ngủ. Gam màu vàng nhẹ hoặc cam nhạt cũng có thể tạo cảm giác dễ chịu và ấm áp, giúp thư giãn và lâm vào giấc ngủ nhanh hơn.
Như vậy, việc đặt giường ngủ và sử dụng đèn ngủ đúng cách có thể góp phần tạo ra một môi trường thích hợp cho giấc ngủ. Tránh đặt giường dưới các cây xà ngang hoặc vật nặng trên mái nhà để tránh áp lực không mong muốn và tạo cảm giác không ổn định cho người ngủ. Sử dụng đèn ngủ với các gam màu trầm ấm để thư giãn và kích thích giấc ngủ tốt hơn. Điều này sẽ giúp cải thiện chất lượng giấc ngủ và đảm bảo sức khỏe và trạng thái tinh thần tốt cho người ngủ.

Yếu tố phong thủy phòng ngủ khi bố trí mặt bằng biệt thự sân vườn
Full hồ sơ bản vẽ mặt bằng biệt thự sân vườn đẹp
Dưới đây là những mẫu mặt bằng biệt thự sân vườn “CHUẨN” không thể bỏ qua nếu như bạn đang tìm phương án bố trí mặt bằng sân vườn biệt thự cho gia đình. Cùng LG Tech tham khảo nhé!
Mặt bằng biệt thự sân vườn 3 tầng hiện đại
Biệt thự hiện đại 120m2 gây ấn tượng với diện mạo tổng thể trẻ trung và độc đáo. Vẻ đẹp toát lên bởi sự hòa quyện của bố cục màu sắc cùng vật liệu trang trí tạo nên một công trình ngoại thất hoàn hảo. Kiến trúc sư đã thể hiện sự phá cách của ngôi nhà bằng cách thiết kế những mảng khối hình học phi đối xứng, kết hợp với gạch bông gió và gạch thẻ ốp tầng trệt. Nhờ đó mà mẫu biệt thự 3 tầng mang nét đẹp khỏe khoắn, cá tính và góc cạnh.

Kiến trúc biệt thự sân vườn 3 tầng theo phong cách hiện đại kết hợp vật liệu gạch bông gió
Các mảng tường bê tông giật cấp với khoảng tiến lùi linh hoạt tạo diện mạo mới mẻ, đầy cá tính. Hệ thống cửa kính bố trí xuyên suốt từ tầng trệt lên tầng lầu giúp không gian bên trong luôn chan hòa không khí và lấy sáng hiệu quả. Bao quanh ngôi nhà là khoảng không gian sân vườn xanh mát đem lại một tổng thể trong lành, mát mẻ và thư thái cho cả gia đình.

Sân vườn rộng rãi tích hợp nhiều mảng cây xanh bát ngát
Thiết kế mặt bằng biệt thự sân vườn với hệ thống cây xanh được phân bổ khoa học, lối đi lát gạch màu xám, vừa thuận tiện cho quá trình di chuyển, vừa giúp tăng hiệu ứng thẩm mỹ cho ngôi nhà thêm phần sinh động và ấn tượng hơn.

Mặt bằng tầng trệt biệt thự sân vườn 3 tầng hiện đại
Phương án bố trí mặt bằng biệt thự 3 tầng hiện đại được bố trí bao gồm các khu vực như sau: sân vườn, phòng khách, phòng bếp và bàn ăn, phòng vệ sinh chung, phòng ngủ tích hợp phòng WC khép kín.
Nhận thức được nhu cầu sử dụng của gia chủ hướng đến không gian mở nên sân vườn được tích hợp với nhiều cây xanh, phòng khách đặt sát với cửa chính, liên thông với khu vực bếp và bàn ăn, cùng hệ thống cửa kính dày đặt, tạo một tổng thể liên kết giúp không gian lưu thông thuận tiện, mát mẻ cho cả ngôi nhà.

Mặt bằng tầng lửng biệt thự sân vườn 3 tầng hiện đại
Không gian nội thất tầng lửng của ngôi nhà được bố trí 3 phòng ngủ tương đối rộng rãi và thoáng đãng. Đặc biệt khi thiết kế thông tầng, căn nhà được kết nối giữa các tầng với nhau, tạo nên một không gian liên kết chặt chẽ.

Mặt bằng lầu 1 biệt thự sân vườn 3 tầng hiện đại
Công năng lầu 1 của mặt bằng biệt thự sân vườn 3 tầng với các không gian sử dụng bao gồm: 2 phòng ngủ, 1 phòng ngủ cho bố mẹ có thêm phòng vệ sinh khép kín, lối ra ban công trước nhà, đối diện là phòng ngủ cho con kết hợp phòng học và lối ra ban công bên hông nhà, trung tâm là khu vực sinh hoạt chung cùng với phòng WC chung cho gia đình.

Mặt bằng lầu 2 biệt thự sân vườn 3 tầng hiện đại
Mặt bằng lầu 2 của ngôi nhà được kiến trúc sư thiết kế với 2 nhà kho trước và sau nhà. Kế bên là không gian phòng thờ, bố trí không gian thoáng và rộng, hướng ra trước nhà, thiết kế chuẩn phong thủy và trang nghiêm. Sân thượng trước tận dụng làm khu vực trồng cây và giải trí cho gia đình.
Mặt bằng biệt thự sân vườn 3 tầng tân cổ điển
Ngắm nhìn phối cảnh chính diện của mẫu biệt thự tân cổ điển, người nhìn bị cuốn hút bởi hệ thống trụ cột khỏe khoắn, các mảng khối hình vuông, hình vòm ấn tượng. Cùng với các chi tiết phào chỉ trang trí, lan can sắt màu đen phun sơn tĩnh điện với hoa văn uốn lượn, điểm xuyết cùng bố cục mảng khối chuẩn chỉ về tỉ lệ, thể hiện bao quát toàn bộ tổng thể công trình sang trọng và đẳng cấp.

Nhà biệt thự sân vườn 3 tầng tân cổ điển sang trọng kết hợp cùng mái Thái kiên cố
Ngôi nhà sử dụng cửa kính kết hợp hệ khung nhôm sơn đen nổi bật, hài hòa với cảnh quan kiến trúc xung quanh. Đặc biệt, điểm nhấn ấn tượng của ngôi nhà chính là hệ mái Thái kiên cố, tầng trệt ốp đá tự nhiên vân mây màu vàng kem bắt mắt, nổi bật trên nền sơn trắng chủ đạo. Không quá cầu kỳ, không quá sử dụng nhiều họa tiết trang trí, màu sắc song mẫu nhà biệt thự 3 tầng vẫn toát lên vẻ xa hoa, thu hút mọi ánh nhìn.

Ngắm nhìn tổng thể công trình biệt thự 3 tầng chúng ta bị thu hút bởi vẻ đẹp sinh động và bắt mắt
Chưa hết, công trình còn có rất nhiều mảng cây xanh bao quanh làm tăng thêm tính thẩm mỹ mà không phá vỡ sự hài hòa. Sân vườn rộng rãi được tận dụng làm nơi thư giãn, trồng cây xanh và gara để xe cũng như nơi vui chơi cho các bé.

Mặt bằng tầng trệt mẫu biệt thự sân vườn 3 tầng tân cổ điển
Sở hữu khu đất khá rộng lớn, song căn biệt thự 3 tầng tân cổ điển được xây dựng trên diện tích 13x16m nhằm tiết kiệm chi phí. Mặc khác, còn tạo ra khoảng sân vườn rộng rãi bao quanh công trình, mang đến không khí mát mẻ và trong lành. Dựa trên diện tích sàn 13x16m, kiến trúc sư đã tiến hành phân chia công năng mặt bằng biệt thự sân vườn sao cho đáp ứng nhu cầu và mong muốn của gia chủ.
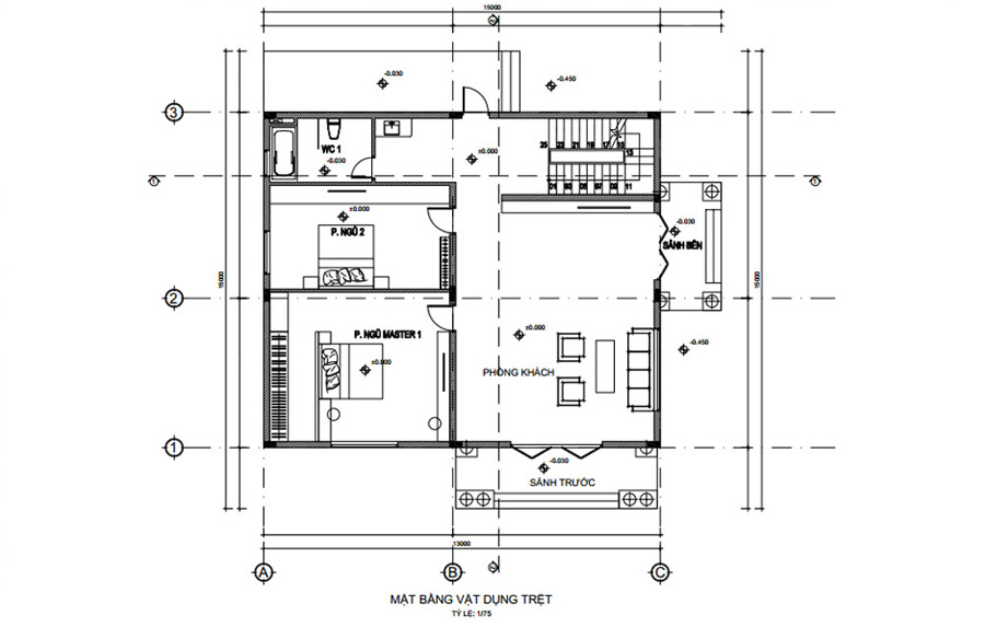
Mặt bằng tầng trệt của căn biệt thự bố trí bao gồm công năng sử dụng phòng khách, 2 phòng ngủ, phòng WC chung. Trong đó, nội thất phòng khách rất rộng và thoáng, có 2 lối ra cửa chính và bên hông nhà. Sát bên là 2 phòng ngủ, 1 phòng ngủ master dành cho vợ chồng gia chủ có diện tích sử dụng lớn, tiếp là phòng ngủ cho con có diện tích nhỏ hơn nhưng vẫn đảm bảo tính tiện nghi và thoải mái trong quá trình sử dụng. Cuối nhà là không gian phòng WC chung và cầu thang thông tầng. Bếp và phòng ăn được gia chủ xây dựng kế bên công trình, tạo không gian tách biệt cho việc nấu nướng.

Mặt bằng lầu 1 mẫu biệt thự sân vườn 3 tầng tân cổ điển
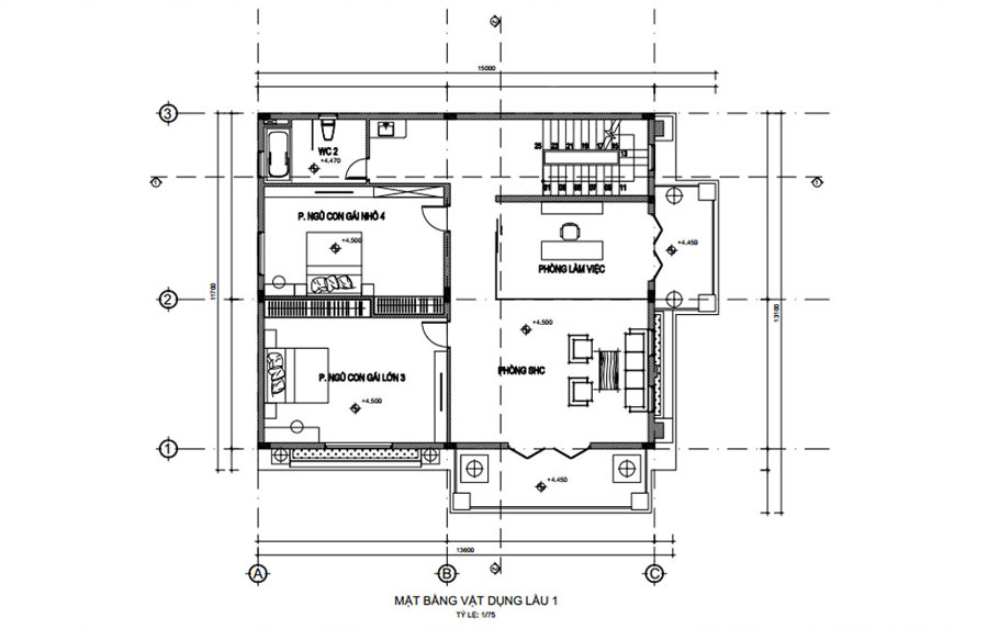
Mặt bằng biệt thự sân vườn 3 tầng tân cổ điển với công năng lầu 1 có 2 phòng ngủ dành cho 2 cô con gái, mỗi phòng đều được thiết kế nội thất gọn gàng, đáp ứng nhu cầu sử dụng và thư giãn thoải mái. Đối diện phòng ngủ là phòng sinh hoạt chung và phòng làm việc, cuối nhà là cầu thang thông tầng và phòng WC chung.

Mặt bằng lầu 2 mẫu biệt thự sân vườn 3 tầng tân cổ điển
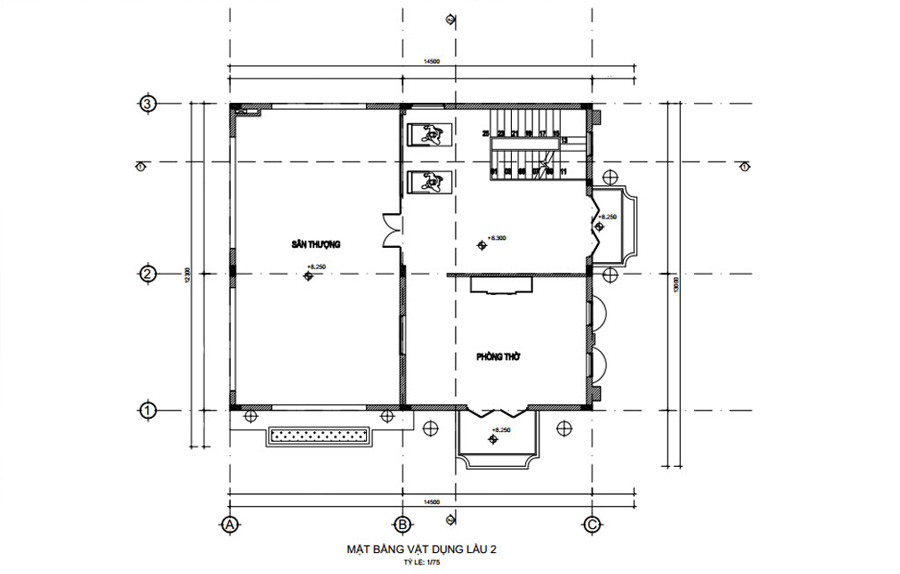
Bố trí công năng tầng 3 bao gồm 1 phòng sinh hoạt chung, 1 phòng ngủ và dành toàn bộ không gian còn lại cho khu vực thư giãn. Ngoài các phòng chức năng cơ bản, nơi đây tập trung chủ yếu cho việc nghỉ ngơi, vui chơi và các hoạt động để phục vụ cho nhu cầu thư giãn. Vậy nên ở tầng này, các vật dụng không chỉ được bố trí gọn gàng, khoa học và còn phải đảm bảo đẹp mắt với không gian mở, mang lại sự thông thoáng, thoải mái cho toàn bộ tầng lầu.
Mặt bằng biệt thự sân vườn 2 tầng 1 tum không gian mở
Sở hữu diện tích mặt tiền rộng rãi đến 10m, kiến trúc sư đã thỏa thích sáng tạo nên một mặt tiền hiện đại và gần gũi. Các đường nét kiến trúc cân đối, hài hòa cùng với vật liệu như đá tự nhiên, gạch, gỗ, kính, nhôm, sắt,.. tạo điểm nhấn thẩm mỹ cho mặt tiền biệt thự thêm phần ấn tượng. Hứa hẹn tạo nên một không gian sống thoáng mát và hoàn hảo nhất.
Công trình chú trọng đến không gian mở, ưu tiên sử dụng chất liệu kính cường lực trong suốt, bố trí xuyên suốt từ tầng trệt lên đến tầng tum, tạo nguồn sáng tự nhiên len lỏi vào bên trong nhà. Nhờ đó mà gia đình có thêm nhiều góc view đẹp để tận hưởng một cuộc sống trọn vẹn, nâng cao chất lượng sống.

Mặt bằng biệt thự sân vườn 2 tầng 1 tum thiết kế không gian mở cùng mảng cây xanh mát
Không gian sân vườn phía trước được tích hợp nhiều mảng cây xanh bát ngát từ sân trước trước cho đến phía bên hông và sau nhà. Cùng với đó, việc tích hợp thêm hồ cá và lối đi lát gạch khoa học giúp tăng thêm hiệu ứng thẩm mỹ cũng như giúp căn biệt thự thêm phần gần gũi với cảnh quan thiên nhiên.

Sân vườn cây xanh phía trước đặt sát phòng khách kết hợp cửa kính trong suốt tạo sự kết nối gần gũi và trong lành

Khu vực hồ cá và tiểu cảnh xanh cùng lối đi lát đá ngay bên hông nhà, kế bên là bàn ăn giúp gia đình có thể thư giãn và giải trí bên những bữa cơm gia đình

Sân vườn sau được đặt ghế ngồi thư giãn, một không gian tuyệt vời để giải trí
Nhìn tổng thể mặt bằng biệt thự sân vườn 2 tầng 1 tum, tất cả khu vực chức năng đều được kiến trúc sư thể hiện rõ ràng. Từ cổng tiến vào nhà là khu vực gara để xe và sân vườn với hệ thống tiểu cảnh xanh tươi mát. Tiến vào bên trong là nội thất phòng khách, đặt sát cửa chính và liên thông khu vực bếp + bàn ăn, giúp căn phòng thêm phần thoáng rộng và tiện nghi. Phòng ngủ ba mẹ đặt cuối nhà, sát bên là nhà vệ sinh chung, tạo điều kiện thuận lợi cho quá trình sử dụng và di chuyển.

Mặt bằng tầng trệt mẫu nhà biệt thự sân vườn 2 tầng 1 tum
Mặt bằng lầu 1 của ngôi nhà thiết kế với công năng bao gồm 3 phòng ngủ, 1 phòng ngủ master có nhà vệ sinh và phòng thay đồ tách biệt, diện tích sử dụng khá rộng, đáp ứng một nơi nghỉ ngơi và thư giãn thoải mái, 2 phòng ngủ còn lại dành cho cô con gái và phòng ngủ cho khách, kế bên là phòng vệ sinh chung.

Mặt bằng lầu 1 mẫu nhà biệt thự sân vườn 2 tầng 1 tum
Công năng tầng tum của mặt bằng biệt thự 2 tầng 1 tum được sử dụng mục đích tập thể thao và giải trí nên gia chủ thiết kế nội thất bên trong dành để tập gym, bên góc bố trí khu vực giặt. Sân thượng bố trí bàn trà thư giãn, tận dụng làm nơi trồng cây xanh, giảm stress sau những ngày làm việc mệt mỏi.

Mặt bằng tầng tum mẫu nhà biệt thự sân vườn 2 tầng 1 tum
Mặt bằng biệt thự sân vườn 2 tầng 170m2
Biệt thự sân vườn mang đến cho người nhìn cảm nhận về một không gian sống gần gũi và nét đẹp truyền thống. Nhờ vào khu đất rộng lớn cộng hưởng cùng kiến trúc hiện đại đã góp phần mang đến sự mới mẻ và nét đẹp riêng biệt cho ngôi nhà. Mái Thái giúp căn biệt thự thêm phần cao ráo và bề thế hơn. Ngoài ram kiến trúc mái Thái còn giúp điều hòa không khí bên trong nhà luôn được mát mẻ và dễ chịu.

Mẫu biệt thự 2 tầng thiết kế mang nét đẹp truyền thống kết hợp sự phá cách độc đáo của kiến trúc hiện đại
Tất cả mảng tường của căn nhà được ốp gạch thẻ màu nâu kết hợp hệ thống cửa kính khung nhôm màu đen đem lại không gian mở vô cùng thoáng mát khi có sân vườn. Đồng thời, với lối thiết kế này còn mang lại vẻ đẹp gần gũi, truyền thống và thân thuộc.

Khu vực sân vườn được đầu tư thiết kế rất tỉ mỉ và chi tiết
Khu vực sân vườn được gia chủ chú trọng đầu tư vào tính thẩm mỹ tổng thể cũng như không gian nghỉ ngơi, thư giãn cho gia đình. Nhìn từ trên xuống, có thể thấy tiểu cảnh cây xanh được bố trí từ cửa cổng cho đến khu vực bên trong nhà. Tích hợp cùng hồ cá và chòi nghỉ giúp không gian sinh hoạt của gia đình trở nên gần gũi với thiên nhiên, cây cảnh, tràn ngập năng lượng sống. Phương án thiết kế như một bản vẽ mặt bằng biệt thự nghỉ dưỡng lý tưởng dành cho không gian thư giãn tuyệt vời cho tất cả các thành viên trong gia đình.

Tổng thể mặt bằng biệt thự sân vườn 2 tầng mái thái thể hiện sự bề thế và gần gũi qua cách phân chia bố cục sân vườn cùng kiến trúc
Công năng tầng trệt của mặt bằng biệt thự sân vườn 2 tầng bao gồm: phòng khách đặt ở gần cửa chính ra vào giúp thành viên có thể ngắm nhìn cảnh quan sân vườn bên ngoài. Tiếp đến là nhà bếp và bàn ăn được thiết kế cùng một không gian nên gia tăng thêm sự ấm cúng. Phòng WC chung và phòng ngủ có nhà vệ sinh khép kín giúp thành viên lớn tuổi trong gia đình tiện lợi trong quá trình di chuyển.

Mặt bằng tầng trệt và lầu 1 biệt thự sân vườn 2 tầng 170m2
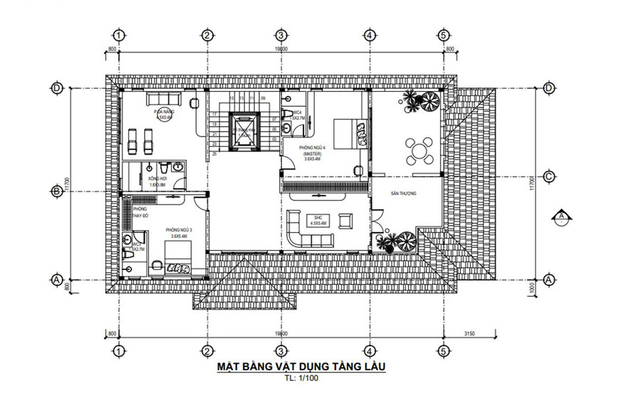
Mặt bằng lầu 1 gồm: 3 phòng ngủ, 1 phòng ngủ có nhà vệ sinh tách biệt, tất cả đều được thiết kế khoa học, đáp ứng công năng sử dụng tiện nghi và thuận tiện nhất. Nhà vệ sinh chung đặt kế bên phòng ngủ. Phòng thờ bố trí hướng ra trước mặt tiền, đảm bảo không gian thoáng đãng và lấy sáng tốt.
Bản vẽ mặt bằng biệt thự sân vườn 2 tầng mái thái
Mẫu biệt thự 2 tầng mái Thái kết hợp sân vườn đem đến cho người nhìn cảm nhận về một ngôi nhà kiên cố và bề thế. Điểm nhấn nổi bật của công trình chính là hệ mái Thái có độ dốc cao, khối giật cấp hình chữ A. Đây là thiết kế vừa đem đến tính thẩm mỹ cao, vừa giúp điều hòa không khí nội thất bên trong mát mẻ, cũng như thoát nước mưa hiệu quả, chống ẩm mốc.

Tổng thể công trình nhà biệt thự sân vườn mái thái thiết kế mang tính đồng điệu từ cửa cổng, tường rào cho đến mặt tiền kiến trúc
Nhìn tổng thể ngôi nhà, từ hệ thống tường rào, cửa cổng cho đến sân vườn, thiết kế mang tính đồng bộ với mặt tiền kiến trúc tạo sự đồng điệu, hài hòa từ bên ngoài cho đến nội thất bên trong. Hệ thống sân vườn tích hợp cùng nhiều mảng cây xanh, chòi nghỉ và hồ cá, giúp các thành viên trong gia đình có thể thư giãn và vui chơi thoải mái, tái tạo năng lượng sau một ngày làm việc vất vả.

Không gian sân vườn ngoài cây xanh, hoa lá còn tích hợp chòi nghỉ và hồ cá để thư giãn, giải trí cho cả gia đình

Khu vực sân vườn đối diện sử dụng làm khu vực gara để xe

Mặt bằng tổng thể biệt thự sân vườn 2 tầng mái thái được bố trí khoa học từ sân vườn cho đến kiến trúc, công năng bên trong
Công năng tầng trệt của mặt bằng biệt thự sân vườn 2 tầng mái thái được bố trí không gian thờ, phòng khách, phòng bếp và bàn ăn, phòng ngủ cho 2 cậu con trai lớn và nhỏ cùng nhà vệ sinh chung.

Mặt bằng tầng trệt biệt thự sân vườn 2 tầng mái thái
Mặt bằng lầu 1 của biệt thự nhà vườn 2 tầng gồm 2 phòng ngủ, tất cả đều có nhà vệ sinh tách biệt, đảm bảo không gian nghỉ ngơi thoải mái và riêng tư. Phòng WC kết hợp xông hơi và phòng đa năng đặt liền kề nhau, tiếp đến là phòng sinh hoạt chung hướng ra sân thượng trước nhà. Khu vực sân thượng được tận dụng bố trí bàn trà, trồng cây xanh và là không gian giải trí cho cả gia đình.

Mặt bằng lầu 1 biệt thự sân vườn 2 tầng mái thái
Mặt bằng biệt thự sân vườn 2 tầng có hồ bơi
Căn biệt thự 2 tầng khá vuông vắn, thiết kế tối giản các họa tiết, màu sắc trang nhã, đặc biệt là không gian mở kết nối với cảnh quan thiên nhiên bao quanh. Giúp gia đình cảm nhận được sự gần gũi, yên bình và trong lành.
Phong cách kiến trúc hiện đại mang đến cái nhìn khỏe khoắn, cá tính nhưng không hề đơn điệu nhờ vào hình khối cân đối, mảng kính lớn trong suốt, cộng hưởng thêm các vật liệu như gạch, gỗ ốp tường và lam sắt tăng thêm điểm nhấn ấn tượng và thu hút mọi ánh nhìn.

Biệt thự sân vườn 2 tầng thiết kế hướng đến không gian mở với mảng kính lớn

Ngôi nhà toát lên vẻ đẹp trang nhã và lịch lãm qua cách phối bố cục màu sắc trầm ấm
Hồ bơi được chọn đặt phía bên hông nhà, tránh lối đi chính vừa đáp ứng yếu tố phong thủy mà còn không ảnh hưởng đến lối di chuyển của gia đình. Bên cạnh đó, bố cục cây xanh được phân chia khoa học, cùng với công trình sử dụng mảng kính trong suốt có kích thước lớn, ngôi nhà được xem như là một công trình nghỉ dưỡng lý tưởng dành cho những ai yêu thích cuộc sống gần gũi và hiện đại.

Đơn giản và nhẹ nhàng nhưng căn nhà biệt thự sân vườn 2 tầng vẫn đáp ứng thị hiếu thẩm mỹ sang trọng

Nhìn từ trên xuống, bản vẽ mặt băng biệt thự sân vườn 2 tầng có hồ bơi thể hiện rõ từng khu vực chức năng giúp gia chủ hình dung thực tế công trình trong tương lai
Mặt bằng tổng thể biệt thự sân vườn 2 tầng có hồ bơi thể hiện rõ chi tiết từng khu vực chức năng từ sân vườn, tiểu cảnh cho đến bố trí mặt bằng công năng sử dụng của ngôi nhà. Nhìn vào bản vẽ chúng ta có thể thấy từ cửa cổng chính tiến vào trong là khu vực sân trước dùng để nơi đậu xe, bên tay trái là tiểu cảnh cây xanh với lối đi lát gạch, bên tay phải là không gian hồ bơi.

Bản vẽ mặt bằng tổng thể biệt thự sân vườn 2 tầng có hồ bơi
Công năng tầng trệt mặt bằng biệt thự sân vườn 2 tầng có hồ bơi thiết kế đầu tiên là không gian phòng khách rộng rãi, nội thất sang trọng thể hiện cá tính và gu thẩm mỹ của chủ nhà. Liên thông phòng khách là bàn ăn và khu vực bếp cùng cầu thang thông tầng. Phòng ngủ master bố trí phía đối diện, có tích hợp thêm phòng WC riêng, không chỉ đáp ứng công năng tiện nghi và đem đến một không gian nghỉ ngơi riêng tư cho chủ nhân căn phòng.

Bản vẽ mặt bằng tầng trệt biệt thự sân vườn 2 tầng có hồ bơi
Mặt bằng lầu 1 căn biệt thự bao gồm có 2 phòng ngủ, 1 phòng ngủ có thiết kế phòng WC riêng, phòng ngủ còn lại đặt sát bên phòng WC chung nên thuận tiện cho nhu cầu sử dụng và di chuyển. Phòng thờ được đặt vị trí trung tâm, sử dụng vách ngăn để đảm bảo không gian riêng tư và sự trang nghiêm. Kế bên là khu vực tập gym, giặt cùng lối ra sân phơi sau nhà.

Bản vẽ mặt bằng lầu 1 biệt thự sân vườn 2 tầng có hồ bơi
Mặt bằng biệt thự sân vườn 1 tầng kiểu Nhật
Phối cảnh ngôi nhà biệt thự hiện lên cực kỳ hút mắt với phía trước là khoảng sân vườn được trồng cây cảnh, bãi cỏ và tiểu cảnh khô theo kiểu Nhật Bản vô cùng mới lạ. Bốn mặt tiền của ngôi nhà đều tiếp xúc với cảnh quan thiên nhiên, khi xây dựng nhà lùi về phía sau để đảm bảo không gian phía trước rộng và thoáng cũng như tạo cảm giác an toàn.

Ngôi nhà sân vườn 1 tầng kiến trúc hiện đại cùng sân vườn thiết kế phong cách Nhật Bản
Từ hệ thống tường rào, cho đến cửa cổng chính, tiểu cảnh sân vườn, mọi chi tiết đều được chăm chút vô cùng tỉ mỉ. Kiến trúc sư thiết kế ngôi nhà mang đặc tính phóng khoáng và cởi mở, hướng theo phong cách Nhật Bản và kiến trúc hiện đại tạo nên sự mới mẻ và độc đáo cho công trình.
Mặt tiền nhà biệt thự sân vườn kiểu Nhật thiết kế theo kiểu đơn giản, nhẹ nhàng, không trang trí quá cầu kỳ trong từng đường nét nên đặc biệt chú ý đến không gian sống mở, gần gũi với thiên nhiên.

Không gian sân vườn ngôi nhà biệt thự thiết kế thể hiện phong cách Nhật Bản

Ngoài yếu tố mang đến một không gian mát mẻ, sân vườn kiểu Nhật đem đến thẩm mỹ cao trong tổng thể

Thiết kế chòi nghỉ vừa để ngồi thư giãn, vừa ngắm cảnh sân vườn bát ngát
Mặt bằng tổng thể biệt thự sân vườn 1 tầng kiểu Nhật chúng ta có thể hình rõ từng công năng được bố trí trên khu đất của mình. Công năng gồm 4 phòng ngủ, phòng khách, bếp + bàn ăn, phòng thờ, phòng WC chung.

Mặt bằng tổng thể biệt thự sân vườn 1 tầng kiểu Nhật
Mặt bằng biệt thự sân vườn 1 tầng 3 phòng ngủ
Sở hữu một diện tích đất xây dựng rộng là đặc trưng của những công trình nhà ở tại các vùng ngoại ô, và kiến trúc nhà đẹp này cũng vậy. Tuy nhiên, dù sở hữu quỹ đất lớn nhưng hầu hết gia chủ đã không chọn xây những căn biệt thự có diện tích rộng, tráng lệ mà dành 2/3 đất để làm sân vườn bao quanh.

Mặt tiền biệt thự sân vườn 1 tầng 3 phòng ngủ thiết kế khá đơn giản từ màu sắc cho đến vật liệu trang trí nhưng vẫn toát lên vẻ đẹp sang trọng
Kết hợp với kiến trúc theo kiểu mái Thái, căn nhà vừa toát lên vẻ đẹp gần gũi, thanh lịch vừa đáp ứng một không gian nghỉ ngơi thoải mái và yên bình, biệt thự thích hợp xây ở cả nông thôn và các vùng ngoại ô của thành phố.

Mái Thái màu xanh vừa tô điểm thêm nét đẹp, vừa giúp công trình thêm phần bề thế và bền vững
Căn biệt thự rộng rãi, đảm bảo sự tiện nghi lại vừa thoáng đãng và gần gũi thiên nhiên khiến nhiều người phải ao ước. Chủ đầu tư đã dành một khoản sân vườn rộng để trồng cây xanh, hoa lá, thiết kế chòi nghỉ và hồ cá để thư giãn và giải trí. Tất cả sự kết hợp, phân chia hoàn hảo đã giúp căn nhà trở nên đẹp mắt và tràn đầy năng lượng.

Ngoài yếu tố kiến trúc nhà và công năng sử dụng thì sân vườn cũng được gia chủ chú trọng đầu tư
Mặt bằng biệt thự sân vườn 1 tầng này bao gồm có 3 phòng ngủ, phòng khách, nhà bếp và bàn ăn, 2 phòng WC chung phía trong nhà và ngoài nhà.

Mặt bằng tổng thể biệt thự sân vườn 1 tầng 3 phòng ngủ
Mặt bằng biệt thự sân vườn mái bằng
Thiết kế biệt thự sân vườn mái bằng 3 tầng theo phong cách hiện đại sở hữu hình khối vuông vức và khỏe khoắn tạo nên một công trình bề thế và kiên cố. Màu trắng tinh khôi điểm xuyết cùng tone màu đen và màu ghi xám ở mặt tiền đem lại cảm giác trang nhã và ấn tượng cho người nhìn. Sự kết hợp màu sắc tương phản tuy đơn giản nhưng đem lại cái nhìn nổi bật và vẻ đẹp mới mẻ cho ngôi nhà.

Kiến trúc biệt thự mái bằng sử dụng vật liệu kính thay thế hoàn toàn cho bức tường thô cứng
Những vách kính lớn thay thế hoàn toàn cho bức tường thô cứng đem lại nhiều góc nhìn lý tưởng. Cửa kính thiết kế xuyên suốt từ tầng trệt cho đến tầng thượng giúp tạo sự kết nối với cảnh quan thiên nhiên cũng như lấy sáng hiệu quả và gia tăng hiệu ứng thẩm mỹ trong cái nhìn tổng thể.

Mặt tiền nhà mái bằng gây ấn tượng bởi hình khối vuông vức, đưa ra thụt vào độc đáo
Cây xanh bố trí khoa học phía trước ban công và sân vườn góp phần điều hòa không khí, đem lại không gian trong lành, thoáng mát cho không gian nội thất.

Mặt bằng biệt thự sân vườn mái bằng 3 tầng tích hợp nhiều công năng từ gara, hồ bơi cho đến mảng cây xanh
Mặt bằng công năng biệt thự sân vườn mái bằng với tầng trệt bố trí gara để xe, phòng khách và phòng bếp + bàn ăn liên thông với nhau, tạo sự kết nối liền mạch, đây là lối thiết kế được áp dụng hầu hết nhà ở hiện nay vừa đảm bảo yếu tố phong thủy và gắn kết các thông gian và tạo sự rộng rãi. Phía bên trong là phòng WC chung và 1 phòng ngủ có nhà vệ sinh riêng.

Mặt bằng tổng thể biệt thự sân vườn mái bằng 3 tầng
Lầu 1 thiết kế gồm có 2 phòng ngủ có nhà vệ sinh tách biệt, 1 phòng karaoke giải trí cho gia đình, sảnh thang tận dụng làm khu vực tập thể thao. Đặc biệt, ngôi nhà thiết kế thông tầng nên sẽ rất thông thoáng và mát mẻ.

Mặt bằng lầu 1 biệt thự sân vườn mái bằng 3 tầng
Tầng thượng được bố trí với 1 phòng ngủ master có diện tích rộng và nội thất sang trọng, thiết kế phòng thay đồ và phòng WC khép kín cùng lối ra ban công. Kế bên là phòng làm việc và khu vực sinh hoạt chung ngoài trời.

Mặt bằng tầng thượng biệt thự sân vườn mái bằng 3 tầng
Mặt bằng biệt thự sân vườn mái Nhật
Mẫu nhà biệt thự sân vườn mái Nhật 1 tầng này sử dụng phong cách tân cổ điển như là một sự kết hợp hoàn hảo giữa kiến trúc và sân vườn. Với quy mô không quá lớn nên việc sử dụng kiến trúc tân cổ điển tối giản các chi tiết trang trí hoa văn, phào chỉ, thay vào đó là những nét đẹp tinh tế vừa đủ thể hiện một công trình xa hoa, đẳng cấp và sang trọng, không quá nặng nề hay rườm rà.

Công trình biệt thự sân vườn mái Nhật 1 tầng theo phong cách tân cổ điển

Phối cảnh 3D nhà biệt thự sân vườn mái Nhật 1 tầng tân cổ điển thật lung linh và sinh động khi về đêm

Ngôi nhà 1 tầng tân cổ điển lượt bỏ đi những chi tiết hoa văn, phào chỉ rườm rà, thay vào đó sự tối giản vừa đủ để tạo điểm nhấn và sự xa hoa
Ngoài kiến trúc thì sân vườn cũng được gia chủ đầu tư không kém. Kiến trúc sư bố trí hòn non bộ với hồ cá và chòi nghỉ kết hợp cùng cây xanh và lối đi lát gạch màu xám, tạo nên một không gian thư giãn vô cùng trong lành và gần gũi với thiên nhiên và cây xanh. Một nơi để xua tan đi những mệt nhọc và stress sau giờ làm, học tập vất vả.

Một khu vực tiểu cảnh gồm chòi nghỉ, hồ cá và cây xanh, hứa hẹn mang đến không gian thư giãn tuyệt vời

Không gian sân vườn nhà biệt thự 1 tầng tân cồ điển còn tích hợp thêm hồ bơi

Nhìn từ trên xuống, chúng ta có thể thấy không gian xanh được thiết kế chỉn chu trong từng chi tiết
Mặt bằng biệt thự sân vườn mái Nhật bố trí gồm có 4 phòng ngủ, trong đó có 2 phòng ngủ có nhà vệ sinh riêng, phòng khách, phòng sinh hoạt chung, phòng thay đồ, phòng WC chung, khu vực tập gym, phòng bếp và bàn ăn.

Mặt bằng tổng thể biệt thự sân vườn mái Nhật tân cổ điển
Khó khăn khi thiết kế mặt bằng biệt thự sân vườn
Có nhiều khó khăn thường gặp khi thiết kế mặt bằng biệt thự sân vườn, đặc biệt khi chủ nhà cố gắng tận dụng tối đa diện tích mà không xem xét đầy đủ các yếu tố khi bố trí công năng. Một số vấn đề mà chủ đầu tư thường gặp bao gồm:
– Tính toán sai diện tích: Một vấn đề phổ biến hiện nay là chủ nhà chỉ tính diện tích của các phòng ốc mà họ muốn có, như phòng khách, phòng ngủ và phòng bếp, mà không tính đến diện tích thực tế. Do đó, dẫn đến việc bỏ lỡ các không gian cần thiết cho khoản giao thông, khu vực đi lại, ban công hoặc khu vực sân vườn làm cho căn biệt thự trở nên rối ren, không tiện lợi và thoải mái trong quá trình sử dụng.
– Bố trí không gian chức năng: Bố trí các phòng chức năng trong biệt thự đòi hỏi sự xem xét kỹ lưỡng để đảm bảo tính khoa học và sự tiện lợi trong việc sử dụng. Nhiều chủ nhà đặt các phòng theo cảm tính mà không xem xét vị trí thích hợp hay không, dẫn đến quá trình sinh hoạt không hiệu quả và không thoải mái.
– Tích hợp công năng hài hòa với kiến trúc: Thiết kế mặt bằng biệt thự sân vườn như thế nào để hài hòa với kiến trúc là một bài toán khó, đòi hỏi chuyên môn và kinh nghiệm thực tế. Chính vì thế, nếu bạn không có chuyên môn hay kinh nghiệm trong lĩnh vực này thì khó có thể thực hiện được.

Những khó khăn khi tiến hành thiết kế mặt bằng biệt thự sân vườn
Để giải quyết những khó khăn này, chủ đầu tư nên tìm kiếm một đơn vị thiết kế thi công kiến trúc – nội thất uy tín và chuyên nghiệp. Đơn vị sẽ hỗ trợ tư vấn và đưa ra những phương án, ý tưởng phù hợp với nhu cầu và mong muốn về không gian sống của riêng mình, vừa tiết kiệm thời gian, công sức, vừa có thể tối ưu chi phí đầu tư.
Tiêu chí chọn đơn vị thiết kế mặt bằng biệt thự chuyên nghiệp
Thiết kế mặt bằng biệt thự sân vườn là một trong những giai đoạn quan trọng quyết định đến sự thành công tổng thể của căn nhà. Do đó, việc lựa chọn đơn vị thiết kế chất lượng và uy tín cũng như có trình độ chuyên môn cao là điều vô cùng quan trọng. Dưới đây là một số tiêu chí giúp bạn lựa chọn được đơn vị thiết kế mặt bằng biệt thự chuyên nghiệp:
– Đội ngũ nhân viên chuyên nghiệp, tận tâm: Đầu tiên, hãy xem xét những đánh giá từ khách hàng trước đã sử dụng dịch vụ của đơn vị đó, xem nhận xét về trình độ chuyên môn, những dự án thực thi có chất lượng hay không. Ngoài ra, hãy liên hệ và làm việc với đơn vị xem thái độ như thế nào, có tôn trọng và thân thiện, tận tâm hay không trước khi lựa chọn.
– Hoạt động lâu năm và giàu kinh nghiệm: Thường những đơn vị được thành lập nhiều năm sẽ có trình độ chuyên môn cao trong việc bố trí mặt bằng biệt thự sân vườn cũng như dễ dàng nắm bắt ý, mong muốn của gia chủ, từ đó đưa ra phương án phù hợp với mong muốn của khách hàng.
– Chọn đơn vị xây nhà trọn gói: Việc lựa chọn đơn vị thiết kế thi công nhà trọn gói vừa tiết kiệm được chi phí, hầu hết các đơn vị đều miễn phí 100% gói thiết kế khi chọn xây nhà hoàn thiện, vừa có thể đáp ứng vấn đề ngôi nhà sau khi hoàn thành sẽ giống với bản vẽ 3D, tỷ lệ giống sẽ cao hơn so với đưa đơn vị khác thi công.

Tiêu chí lựa chọn đơn vị thiết kế thi công bản vẽ mặt bằng biệt thự sân vườn







