Xây nhà 1 trệt 1 lầu 500 triệu đang thu hút sự quan tâm lớn từ cả vùng nông thôn và thành thị. Đây không chỉ là lựa chọn phổ biến mà còn là một mô hình nhà ở đẹp với mức đầu tư phù hợp cho đa số gia đình Việt.
Với mức ngân sách 500 triệu, bạn có thể thực hiện nhiều phong cách thiết kế và diện tích xây dựng khác nhau. Bài viết này sẽ giới thiệu đến bạn các phương án thiết kế độc đáo và đẹp mắt để bạn có thêm ý tưởng cho dự án xây nhà trong tương lai. Chúng ta cùng nhau khám phá nhé!
Xây nhà 1 trệt 1 lầu 500 triệu có những đặc điểm gì?
Mẫu nhà 1 trệt 1 lầu thường xây dựng không quá tốn quá nhiều diện tích xây dựng, hoàn toàn phù hợp với những gia đình có khu đất hạn hẹp. Loại hình nhà ở này phù hợp với những khu đô thị đông đúc, nơi tập trung dân cư và có nhu cầu xây dựng lớn. Xây nhà 1 trệt 1 lầu 500 triệu thường có lối kiến trúc đơn giản, nhẹ nhàng, bố trú từ 3-4 phòng ngủ, đảm bảo công năng tiện nghi và thoải mái cho gia đình.

Diện tích xây dựng những căn nhà 1 trệt 1 lầu không quá lớn thường có diện tích xây dựng từ 60 đến 100 mét vuông tùy thuộc vào vị trí địa lý và kích thước lô đất. và quy mô nhưng được yêu thích bởi công trình có thể áp dụng được nhiều phong cách và vật liệu khác nhau, đem lại cho gia chủ một công trình cuốn hút, một không gian sống đẹp và tiện nghi.
Thiết kế: Phù hợp với phong cách hiện đại, đơn giản nhưng không kém phần tiện nghi và sang trọng. Thiết kế thông thoáng, tận dụng ánh sáng tự nhiên và không gian mở.
Cấu trúc: Bố trí hợp lý giữa không gian sống và không gian ngủ, bao gồm ít nhất 2 phòng ngủ và các khu vực chung như phòng khách, bếp, phòng ăn.
Vật liệu xây dựng: Sử dụng vật liệu xây dựng phổ biến và có giá cả phải chăng như gạch, xi măng, thép, và vật liệu lợp mái như tôn hoặc ngói.
Tiện ích: Đáp ứng đầy đủ các tiện ích cần thiết như hệ thống điện nước, vệ sinh, sân vườn, và không gian để để xe.
Mức độ hoàn thiện: Tùy thuộc vào ngân sách và sở thích cá nhân, nhà 1 trệt 1 lầu 500 triệu có thể được hoàn thiện từ cơ bản đến cao cấp với các trang thiết bị nội thất và tiện ích khác nhau.
Những đặc điểm này cùng nhau tạo nên một ngôi nhà ấm cúng, hiện đại và phù hợp với nhu cầu của đa số gia đình Việt.
Xây nhà 1 trệt 1 lầu 500 triệu thường sẽ hướng đến một công trình kiến trúc tối giản, nhẹ nhàng, hạn chế tối đa các chi tiết trang trí rườm rà để tối ưu được chi phí. Thay vào đó, kiến trúc mặt tiền sẽ được làm nổi bật lên bằng cách phối màu sắc kết hợp cùng hình khối, vật liệu cùng mảng xanh để giúp cho ngôi nhà tránh sự đơn điệu, nhàm chán thay vào đó là sự mới mẻ, cách tân và đẹp mắt.
Có nên xây nhà 1 trệt 1 lầu 500 triệu hay không ?
Xây nhà 1 trệt 1 lầu phù hợp với diện tích nhỏ, tại các khu vực thành phố lớn có mật độ dân số đông đúc, cùng với giá bất động sản cao thì việc sở hữu khu đất rộng lớn là điều hết sức khó khăn. Chính vì thế, phương án xây nhà 1 trệt 1 lầu 500 triệu được xem là giải pháp tối ưu và là sự lựa chọn hoàn hảo nhất cho gia đình bạn.
Việc xây nhà 1 trệt 1 lầu với ngân sách 500 triệu là một quyết định phụ thuộc vào nhiều yếu tố khác nhau. Dưới đây là một số điều bạn có thể cân nhắc:
Nhu cầu và Ưu tiên: Xác định rõ nhu cầu cũng như ưu tiên của gia đình. Nhà 1 trệt 1 lầu có thể phù hợp với những gia đình muốn tận dụng diện tích đất tối ưu và cần không gian sống và ngủ riêng biệt.
Đặc điểm vị trí: Khả năng tận dụng được diện tích đất và quy định của khu vực về kiến trúc và xây dựng cũng cần được xem xét.
Ngân sách và Chi phí dự kiến: 500 triệu có đủ để hoàn thành một ngôi nhà 1 trệt 1 lầu với mức độ hoàn thiện mà bạn mong muốn không? Cân nhắc kỹ lưỡng về chi phí xây dựng, vật liệu và trang thiết bị nội thất.
Dự định sử dụng: Đánh giá mục đích sử dụng của ngôi nhà, liệu có phù hợp với kế hoạch sống lâu dài hay không.
Tính linh hoạt: Có khả năng mở rộng hoặc sửa đổi ngôi nhà trong tương lai không, nếu có nhu cầu.
Cuối cùng, quyết định xây nhà 1 trệt 1 lầu 500 triệu hay không còn phụ thuộc vào tình hình tài chính cũng như nhu cầu và ưu tiên của bạn. Đảm bảo bạn đã tìm hiểu kỹ lưỡng và thảo luận cùng các chuyên gia trước khi đưa ra quyết định cuối cùng.

Việc thiết kế thi công nhà 1 tầng 1 trệt 500 triệu giúp tiết kiệm được nhiều thời gian, do đặc điểm công trình khá đơn giản từ kiến trúc cho đến nội thất, vì thế mà tiến độ thi công khá nhanh chóng. Với những chủ đầu tư mong muốn sở hữu một không gian tiết kiệm, tiến độ thi công nhanh thì mẫu nhà đẹp này rất phù hợp.
Xây nhà 1 trệt 1 lầu 500 triệu thích ứng với sự biến động về giá cả trên thị trường, các nguyên vật liệu xây dựng khá đa dạng từ đơn vị sản xuất cho đến giá cả nên chi phí 500 triệu để kiến tạo nên một không gian sống đẹp, tiện nghi là phù hợp.

Phương án thiết kế nhà 1 trệt 1 lầu đẹp đa dạng về phong cách thiết kế, thay vì một không gian chật hẹp, khô cứng của bốn bức tường thì bạn có thể thiết kế sử dụng vách kính cường lực, cửa kính trong suốt tích hợp không gian xanh, ban công để giúp gia tăng sự thông thoáng, mát mẻ và rộng rãi cho công trình. Đây được xem là giải pháp và là xu hướng tối ưu tốt nhất cho những ngôi nhà có diện tích nhỏ.
Phù hợp xu hướng thiết kế nhà ở hiện đại, ngày nay các phong cách thiết kế ngày càng đa dạng và phong phú với các loại hình và mẫu nhà đẹp khác nhau. Từ xu hướng thiết kế truyền thống, gần gũi với cảnh quan thiên nhiên cho đến những không gian sống thời thượng và cao cấp.
Bên cạnh đó, phương án xây nhà 1 trệt 1 lầu 500 triệu được đảm bảo công năng sử dụng đầy đủ, nội thất bố trí tiện nghi và thông thoáng, đảm bảo nhu cầu sinh hoạt cho tất cả các thành viên trong gia đình. Chính vì vậy mà mẫu nhà 1 trệt 1 lầu được xem là phương án lựa chọn mà bạn không nên bỏ qua.
Những lưu ý khi thiết kế thi công nhà 1 trệt 1 lầu 500 triệu
Để xây nhà 1 trệt 1 lầu 500 triệu hoàn hảo và khoa học nhất. Các bạn nên lưu ý một số vấn đề sau khi tiến hành thiết kế và thi công nhà 1 trệt 1 lầu nhé.
Lập kế hoạch thiết kế thi công nhà chi tiết
Trước khi tiến hành vào việc thiết kế và thi công nhà ở của gia đình mình, bạn cần lập một kế hoạch chi tiết và cụ thể. Xác định rõ nhu cầu và mục đích sử dụng của từng thành viên trong gia đình, từ đó đưa ra phương án bố trí mặt bằng công năng, phương án phối cảnh 3D.

Bên cạnh đó, bạn cần xác định cụ thể ngân sách đầu tư cho ngôi nhà là bao nhiêu. Tham khảo nhiều đơn vị, giá cả trên thị trường theo dự án tương tự và người có chuyên môn thiết kế xây nhà 1 trệt 1 lầu 500 triệu.
Thực tế cho ta thấy công trình nhà 1 trệt 1 lầu 500 triệu có quy mô không quá lớn hay phức tạp, vì thế mà bạn không cần phải chọn nhà thầu lớn. Nhưng trong quá trình thiết kế và thi công bạn cần xem xét và kiểm soát chặt chẽ quá trình để công trình chất lượng, an toàn và sử dụng đúng nguyên vật liệu.
Công năng sử dụng khoa học
Trên thực tế, xây nhà 1 trệt 1 lầu 500 triệu này khá hạn chế về diện tích sử dụng và không tận dụng được tối đa diện tích chiều cao. Vì vậy, công năng sử dụng của căn nhà cần phải được phân chia và bố trí một cách khoa học và chi tiết nhất.
Mặt bằng công năng tầng trệt

Đa số, xây nhà 1 trệt 1 lầu được bố trí không gian sinh hoạt chung cho cả gia đình. Thường sẽ là khu vực gara ô tô, phòng khách, phòng bếp + ăn, phòng vệ sinh chung. Bạn có thể bố trí 1 phòng ngủ nhỏ, tiện nghi nếu như gia đình có người nhà để thuận tiện cho việc đi lại.
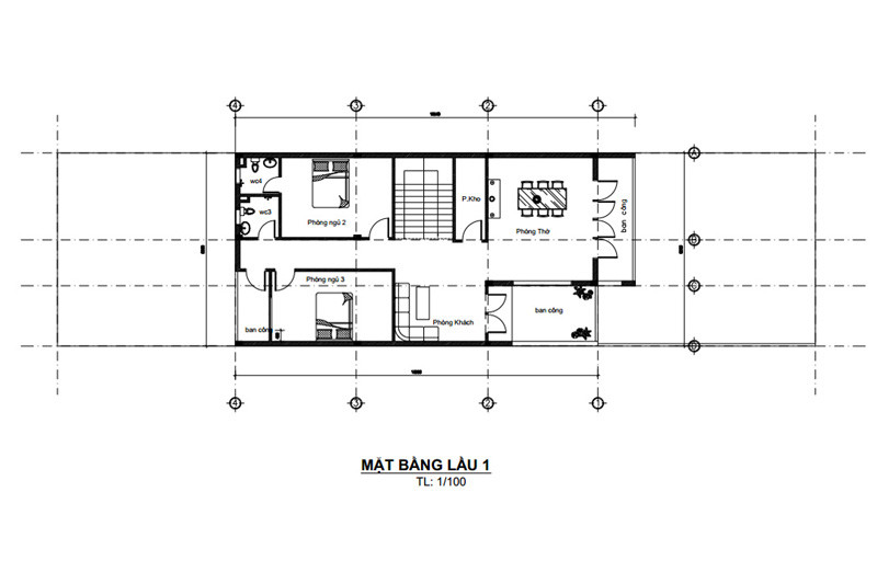
Mặt bằng công năng lầu 1

Công năng lầu 1 nên tận dụng bố trí 2 phòng ngủ, 1 phòng thờ, phòng sinh hoạt chung nếu như đủ diện tích. Phòng ngủ nên thiết kế ô cửa sổ kính, cửa thông gió, bố trí khoa học và thông thoáng để không gian thoáng đãng, tránh sự ngột ngạt.
Xem xét về yếu tố phong thủy
Đối với bất kỳ công trình xây dựng nào, việc xem xét về yếu tố phong thủy cần được chú trọng và quan tâm đặc biệt đến. Nó không chỉ đơn thuần là tâm linh hay tín ngưỡng, yếu tố phong thủy còn được xem là một môn khoa học giúp đảm bảo không gian sống được tối ưu về tinh thần và sức khỏe con người.
Do đó, việc lựa chọn hướng nhà, bố trí công năng cần đảm bảo tuân theo quy luật của phong thủy. Một ngôi nhà chuẩn phong thủy cần phải đảm bảo các yếu tố về địa thế khu đất, hướng nhà, ánh sáng, đối lưu không khí, hợp mệnh gia chủ,…
Cách tính chi phí xây nhà 1 trệt 1 lầu 500 triệu
Tổng chi phí xây nhà 1 trệt 1 lầu 500 triệu bằng tổng diện tích xây nhà 1 trệt 1 lầu nhân với đơn giá xây dựng.
Trong đó:
Tổng diện tích xây nhà 1 trệt 1 lầu khoảng 50m2 = diện tích móng + trệt + diện tích sàn + diện tích mái.
Tính toán chi phí cơ bản: 50% diện tích xây dựng = 50% x 50m2 = 25m2
Kiến trúc mái tùy theo hệ mái mà gia chủ lựa chọn như sau:
Hệ mái bằng: 70% diện tích sàn = 70% x 50m2 = 35m2
Hệ mái thái: 50% diện tích sàn = 50% x 50m2 = 25m2
Hệ mái tôn: 30% diện tích sàn = 30% x 50m2 = 15m2

Đơn giá sẽ tùy thuộc vào dịch vụ xây dựng mà chủ đầu tư lựa chọn cho ngôi nhà của gia chủ. Nhưng hiện tại dịch vụ xây dựng trên thị trường hiện nay nhận xây nhà 1 trệt 1 lầu có 2 hình thức:
Hình thức 1: Xây nhà trọn gói hay còn gọi là hình thức chìa khóa trao tay. Hình thức này gần đây được nhiều gia chủ đón nhận và trở nên phổ biến vì nó phù hợp cho những gia chủ không có nhiều thời gian giám sát công trình xây dựng. Thường giá thành của dịch vụ này khá cao và chia thành nhiều gói vật tư hoàn thiện khác nhau để gia chủ có thể lựa chọn phù hợp:
Gói vật liệu tiết kiệm: 5.000.000đ/m2
Gói vật liệu cơ bản: 5.500.000đ/m2
Gói vật liệu thông dụng: 6.000.000đ/m2
Hình thức 2: Đó chính là thuê nhân công để thi công xây dựng nhà. Đối với hình thức này, đơn vị nhà thầu chỉ cung cấp nhân công theo hình thức khoán, chủ đầu tư chịu trách nhiệm phần việc khác, vì thế mà chi phí cho hình thức này rẻ hơn.
Gợi ý các mẫu xây nhà 1 trệt 1 lầu 500 triệu đẹp sang trọng
Dưới đây sẽ là một số gợi ý mẫu xây nhà 1 trệt 1 lầu 500 triệu đơn giản đẹp tiết kiệm chi phí xây dựng. Hy vọng những phương án thiết kế này sẽ mang đến cho bạn những ý tưởng thiết kế mới và độc đáo trong tương lai.
Mẫu xây nhà 1 trệt 1 lầu tân cổ điển
Mẫu xây nhà 1 trệt 1 lầu đẹp với ngoại thất thiết kế sang trọng và cuốn hút. Mặt tiền tầng trệt được ốp đá tự nhiên có vân mây đẹp mắt. Kết hợp cùng với hệ thống mái thái giật cấp, các mảng hình khối vuông, khối vòm cùng hệ trụ cột tròn kiên cố mang đến một vẻ đẹp bề thế và vững chãi cho công trình. Nhìn tổng thể, căn biệt thự 2 tầng đẹp cuốn hút bởi tone màu sắc phối nhẹ nhàng, từ màu trắng chủ đạo cho đến gam màu nâu của gỗ, màu kem của đá, tất cả hòa quyện tạo nên một công trình vô cùng ấn tượng.
Dưới đây là một gợi ý về mẫu thiết kế nhà 1 trệt 1 lầu mang phong cách tân cổ điển:
**Bên ngoài:**
1. *Kiến trúc tân cổ điển:* Sử dụng các chi tiết kiến trúc cổ điển như cột, góc cạnh, và nền móng để tạo ra vẻ đẹp sang trọng và lịch lãm.
2. *Màu sắc:* Lựa chọn màu sắc truyền thống như trắng, kem, hoặc màu ghi để tạo ra sự tinh tế và đẳng cấp.
3. *Trang trí:* Sử dụng các chi tiết trang trí như cầu thang cổ điển, lan can, và cửa sổ lớn với khung gỗ hoặc sắt để tạo điểm nhấn cho ngôi nhà.
**Bên trong:**
1. *Nội thất:* Lựa chọn nội thất có kiểu dáng cổ điển với các đường nét cong và các chi tiết trang trí tinh tế.
2. *Vật liệu:* Sử dụng vật liệu cao cấp như gỗ tự nhiên, đá, và đồng để tạo ra sự sang trọng và độ bền cho không gian bên trong.
3. *Kết cấu:* Tận dụng ánh sáng tự nhiên và không gian mở để tạo ra cảm giác thoải mái và rộng rãi cho các phòng trong nhà.
**Tiện ích:**
1. *Tiện nghi:* Đảm bảo các tiện ích cần thiết như hệ thống điện nước, vệ sinh, và hệ thống thông gió đều được tích hợp một cách thông minh và tiện lợi.
2. *Sân vườn:* Thiết kế sân vườn hoặc ban công rộng rãi để tạo không gian xanh và thoáng đãng cho gia đình.
Với phong cách này, bạn có thể tạo ra một ngôi nhà ấm cúng và sang trọng, kết hợp giữa vẻ đẹp của kiến trúc cổ điển và tiện nghi của thiết kế hiện đại.

Mẫu nhà 1 lầu 1 trệt mái thái
Mẫu nhà đẹp này nổi bật với kiến trúc hiện đại và nhẹ nhàng. Ngôi nhà mái thái tuy cùng chung kiểu dáng nhưng thiết kế mỗi nhà sẽ có một phong cách riêng vừa thể hiện sự cá tính của gia chủ vừa mang đến sự mới mẻ cho hệ mái. Việc ứng dụng dụng hệ mái thái với độ dốc cao sẽ giúp thoát nước nhanh chóng cũng như chống thấm và có độ bền lâu dài.
Những mẫu nhà 1 lầu 1 trệt mái Thái đang trở thành sự lựa chọn phổ biến với nhiều gia đình. Với kiểu dáng độc đáo và phá cách, những ngôi nhà này không chỉ tạo điểm nhấn cho bất kỳ khu đô thị nào mà còn mang lại không gian sống thoải mái và tiện nghi.
**Thiết kế độc đáo và hấp dẫn:**
– Kiểu mái Thái mang đậm nét văn hóa truyền thống, tạo điểm nhấn cho ngôi nhà.
– Sự kết hợp giữa lối kiến trúc truyền thống và hiện đại tạo ra không gian sống độc đáo và phong cách.
**Tiện ích và thoải mái:**
– Với kiến trúc mở rộng, những ngôi nhà này tận dụng ánh sáng tự nhiên và không gian mở để tạo cảm giác thoải mái và sảng khoái.
– Thiết kế thông minh giúp tối ưu hóa không gian sử dụng, đáp ứng đầy đủ các nhu cầu của gia đình.
**Phù hợp với mọi nhu cầu:**
– Phù hợp với mọi gia đình, từ gia đình nhỏ đến gia đình đông người.
– Đa dạng về diện tích và thiết kế để phù hợp với mọi nhu cầu và ngân sách.
Với những ưu điểm vượt trội này, mẫu nhà 1 lầu 1 trệt mái Thái không chỉ là nơi lý tưởng để sinh sống mà còn là điểm nhấn độc đáo cho bất kỳ không gian nào.

Kiến trúc mẫu xây nhà 1 trệt 1 lầu 500 triệu này hướng đến sự tối giản trong từng chi tiết trang trí. Từ việc chọn vật liệu cho đến màu sắc phối đều được kiến trúc sư tiết chế rất nhiều, gam màu trắng chủ đạo nhấn cùng tone màu xám, màu nâu của cửa gỗ cùng hệ thống cây xanh ban công giúp cân bằng trong tổng thể.
Mẫu nhà 1 trệt 1 lầu 500 triệu kiểu chữ L
Tiếp theo là mẫu nhà 1 trệt 1 lầu chữ L độc đáo. Ngôi nhà đem lại cảm giác ấm áp, gần gũi hơn cho không gian sống khi sử dụng gam màu trắng và vàng làm chủ đạo. Hệ thống cửa kính khung nhôm xingfa màu đen hiện đại được bố trí khoa học, đáp ứng về cả công năng sử dụng lẫn tính thẩm mỹ chung cho ngôi nhà. Trong đó vừa đảm bảo lưu thông khí mát mẻ, vừa lấy sáng tự nhiên hiệu quả còn đón tài lộc và may mắn cho gia đình.

Mẫu nhà 1 trệt 1 lầu 500 triệu mái bằng
Mẫu thiết kế biệt thự mang phong cách hiện đại, trẻ trung và mới mẻ được nhiều gia đình yêu thích và lựa chọn chính là mẫu xây nhà 1 trệt 1 lầu 500 triệu mái bằng. Khi ngắm nhìn tổng thể ngôi nhà mái bằng này, ấn tượng đầu tiên đó chính là sự chắc chắn và vuông vức. Công trình thiết kế gọn gàng, đơn giản sẽ là sự lựa chọn tốt nhất cho căn nhà 500 triệu.
Kiến trúc mặt tiền thiết kế mở ra không gian rộng và thoáng. Ban công lầu 1 được thiết kế hệ đua ra rộng kết hợp lan can kính và bồn cây xanh mang đến không gian sống trong lành, mát mẻ cho gia đình.

Mẫu xây nhà 1 trệt 1 lầu 500 triệu có 3 phòng ngủ
Mẫu nhà 1 trệt 1 lầu này có hình khối kiến trúc đẹp, tinh tế, công năng được bố trí khoa học, chuẩn phong thủy. Với công năng sử dụng 3 phòng ngủ phù hợp với nhu cầu sử dụng của gia đình từ 3-5 thành viên cùng sinh sống. Thiết kế ngoại thất rất đơn giản, các mảng khối hình vuông kết hợp với những vật liệu hiện đại cho ngôi nhà, từ đá tự nhiên, gỗ nhựa ngoài trời cho đến khung cửa nhôm xingfa, lan can kính ban công,… tất cả đều được tạo nên vẻ đẹp thẩm mỹ và tính tiện dụng cho ngôi nhà.

Mẫu xây nhà 1 trệt 1 lầu có 4 phòng ngủ
Xây nhà 1 trệt 1 lầu với 4 phòng ngủ sẽ là lựa chọn hoàn hảo cho gia đình của bạn. Với 4 phòng ngủ, sẽ có 1 phòng ngủ master và 3 phòng ngủ chung. Các bố trí và phân chia từng công năng theo nhu cầu sử dụng sao cho khoa học, vừa đáp ứng không gian nghỉ ngơi hiệu quả, vừa là nơi làm việc và học tập tốt nhất.

Kiến trúc nhà phố 2 tầng 4 phòng ngủ được thiết kế hiện đại với hệ mái bằng, gam màu trắng tươi sáng tạo dáng vẻ tinh tế. Hệ thống cửa khung nhôm kính cường lực, kết hợp không gian sân trước thiết kế rộng và thoáng tạo điều kiện cho sự thông thoáng và mát mẻ cho nội thất bên trong công trình.
Mẫu xây nhà 1 trệt 1 lầu có sân vườn
Phương án thiết kế xây nhà 1 trệt 1 lầu 500 triệu có sân vườn rất lý tưởng cho những gia đình có diện tích đất xây dựng rộng rãi. Thiết kế sân vườn với tiểu cảnh xanh kết hợp bàn trà để gia chủ có thể thư giãn và ngồi giải trí. Với những căn nhà gần gũi với thiên nhiên, luôn mang đến cho gia chủ một cuộc sống trong lành và yên bình.

Mẫu nhà không quá phô trương như những công trình lớn khác, căn nhà 1 trệt 1 lầu đơn giản này vẫn được rất nhiều cặp vợ chồng mong ước. Ngôi nhà có sân trước, sân sau rộng rãi làm tiểu cảnh cây xanh lý tưởng cho gia đình để hướng đến một không gian sống ngập tràn thiên nhiên gió trời và ánh nắng.
Trên đây là những mẫu xây nhà 1 trệt 1 lầu 500 triệu đẹp, hiện đại được săn đón nhiều nhất hiện nay. Hy vọng qua bài viết bạn sẽ lựa chọn được một mẫu nhà đẹp ưng ý.







