Nhờ vào sự sáng tạo và hướng không ngừng của kiến trúc sư, các mẫu nhà 1 trệt 1 lầu 7×15m đã được phát triển có sự đặc biệt phù hợp với sở thích và nhu cầu của từng chủ đầu tư. Có thể từ giản dị, tối giản cho đến cầu kỳ sang trọng, cá tính và độc đáo, ngôi nhà mơ ước của bạn có thể đã nằm trong ý tưởng của bạn. Hãy khám phá những mẫu nhà 1 trệt 1 lầu 7×15m đang là xu hướng phổ biến nhất hiện nay qua sự hướng dẫn của LG TECH. Điều này sẽ giúp bạn có cái nhìn rõ nét hơn về công trình trong tương lai.
Vì sao mẫu nhà 1 trệt 1 lầu 7×15m lại được xây nhiều?
Nhà 1 trệt 1 lầu 7x15m là một trong những mẫu nhà đẹp được ưa chuộng và quan tâm nhiều nhất hiện nay, đặc biệt là ở khu vực thành thị. Có nhiều lý do khiến mẫu nhà này được nhiều người lựa chọn, có thể kể đến như:
Diện tích phù hợp với nhiều gia đình
Diện tích 7x15m là một diện tích xây dựng khá phổ biến tại các khu đô thị, loại hình này phù hợp với nhiều gia đình từ 3-5 thành viên. Tầng trệt có thể được bố trí phòng khách, phòng bếp, phòng ăn, phòng ngủ, nhà vệ sinh chung. Lầu 1 có thể bố trí phòng ngủ, phòng sinh hoạt chung, phòng thờ, sân phơi,… tùy theo nhu cầu và mong muốn của gia đình mà sẽ có phương án bố trí phù hợp.

Diện tích xây dựng phù hợp với nhu cầu sử dụng của nhiều gia đình hiện nay
Kiểu dáng hiện đại, sang trọng
Mẫu nhà 1 trệt 1 lầu 7x15m có thể được thiết kế theo nhiều phong cách khác nhau, từ hiện đại cho đến tân cổ điển. Tuy nhiên, những mẫu nhà phố đẹp này được ưa chuộng nhất thường có lối thiết kế hiện đại, tối giản và sang trọng. Với phong cách này, ngôi nhà sẽ mang đến cảm giác rộng rãi, thoáng mát và tiện nghi hơn rất nhiều.

Nhà 1 trệt 1 lầu 7x15m hướng đến kiến trúc hiện đại, sang trọng
Chi phí xây dựng hợp lý
Chi phí xây dựng mẫu nhà 1 trệt 1 lầu 7×15m sẽ phụ thuộc vào nhiều yếu tố như chất lượng vật liệu, đơn vị thi công, vị trí, thời điểm xây dựng… Tuy nhiên, nhìn chung, chi phí xây dựng mẫu nhà này khá hợp lý, phù hợp với túi tiền của nhiều gia đình.

Mẫu nhà 1 trệt 1 lầu 7×15m có chi phí đầu tư hợp lý, không quá cao so với tình hình kinh tế của đại đa số các gia đình hiện nay
Gần gũi thiên nhiên cảnh quan
Mẫu nhà 1 trệt 1 lầu 7x15m có đầy đủ các phòng chức năng cần thiết, đáp ứng nhu cầu sinh hoạt của các thành viên trong gia đình. Ngoài ra, mẫu nhà này cũng có thể được thiết kế thêm sân vườn, tiểu cảnh để tạo không gian xanh mát, thư giãn cho gia đình.

Những ngôi nhà 1 trệt 1 lầu 7×15m thường sẽ tích hợp nhiều mảng cây xanh
Bản vẽ bố trí mặt bằng mẫu nhà 1 trệt 1 lầu 7×15m tiện nghi
Trước khi tìm hiểu phối cảnh mẫu nhà 1 trệt 1 lầu 7×15m đẹp thì gia chủ cần tham khảo phương án bố trí mặt bằng công năng chi tiết để nắm được các phòng chức năng của gia đình mình.
Bản vẽ bố trí mặt bằng tầng trệt
Khi thiết kế mẫu nhà 1 trệt 1 lầu 7×15m, mặt bằng tầng trệt gia chủ sẽ bố trí các không gian sinh hoạt chung cho gia đình như không gian phòng khách, phòng bếp + ăn, phòng WC chung. Bên cạnh đó, có thể bố trí thêm phòng ngủ cho ông bà nếu như gia đình có người lớn để nhằm đảm bảo cho quá trình di chuyển và sử dụng thuận lợi.

Bản vẽ mặt bằng bố trí công năng tầng trệt nhà 1 trệt 1 lầu 7x15m
Hầu hết, phòng khách sẽ được đặt vị trí sát với cửa chính, nhằm tối ưu diện tích cũng như tận dụng lấy sáng hiệu quả cho ngôi nhà. Liền kề phòng khách là khu vực bếp + bàn ăn, tạo sự kết nối chặt chẽ giữa không gian cũng như tối ưu diện tích hiệu quả. Phòng WC có thể đặt cuối nhà, đặt ở sát hoặc dưới cầu thang thông tầng để tiết kiệm diện tích sử dụng cho các không gian chức năng chính.
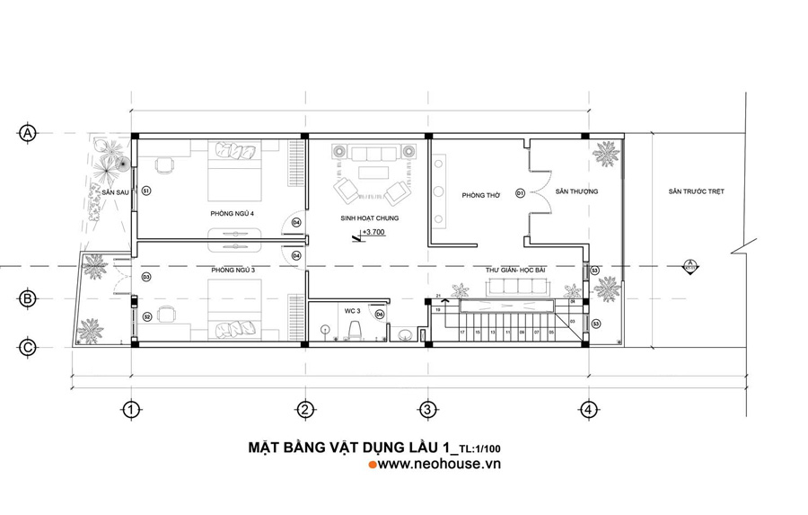
Bản vẽ mặt bằng bố trí lầu 1
Mặt bằng lầu 1 là các không gian sinh hoạt riêng tư cho các thành viên trong gia đình nên việc bố trí công năng cần đảm bảo sự thoải mái và khép kín. Ngoài việc bố trí các phòng ngủ cho từ thành viên, gia chủ có thể bố trí thêm phòng thờ, phòng sinh hoạt chung, sân thượng,… tùy vào nhu cầu của mỗi gia đình mà sẽ có phương án bố trí phù hợp.

Bản vẽ mặt bằng công năng lầu 1 nhà 1 trệt 1 lầu 7x15m
Thông thường, mẫu nhà 1 trệt 1 lầu 7×15m với công năng lầu 1 sẽ có 2 phòng ngủ, 1 phòng cho vợ chồng chủ đầu tư có diện tích lớn, tích hợp cùng phòng vệ sinh, phòng thay đồ riêng. Tiếp theo là 1 phòng ngủ dành cho con cái, thiết kế và trang trí theo đúng lứa tuổi của con.
Top những mẫu nhà 1 trệt 1 lầu 7×15m đẹp được ưa chuộng nhất
Nếu bạn vẫn đang tìm kiếm cho riêng mình một mẫu nhà 1 trệt 1 lầu 7×15m đẹp và sang trọng thì hãy tham khảo ngay top các phương án thiết kế nhà 2 tầng 7×15m ấn tượng và xu hướng của thời đại trong nội dung dưới đây.
Mẫu nhà 1 trệt 1 lầu 7×15m mái Thái
Với kiểu dáng mái Thái kiến cố, đa dạng về màu sắc cùng hình chữ A có độ dốc hợp lý giúp thoát nước nhanh chóng về mùa mưa và điều hòa không khí mát mẻ vào mùa hè, lại còn gia tăng tính thẩm mỹ và giúp công trình thêm phần cao ráo, mẫu nhà 1 trệt 1 lầu 7×15m theo phong cách hiện đại đã và đang trở thành một trong những xu hướng xây dựng mới được nhiều gia đình lựa chọn.

Mẫu nhà mái Thái 1 trệt 1 lầu diện tích 7x15m ghi điểm với vẻ đẹp cách tân mới mẻ giữa hiện đại và truyền thống

Mẫu nhà 1 trệt 1 lầu 7×15m sở hữu tone màu sơn trang nhã và thanh lịch

Phần mái Thái thiết kế cao ráo, giật cấp kết hợp những phào chỉ tối giản đem đến một công trình sang trọng và bắt mắt
Mẫu nhà 1 trệt 1 lầu 7×15m mái bằng
Những mẫu nhà 1 tr 7×15m với mái bằng có thể mang đến một không gian sống hiện đại, tiện nghi và tràn đầy sức sống cho gia đình. Sự sử dụng của các mảng hình khối đơn giản giúp tạo ra một kiến trúc độc đáo mà không cần quá nhiều họa tiết trang trí phức tạp. Việc sắp đặt các mảng khối trong nhà được thực hiện một cách hài hòa, tạo nên một không gian sống mở và thông thoáng. Với diện tích 7×15m, những căn nhà này có thể được chia thành các phòng chức năng như phòng khách, phòng ngủ, nhà bếp và phòng tắm. Sự kết hợp giữa các mảng khối và màu sắc tươi sáng tạo ra một không gian sống rộng rãi và thoải mái. Một điểm đặc biệt của những mẫu nhà này là sự kết hợp với vườn cây xanh rợp trước ban công. Việc có một không gian xanh tươi mát trước nhà không chỉ tạo cảm giác dễ chịu mà còn đem lại cảm giác gần gũi với thiên nhiên. Vườn cây xanh cũng giúp làm dịu đi ánh nắng mặt trời và là biện pháp tốt để giảm nhiệt độ trong nhà. Ví dụ, một mẫu nhà 1 trệt 1 lầu 7×15m có thể có một phòng khách rộng rãi và thoáng đãng, được bày trí các mảng hình khối đơn giản như giường và bàn sofa. Một bức tường được sơn màu sáng sẽ tạo cảm giác rộng hơn và mang đến sự tươi sáng cho không gian. Ngoài ra, các mẫu nhà này cũng có thể có một nhà bếp tiện nghi với các thiết bị hiện đại và đầy đủ. Các mảng hình khối được sử dụng ở nhà bếp có thể là các tấm ngăn kéo hoặc kệ để lưu trữ đồ dùng nhà bếp. Màu sơn sẽ được chọn một cách hài hòa với màu sắc tổng thể của căn nhà. Phòng ngủ cũng là một phần quan trọng trong các mẫu nhà này. Với một phòng ngủ rộng rãi và thoải mái, các mảng hình khối đơn giản như giường, tủ quần áo và bàn trang điểm có thể tạo nên một không gian yên tĩnh và thư giãn. Sử dụng các gam màu tươi sáng hoặc nhẹ nhàng có thể mang đến một không gian ngủ thêm phần dễ chịu và thoải mái. Trên đây là một số ví dụ về cách thiết kế và sử dụng của những mẫu nhà 1 trệt 1 lầu 7×15m với mái bằng. Chúng mang đến một không gian sống hiện đại, độc đáo, thoải mái và tràn đầy sức sống cho gia đình.

Ngôi nhà 2 tầng mái bằng thiết kế đơn giản và gần gũi với hệ thống cây xanh bao quanh

Mái bằng ngày càng được rất nhiều gia chủ lựa chọn bởi vẻ đẹp hiện đại kết hợp mảng khối cân đối, bề thế
Mẫu nhà 1 trệt 1 lầu 7×15m mái lệch
Nếu bạn là người yêu thích phong cách kiến trúc cá tính, mới lạ thì mẫu nhà 1 trệt 1 lầu 7x15m mái lệch hoàn toàn đáp ứng được yêu cầu của bạn. Kiến trúc ngôi nhà độc đáo với mái lệch về 2 phía nên nhìn rất mới mẻ. Phần mái dốc giúp nhà 2 tầng trở nên cao ráo và thanh thoát hơn, đồng thời cũng tạo được sự khác biệt so với những ngôi nhà 2 tầng khác. Ngoài ra, nhà mái lệch luôn toát lên vẻ đẹp đầy phóng khoáng, cân đối, phần nào thể hiện được gu thẩm mỹ cá tính của chủ đầu tư.

Tone màu trắng, màu đen đan xen cùng màu xanh cùng kiến trúc mái lệch độc đáo tạo sự tương phản nổi bật cho ngôi nhà

Mẫu nhà 1 trệt 1 lầu 7×15m mái lệch toát lên một sức sống trẻ trung nhưng không kém phần sang trọng

Nhà mái lệch hiện nay được đông đảo nhiều gia chủ chọn lựa nhờ vào kiến trúc mới lạ
Mẫu nhà 1 trệt 1 lầu 7×15m hiện đại
Phương án thiết kế mẫu nhà 1 trệt 1 lầu 7×15m theo kiến trúc hiện đại đang được nhiều chủ đầu tư quan tâm và chào đón. Thiết kế này tinh tế kết hợp các khối hình học đa dạng và sử dụng vật liệu mới ứng dụng cao, tạo nên ngôi nhà mới mẻ và thu hút. Kiến trúc hiện đại thường ưu tiên không gian mở, sử dụng kính và cây xanh để tạo không gian sống mát mẻ và gần gũi với thiên nhiên.

Vẻ đẹp phóng khoáng và trang nhã được thể hiện rõ nét qua phối cảnh mẫu nhà 1 trệt 1 lầu 7×15m hiện đại
Mẫu nhà 1 trệt 1 lầu 7×15m tân cổ điển
Những mẫu nhà 1 trệt 1 lầu 7×15m tân cổ điển là sự kết hợp tinh hoa giữa nét đẹp phóng khoáng của phong cách hiện đại và sự sang trọng, quyền quý của tân cổ điển. Tuy nhiên, phương án thiết kế này loại bỏ những hoa văn, họa tiết trang trí phức tạp thay vào đó là các phào chỉ nhấn nhá đơn giản nhưng vẫn toát lên nét trang nhã, hiện đại và sang trọng cho công trình nhà phố.

Mẫu thiết kế nhà 1 trệt 1 lầu 7x15m theo phong cách kiến trúc tân cổ điển sang trọng và đẳng cấp

Mẫu nhà 2 tầng tân cổ điển tối giản các chi tiết rườm rà tạo các mảng khối vuông vức vô cùng ấn tượng

Thiết kế mẫu nhà 1 trệt 1 lầu 7x15m tân cổ điển với kiến trúc mái Thái và hệ thống trụ cột thể hiện sự bề thế, khang trang
Mẫu nhà 1 trệt 1 lầu 7×15m 3 phòng ngủ
Những mẫu nhà 2 tầng diện tích 7x15m có 3 phòng ngủ đang nhận được nhiều sự quan tâm của nhiều gia đình hiện nay. Đặc biệt là những gia đình trẻ, có từ 2 đến 3 thế hệ cùng sinh sống, chưa có nhiều kinh phí đầu tư. Mẫu nhà đẹp này vừa đáp ứng đầy đủ các phòng chức năng sinh hoạt, vừa đa dạng về phong cách kiến trúc cũng như đáp ứng tính thẩm mỹ cao cho gia đình.

Ngôi nhà 1 trệt 1 lầu 7x15m 3 phòng ngủ thiết kế theo kiến trúc hiện đại

Công trình kiến trúc nhà 2 tầng 3 phòng ngủ thiết kế tối giản từ màu sắc cho đến vật liệu trang trí

Mẫu thiết kế nhà 1 trệt 1 lầu 7x15m có kiến trúc độc đáo, ấn tượng
Mẫu nhà 1 trệt 1 lầu 7×15m 4 phòng ngủ
Mẫu nhà 1 trệt 1 lầu 7×15m 4 phòng ngủ nhận được sự quan tâm của nhiều chủ đầu tư khi đáp ứng đầy đủ 3 yếu tố: đáp ứng phòng chức năng tiện nghi, tính thẩm mỹ và chi phí đầu tư hợp lý. Mẫu nhà này phù hợp với gia đình có từ 3-5 thành viên cùng sinh sống, kiến trúc thường hướng đến sự tối giản, nhẹ nhàng không cầu kỳ, chủ yếu tập trung vào không gian rộng rãi, tiện nghi và thoải mái trong quá trình sử dụng.

Ngôi nhà 2 tầng 4 phòng ngủ sở hữu các mảng khối vuông vức, đua ra thụt vào độc đáo

Công trình mẫu nhà 1 trệt 1 lầu 4 phòng ngủ sở hữu khối vòm, khối vuông và nhọn ấn tượng

Phối cảnh mặt tiền nhà 1 trệt 1 lầu 7x15m 4 phòng ngủ theo phong cách hiện đại
Mẫu nhà 1 trệt 1 lầu 7×15m có sân vườn
Xây dựng mẫu nhà 1 trệt 1 lầu 7×15m có sân vườn là sự ưu tiên hàng đầu của nhiều gia đình hiện nay bởi loại hình nhà ở này đáp ứng tiêu chí về một không gian sống xanh mát và gần gũi. Thông thường, nhà 2 tầng sẽ tích hợp thêm sân trước và sân sau, lối đi bên hông, tùy theo mục đích sử dụng và nhu cầu của mỗi gia đình mà kiến trúc sư sẽ bố trí hợp lý. Thông thường, sân trước sẽ tận dụng làm khu vực gara để xe và tiểu cây xanh. Lối đi bên hông và sân sau sẽ tích hợp hồ cá, cây xanh, bàn trà,… tùy mục đích sử dụng của gia chủ.

Căn nhà 1 trệt 1 lầu mặt tiền 7m tích hợp sân trước làm khu vực vui chơi và trồng cây xanh cũng như để xe ô tô

Mẫu thiết kế nhà 2 tầng 7x15m có sân vườn cây xanh bát ngát giúp ngôi nhà thêm phần gần gũi thiên nhiên

Ngôi nhà 2 tầng có sân vườn giúp không gian nhà luôn thoáng đãng và trong lành
Mẫu nhà 1 trệt 1 lầu 7×15m có gác lửng
Đối với diện tích đất không quá lớn, gia đình có đông thành viên thì việc thiết kế mẫu nhà 1 trệt 1 lầu 7×15m có gác lửng là giải pháp tối ưu nhất hiện nay, vừa đáp ứng nhu cầu sử dụng cho các thành viên trong gia đình, vừa tiết kiệm chi phí so với nhà 3 tầng, đồng thời vẫn đáp ứng được một ngôi nhà có tính thẩm mỹ cao.

Nhà 2 tầng gác lửng 7x15m giúp gia tăng không gian sử dụng tiện nghi cho gia đình

Công trình nhà 1 trệt lầu có gác lửng 7x15m sở hữu mảng hình khối độc đáo

Mẫu thiết kế nhà 1 trệt 1 lầu diện tích 7x15m có gác lửng có lối trang trí tối giản, hướng đến không gian tiện nghi và thoáng đãng
Chi phí xây nhà 1 trệt 1 lầu 7×15m hết bao nhiêu?
Ngoài một mẫu nhà 1 trệt 1 lầu 7x15m đẹp tiện nghi thì chi phí xây nhà trọn gói cũng được rất nhiều gia đình quan tâm đến. Để quý khách có thể tự dự toán được chi phí xây nhà 1 trệt 1 lầu 7x15m thì LG TECH sẽ gợi ý cách tính như sau:
Hiện tại thì chi phí xây nhà phố của chúng tôi được tính theo diện tích m2, cụ thể:
- Chi phí xây phần thô từ 3.600.000đ – 3.800.000đ/m2
- Chi phí xây nhà trọn gói (ưu đãi miễn phí 100% thiết kế) từ 6.100.000đ – 7.500.000đ/m2

Chi phí thiết kế và thi công nhà 1 trệt 1 lầu 7x15m hết bao nhiêu tiền?
Chi phí xây nhà phố sẽ phụ thuộc nhiều yếu tố như vị trí, thời điểm xây dựng, phong cách, vật liệu,… tuy nhiên dựa theo công thức tính đơn giản sau gia chủ có thể dự trù được chi phí xây mẫu nhà 1 trệt 1 lầu 7x15m cho gia đình.
Chi phí xây nhà trọn gói = đơn giá x diện tích xây dựng
Dựa trên đơn giá và công thức tính trên, chúng ta sẽ tính chi phí xây nhà 1 trệt 1 lầu 7x15m (105m2) như sau:
- Móng: 105 x 45% = 47,25m2
- Tầng trệt: 105 x 100% = 105m2
- Lầu 1: 105 x 100% = 105m2
- Mái BTCT: 105 x 80% = 84m2
=> Tổng diện tích xây dựng: 341,25m2
Vậy chi phí xây dựng nhà phố 2 tầng sân thượng diện tích 105m2, cụ thể:
– Chi phí xây dựng phần thô: 341,25 x 3.750.000 = 1.279.688.000đ
– Chi phí thi công nhà trọn gói (chìa khóa trao tay): 341,25 x 7.000.000 = 2.388.750.000đ
Lưu ý: Cách tính trên chỉ mang tính chất để quý khách tham khảo và dự trù sơ bộ chi phí xây mẫu nhà 1 trệt 1 lầu 7x15m. Chi phí còn phụ thuộc vào loại hình kiến trúc, phong cách, vị trí, thời điểm xây dựng, vật liệu thi công,….
Các yếu tố ảnh hưởng đến chi phí xây nhà 1 trệt 1 lầu 7×15m trọn gói
Để xây dựng mẫu nhà 1 trệt 1 lầu 7x15m2 tiết kiệm chi phí tối đa, các chủ đầu tư cần lưu ý đến các yếu tố tác động đến chi phí xây dựng sau đây:
- Phong cách kiến trúc: Đây là yếu tố quan trọng đầu tiên ảnh hưởng đến chi phí xây nhà. Nhà 1 trệt 1 lầu 7x15m có thể được xây dựng theo nhiều phong cách khác nhau từ hiện đại, tân cổ điển đến cổ điển. Mỗi một phong cách kiến trúc sẽ có chi phí xây dựng khác nhau, tuy nhiên hầu hết kiến trúc này đều chọn phong cách hiện đại tối giản, vừa đáp ứng chi phí hợp lý, vừa sở hữu không gian sống thoáng đãng, rộng rãi, gần gũi thiên nhiên và đáp ứng nhu cầu sử dụng tiện nghi.
- Chất lượng vật liệu: Sử dụng chất liệu xây dựng càng cao thì chi phí sẽ tăng cao. Vì thế, hãy cân nhắc lựa chọn vật liệu phù hợp với ngân sách đầu tư của mình. Nhờ sự hỗ trợ từ kiến trúc sư, yêu cầu tư vấn vật liệu phù hợp, đảm bảo chất lượng, thẩm mỹ nhưng giá thành hợp lý.
- Địa điểm xây dựng: Chi phí xây dựng ở thành phố thường cao hơn ở nông thôn rất nhiều. Đặc biệt là những khu đất có lối đi vào hẻm hạn hẹp, máy móc không thể vận chuyển vật liệu xây dựng vào được.
- Chi phí phát sinh: Ngoài các yếu tố trên, chi phí xây mẫu nhà 1 trệt 1 lầu 7×15m còn có thể phát sinh thêm một số chi phí khác, chẳng hạn như chi phí xin phép xây dựng, chi phí vận chuyển vật liệu, chi phí thiết kế nội thất,…
- Chọn nhà thầu uy tín: Việc đánh giá và tìm kiếm một nhà thầu uy tín trong việc xây dựng tổ ấm cho gia đình là rất quan trọng. Ngoài việc đảm bảo chất lượng và yếu tố thẩm mỹ cho công trình, nhà thầu uy tín thường có nhiều ưu đãi khi khách hàng lựa chọn dịch vụ xây nhà trọn gói như hỗ trợ xin phép xây dựng, miễn phí bản vẽ thiết kế kiến trúc,…. giúp tiết kiệm chi phí rất nhiều cho chủ đầu tư.

Các yếu tố ảnh hưởng trực tiếp đến chi phí xây dựng nhà 1 trệt 1 lầu 7x15m
Trên đây là tất cả các thông tin chia sẻ của LG TECH về những mẫu nhà 1 trệt 1 lầu 7×15m đang được rất nhiều chủ đầu tư hiện nay quan tâm. Hy vọng những thông tin trên sẽ giúp quý khách có thêm nhiều ý tưởng mới để sáng tạo nên một công trình, một không gian sống hoàn hảo nhất cho gia đình mình nhé!







