Nhờ vào sự am hiểu về kiến trúc và sự sáng tạo không giới hạn của các kiến trúc sư, ngày nay đã có nhiều mẫu nhà phố 2 tầng 90m2 được thiết kế để đáp ứng cả về thẩm mỹ lẫn nhu cầu sử dụng của gia chủ. Từ những thiết kế đơn giản và tối giản đến những thiết kế đẹp mắt và sang trọng, đều có thể tìm thấy trong bộ sưu tập top 8 mẫu nhà 2 tầng 90m2 đang được ưa chuộng do LG Tech tổng hợp và gửi tới. Đây sẽ là những gợi ý hữu ích để bạn chọn phương án thiết kế nhà phố 2 tầng 90m2 tốt nhất cho mình.
Mẫu nhà phố 2 tầng 90m2 mái thái
Một trong những công trình nhà phố 2 tầng 90m2 mái thái đang nhận được sự yêu thích lớn từ chủ đầu tư. Công trình này nổi bật với nhiều ưu điểm đáng chú ý. Hệ thống mái thái chắc chắn không chỉ tạo nên vẻ bề thế và thẩm mỹ cho ngôi nhà mà còn có khả năng hút nhanh nước mưa, chống ẩm, mốc và giữ cho không khí bên trong luôn mát mẻ. Công trình này vừa mang lại sự tiện ích, vừa đảm bảo sự thoải mái cho cư dân.

Mẫu nhà phố 2 tầng 90m2 mái thái kết hợp sân vườn thoáng mát
Nhìn vào bản vẽ phối cảnh, ngôi nhà phố 2 tầng 90m2 mái thái có thiết kế đơn giản nhưng gợi cảm hứng. Với cửa kính trong suốt và ban công lầu rộng, ngôi nhà tràn đầy ánh sáng tự nhiên và tạo cảm giác thoáng đãng. Bên cạnh đó, lan can kính và bồn tiểu cảnh xanh phía trước làm cho ngôi nhà trở nên gần gũi và hài hòa với thiên nhiên. Đặc biệt, mặt tiền không có những chi tiết trang trí hoa mỹ quá cầu kỳ, mà thay vào đó, nhấn mạnh vào các chi tiết hình khối và sử dụng vật liệu mới cùng gam màu tươi sáng, tạo nên một tổng thể trẻ trung, sang trọng và thân thuộc.

Mặt bằng tầng trệt nhà phố 2 tầng 90m2 mái thái
Tầng trệt của căn nhà phố 2 tầng này được thiết kế sao cho hấp dẫn hơn với các không gian đa dạng và tiện ích. Đầu tiên, bạn sẽ có một khu vực gara ô tô tiện lợi để đậu xe. Sau đó, bạn sẽ được đón tiếp bởi một phòng khách rộng rãi và đầy đủ tiện nghi, tạo cảm giác thoải mái và ấm cúng. Tiếpết với nhau, mang lại không gian thoáng đãng và tiện nghi cho mọi hoạt động gia đình. Phòng ngủ được đặt ở cuối nhà, với một nhà vệ sinh riêng biệt, tạo ra một không gian riêng tư và thư giãn. Gần đó, bạn còn có sân phơi và khu vực giặt, giúp bạn dễ dàng thực hiện các công việc giặt là hàng ngày mà không cần đi xa.

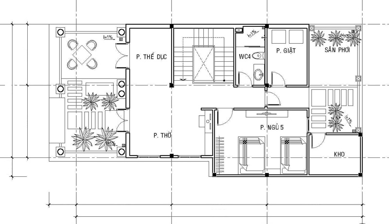
Bản vẽ mặt bằng công năng lầu 1 nhà phố 2 tầng 90m2 mái thái
Công năng lầu 1 được bố trí 4 phòng ngủ, tất cả các phòng đều có nhà vệ sinh riêng, thiết kế bố trí đồ nội thất khoa học, đáp ứng không gian sử dụng thoải mái. Trung tâm là khu vực sinh hoạt chung của gia đình cùng cầu thang thông tầng.
Thiết kế nhà 2 tầng 90m2 mái bằng
Dự án chung cư diện tích 90m2 một mái là một trong những sự lựa chọn phổ biến và được ưa chuộng tại cả vùng đô thị và nông thôn. Bên cạnh diện mạo ngoại thất sang trọng và hiện đại, ngôi nhà được thiết kế đơn giản với những hình khối cân đối và trang trí bằng hệ thống cửa kính khung nhôm xingfa sơn tĩnh điện màu đen. Ngoài ra, cổng và hàng rào sơn trắng cùng với thiết kế mặt tiền đẹp mắt tạo ra sự hài hòa toàn diện. Thêm vào đó, không gian xanh xung quanh với nhiều cây cối tạo ra một môi trường gần gũi và trong lành với thiên nhiên cho căn nhà.

Thiết kế nhà phố 2 tầng 90m2 mái bằng kết hợp cùng cây xanh, vật liệu mới tạo nên công trình sang trọng và gần gũi
Bên cạnh đó, với việc trang trí thêm gỗ nhựa màu nâu, đá tự nhiên có vân mây ốp tường tại tầng trệt cùng ánh sáng đèn càng tô đậm nét đẹp thanh thoát, trẻ trung và lôi cuốn cho căn nhà phố 2 tầng 90m2 mái bằng này.

Bản vẽ mặt bằng tầng trệt nhà phố 2 tầng 90m2 mái bằng
Về mặt bằng bố trí tại tầng trệt, trước nhà có một khoản sân vườn nhỏ cùng khu vực gara ô tô. Phòng khách được thiết kế phía bên trong, sát với cửa chính, không gian thoáng đãng. Cầu thang thông tầng được bố trí trung tâm nhà. Phòng ngủ và không gian bếp + ăn được thiết kế cuối nhà, sân sau được tận dụng làm sân phơi và khu vực giặt.

Bản vẽ mặt bằng lầu 1 nhà phố 2 tầng 90m2 mái bằng
Còn mặt bằng lầu 1 của ngôi nhà phố 2 tầng này được thiết kế 3 phòng ngủ, 1 phòng ngủ master có nhà vệ sinh riêng. Phòng thờ bố trí hướng ra sân thượng trước nhà, không gian thiết kế trang nghiêm và mát mẻ. Ở trung tâm căn nhà là phòng vệ sinh chung và cầu thang thông tầng cùng phòng sinh hoạt chung của cả nhà.
Mẫu thiết kế nhà phố 2 tầng 90m2 hiện đại
Với những đường nét mạnh mẽ, hình dạng góc cạnh và sự kết hợp hoàn hảo giữa kiến trúc hiện đại và cây xanh, thiết kế mẫu nhà phố 2 tầng đã tạo ra một sự kết hợp tuyệt vời giữa vẻ đẹp trang nhã và gần gũi. Mặt tiền của công trình có sức hút và sang trọng không cần quá nhiều chi tiết trang trí, nhưng lại thiên về sự thanh thoát và hiện đại với vật liệu trang trí hiện đại. Sự phối màu trẻ trung và các khối đua ra thụt vào độc đáo đã tạo nên một mặt tiền độc đáo và quyến rũ.

Công trình nhà phố 2 tầng 90m2 hiện đại nổi bật với tone màu trắng tinh khôi
Ngoài ra, hệ thống cửa chính, cửa sổ và cửa thông gió đều thiết kế bằng kính cường lực khung nhôm, giúp công trình càng thêm thông thoáng, gần gũi với thiên nhiên và đón nhận được nhiều năng lượng từ ngoài vào. Qua đó, giúp xua tan đi cảm giác ngột ngạt khi bước vào căn nhà phố. Hệ thống cây xanh và tiểu cảnh được bố trí hợp lý giúp mẫu nhà đẹp luôn trong lành, tốt cho sức khỏe của gia đình.

Bản vẽ mặt bằng tầng trệt nhà phố 2 tầng hiện đại
Mặt bằng tầng trệt có khoảng sân rộng phía trước sử dụng làm nơi đậu xe cùng tiểu cảnh, nơi này sẽ cũng được xem là khoảng đệm nhằm hạn chế tiếng ồn bên ngoài. Từ cửa chính tiến vào trong là phòng khách liền kề khu vực bếp khá rộng với không gian mở. Cuối nhà là 1 phòng ngủ tích hợp nhà vệ sinh riêng, đối diện là không gian bếp cùng lối ra sân sau nhà.

Bản vẽ mặt bằng lầu 1 nhà phố 2 tầng hiện đại
Công năng lầu 1 gồm 2 phòng ngủ, 1 phòng ngủ có thiết kế thêm nhà vệ sinh khép kín bên trong, sát bên là nhà vệ sinh chung và lối ra ban công sau nhà. Phòng thờ đặt phía trước mặt tiền, thiết kế ngoài việc đảm bảo không gian nội thất trang nghiêm mà còn chuẩn phong thủy. Trung tâm nhà là khu vực sinh hoạt chung cùng 1 phòng nhà kho nhỏ.
Thiết kế nhà phố 2 tầng 90m2 đơn giản
Có thể mô tả lại nội dung trên như sau: Ngôi nhà phố 2 tầng được xây dựng với thiết kế kiến trúc đơn giản nhưng vô cùng hấp dẫn. Đặc biệt, nó được trang trí bởi một sân vườn phía trước rộng lớn. Không chỉ là không gian để đậu xe, khu vực này còn được sử dụng để vui chơi, giải trí và trồng cây xanh, giúp tạo nên một không gian gần gũi với thiên nhiên xung quanh. Để ngăn cách giữa không gian sân trước và không gian bên trong nhà, chúng tôi đã sử dụng hệ cửa kính khung nhôm Xingfa. Nhờ sự kết hợp giữa tiếng ồn được hạn chế và tính công nghệ, nó không chỉ tạo ra một không gian yên tĩnh hơn mà còn hỗ trợ kết nối chặt chẽ giữa hai không gian này.

Thiết kế nhà 2 tầng diện tích 90m2 với kiến trúc tối giản từ hình khối cho đến vật liệu trang trí nhưng vẫn toát lên vẻ đẹp thanh thoát, cuốn hút
Công trình không có đường gờ hay có sự xuất hiện của các chi tiết hoa văn trang trí, căn nhà phố 2 tầng 90m2 đơn giản gây ấn tượng với hệ mái bằng cùng hệ lam chắn nắng bằng sắt sơn tĩnh điện màu đen. Lô gia đua ra rộng với lan can sắt kết hợp cùng mảng tường ốp gỗ nhựa và gạch màu ghi xám, đủ để làm nổi bật, ghi điểm nhấn ấn tượng cho công trình kiến trúc.

Bản vẽ mặt bằng công năng tầng trệt nhà phố 2 tầng 90m2 đơn giản
Mặt bằng tầng trệt nhà phố hiện đại được tính toán khoa học để đảm bảo có sân vườn và khu vực để xe. Công năng bên trong bao gồm 1 phòng khách, 1 phòng bếp + bàn ăn, 2 phòng ngủ và 1 phòng vệ sinh cùng lối ra sân sau nhà tận dụng làm khu vực giặt + phơi.

Bản vẽ mặt bằng công năng lầu 1 nhà phố 2 tầng 90m2 đơn giản
Công năng lầu 1 được cân đối diện tích sử dụng để mở rộng không gian sinh hoạt chung của gia đình. Bố trí 2 phòng ngủ diện tích thiết kế vừa phải, đáp ứng nơi nghỉ ngơi thoải mái và tiện nghi. Phòng thờ và khu vực học tập đặt vị trí hướng ra trước nhà cùng với sân thượng. Trung tâm là không gian sinh hoạt chung và nhà vệ sinh chung.
Nhà 2 tầng hiện đại 90m2 có hồ bơi
Căn nhà phố thiết kế với các khối vuông vức đơn giản, đây được xem là lối kiến trúc mở, tối giản nhưng vẫn giữ được sự sang trọng, mới mẻ. Nói đến không gian mở thì không thể thiếu hệ thống cửa kính lớn cùng khu vườn xanh mát bao quanh. Khu sân vườn ngoài có tác dụng tạo ngoại cảnh đẹp để góp phần tôn lên căn nhà phố, vật liệu kính giúp ngôi nhà gia tăng tính thẩm mỹ cũng như có nhiều góc view.

Nhà biệt thự mini 2 tầng 90m2 hiện đại có hồ bơi

Độc đáo, kiên cố và bề thế là những từ ngữ miêu tả chính xác cho ngôi nhà 2 tầng này
Và tất nhiên không thể thiếu được nhân vật chính trong căn nhà phố 2 tầng này là chiếc bể bơi. Trong những ngày nắng nóng, oi bức, việc thiết kế nhà phố có hồ bơi trong sân vườn sẽ là một điều tuyệt vời để gia đình thư giãn và giải trí.
Nhà phố 2 tầng 90m2 tân cổ điển
Vẻ đẹp đặc trưng dễ nhận thấy của mẫu nhà phố này chính là hình khối mang đậm dấu ấn của kiến trúc Pháp xa hoa. Từng đường nét hoa văn trang trí và bố cục hình khối đều được tính toán tỉ mỉ và chi tiết đem lại nét đẹp bắt mắt cho ngôi nhà. Mỗi một chi tiết đều được tính toán kỹ lưỡng từ hệ thống trụ cột, màu sắc cho đến các vật liệu trang trí.

Công trình nhà 2 tầng tân cổ điển ấn tượng và thu hút bởi các mảng khối, trụ cột và họa tiết trang trí bắt mắt
Không quá phô trương quá nhiều chi tiết trang trí cầu kỳ như phong cách cổ điển, nhà phố 2 tầng 90m2 tân cổ điển có sự cách tân mới mẻ. Thay vào đó là sự tối giản từ hình khối cho đến đường nét kiến trúc. Công trình nhà phố tân cổ điển 2 tầng thật sự ấn tượng và nổi bật bởi trụ cột kiên cố, hình khối vòm và vuông vức cùng những đường kẻ ngang trên mảng tường tạo sự tráng lệ và đẳng cấp cho công trình.

Mặt bằng tầng trệt nhà phố 2 tầng 90m2 tân cổ điển
Tầng trệt bao gồm các không gian sinh hoạt chung, trong đó bao gồm có phòng khách kết hợp khu vực thờ, không gian tập thể dục, 1 phòng ngủ, 1 phòng vệ sinh chung, nhà kho và khu vực giặt + phơi.

Mặt bằng lầu 1 nhà phố 2 tầng 90m2 tân cổ điển
Bố trí công năng lầu 1 của ngôi nhà phố có 3 phòng ngủ, 1 phòng ngủ master có diện tích lớn, rộng rãi và thoáng đãng, có thêm khu vực làm việc và phòng vệ sinh riêng. Ở giữa nhà là cầu thang thông tầng, phòng sinh hoạt chung cùng nhà vệ sinh chung cho cả gia đình.
Thiết kế nhà phố 90m2 2 tầng mái Nhật
Mái Nhật hiện đại là một xu hướng kiến trúc tập trung vào bố cục hài hòa trong tổng thể. Kiến trúc sư tài ba thường thể hiện nét đặc trưng của mái Nhật tại phần hiên nhà, tạo thành một điểm nhấn ấn tượng. Không chỉ làm cho công trình thêm vững chắc và kiên cố, mái Nhật còn mang lại sự sang trọng cho ngôi nhà. Đồng thời, mái hình chữ A còn có lợi thế đặc biệt khi thoát nước mưa nhanh chóng, ngăn ngừa ẩm mốc, đồng thời giúp cải thiện chất lượng không khí bên trong nhà, tạo điều kiện mát mẻ và thoáng đãng.

Ngôi nhà phố 2 tầng 90m2 hướng đến không gian mở, thiết kế trẻ trung và năng động
Nhà sử dụng các gam màu trung tính như màu trắng, xanh, nâu và xám, đây là những tone màu đặc trưng của phong cách kiến trúc hiện đại. Kết hợp cùng phần tường nhà trang trí các đường kẻ ngang mới lạ. Hệ thống cửa chính, cửa sổ sử dụng kính cường lực lấy sáng tối đa vào bên trong. Sân vườn phía trước được bố trí thêm tiểu cảnh cây xanh, tất cả đều được bố trí một cách khoa học, đêm đến một ngôi nhà phố không chỉ sang trọng và đẹp mắt mà còn đáp ứng tiêu chí nghỉ ngơi, thư giãn cho gia đình.

Mặt bằng công năng tầng trệt nhà phố 2 tầng 90m2 mái Nhật
Mặt bằng công năng sử dụng tầng trệt được thiết kế với 1 phòng khách, 1 phòng ngủ, 1 phòng bếp kết hợp ăn, 1 phòng vệ sinh chung. Diện tích các phòng đều khá rộng rãi và thoáng đãng kết hợp cùng việc bố trí công năng tính toán chi tiết nên đáp ứng đầy đủ nhu cầu sử dụng và không gian tiện nghi.

Mặt bằng công năng lầu 1 nhà phố 2 tầng 90m2 mái Nhật
Lầu 1 nhà phố 2 tầng 90m2 được bố trí 3 phòng ngủ, trong đó 2 phòng ngủ có nhà vệ sinh khép kín, 1 phòng thờ, 1 phòng sinh hoạt chung. Tất cả các không gian sinh hoạt đều có diện tích rộng rãi, thoải mái. Bên cạnh đó còn có khoảng lô gia phía trước mặt tiền, khu vực này có thể tận dụng bố trí bàn trà ngồi thư giãn, ngắm cảnh.
Mẫu nhà phố 2 tầng 90m2 độc đáo

Mẫu thiết kế nhà phố 2 tầng 90m2 độc đáo theo phong cách tối giản, nhẹ nhàng
Độc đáo, hiện đại và tinh tế chắc chắn là những điều mà bất kỳ ai khi ngắm nhìn mẫu nhà đẹp này cũng thoát lên những câu từ như vậy. Khác với những ngôi nhà phố tân cổ điển, mẫu nhà phố 2 tầng độc đáo gây ấn tượng với các mảng khối thiết kế đầy sáng tạo, vuông vức. Theo đó, điểm nhấn của công trình này chính là phần ban công được chia thành 2 phần, chiều cao sàn lệch nhau, tách biệt với nhau. Cùng với cây xanh được bố trí khoa học, vừa để trang trí, vừa tạo không gian xanh mát cho công trình.

Mặt bằng tầng trệt nhà phố 2 tầng 90m2 độc đáo
Công năng tầng trệt bao gồm sân trước, phòng khách, phòng bếp + ăn, phòng vệ sinh chung, 1 phòng ngủ. Từ sân trước tiến vào trong là không gian phòng khách khá rộng rãi. Nhờ vào thiết kế sân trước thoáng nên bên trong nhà cũng luôn được mát mẻ, tươi sáng. Liền kề phòng khách là phòng bếp và bàn ăn, đối diện bếp là 1 phòng ngủ lớn, rộng và thoáng. Cuối nhà bố trí phòng vệ sinh chung cùng lối ra sân sau nhà.

Mặt bằng lầu 1 nhà phố 2 tầng 90m2 độc đáo
Khu vực lầu 1 là không gian nghỉ ngơi của các thành viên còn lại của gia đình. Thiết kế 2 phòng ngủ đều được bố trí đầy đủ nội thất tiện nghi, có tính ứng dụng cao nhằm mang lại không gian thư giãn tối ưu nhất. Khu vực phòng thờ hướng ra mặt tiền, kế bên là phòng sinh hoạt chung của gia đình. Cuối cùng là phòng vệ sinh chung cùng khu vực giặt + phơi.
Những mẫu nhà phố 2 tầng 90m2 đẹp đa dạng phong cách và kiến trúc, đã và đang được đón nhận rất đông đảo từ nhiều chủ đầu tư trên nhiều tỉnh thành Việt Nam. Chắc chắn ngôi nhà sẽ mang đến những trải nghiệm, những không gian sống hoàn hảo, đáp ứng đầy đủ nhu cầu và sở thích của mỗi cá nhân. Nếu bạn đang tìm kiếm cho mình phương án thiết kế độc nhất, hãy liên hệ với LG Tech để được kiến trúc sư của chúng tôi tư vấn thêm, dựa trên ngân sách và nhu cầu của bạn, hoàn toàn miễn phí!







